FOR SALE, Auction Guide Price +++ £995,000

25 - 27, Belgrave Road, Clifton, BS8 2AA

Bedrooms 8 Bathrooms 4 Reception 4

  • FOR SALE BY ONLINE AUCTION
  • WEDNESDAY 20TH MAY 2026
  • VIRTUAL TOUR NOW ONLINE
  • VIEWINGS – REFER TO DETAILS
  • DOWNLOAD FREE LEGAL PACK
  • MAY LIVE ONLINE AUCTION
  • 2 X SEMI DETACHED HOUSES
  • PERIOD PROPERTIES | GARDEN | PARKING
  • RESI & COMMERCIAL POTENTIAL stp
  • COMPLETION - SEPT 2026

FOR SALE BY LIVE ONLINE AUCTION

ADDRESS | 25 - 27 Belgrave Road, Clifton, Bristol BS8 2AA

Lot Number 8

The Live Online Auction is on Wednesday 20th May 2026 @ 12:00 Noon
Registration Deadline is on Friday 15th May 2026 @ 16:00

The Auction will be streamed LIVE ONLINE via the Hollis Morgan website & you can choose to bid by telephone, proxy or via your computer.
Registration is a simple online process – please visit the Hollis Morgan auction website and click “REGISTER TO BID”

THE PROPERTY

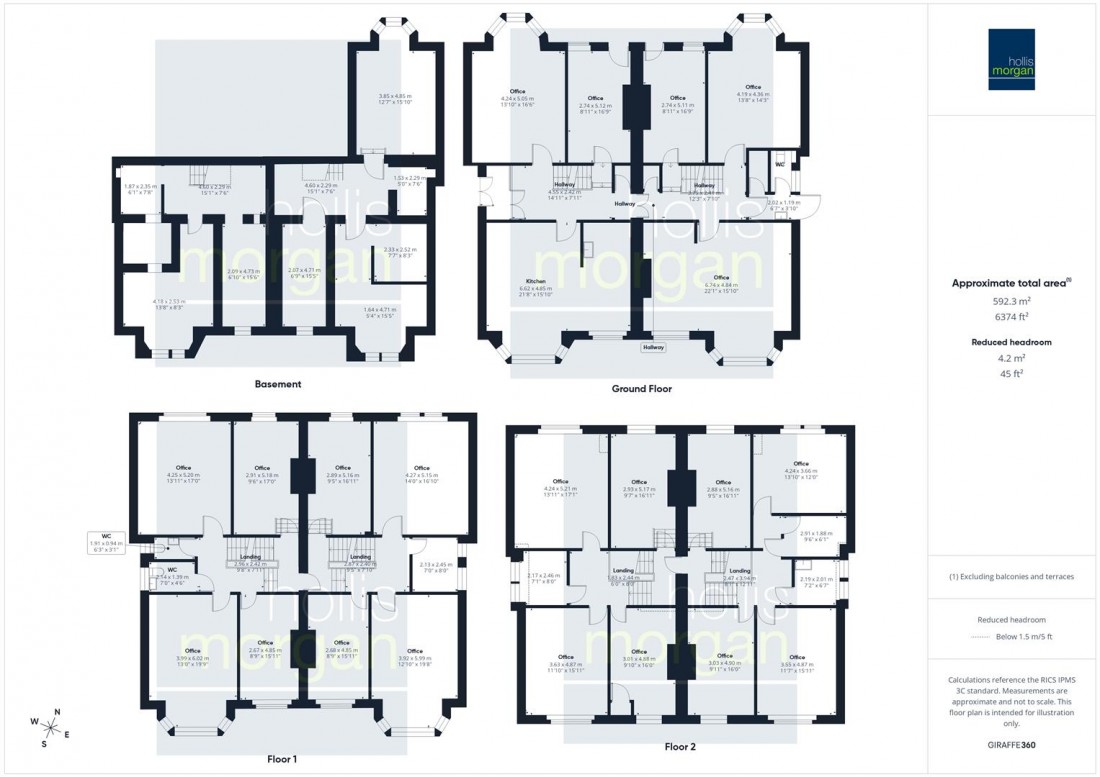
An imposing pair of bay fronted period semi detached properties located in a sought after location on the Clifton / Cotham / Triangle borders just moments from Whiteladies Road. Spacious accommodation ( 6374 Sq Ft ) arranged over 3 floors plus a large basement with parking area for 4 + vehicles and generous rear garden with side access from both properties.
The properties are interlinked and have been used as offices ( class E ) for many years and are offered in good decorative order.
Sold with vacant possession.

Tenure - The majority of the property, including the building, is Leasehold and held for the residue of a 10,000 year term from 27 July 1844. The remainder of the land which adjoins the north-western boundary is Freehold - please refer to legal pack for more information.
EPC - D

THE OPPORTUNITY

RESIDENTIAL DEVELOPMENT

The property would suit residential development with scope for a scheme of multiple flats, large lateral apartments or split into 2 independent generously proportioned semi detached family homes.
The basement levels offers huge potential for further development with good existing head height and natural light.
Please refer to independent rental appraisal.

HOLLIS MORGAN NEW HOMES

If you require any advice on potential schemes and GDV appraisal please contact Dan Harris @ Hollis Morgan New Homes.

FAMILY HOME

There is potential to create a substantial detached family home with multiple off street parking and a large enclosed rear garden in this sought after central location.

COMMERCIAL

Scope for a range of commercial schemes including a Headquarters style arrangement, serviced offices or for occupation on individual floors / suites.
Please refer to independent rental appraisal.

*All above subject to gaining the necessary consents.
We understand no residential planning of this nature has been recently sought.
Interested parties to make their own investigations.

LOCATION

Clifton and the surrounding areas, with its Victorian and Georgian architecture, are amongst the most sought after locations in the City. The area offers charm alongside excellent amenities with independent shops, boutiques, cafes, bars and restaurants to be found on both Whiteladies Road and Clifton Village including Clifton Down shopping Centre. The Downs offers four hundred acres of green public space whilst Brunel’s Clifton Suspension Bridge provides a gateway to the Ashton Court Estate with its woodlands, mountain bike trails and walks whilst there is excellent access to the exciting Harbourside district, the City Centre and Temple Meads.

SOLICITORS & COMPLETION

Kate Davies & Tristan Williams
Burges Salmon
0117 3076476
Kate.Davies@burges-salmon.com | Tristan.Williams@burges-salmon.com
https://www.burges-salmon.com/

EXTENDED COMPLETION

Completion is set for September 30th or earlier subject to mutual consent.

COMMERCIAL RENTAL APPRAISAL

For advice on the various commercial options and potential income for this property please contact Tom Coyte of Burston Cook
tom@burstoncook.co.uk

IMPORTANT AUCTION INFORMATION

VIEWINGS

Please submit a viewing request online and we will contact you to organise an appointment.
We will send you an email and text to confirm the appointment time and the full property address.
Viewings are supervised by a member of the Hollis Morgan Auction team who will meet you at the property.

MATERIAL INFORMATION

Information including utilities, Electricity supply, Water supply, Sewerage, Heating, Broadband, Mobile signal / coverage, Parking, Building safety, Restrictions and rights, Rights and easements, Flood risk, Erosion risk, Coastal erosion risk, Planning permission for proposal for development, Property accessibility / adaptations, Coalfield or mining area all of which will be supplied within the legal pack that can be accessed for free via the Hollis Morgan website or via your EIG account.

ONLINE LEGAL PACKS

Digital Copies of the Online legal pack can be downloaded Free of Charge.
Please visit the Hollis Morgan Website and select the chosen lot from our Current Auction List.
Press the GREEN button to "Download Legal Packs" For the first visit you will be required to register simply with your email and a password.
Having set up your account you can download legal packs or if they are not yet available, they will automatically be sent to you when they are uploaded.
You will be automatically updated by email if any new information is added.
There will be a note added to the list to confirm AUCTION PACK NOW COMPLETE when no further information is due to be added.
*** STAY UPDATED *** By registering for the legal pack we can ensure you are kept updated on any changes to this Lot in the build up to the sale.

BUYER’S PREMIUM

Please be aware all purchasers are subject to a £1,500 + VAT (£1,800 inc VAT) buyer's premium which is ALWAYS payable upon exchange of contracts whether the sale is concluded before, during or after the auction date.

GUIDE PRICE

An indication of the seller's current minimum acceptable price at auction. The guide price or range of guide prices is given to assist consumers in deciding whether to pursue a purchase. It is usual, but not always the case, that a provisional reserve range is agreed between the seller and the auctioneer at the start of marketing. As the reserve is not fixed at this stage and can be adjusted by the seller at any time up to the day of the auction in the light of interest shown during the marketing period, a guide price is issued. This guide price can be shown in the form of a minimum and maximum price range within which an acceptable sale price (reserve) would fall, or as a single price figure within 10% of which the minimum acceptable price (reserve) would fall. A guide price is different to a reserve price (see separate definition). Both the guide price and the reserve price can be subject to change up to and including the day of the auction.

RESERVE PRICE

The seller's minimum acceptable price at auction and the figure below which the auctioneer cannot sell. The reserve price is not disclosed and remains confidential between the seller and the auctioneer. Both the guide price and the reserve price can be subject to change up to and including the day of the auction.

PRE AUCTION OFFERS

Some vendors are willing to consider offers prior to the auction.
Pre auction offers can ONLY be submitted by completing the online PRE AUCTION OFFER FORM
The form can be found on the Hollis Morgan website on the individual auction property listing.
Please note offers will not be considered until you have inspected the COMPLETE LEGAL PACK once it has been released.
There will be a note added to the list to confirm AUCTION PACK NOW COMPLETE when our client’s solicitor informs us no further information is due to be added.
In the event of an offer being accepted the property will only be removed from the online auction and viewings stopped once contracts have successfully EXCHANGED subject to the standard auction terms and payment of the buyer’s premium (£1,800 Inclusive of VAT) to Hollis Morgan.
Contracts can be exchanged via the solicitors or at the Hollis Morgan offices by appointment only.

REGISTRATION PROCESS

The registration process is extremely simple – visit the Hollis Morgan auction website and click on the “Register to Bid” button.
The “Register to Bid” button can be found on the auction home page or on the individual lot listings.
Please note this function is not available on Rightmove or Zoopla.

Stage 1 – Complete the Online Bidding Form
Stage 2 – Upload your certified ID
Stage 3 – Invitation to bid
Stage 4 – Pay your security deposit (£6,800)

You are now ready to bid – Good luck!

If your bid is successful, the balance of the deposit monies must be transferred to our client account within 24 hours of the auction sale.
If you are unsuccessful at the auction your holding deposit will be returned within 48 hours.

SURVEYS AND VALUATIONS

If you would like to arrange a survey or mortgage valuation of this Lot BEFORE the auction, please instruct your appointed surveyor to contact Hollis Morgan and we will arrange access for them to inspect the property. Please note that buyers CANNOT attend the surveys and the surveyors are responsible for collecting and returning keys to the Hollis Morgan offices in Clifton.

AUCTION FINANCE & BRIDGING LOANS

Some properties may require specialist auction finance- please contact Hollis Morgan for access to expert advice and whole of market rates from our independent brokers.

Hollis Morgan may receive introductory fees for this service from the broker.

AUCTION BUYER’S GUIDE VIDEO

We have short video guides for both buying and selling by Public Auction on the Hollis Morgan Website. If you have any further questions regarding the process, please don’t hesitate to contact Auction HQ.

2026 CHARITY OF THE YEAR

Hollis Morgan are proud to be supporting Bristol Schools Rugby Union as our 2026 Charity of the Year. BSRU ( working in association with Bristol Bears ) oversee and support rugby in all schools, State and Independent , in the Greater Bristol area. Bristol Schools provide School Rugby Development opportunities and County level fixtures for secondary boys and girls. Including playing fixtures at U18s against the leading Independent Schools in our region, schools such as Clifton College, BGS, QEH, Collegiate and Millfield. For more information and details of the fixture list please follow them on Instagram.

AUCTION PROPERTY DETAILS DISCLAIMER

Hollis Morgan endeavour to make our sales details clear, accurate and reliable in line with the Consumer Protection from Unfair Trading Regulations 2008 but they should not be relied on as statements or representations of fact, and they do not constitute any part of an offer or contract. All Hollis Morgan references to planning, tenants, boundaries, potential development, tenure etc is to be superseded by the information contained in the legal pack. It should not be assumed that this property has all the necessary Planning, Building Regulation, or other consents. Any services, appliances and heating system(s) listed have not been checked or tested. Please note that in some instances the photographs may have been taken using a wide-angle lens. The seller does not make any representation or give any warranty in relation to the property, and we have no authority to do so on behalf of the seller.


Local Information

Schools Stations Healthcare
Floorplan for 2 x PERIOD SEMI DETACHED | BS8