Lot 43

Development Site @, 17 Station Road, Midsomer Norton, BA3 2AZ

Auction Guide Price £130,000 +++

Bedrooms 24 Bathrooms 22 Reception 22

  • FOR SALE BY ONLINE AUCTION
  • WEDNESDAY 20TH MAY 2026
  • VIRTUAL TOUR NOW ONLINE
  • VIEWINGS – REFER TO DETAILS
  • LEGAL PACK COMPLETE
  • MAY LIVE ONLINE AUCTION
  • FREEHOLD DEVELOPMENT SITE | 0.63 ACRES
  • PLANNING GRANTED – REFER TO LEGAL PACK
  • 11 HOUSES / FLATS | GDV £2.605 m
  • EXTENDED 8 WEEK COMPLETION

FOR SALE BY LIVE ONLINE AUCTION

ADDRESS | Development Site @, 17, Station Road Midsomer Norton, Somerset, BA3 2AZ

Lot Number TBC

The Live Online Auction is on Wednesday 20th May 2026 @ 12:00 Noon
Registration Deadline is on Friday 15th May 2026 @ 16:00

The Auction will be streamed LIVE ONLINE via the Hollis Morgan website & you can choose to bid by telephone, proxy or via your computer.
Registration is a simple online process – please visit the Hollis Morgan auction website and click “REGISTER TO BID”

THE PROPERTY

A Freehold brownfield development site of 0.63 Acres with a range of derelict buildings and vehicular access from Station Road.
Sold with vacant possession.

For sale on behalf of Fixed Charged Receivers

Tenure - Freehold
Council Tax - Band A/B
Utilities, Rights & Restrictions - Please refer to the Legal Pack
Flood Risk - Please refer to the Legal Pack

THE OPPORTUNITY

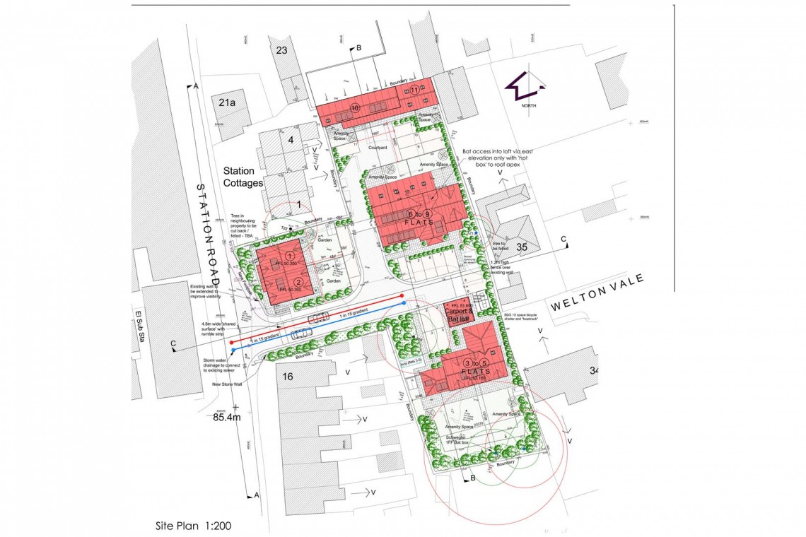
PLANNING GRANTED | 11 HOUSES / FLATS

Planning has been granted ( 20/00241/FUL ) to demolish the existing buildings and erect a scheme of 11 residential houses and flats with a GDV of £2.605m

PROPOSED SCHEDULE OF DEVELOPMENT & GDV

Plot 1 – Semi Detached House | 3 Bed | 1023 Sq Ft - £285K
Plot 2 – Semi Detached House | 3 Bed | 1023 Sq Ft - £285K
Plot 3 – Ground Floor Flat | 2 Bed | 592 Sq Ft - £180K
Plot 4 – Ground Floor Flat | 2 Bed | 700 Sq Ft - £210K
Plot 5 – Ground Floor Flat | 2 Bed | 743 Sq Ft – £225K
Plot 6 – Ground Floor Flat | 2 Bed | 775 Sq Ft - £235K
Plot 7 – Ground Floor Flat | 2 Bed | 1012 Sq Ft - £300K
Plot 8 – Ground & First Floor Maisonette | 2 Bed | 915 Sq Ft - £275K
Plot 9 – Frist Floor Flat | 1 Bed | 549 Sq Ft - £165K
Plot 10 – Semi Detached House | 2 Bed | 689 Sq Ft - £190K
Plot 11 - Semi Detached House | 3 Bed | 926 Sq Ft - £255K

TOTAL – 8,947 Sq Ft | £2.605m

AFFORDABLE HOUSING

We are informed no affordable housing provision required - interested parties to make their own investigations.

CIL - Payable. Please refer to the online legal pack.

PLANNING GRANTED

Midsomer Norton falls with the in Bath and North East Somerset Local Planning Authority, who granted planning permission on 24 April 2020 for the conversion of the existing buildings and the erection of new buildings to form 11 no. residential units (reference 20/00241/FUL).
This planning permission was made as extant through the successful grant of a certificate of lawfulness for the commencement of development (reference 22/00515/CLEU) on 30 March 2022 and the discharge of the pre-commencement conditions.
Please refer to online legal pack

17 Station Road, Welton, Midsomer Norton, BA3 2AZ
Extensions and alterations to 17 Station Road to provide 4No new flats, adapted of outbuildings to provide 2No new dwellings, and the erection of 5 dwellings. (Net increase in 9 dwellings).
Type of Application - Full Application
Status - Application Permitted
Parish - Midsomer Norton
Ward - Midsomer Norton North
Decision - PERMIT
Decision Type - Delegated
Planning Portal Reference Number - PP-08433369

LOCATION

Midsomer Norton is a sought after and traditional market town situated within the very attractive rural area between Bath and the Mendip Hills with a wide range of local amenities including schools, Doctors' and Dentists' surgeries, a leisure centre, chemists, library, supermarkets and shops. Midsomer Norton creates easy commutable ability to the cities of Bath and Bristol, with the popular City of Wells and the market town of Frome within a short drive. Bath city centre is 11 miles and Bristol city centre is 16 miles.

PLANNING INFORMATION

Full details of the proposed scheme and drawings can be downloaded with the online legal pack.

LEGAL PACK COMPLETE

We have been informed by our client’s solicitors that the legal pack for this lot is now complete.

Should any last minute addendums occur you will be automatically notified by email.

If the vendors have indicated they are willing to consider pre-auction offers, now is the time to submit your offer by completing the pre-auction offer form.

SOLICITORS & COMPLETION

Yasmin Uddin
TLT Solicitors
t: 03330061621
Yasmin.Uddin@tlt.com
https://www.tlt.com/

EXTENDED COMPLETION

Completion is set for 8 weeks or earlier subject to mutual consent.

IMPORTANT AUCTION INFORMATION

VIEWINGS

Please submit a viewing request online and we will contact you to organise an appointment.
We will send you an email and text to confirm the appointment time and the full property address.
Viewings are supervised by a member of the Hollis Morgan Auction team who will meet you at the property.

MATERIAL INFORMATION

Information including utilities, Electricity supply, Water supply, Sewerage, Heating, Broadband, Mobile signal / coverage, Parking, Building safety, Restrictions and rights, Rights and easements, Flood risk, Erosion risk, Coastal erosion risk, Planning permission for proposal for development, Property accessibility / adaptations, Coalfield or mining area all of which will be supplied within the legal pack that can be accessed for free via the Hollis Morgan website or via your EIG account.

ONLINE LEGAL PACKS

Digital Copies of the Online legal pack can be downloaded Free of Charge.
Please visit the Hollis Morgan Website and select the chosen lot from our Current Auction List.
Press the GREEN button to "Download Legal Packs" For the first visit you will be required to register simply with your email and a password.
Having set up your account you can download legal packs or if they are not yet available, they will automatically be sent to you when they are uploaded.
You will be automatically updated by email if any new information is added.
There will be a note added to the list to confirm AUCTION PACK NOW COMPLETE when no further information is due to be added.
*** STAY UPDATED *** By registering for the legal pack we can ensure you are kept updated on any changes to this Lot in the build up to the sale.

BUYER’S PREMIUM

Please be aware all purchasers are subject to a £1,500 + VAT (£1,800 inc VAT) buyer's premium which is ALWAYS payable upon exchange of contracts whether the sale is concluded before, during or after the auction date.

GUIDE PRICE

An indication of the seller's current minimum acceptable price at auction. The guide price or range of guide prices is given to assist consumers in deciding whether to pursue a purchase. It is usual, but not always the case, that a provisional reserve range is agreed between the seller and the auctioneer at the start of marketing. As the reserve is not fixed at this stage and can be adjusted by the seller at any time up to the day of the auction in the light of interest shown during the marketing period, a guide price is issued. This guide price can be shown in the form of a minimum and maximum price range within which an acceptable sale price (reserve) would fall, or as a single price figure within 10% of which the minimum acceptable price (reserve) would fall. A guide price is different to a reserve price (see separate definition). Both the guide price and the reserve price can be subject to change up to and including the day of the auction.

RESERVE PRICE

The seller's minimum acceptable price at auction and the figure below which the auctioneer cannot sell. The reserve price is not disclosed and remains confidential between the seller and the auctioneer. Both the guide price and the reserve price can be subject to change up to and including the day of the auction.

PRE AUCTION OFFERS

Some vendors are willing to consider offers prior to the auction.
Pre auction offers can ONLY be submitted by completing the online PRE AUCTION OFFER FORM
The form can be found on the Hollis Morgan website on the individual auction property listing.
Please note offers will not be considered until you have inspected the COMPLETE LEGAL PACK once it has been released.
There will be a note added to the list to confirm AUCTION PACK NOW COMPLETE when our client’s solicitor informs us no further information is due to be added.
In the event of an offer being accepted the property will only be removed from the online auction and viewings stopped once contracts have successfully EXCHANGED subject to the standard auction terms and payment of the buyer’s premium (£1,800 Inclusive of VAT) to Hollis Morgan.
Contracts can be exchanged via the solicitors or at the Hollis Morgan offices by appointment only.

REGISTRATION PROCESS

The registration process is extremely simple – visit the Hollis Morgan auction website and click on the “Register to Bid” button.
The “Register to Bid” button can be found on the auction home page or on the individual lot listings.
Please note this function is not available on Rightmove or Zoopla.

Stage 1 – Complete the Online Bidding Form
Stage 2 – Upload your certified ID
Stage 3 – Invitation to bid
Stage 4 – Pay your security deposit (£6,800)

You are now ready to bid – Good luck!

If your bid is successful, the balance of the deposit monies must be transferred to our client account within 24 hours of the auction sale.
If you are unsuccessful at the auction your holding deposit will be returned within 48 hours.

SURVEYS AND VALUATIONS

If you would like to arrange a survey or mortgage valuation of this Lot BEFORE the auction, please instruct your appointed surveyor to contact Hollis Morgan and we will arrange access for them to inspect the property. Please note that buyers CANNOT attend the surveys and the surveyors are responsible for collecting and returning keys to the Hollis Morgan offices in Clifton.

AUCTION FINANCE & BRIDGING LOANS

Some properties may require specialist auction finance- please contact Hollis Morgan for access to expert advice and whole of market rates from our independent brokers.

Hollis Morgan may receive introductory fees for this service from the broker.

AUCTION BUYER’S GUIDE VIDEO

We have short video guides for both buying and selling by Public Auction on the Hollis Morgan Website. If you have any further questions regarding the process, please don’t hesitate to contact Auction HQ.

2026 CHARITY OF THE YEAR

Hollis Morgan are proud to be supporting Bristol Schools Rugby Union as our 2026 Charity of the Year. BSRU ( working in association with Bristol Bears ) oversee and support rugby in all schools, State and Independent , in the Greater Bristol area. Bristol Schools provide School Rugby Development opportunities and County level fixtures for secondary boys and girls. Including playing fixtures at U18s against the leading Independent Schools in our region, schools such as Clifton College, BGS, QEH, Collegiate and Millfield. For more information and details of the fixture list please follow them on Instagram.

AUCTION PROPERTY DETAILS DISCLAIMER

Hollis Morgan endeavour to make our sales details clear, accurate and reliable in line with the Consumer Protection from Unfair Trading Regulations 2008 but they should not be relied on as statements or representations of fact, and they do not constitute any part of an offer or contract. All Hollis Morgan references to planning, tenants, boundaries, potential development, tenure etc is to be superseded by the information contained in the legal pack. It should not be assumed that this property has all the necessary Planning, Building Regulation, or other consents. Any services, appliances and heating system(s) listed have not been checked or tested. Please note that in some instances the photographs may have been taken using a wide-angle lens. The seller does not make any representation or give any warranty in relation to the property, and we have no authority to do so on behalf of the seller.


Local Information

Schools Stations Healthcare
Floorplan for DEVELOPMENT | PLANNING GRANTED Floorplan for DEVELOPMENT | PLANNING GRANTED Floorplan for DEVELOPMENT | PLANNING GRANTED Floorplan for DEVELOPMENT | PLANNING GRANTED