FOR SALE, Auction Guide Price +++ £150,000

Prencott, Harley Wood, Nailsworth, GL6 0LD

Bedrooms 3 Bathrooms 1 Reception 2

  • FOR SALE BY ONLINE AUCTION
  • WEDNESDAY 22ND APRIL 2026
  • VIDEO TOUR NOW ONLINE
  • VIEWINGS – REFER TO DETAILS
  • DOWNLOAD FREE LEGAL PACK
  • APRIL LIVE ONLINE AUCTION
  • FREEHOLD DETACHED COTTAGE
  • REQUIRES MODERNISATION
  • PLANNING GRANTED | EXTEND | 4 BEDS
  • EXTENDED 8 WEEK COMPLETION

FOR SALE BY LIVE ONLINE AUCTION

ADDRESS | Prencott, Harley Wood, Stroud, Gloucestershire GL6 0LD

Lot Number 26

The Live Online Auction is on Wednesday 22nd April 2026 @ 12:00 Noon
Registration Deadline is on Friday 17th April 2026 @ 16:00

The Auction will be streamed LIVE ONLINE via the Hollis Morgan website & you can choose to bid by telephone, proxy or via your computer.
Registration is a simple online process – please visit the Hollis Morgan auction website and click “REGISTER TO BID”

THE PROPERTY

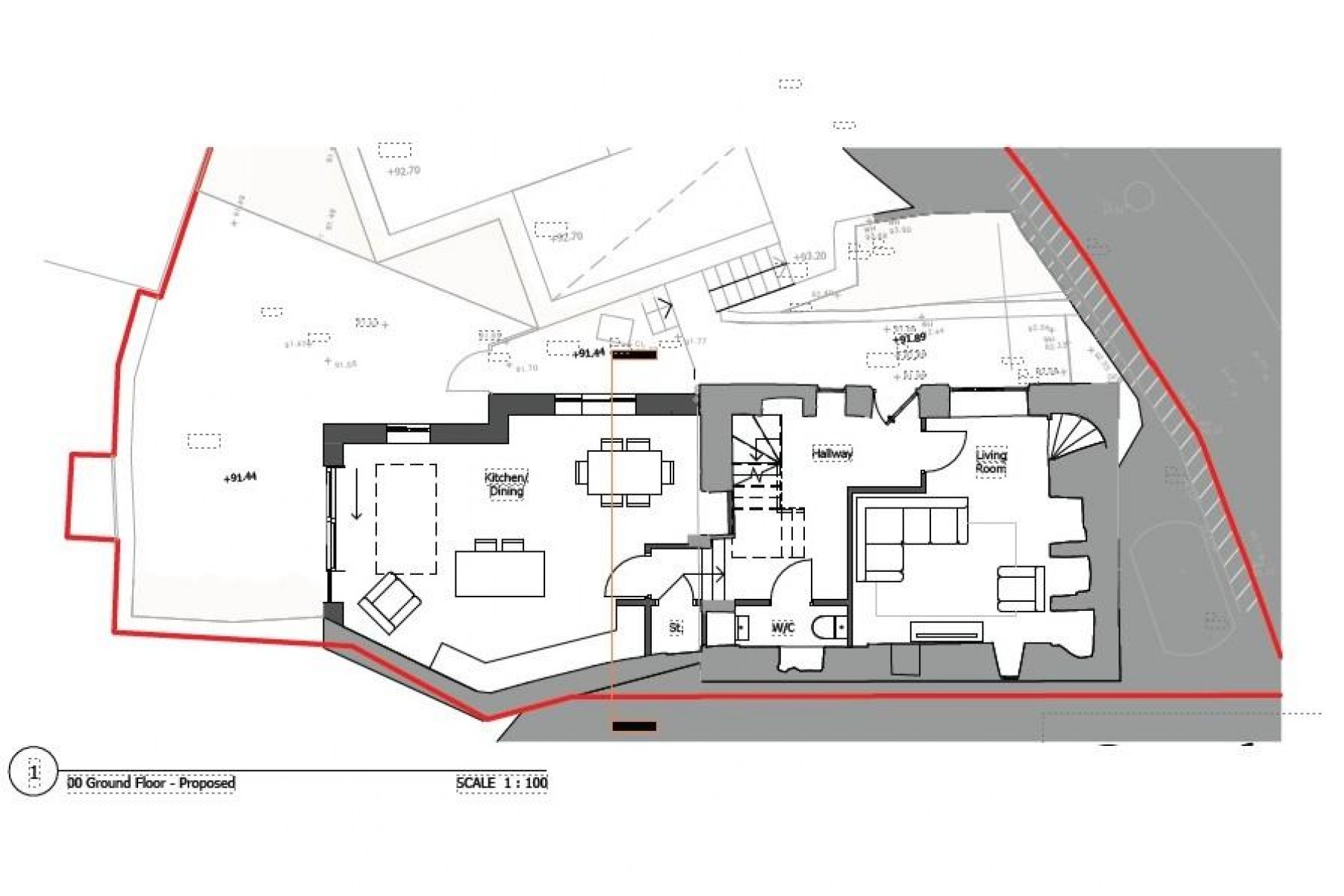
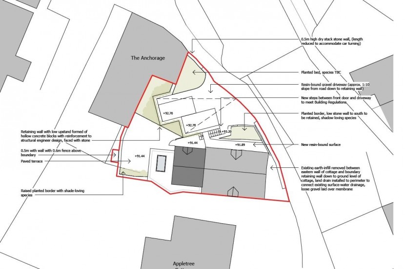
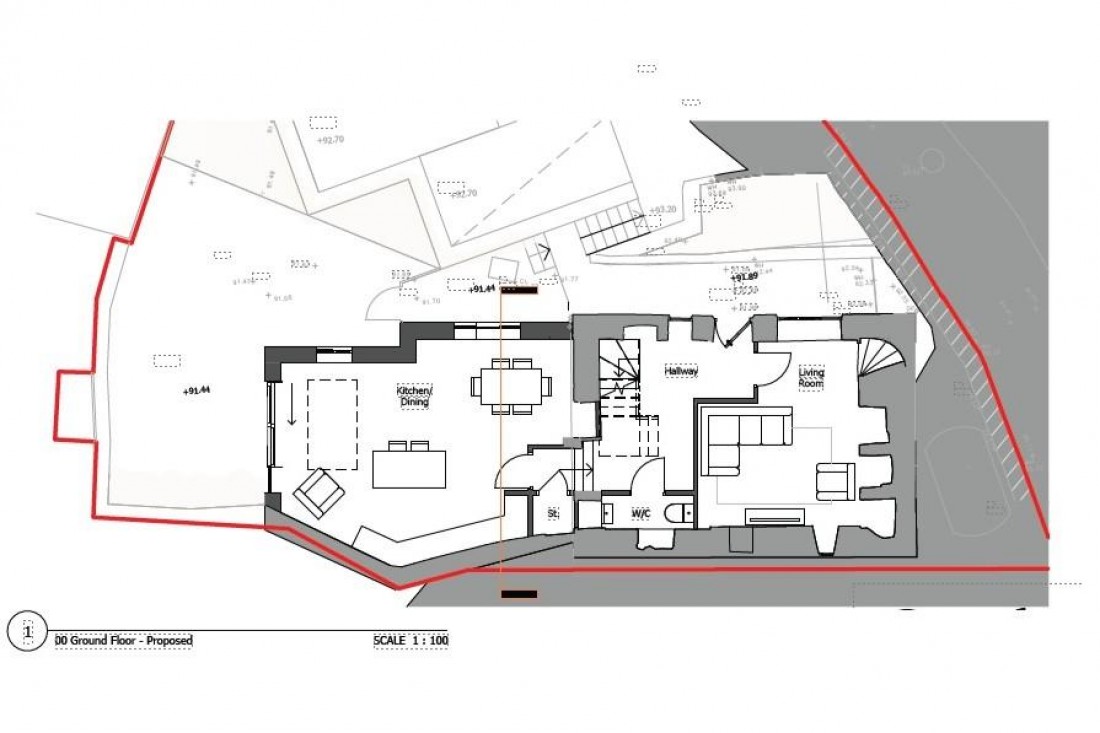
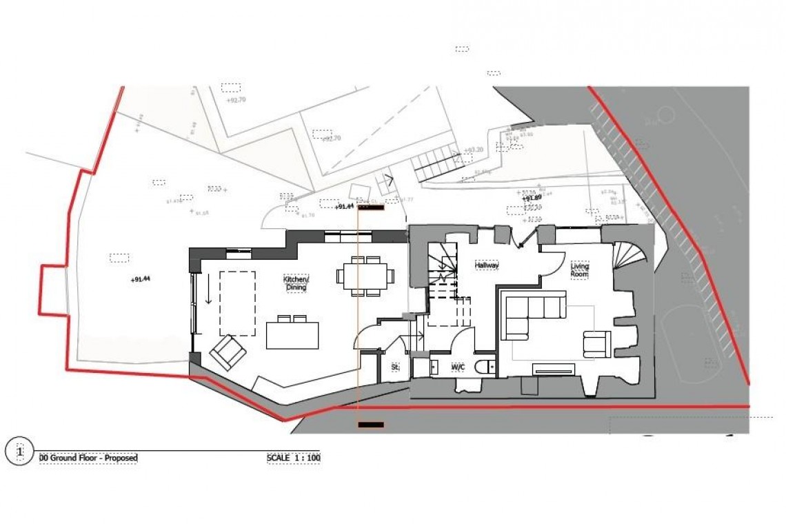
Prencott is a Freehold detached 3 bedroom cottage with accommodation ( 1351 Sq Ft ) arranged over three floors with the ground floor currently comprising 2 reception rooms, kitchen, breakfast room and bathroom with the 3 bedrooms on the upper floors. There is a large dilapidated single storey extension to the side plus ample space for parking alongside the overgrown gardens.
Sold with vacant possession.

Tenure - Freehold
Council Tax - C
EPC - F

THE OPPORTUNITY

3 BED COTTAGE | MODERNISATION

The property is vacant and now requires modernisation to create a fine 3 bedroom home or investment in this sought after Village location.
We understand the property is a non-designated heritage asset.

4 BED COTTAGE | PLANNING GRANTED

Planning ( S.24/0873/HHOLD ) has been granted to demolish the existing large side extension and to erect a two storey extension to transform the current layout.
The new scheme will have a generous open plan kitchen diner, additional bedroom ( 4 ) and 2 extra bathrooms.
Please refer to plans or proposed scheme.

REDUCED PRICE | AUCTION

The property was previously listed with respected local agents with a guide of £225k and now has a reduced price for sale by auction.

STRUCTURAL ENGINEER REPORT

Please note as part of obtaining planning permission, the vendor had a report on the property carried out by a chartered structural engineer.

A copy of this report is available to download in the online legal pack

We would recommend that buyers make their own investigations.

PLANNING GRANTED

ReferenceS.24/0873/HHOLD
Application ReceivedFri 10 May 2024
Application ValidatedFri 17 May 2024
AddressPrencott Harley Wood Nailsworth Stroud Gloucestershire GL6 0LD
ProposalDemolition of single storey extension and erection of a replacement two storey extension. Installation of roof lights and landscaping works.
StatusPermitted
DecisionPermission
Decision Issued DateTue 12 Nov 2024

PLANNING INFORMATION

Full details of the proposed scheme and drawings can be downloaded with the online legal pack.

LOCATION

Nailsworth is a popular Cotswold market town ideally located 4 miles south of Stroud, 25 miles north east of Bristol and Bath, and 19 miles south of Cheltenham. Stroud and Kemble train stations are also within a short drive and both have trains running directly to London Paddington station. The town centre is thriving with successful independent business, cafes, restaurants, supermarkets and a fortnightly Farmers Market. There are many outdoor and group activities for families to enjoy which include; local parks, tennis courts, two golf courses nearby in Minchinhampton, Forest Green & Shortwood Football Club, Nailsworth community shop, and walks along the Cycle Track to Stroud, Woodchester Mansion and Minchinhampton Common.

SOLICITORS & COMPLETION

Robert Morrison
Roberts Crossley Solicitors
01625 431111
Robert@rc.legal
https://www.robertssolicitors.co.uk/

EXTENDED COMPLETION

Completion is set for 8 weeks or earlier subject to mutual consent.

IMPORTANT AUCTION INFORMATION

VIEWINGS

Please submit a viewing request online and we will contact you to organise an appointment.
We will send you an email and text to confirm the appointment time and the full property address.
Viewings are supervised by a member of the Hollis Morgan Auction team who will meet you at the property.

MATERIAL INFORMATION

Information including utilities, Electricity supply, Water supply, Sewerage, Heating, Broadband, Mobile signal / coverage, Parking, Building safety, Restrictions and rights, Rights and easements, Flood risk, Erosion risk, Coastal erosion risk, Planning permission for proposal for development, Property accessibility / adaptations, Coalfield or mining area all of which will be supplied within the legal pack that can be accessed for free via the Hollis Morgan website or via your EIG account.

ONLINE LEGAL PACKS

Digital Copies of the Online legal pack can be downloaded Free of Charge.
Please visit the Hollis Morgan Website and select the chosen lot from our Current Auction List.
Press the GREEN button to "Download Legal Packs" For the first visit you will be required to register simply with your email and a password.
Having set up your account you can download legal packs or if they are not yet available, they will automatically be sent to you when they are uploaded.
You will be automatically updated by email if any new information is added.
There will be a note added to the list to confirm AUCTION PACK NOW COMPLETE when no further information is due to be added.
*** STAY UPDATED *** By registering for the legal pack we can ensure you are kept updated on any changes to this Lot in the build up to the sale.

BUYER’S PREMIUM

Please be aware all purchasers are subject to a £1,500 + VAT (£1,800 inc VAT) buyer's premium which is ALWAYS payable upon exchange of contracts whether the sale is concluded before, during or after the auction date.

GUIDE PRICE

An indication of the seller's current minimum acceptable price at auction. The guide price or range of guide prices is given to assist consumers in deciding whether to pursue a purchase. It is usual, but not always the case, that a provisional reserve range is agreed between the seller and the auctioneer at the start of marketing. As the reserve is not fixed at this stage and can be adjusted by the seller at any time up to the day of the auction in the light of interest shown during the marketing period, a guide price is issued. This guide price can be shown in the form of a minimum and maximum price range within which an acceptable sale price (reserve) would fall, or as a single price figure within 10% of which the minimum acceptable price (reserve) would fall. A guide price is different to a reserve price (see separate definition). Both the guide price and the reserve price can be subject to change up to and including the day of the auction.

RESERVE PRICE

The seller's minimum acceptable price at auction and the figure below which the auctioneer cannot sell. The reserve price is not disclosed and remains confidential between the seller and the auctioneer. Both the guide price and the reserve price can be subject to change up to and including the day of the auction.

PRE AUCTION OFFERS

Some vendors are willing to consider offers prior to the auction.
Pre auction offers can ONLY be submitted by completing the online PRE AUCTION OFFER FORM
The form can be found on the Hollis Morgan website on the individual auction property listing.
Please note offers will not be considered until you have inspected the COMPLETE LEGAL PACK once it has been released.
There will be a note added to the list to confirm AUCTION PACK NOW COMPLETE when our client’s solicitor informs us no further information is due to be added.
In the event of an offer being accepted the property will only be removed from the online auction and viewings stopped once contracts have successfully EXCHANGED subject to the standard auction terms and payment of the buyer’s premium (£1,800 Inclusive of VAT) to Hollis Morgan.
Contracts can be exchanged via the solicitors or at the Hollis Morgan offices by appointment only.

REGISTRATION PROCESS

The registration process is extremely simple – visit the Hollis Morgan auction website and click on the “Register to Bid” button.
The “Register to Bid” button can be found on the auction home page or on the individual lot listings.
Please note this function is not available on Rightmove or Zoopla.

Stage 1 – Complete the Online Bidding Form
Stage 2 – Upload your certified ID
Stage 3 – Invitation to bid
Stage 4 – Pay your security deposit (£6,800)

You are now ready to bid – Good luck!

If your bid is successful, the balance of the deposit monies must be transferred to our client account within 24 hours of the auction sale.
If you are unsuccessful at the auction your holding deposit will be returned within 48 hours.

SURVEYS AND VALUATIONS

If you would like to arrange a survey or mortgage valuation of this Lot BEFORE the auction, please instruct your appointed surveyor to contact Hollis Morgan and we will arrange access for them to inspect the property. Please note that buyers CANNOT attend the surveys and the surveyors are responsible for collecting and returning keys to the Hollis Morgan offices in Clifton.

AUCTION FINANCE & BRIDGING LOANS

Some properties may require specialist auction finance- please contact Hollis Morgan for access to expert advice and whole of market rates from our independent brokers.

Hollis Morgan may receive introductory fees for this service from the broker.

AUCTION BUYER’S GUIDE VIDEO

We have short video guides for both buying and selling by Public Auction on the Hollis Morgan Website. If you have any further questions regarding the process, please don’t hesitate to contact Auction HQ.

2026 CHARITY OF THE YEAR

Hollis Morgan are proud to be supporting Bristol Schools Rugby Union as our 2026 Charity of the Year. BSRU ( working in association with Bristol Bears ) oversee and support rugby in all schools, State and Independent , in the Greater Bristol area. Bristol Schools provide School Rugby Development opportunities and County level fixtures for secondary boys and girls. Including playing fixtures at U18s against the leading Independent Schools in our region, schools such as Clifton College, BGS, QEH, Collegiate and Millfield. For more information and details of the fixture list please follow them on Instagram.

AUCTION PROPERTY DETAILS DISCLAIMER

Hollis Morgan endeavour to make our sales details clear, accurate and reliable in line with the Consumer Protection from Unfair Trading Regulations 2008 but they should not be relied on as statements or representations of fact, and they do not constitute any part of an offer or contract. All Hollis Morgan references to planning, tenants, boundaries, potential development, tenure etc is to be superseded by the information contained in the legal pack. It should not be assumed that this property has all the necessary Planning, Building Regulation, or other consents. Any services, appliances and heating system(s) listed have not been checked or tested. Please note that in some instances the photographs may have been taken using a wide-angle lens. The seller does not make any representation or give any warranty in relation to the property, and we have no authority to do so on behalf of the seller.


Local Information

Schools Stations Healthcare
Floorplan for DETACHED COTTAGE | MODERNISATION | GL6 Floorplan for DETACHED COTTAGE | MODERNISATION | GL6 Floorplan for DETACHED COTTAGE | MODERNISATION | GL6