SOLD STC £2,000,000

The Old Chapel, 14 Fair View Drive, Redland, BS6 6PH

Bedrooms 22 Bathrooms 16 Reception 12

  • RARE CONVERSION OPPORTUNITY IN REDLAND
  • DETAILED PLANNING PERMISSION
  • 12 x LUXURY APARTMENTS
  • MULTIPLE APARTMENTS WITH OUTDOOR SPACE
  • GIA: 8034 SqFt / 746.4 SqM
  • GDV Range: £4,625,000 to £4,855,000
  • FREEHOLD SALE
  • SOLD VIA INFORMAL TENDER
  • OFFERS INVITED BY 31ST MARCH 2026
  • UNCONDITIONAL OFFERS ONLY

INTRODUCTION

Hollis Morgan Land & Development have been appointed on the sale of this rare development project in the prime location of Redland; The Old Chapel, 14 Fair View Drive, Redland, Bristol, BS6 6PH

THE PROPERTY

ADDRESS: The Old Chapel, 14, Fair View Drive Redland, Bristol, BS6 6PH

Tenure - Freehold

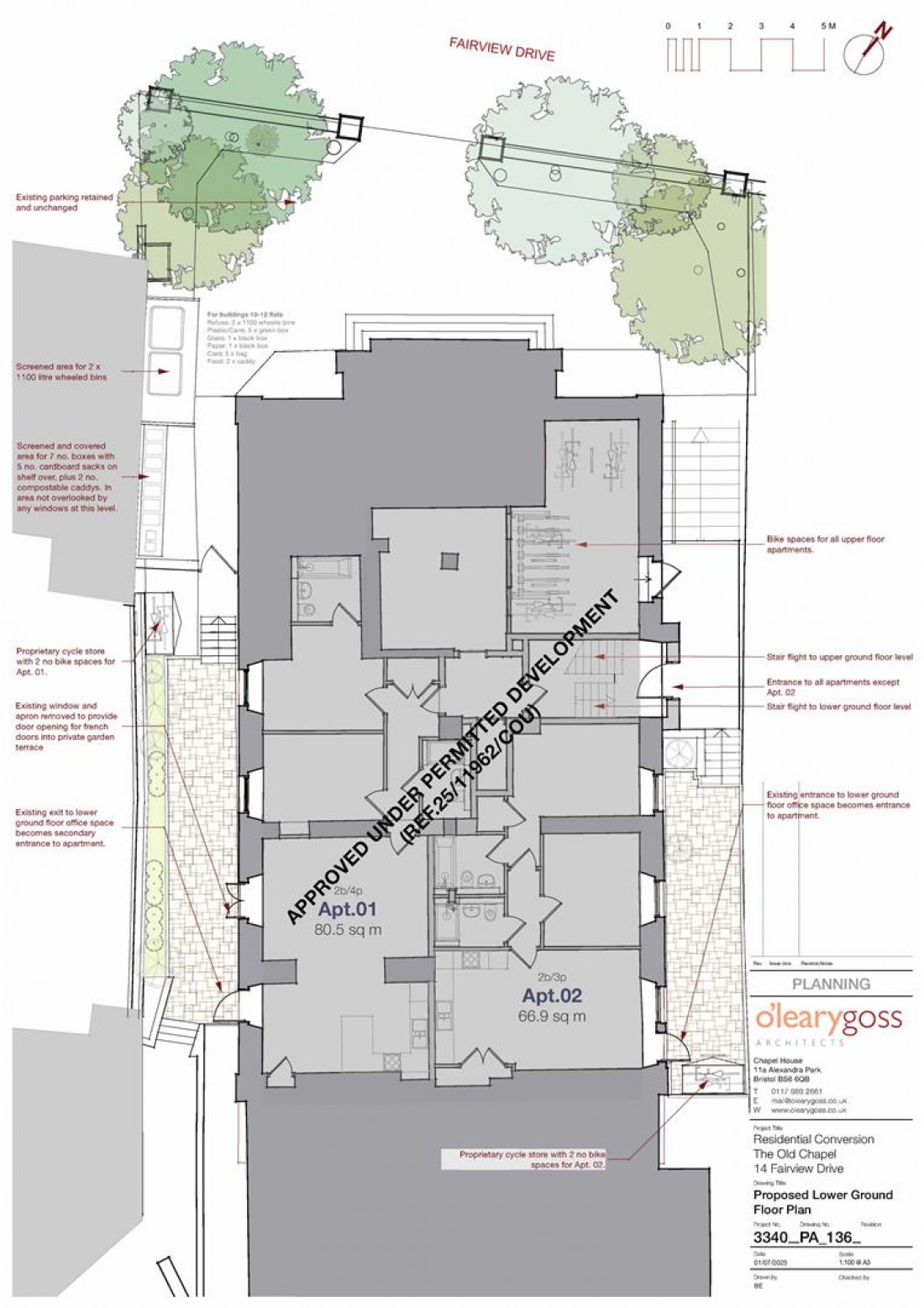
PARKING
- 3 parking spaces at the front of the building, with potential for a 4 subject to layout.
- Potential for EV chargers
- Residential Permits available, we anticipate 10 of the 12 apartments will be eligible.

TECHNICAL DESIGN
Our client is working with the architect, Robert O’Leary of O’Leary Goss Architects and the Structural Engineers Goss & Parker to progress the technical design and is approximately 50% progressed, with the aim of demonstrating a lower build cost. More information on this is available in the Data Room.

The regular building form and structural layout lend themselves well to efficient residential conversion.

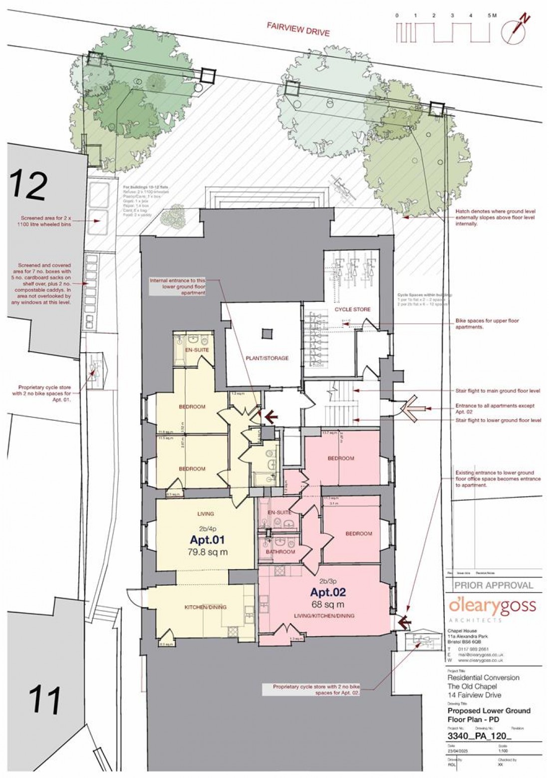
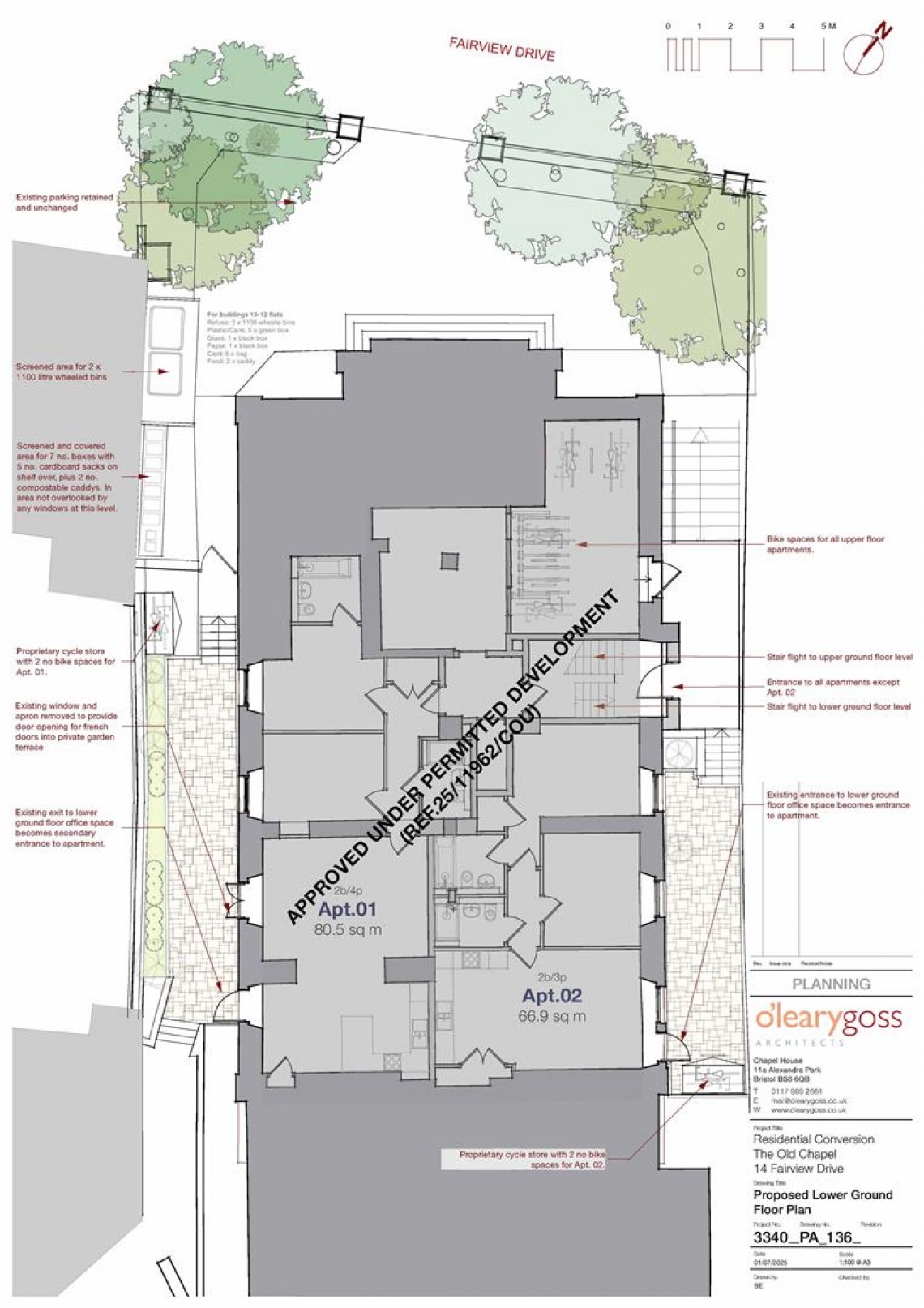
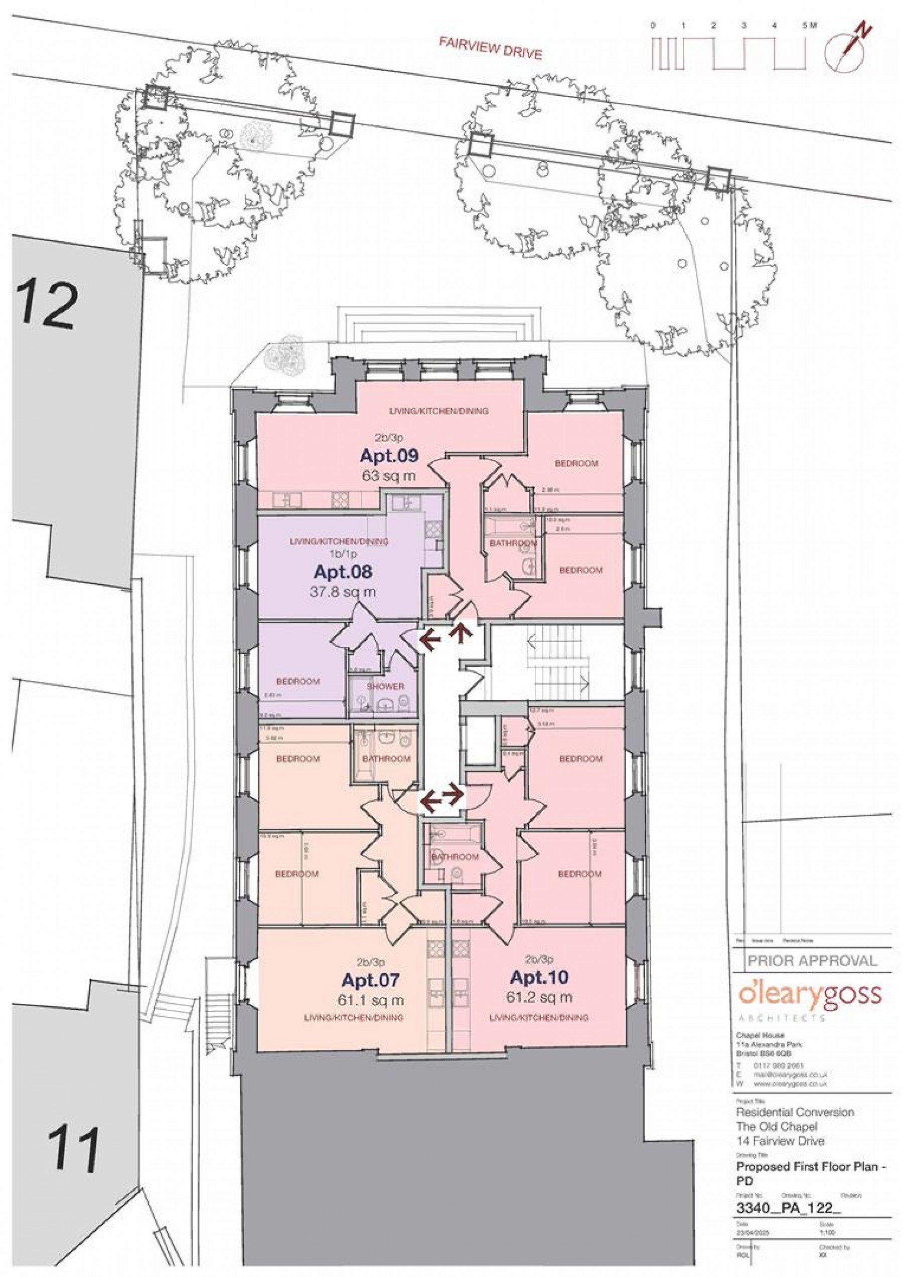
LOWER GROUND GARDEN APARTMENTS
It’s important to note the Lower Ground Floor apartments will benefit
from their own private accesses and gardens.

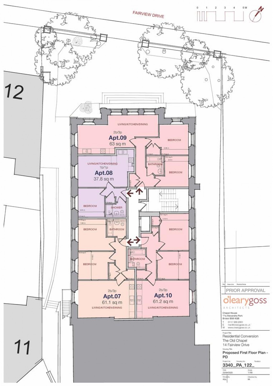
SECOND FLOOR APARTMENTS
The two second-floor penthouse apartments will benefit from
balconies at an elevated position, with far-reaching views across
Bristol’s skyline.

CIL
CIL is not applicable over the 10 x apartments that formed part of the
Prior Approval consent, however there is a CIL payment due for the
additional 2 x apartments in the roof. The CIL total is £21,375 to be
payable by the purchaser (subject to indexation).

HEATING
There will be Gas Central Heating in the Lower Ground, Upper Ground
and First Floor apartments. Air Source Heat Pumps on the Top Floor.

HIGH CEILINGS
The property benefits from 3m to 4m high ceilings across the Lower
Ground, Upper Ground and First Floors, and up to 2.8m on the Second
Floor. These exceptional ceiling heights create the opportunity for
outstanding living spaces.

COPYRIGHT & RELIANCE
Copyright and Letters of Reliance will be provided upon Completion.

VAT
We understand the building is not elected for VAT.

VACANT POSSESSION
Available from 18 July 2026

THE OPPORTUNITY

This property has the benefit of detailed planning consent via a Prior Approval application for 10 x apartments within the Lower Ground, Upper Ground and First Floors, with a separate detailed approval for the conversion of the roof space into 2 x apartments with balconies.

This development offers the purchaser a chance to create a unique scheme of high-end apartments in one of Bristol’s premier locations that will likely be extremely sought after in the sales market.

We are seeking Unconditional offers via an Informal Tender bid process, ending 31 March 2026.

LOCATION

The Old Chapel is situated in Redland, one of Bristol’s premier residential areas.

With a Michelin starred restaurant on the same street (Wilson’s), it’s easy to see why this is such a highly desirable neighbourhood.

The Old Chapel is within easy walking distance of Redland railway station, Redland Road, Hampton Road and Whiteladies Road, giving it excellent transport links to the rest of the city. This quiet residential part of Redland, is within minutes of several well known restaurants, wine bars, pubs and cafes on Chandos Road.

Redland remains one of Bristol’s strongest residential markets with continued demand for high-quality apartments from professionals and downsizers.

PLANNING OVERVIEW

The building benefits from two consents:

- Prior Approval consent for conversion to 10 no. apartments over Lower Ground, Ground and First floors, plus
- Detailed Planning consent for 2 no. apartments on the Second Floor

References:
Prior Approval: 25/11962/COU - Granted June 2025
Detailed Consent: 25/13037/F - Granted February 2026

Full details of the proposed scheme and drawings can be downloaded with the online Data Room

METHOD OF SALE

The site is to be sold by informal tender, Subject to Contract. Unconditional bids are sought on the basis of the current detailed consent for 12 apartments.

Parties are invited to submit their bid with a closing date of 12noon on Tuesday 31 March 2026.

Bids are to be emailed directly to:
patrick@hollismorgan.co.uk

DETAILS TO ACCOMPANY BID

As part of your bid, please provide:

Proof of finance
Price
Payment profile relating to any deferred payments.
Conditions of the purchase
Timescales for purchase

If you wish to submit an alternative payment structure or Joint Venture proposal, this will be considered.

SITE VISITS

Internal inspections are to be arranged with Hollis Morgan.

SALES VALUES

Please contact our Director, Daniel Harris from the Hollis Morgan New Homes team for bespoke pricing appraisals and market information:

Daniel Harris
New Homes Director
E: dan@hollismorgan.co.uk
T: 07779 151505
T: 0117 973 6565 Option 2


CONTACT DETAILS
For more information, please contact Patrick Addison of Hollis Morgan Land & Development:

Patrick Addison
Land & Development Director
E: patrick@hollismorgan.co.uk
T: 07795 461600
T: 0117 973 6565, Option 3

DISCLAIMER

Hollis Morgan endeavour to make our sales details clear, accurate and reliable in line with the Consumer Protection from Unfair Trading Regulations 2008 but they should not be relied on as statements or representations of fact, and they do not
constitute any part of an offer or contract. All Hollis Morgan references to planning, tenants, boundaries, potential development, tenure etc is to be superseded by the information contained in the legal pack. It should not be assumed that this property
has all the necessary Planning, Building Regulation, or other consents. Any services, appliances and heating system(s) listed have not been checked or tested. Please note that in some instances the photographs may have been taken using a wide-angle
lens. The seller does not make any representation or give any warranty in relation to the property, and we have no authority to do so on behalf of the seller.


Local Information

Schools Stations Healthcare
Floorplan for DEVELOPMENT | CONVERSION | REDLAND Floorplan for DEVELOPMENT | CONVERSION | REDLAND Floorplan for DEVELOPMENT | CONVERSION | REDLAND Floorplan for DEVELOPMENT | CONVERSION | REDLAND Floorplan for DEVELOPMENT | CONVERSION | REDLAND Floorplan for DEVELOPMENT | CONVERSION | REDLAND