FOR SALE Offers Invited £600,000

Land off, Home Farm Lane, Rimpton, BA22 8AS

Bedrooms 12 Bathrooms 6 Reception 12

  • FREEHOLD LAND OPPORTUNITY
  • APPROX. 1.0 ACRES
  • OUTLINE PLANNING GRANTED
  • UP TO 6 X DETACHED DWELLINGHOUSES
  • NOT LIMITED TO BUNGALOWS
  • POTENTIAL TO PUT YOUR STAMP ON THE DESIGN
  • SOLD VIA INFORMAL TENDER
  • OFFERS INVITED BY 18TH MARCH 2026
  • SUBJECT TO RESERVED MATTERS OFFERS CONSIDERED

INTRODUCTION

Hollis Morgan Land & Development have been appointed on the sale of the subject land that sits at the rear of the property ‘Tree Tops’ on Home Farm Lane, Rimpton,
Somerset, BA22 8AS. The site has the benefit of Outline Planning Consent for 6 x detached dwellinghouses granted in December 2025 and is approx. 1.0 acres in size.

Rimpton is a small and attractive Somerset village, with easy links to both the A303, A37 and both Yeovil and Sherborne.

THE PROPERTY

ADDRESS | Land at Tree Tops, Home Farm Lane Rimpton, Yeovil, Somerset, BA22 8AS

DRAINAGE
The proposed drainage strategy includes soakaways at therear of the properties and a foul drainage connection in the road outside the site. This is referenced within the FRA & Drainage Assessment report, found on the Planning Portal and within the Data Room, along with Wessex Water maps which are also in the Data Room.

TREE PRESERVATION ORDER (TPO)
There are TPOs at the NE boundary (see Data Room)

PLANNING CONSULTANT
The Sellers would recommend Stephen Bainbridge of GTH.

PHOSPHATE CREDITS
Credits have been reserved and allocated through the provider, WCI Group Ltd.
The certificate & Heads of Terms for this are on the Planning Portal and within the Data Room, along with the associated sales invoice.

The costs associated with the credits are: £83,040 inclusive of VAT, with a 10% deposit of £8,304 inc. VAT already having been paid by the landowners. Parties are to account for the rest within their offer.

CIL
CIL will be applicable on the site, determined during the Reserved Matters Application process. Parties are to make their own investigations on the anticipated costs and account for this within their offer.

THE OPPORTUNITY

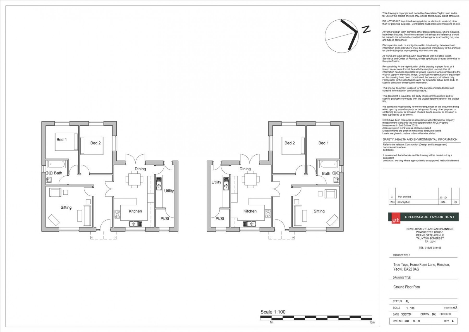
This site has been designed in the outline consent plans as 6 x bungalows, however it is not restricted to this as the wording of the consent allows for Dwellinghouses, plus there are no restrictions on the height of the homes, thereby giving the purchaser the ability to seek consent via the Reserved Matters process for two storey dwellings if they wish to maximise value, whether that be houses or chalet style bungalows.

The site benefits from views of the countryside to the south and west, so parties are encouraged to embrace this as part of their Reserved Matters scheme design.

The land is to be sold by informal tender, Subject to Contract.

PROPOSED GDV

The outline consent includes plans for 6 x two bedroom bungalows, however it is expected that a more varied scheme of units could be designed through the Reserved Matters process, including larger bungalows, houses and/or chalet style homes.

Based on the 6 x Bungalows, we anticipate a minimum GDV of £2,100,000 to £2,200,000 based on the bungalows being worth between £350,000 to £370,000 each., but this could be substantially improved upon via a mixed scheme of larger properties (subject to necessary consents).

PLANNING INFORMATION

Full details of the proposed scheme and drawings can be downloaded with the online legal pack.

Reference:
25/00259/OUT (Somerset Council - Area South)

Proposal:
Outline planning permission with all matters reserved save for access for the erection of up to six dwellinghouses

Decision:
Approved 9 December 2025

LOCATION

The property is set within the highly sought-after Somerset village of Rimpton, a vibrant community conveniently placed between Sherborne, Yeovil and the A303.

Transport links are strong, with mainline railway stations at Sherborne and Castle Cary providing direct services to London Waterloo and London Paddington, and the A303 at Sparkford giving swift road access to London and the Home Counties via the M3 and M25. Bristol is just over an hour away via the A37, north of the A303

VIEWINGS

The site can be seen from Back Lane, however it holds livestock, so contact us to prior to walking the site.

METHOD OF SALE

The site is to be sold by informal tender, Subject to Contract.

Unconditional bids on the basis of the Outline Consent are preferred, however Subject to Planning offers will also be considered.

Parties are invited to submit their bid with a closing date of 12noon on Wednesday 18 March 2026.

Bids are to be emailed directly to:
patrick@hollismorgan.co.uk

DETAILS TO ACCOMPANY BIDS

As part of your bid, please provide:
Proof of finance
Price
Any suggested ratchet mechanism based on unit sizes,
and/or Overage provision
Conditions of the purchase
Timescales for purchase
Timescales for submission of planning
Evidence of planning track record (if Subject to
Planning)

DISCLAIMER

Hollis Morgan endeavour to make our sales details clear, accurate and reliable in line with the Consumer Protection from Unfair Trading Regulations 2008 but they should not be relied on as statements or representations of fact, and they do not
constitute any part of an offer or contract. All Hollis Morgan references to planning, tenants, boundaries, potential development, tenure etc is to be superseded by the information contained in the legal pack. It should not be assumed that this property
has all the necessary Planning, Building Regulation, or other consents. Any services, appliances and heating system(s) listed have not been checked or tested. Please note that in some instances the photographs may have been taken using a wide-angle
lens. The seller does not make any representation or give any warranty in relation to the property, and we have no authority to do so on behalf of the seller.


Local Information

Schools Stations Healthcare
Floorplan for OUTLINE PLANNING | 6 x DWELLINGHOUSES Floorplan for OUTLINE PLANNING | 6 x DWELLINGHOUSES