FOR SALE, Asking Price £275,000

Development Site @, 102 Wick Road, Brislington, BS4 4HF

Bedrooms 8 Bathrooms 6 Reception 5

  • PRIME DEVELOPMENT OPPORTUNITY
  • GARAGE WORKSHOP
  • VIRTUAL TOUR NOW ONLINE
  • VIEWINGS – REFER TO DETAILS
  • LEGAL PACK AVAILABLE
  • FREEHOLD GARAGE & WORKSHOP
  • PLANNING GRANTED
  • PROPOSED GDV | £1.5m
  • 5 x FLATS
  • PREVIOUSLY LET FOR £1750 to £2000 PCM

THE SITE

A Freehold corner plot on the corner of Wick Road and Malvern Road.
Sold with vacant possession.

Tenure - Freehold

THE OPPORTUNITY

GARAGE + WORKSHOP WITH PLANNING GRANTED

As a former car garage, there is an inspection chamber within the main garage, plus tanks in the ground. Removal quotes for the tanks are available on request.

The garage was previously let for £1750 to £2000 PCM.

Planning consent ( 22/04510/F ) was granted to demolish the existing garage and erect a mixed use block of 5 self contained flats ( 3 x 2 Bed | 2 x 1 Beds ) plus a Class E retail unit,
CIL: £24,911.53 before indexation.

Potential for the ground floor Class E retail unit to be converted to an additional residential dwelling, under permitted development rights | subject to consents


PROPOSED GDV | £1.5m

Retail £130,000
1 £315,000
2 £245,000
3 £295,000
4 £235,000
5 £280,000

Please contact the Hollis Morgan New Homes Team to discuss GDV and resale options of the completed units.

REMOVAL OF UNDERGROUND TANKS

Please note the vendor has obtained three different quotes to remove any underground oil tanks

A copy of each quote is available to download from the online legal pack

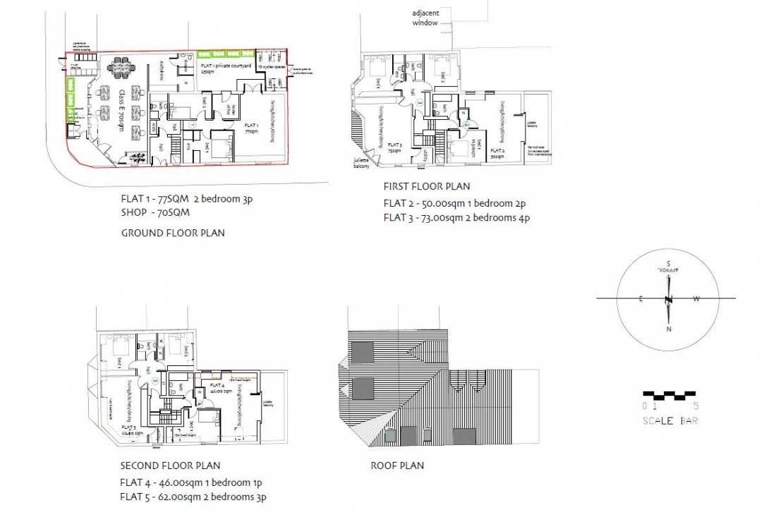
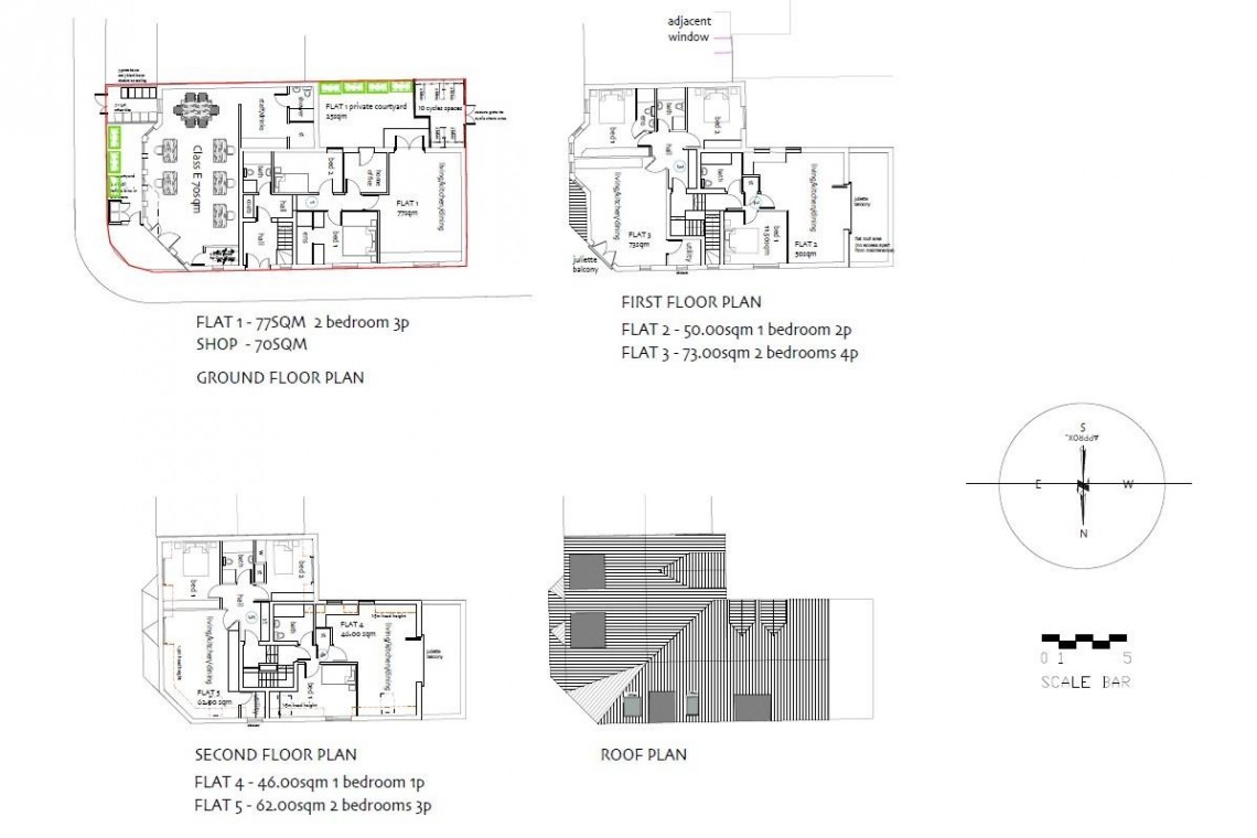
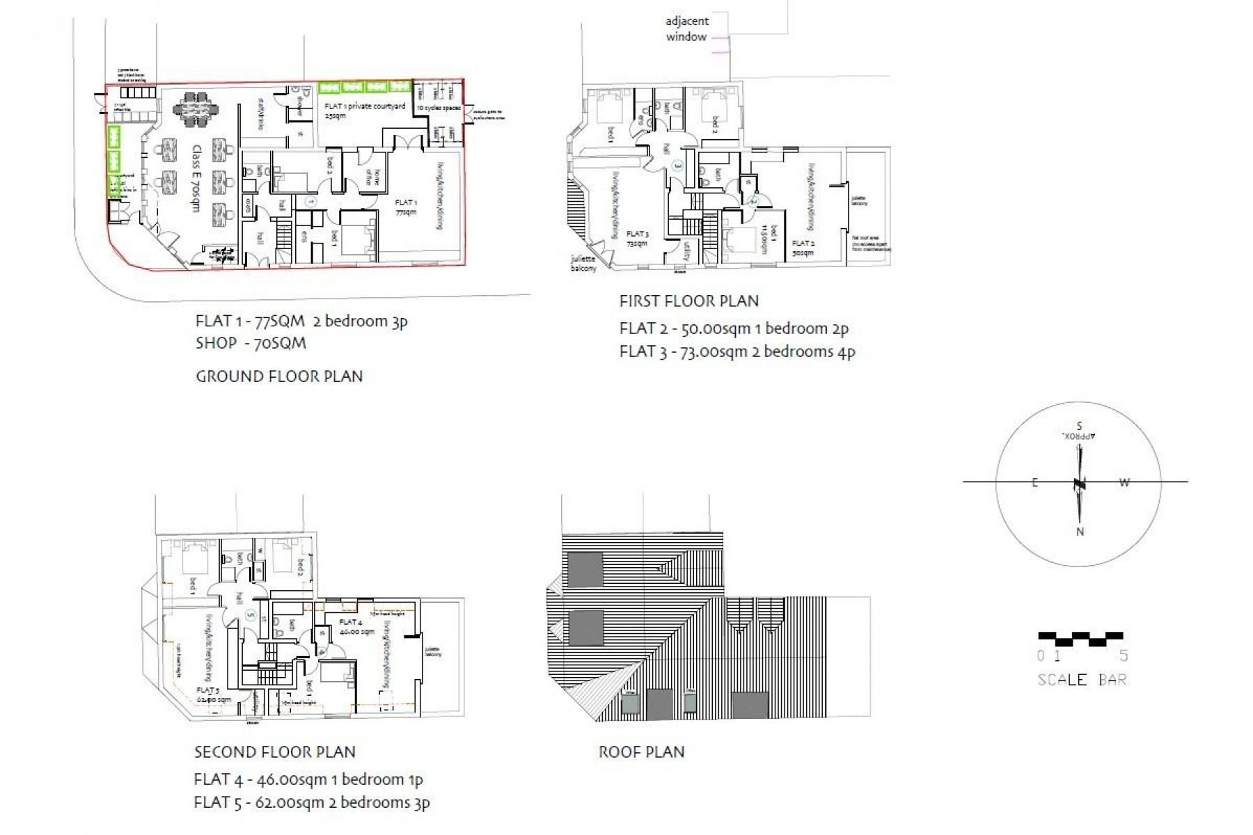
PROPOSED SCHEDULE OF DEVELOPMENT & GDV

GROUND FLOOR

Commercial Unit - 70 Sq M | Class E
Flat 1 - 77 Sq M | 2 Bed | 2 Bath | Private Courtyard

FIRST FLOOR

Flat 2 - 50 Sq M | 1 Bed | 1 Bath | Juliet Balcony / Terrace
Flat 3 - 73 Sq M | 2 Bed | 2 Bath | Juliet Balcony / Terrace

TOP FLOOR

Flat 4 - 46 Sq M | 1 Bed | 1 Bath | Juliet Balcony / Terrace
Flat 5 - 62 Sq M | 2 Bed | 1 Bath |

PLANNING GRANTED

Reference22/04510/F
Alternative ReferencePP-11529470
Application ReceivedThu 15 Sep 2022
Application ValidatedThu 22 Sep 2022
AddressPetrol Garage 102 Wick Road Bristol BS4 4HF
ProposalDemolition of the existing garages and erection of a Mixed-Use development comprising five residential units and ground floor office Space.
StatusDecided
DecisionGRANTED subject to condition(s)
Decision Issued DateMon 23 Oct 2023

PLANNING INFORMATION

Full details of the proposed scheme and drawings can be downloaded with the online legal pack.

RENTAL APPRAISAL

What rent can we achieve for you?

The Bristol Residential Letting Co. are confident this property would make a good rental investment if brought to a standard suitable for the professional rental market. Danny Dean of The Bristol Residential Letting Co suggests a rent in the region of;

Development Site @, 102, Wick Road, 2 beds - £1500pcm - £1600pcm | 1 beds - £1200pcm- £1300pcm

If you would like to discuss more detail on the potential for rental, you can call me on 07738766640 or email (danny@bristolreslet.com) for a no obligation discussion. I am always happy to advise investors on maximising their investment.

LOCATION

The property is located close to the vibrant Sandy Park High Street within the popular suburb of Brislington. Local amenities and services are all within close proximity including convenience stores, cafes, bars and restaurants. Bristol City Centre is approximately two miles away.

SOLICITORS & COMPLETION

LEGAL PACK

Available upon request.

SELLERS SOLICITORS

Jodie Lang
Taylor Rose
01733 304 979
jodie.lang@taylor-rose.co.uk
https://www.taylor-rose.co.uk/


EXTENDED COMPLETION

Completion is set for 8 weeks or earlier subject to mutual consent.

PROPERTY DETAILS DISCLAIMER

PROPERTY DETAILS DISCLAIMER

Hollis Morgan endeavour to make our sales details clear, accurate and reliable in line with the Consumer Protection from Unfair Trading Regulations 2008 but they should not be relied on as statements or representations of fact, and they do not constitute any part of an offer or contract. All Hollis Morgan references to planning, tenants, boundaries, potential development, tenure etc is to be superseded by the information contained in the legal pack. It should not be assumed that this property has all the necessary Planning, Building Regulation, or other consents. Any services, appliances and heating system(s) listed have not been checked or tested. Please note that in some instances the photographs may have been taken using a wide-angle lens. The seller does not make any representation or give any warranty in relation to the property, and we have no authority to do so on behalf of the seller.


Local Information

Schools Stations Healthcare
Floorplan for GARAGE WORKSHOP WITH PLANNING Floorplan for GARAGE WORKSHOP WITH PLANNING