FOR SALE £650,000

100, Walton Road, Clevedon, BS21 6AN

Bedrooms 4 Bathrooms 2 Reception 3

  • GUIDE PRICE - £550,000 to £650,000
  • OFFERS INVITED | PRIVATE TREATY
  • FAMILY HOME plus planning for NEW BUILD
  • PLANNING GRANTED
  • EXISTING HOUSE - PROPOSED GIA: 1622 SqFt
  • NEW HOUSE - PROPOSED GIA: 1268 SqFt
  • PROPOSED GDV £1,150,000 to £1,200,000
  • FREEHOLD SALE | VACANT POSSESSION
  • VIEWINGS – REFER TO DETAILS

THE PROPERTY

ADDRESS | 100 Walton Road Clevedon, BS21 6AN

This Freehold family home is for sale via Private Treaty and is sold with Vacant Possession.

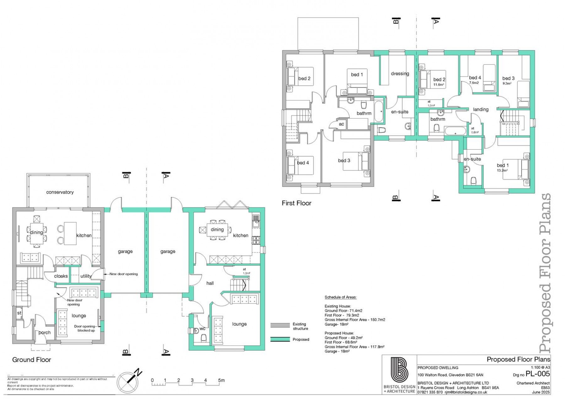
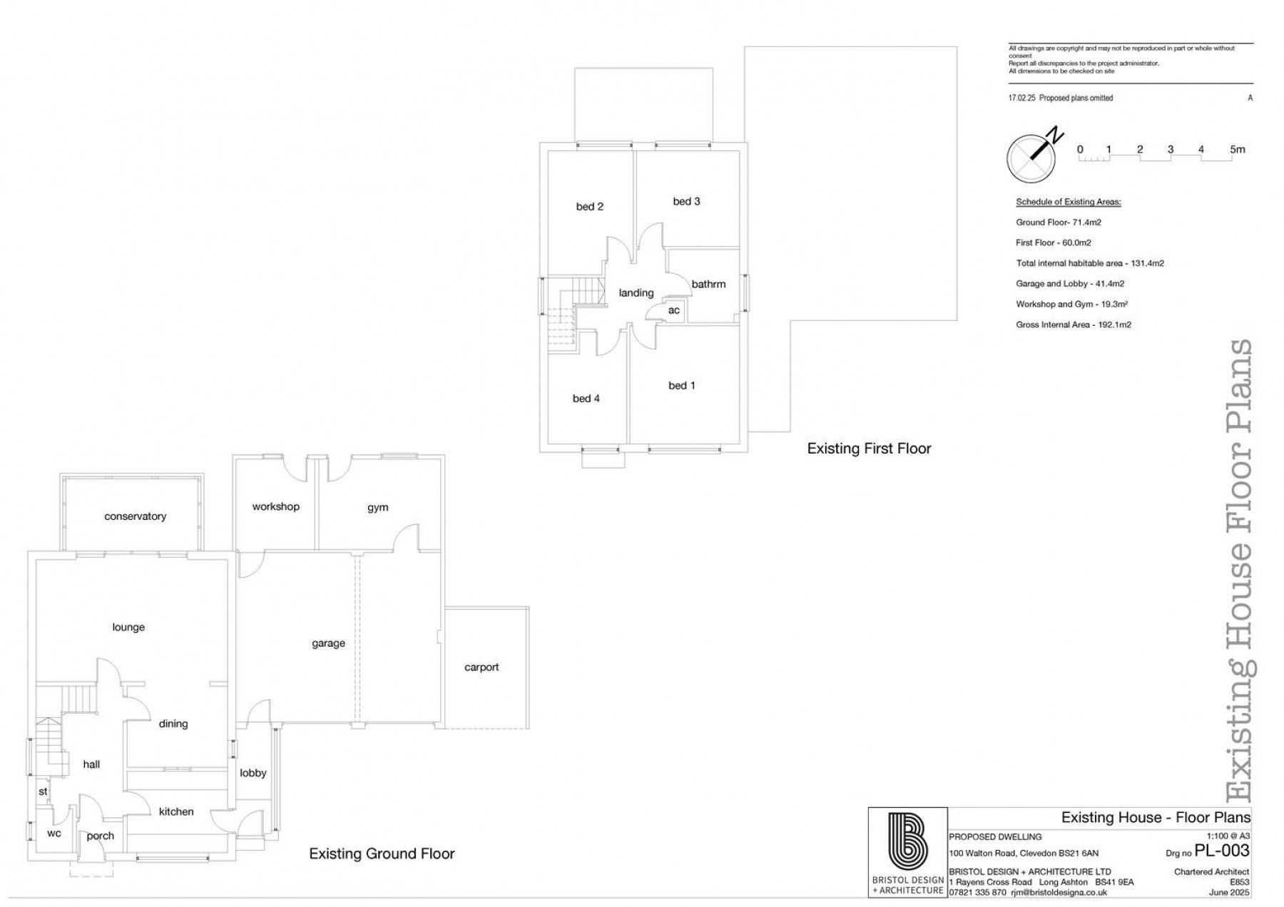
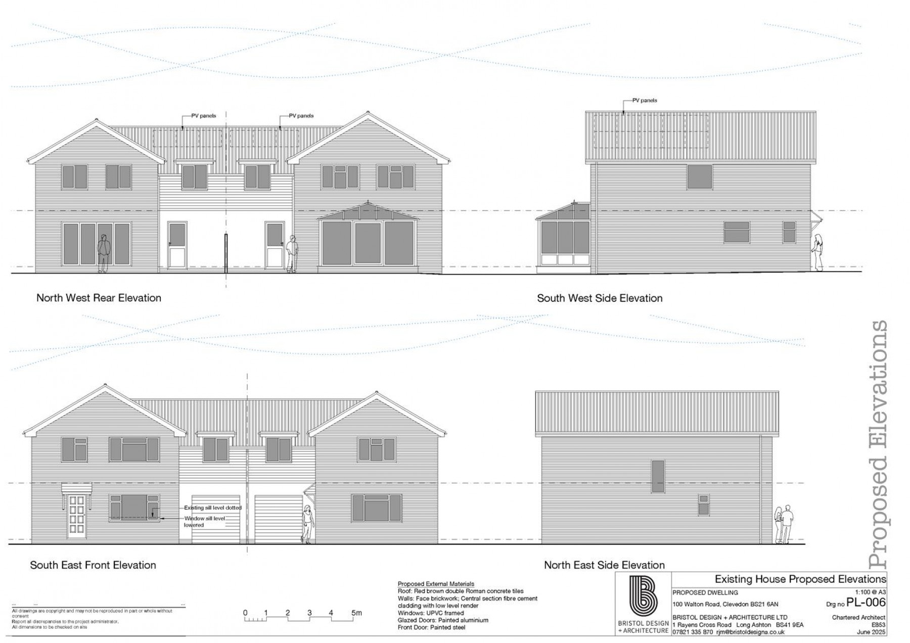
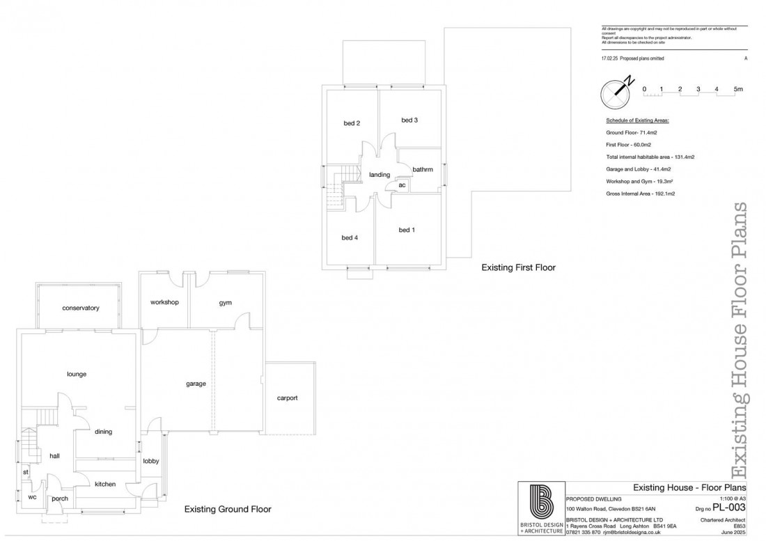
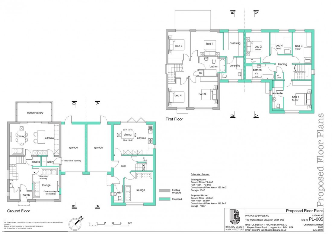
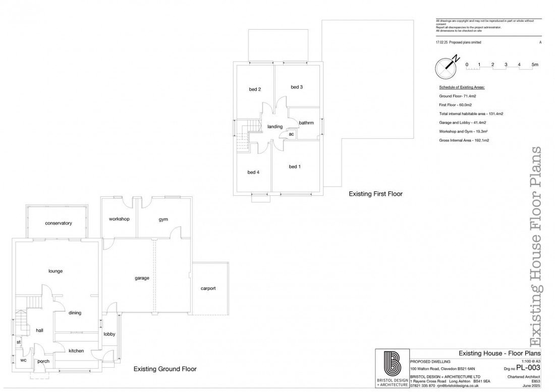
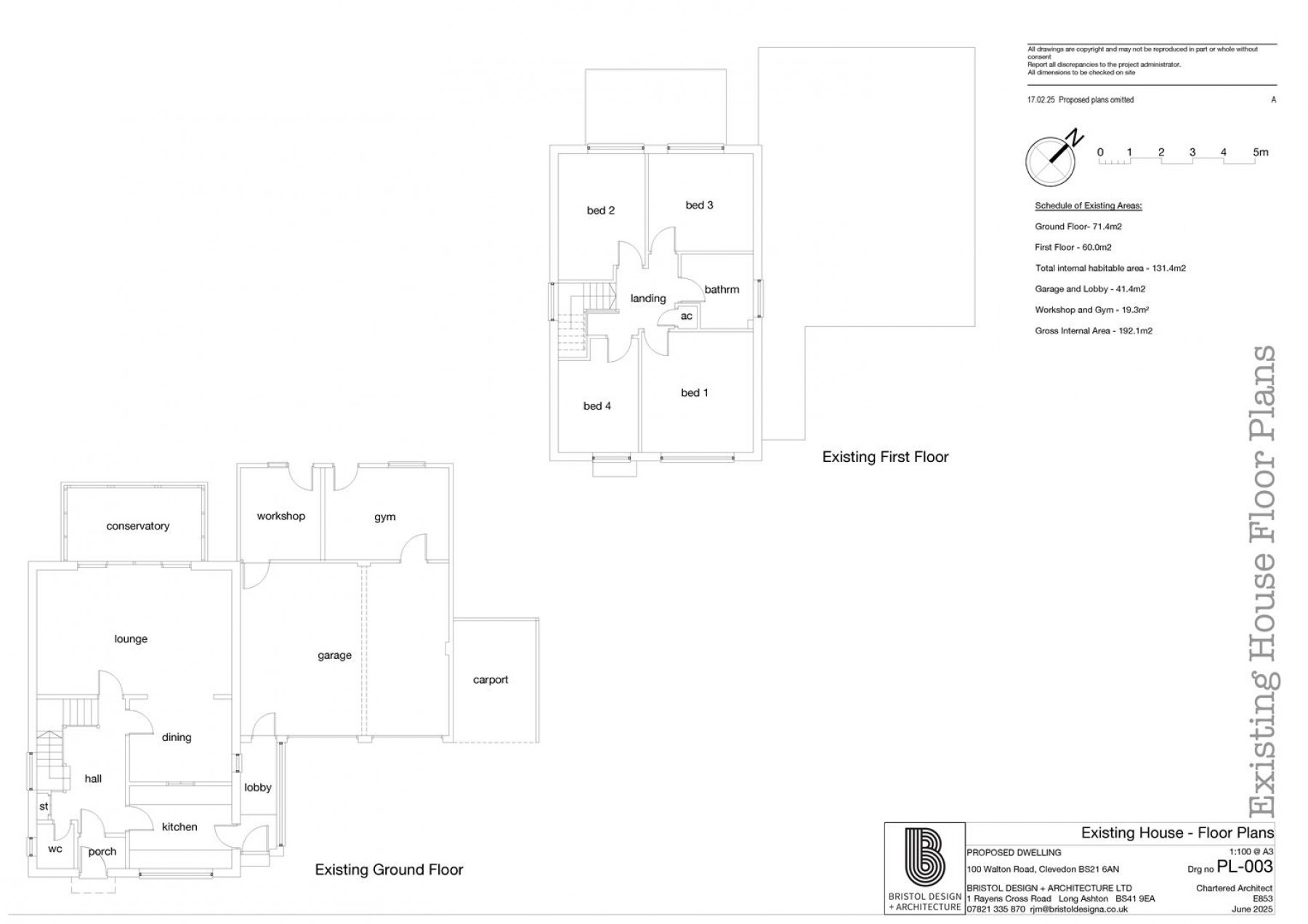
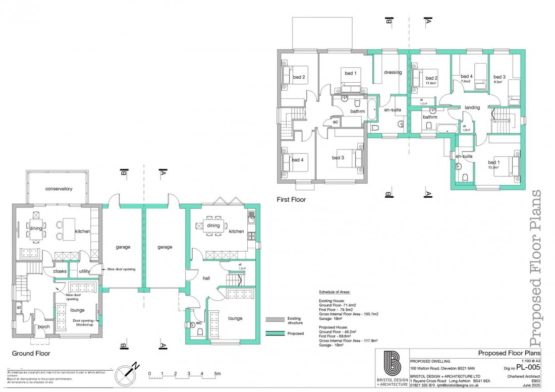
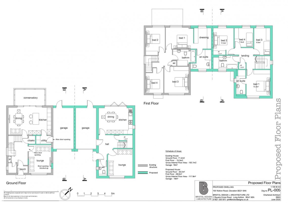
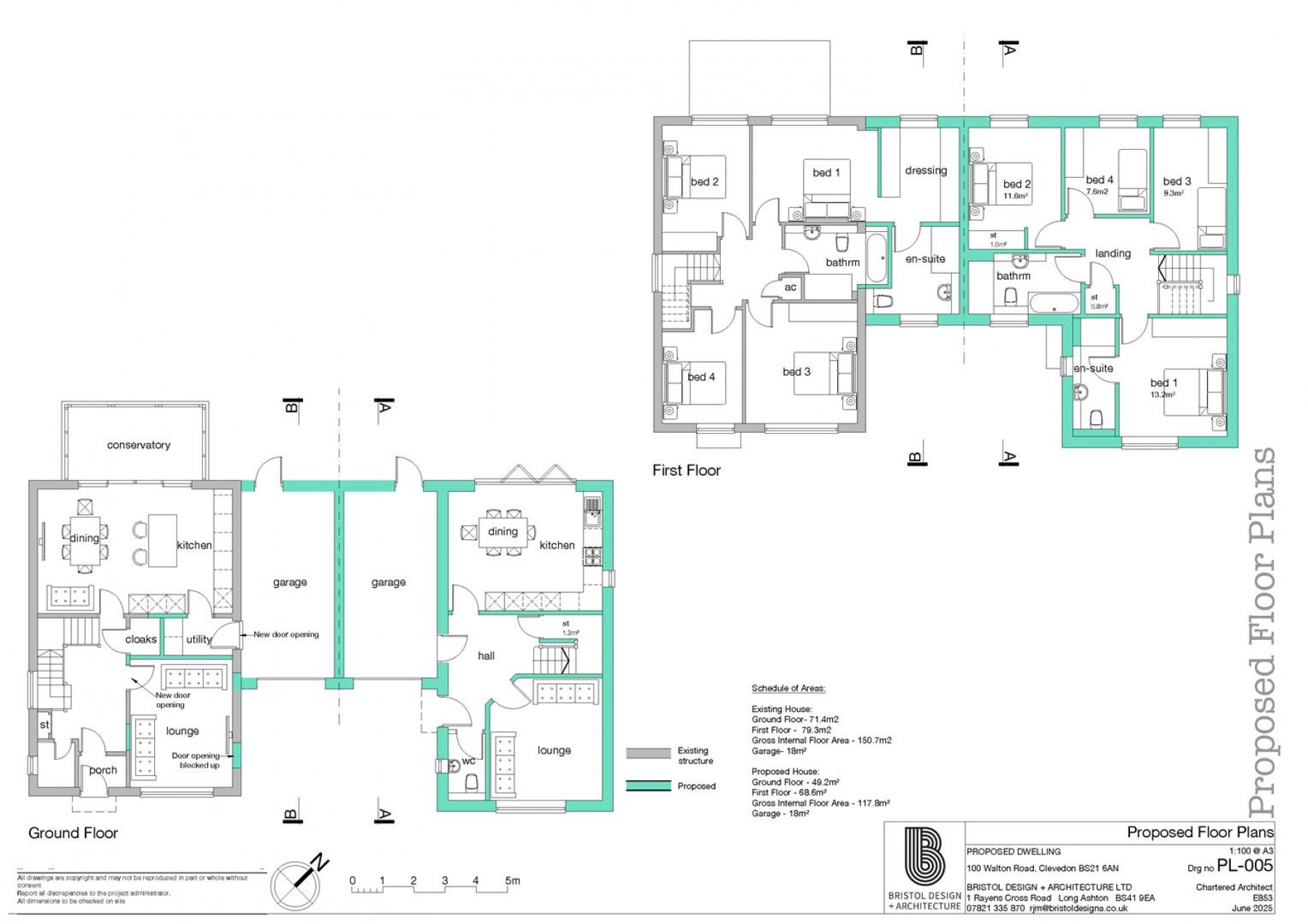
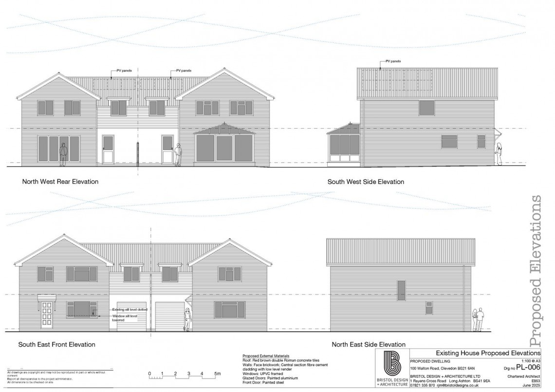
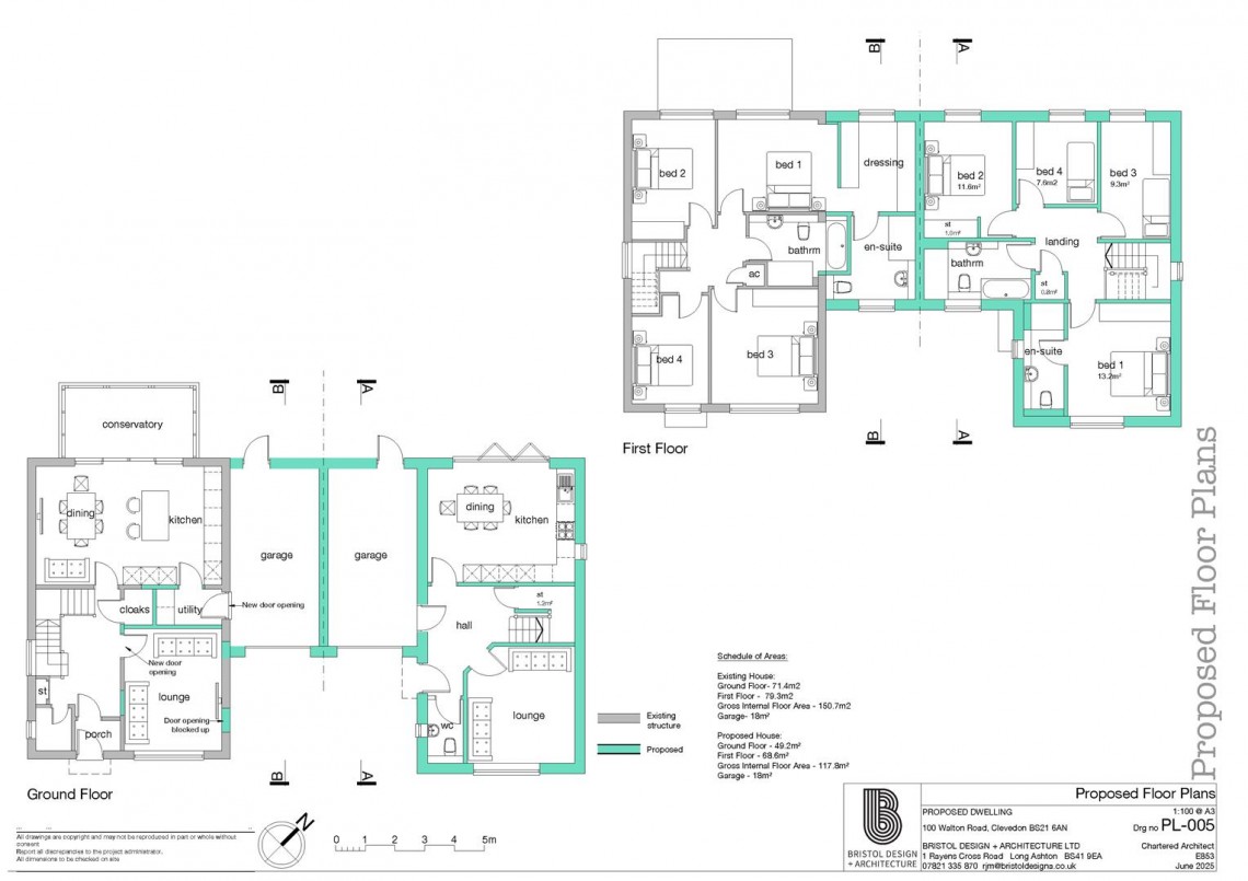
The existing dwelling is a four bedroom detached house within a generous plot with a side along double garage and workshop. Detailed planning consent has been granted in January 2026 for the extension of the existing dwelling and a the construction of a four bedroom semi-detached house.

The existing property, if renovated and extended, would make a highly attractive family home, even without the additional dwelling.

Tenure - Freehold
Council Tax - TBC
Current EPC - D

THE OPPORTUNITY

FAMILY HOME WITH PLANNING GRANTED FOR NEW BUILD PLOT

Planning (25/P/1350/FUL) has been granted for the proposed demolition of existing single storey garage, extension and outbuildings. Erection of a two-storey side extension to the existing dwelling and erection of a 4-bed dwelling alongside the expansion and alteration of the parking area and hardstanding.

PROPOSED SCHEDULE OF DEVELOPMENT

Existing:
4 Bedroom Detached House | 1414 SqFt plus Garage and outbuildings | Total GIA of 2068 SqFt
0.2 acre plot

Proposed:
Renovated & Extended House - 4 Bed Semi-Detached with new Utility, Walk in Wardrobe and Ensuite to Master | 1622 SqFt excluding Garage

Proposed New Build House - 4 Bed Semi-Detached with Ensuite to Master | 1268 SqFt excluding Garage

PROPOSED GDV

Renovated & Extended Dwelling - £575,000 to £600,000
New Build - £575,000 to £600,000

Total = £1,150,000 to £1,200,000

For further information on GDV and sales advice, please contact Dan Harris from the Hollis Morgan New Homes Team.

If the existing house were renovated and extended in line with the consented plans, whilst staying as a detached property, it would be worth between £625,000 and £650,000.

PLANNING INFORMATION

Reference = 25/P/1350/FUL
Application Received = Wed 02 Jul 2025
Application Validated = Wed 02 Jul 2025
Address = 100 Walton Road Clevedon BS21 6AN
Proposal = Proposed demolition of existing single storey garage, extension and outbuildings. Erection of a two-storey side extension and 1no. 4-bed dwelling alongside the expansion and alteration of hardstanding.
Status = Decided
Decision = Approved
Decision Issued Date = Tue 06 Jan 2026

LOCATION

Located in the popular part of Clevedon known as the Swiss Valley, the area is ideal for families and commuters alike, offering quick access to Clevedon Secondary School and Clevedon Golf Club. Clevedon Town Centre is within comfortable walking distance, while the M&S food store is conveniently close by for everyday essentials.

VIEWINGS

By appointment only. Please call Hollis Morgan to arrange an inspection of the property.


Local Information

Schools Stations Healthcare
Floorplan for FAMILY HOME | BIG PLOT | PLANNING GRANTED Floorplan for FAMILY HOME | BIG PLOT | PLANNING GRANTED
EPC Graph for FAMILY HOME | BIG PLOT | PLANNING GRANTED