SOLD STC £1,200,000

Land at, Badminton Road, Old Sodbury, BS37 6LX

Bedrooms 35 Bathrooms 18 Reception 18

  • SITE ACQUIRED FOR CLIENTS IN FEBRUARY 2026
  • FREEHOLD DEVELOPMENT SITE
  • EDGE OF THE COTSWOLDS
  • 9 x HOUSES | £5.15m GDV
  • PLANNING IMPLEMENTED
  • READY TO START ON SITE
  • ZERO AFFORDABLE HOUSING
  • DRAINAGE CONDITION RESOLVED
  • ADJACENT TO RECENTLY SOLD OUT DEVELOPMENT

OPPORTUNITY

SITE ACQUIRED FOR CLIENTS IN FEBRUARY 2026 by HOLLIS MORGAN LAND & DEVELOPMENT

This 0.69 acre site is situated south of the Badminton Road in Old Sodbury, on the edge of the Cotswolds and within easy reach of Chipping Sodbury, Yate & Bristol. The subject land is immediately adjacent to a recently successfully sold out scheme by Redcliffe Homes, proving demand for the area.

The site has detailed consent for 9 x houses with a Gross Internal Area of 12,607 SqFt (excluding integral and external garages).

The planning consent has been implemented, so is considered extant.

RECENT PLANNING NOTES

The Seller has recently secured a discharge of Condition 8 in relation to drainage.
This has successfully secured both a Foul & Surface Water drainage connection into sewers in the Badminton Road, immediately outside the site. Therefore providing a cost effective drainage solution.

We have also received confirmation that the requirement for on-site affordable housing has been removed. Therefore, the 9 x houses can all be sold as open market units.

See Data Room for more details.

GDV APPRAISAL | HOLLIS MORGAN NEW HOMES

GDV: £5,150,000 (Hollis Morgan opinion)

If you would like to discuss the GDV and the New Homes Market please contact Daniel Harris of the Hollis Morgan New Homes team - 0117 973 6565

PROPOSED DEVELOPMENT SCHEDULE

HOUSE 1
Semi – Detached | 114.7 Sq M / 1224 Sq Ft | Suggested Asking Price £435,000

GROUND FLOOR
Entrance Hall | Living Room | Toilet | Kitchen / Diner
FIRST FLOOR
Landing | Bedroom 1 | En Suite | Bathroom | Bedroom 2 | Bedroom 3
SECOND FLOOR
Study (or potential 4th Bedroom)
OUTSIDE
Patio | Garden | Parking

HOUSE 2
Semi – Detached | 114.7 Sq M / 1224 Sq Ft | Suggested Asking Price £499,950

GROUND FLOOR
Entrance Hall | Living Room | Toilet | Kitchen / Diner
FIRST FLOOR
Landing | Bedroom 1 | En Suite | Bathroom | Bedroom 2 | Bedroom 3
SECOND FLOOR
Study (or potential 4th Bedroom)
OUTSIDE
Patio | Garden | Parking

HOUSE 3
Detached | 125.3 Sq M / 1,349 Sq Ft | Suggested Asking Price £620,000

GROUND FLOOR
Entrance Hall | Living Room | Toilet | Study | Kitchen / Diner | Pantry | Utility Room
FIRST FLOOR
Landing | Bedroom 1 | En-Suite | Bedroom 2 | Bedroom 3 | Bathroom | Glass Lantern Roof
OUTSIDE
Patio | Garden | Parking

HOUSE 4
Semi Detached | 114.3 Sq M / 1,230 Sq Ft | Suggested Asking Price £550,000

GROUND FLOOR
Entrance Hall | Living Room | Toilet | Kitchen / Diner | Utility Room | Integral Garage
FIRST FLOOR
Landing | Bedroom 1 | En Suite | Bedroom 2 | Bedroom 3 | Bathroom | Study
OUTSIDE
Patio | Garden | Parking

HOUSE 5
Semi Detached | 114.3 Sq M / 1,230 Sq Ft | Suggested Asking Price £550,000

GROUND FLOOR
Entrance Hall | Living Room | Toilet | Kitchen / Diner | Utility Room | Integral Garage
FIRST FLOOR
Landing | Bedroom 1 | En Suite | Bedroom 2 | Bedroom 3 | Bathroom | Study
OUTSIDE
Patio | Garden | Parking

HOUSE 6
Semi - Detached | 117.9 Sq M / 1,269 Sq Ft | Suggested Asking Price £535,000

GROUND FLOOR
Living Room | WC | Kitchen / Diner | Utility Room
FIRST FLOOR
Landing | Bedroom 1 | En Suite | Bedroom 2 | Bedroom 3 | Bathroom
OUTSIDE
Patio | Garden | Garage

HOUSE 7
Semi - Detached | 164.5 Sq M / 1,771 Sq Ft | Suggested Asking Price £670,000

GROUND FLOOR
Living Room / Kitchen / Diner | Snug | Utility Room | WC
FIRST FLOOR
Landing | Bedroom 1 | En Suite | Bedroom 2 | Bedroom 3 | Bedroom 4 | En Suite | Bathroom
OUTSIDE
Patio | Garden | Garage

HOUSE 8
Detached | 97.7 Sq M / 1,052 Sq Ft | Suggested Asking Price £560,000

GROUND FLOOR
Hall | WC | Living Room | Kitchen / Diner
FIRST FLOOR
Landing | Bedroom 1 | En Suite | Bedroom 2 | Bedroom 3 | Bathroom
OUTSIDE
Patio | Garden | Garage

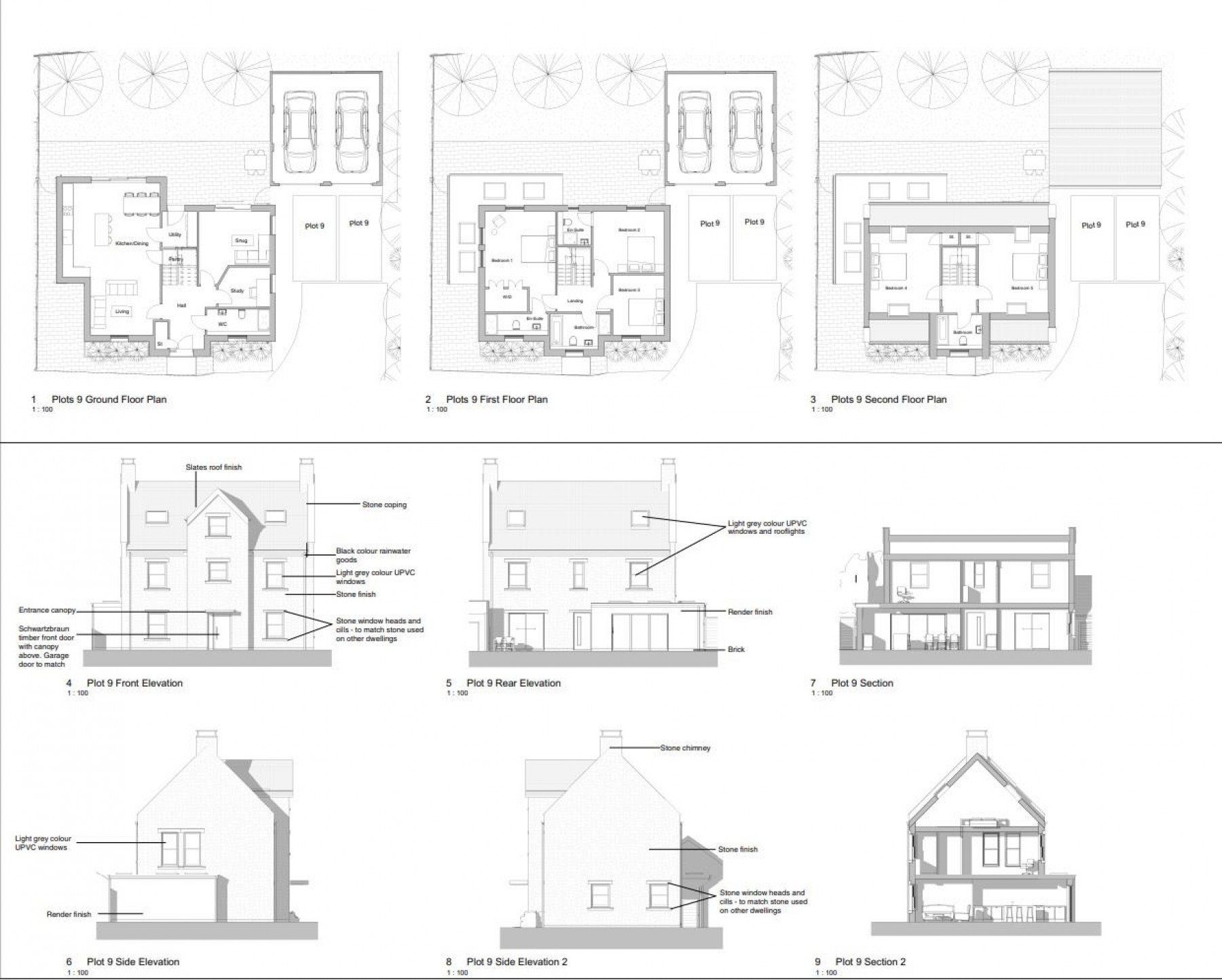
HOUSE 9
Detached | 207.8 Sq M / 2,237 Sq Ft | Suggested Asking Price £875,000

GROUND FLOOR
Hall | WC | Living Room / Kitchen / Diner | Utility | Snug | Study
FIRST FLOOR
Landing | Bedroom 1 | En Suite | Bedroom 2 | En Suite | Bedroom 3 | Bathroom
SECOND FLOOR
Bedroom 4 | Bedroom 5 | Bathroom
OUTSIDE
Patio | Garden | Double Garage

ORIGINAL FULL PLANNING

ReferencePK01/3133/F
Application ReceivedFri 26 Oct 2001
AddressTransport Yard Badminton Road Old Sodbury South Gloucestershire BS37 6LX
ProposalErection of 9 dwellings. Construction of new vehicular access. (Full application).
DecisionApproved - S106 Signed
Decision Issued DateThu 24 Jun 2004

SECTION 73 PLANNING CHANGES

ReferenceP21/04273/RVC
Application ReceivedMon 14 Jun 2021
AddressTransport Yard Badminton Road Old Sodbury South Gloucestershire BS37 6LX
ProposalVariation to approved plans list (added by non material amendment application PK11/0467/NMA) to substitute the approved plans for the following new plans
DecisionApprove with Conditions
Decision Issued DateFri 30 Jun 2023

The S73 was to update plans / materials and amend conditions 3, 9 and 12. The aim was to improve the standard of accommodation by enhancing the plots in size (number of rooms), Placement of plots 1-3 whilst added better light internally and bring some details up to date, given that the extant permission is some years old. I have attached the Design; Access statement and it list all the detail per plot on pages 5- 7

OTHER PLANNING NOTES

P21/00004/MODA - Deed of Variation to Section 106 - Successful

DOC25/00278 - Discharge of Conditions 8 from P21/04273/RVC (Surface Water Drainage) - Approved

Documents within Data Room.

CIL ESTIMATE

Please note the original planning permission did not have a CIL application.

The revised s.73 approval has a slightly larger floor area so only the additional floor areas will be CIL applicable.

Our client's architect has estimated that the total payable will be in the region of £40,531.40 (prior to any Indexation).
Please note this just an estimate and Purchaser's should seek their own confirmation on this matter.

NOTE: the opinion is within the Cover Letter from the 2021 Section 73 Application.

LOCATION

The site is on the outskirts of the popular semi-rural village of Old Sodbury with convenient access to the A46 and M4 Junction 18 (approximately 3 miles) and M5 motorway. Ideally placed for commuters there are also mainline rail stations to London from Chippenham and Bath.
Old Sodbury is set on the edge of the Cotswolds. Near to market towns Chipping Sodbury and Tetbury. The village itself has a COE primary school, picturesque church, a private nursery, public house, petrol station and hotel. The public footpath to the Cotswold Way is a stone’s throw away and handy for a keen walker. Westonbirt Arboretum, Badminton Estate and Castle Combe are also close.


Local Information

Schools Stations Healthcare