Lot 33

The Coach House Mumbleys Lane, Kington, BS35 3JZ

Auction Guide Price £425,000 +++

Bedrooms 3 Bathrooms 2 Reception 1

  • FOR SALE BY ONLINE AUCTION
  • WEDNESDAY 22ND APRIL 2026
  • VIRTUAL TOUR NOW ONLINE
  • VIEWINGS – REFER TO DETAILS
  • LEGAL PACK COMPLETE
  • APRIL LIVE ONLINE AUCTION
  • FREEHOLD SEMI DETACHED COACH HOUSE
  • REDUCED - WAS £650K
  • WALLED GARDEN | PARKING
  • EXTENDED 8 WEEK COMPLETION

FOR SALE BY LIVE ONLINE AUCTION

ADDRESS | The Coach House, Mumbleys Lane Kington, Thornbury, South Gloucestershire, BS35 3JZ

Lot Number 33

The Live Online Auction is on Wednesday 22nd April 2026 @ 12:00 Noon
Registration Deadline is on Friday 17th April 2026 @ 16:00

The Auction will be streamed LIVE ONLINE via the Hollis Morgan website & you can choose to bid by telephone, proxy or via your computer.
Registration is a simple online process – please visit the Hollis Morgan auction website and click “REGISTER TO BID”

THE PROPERTY

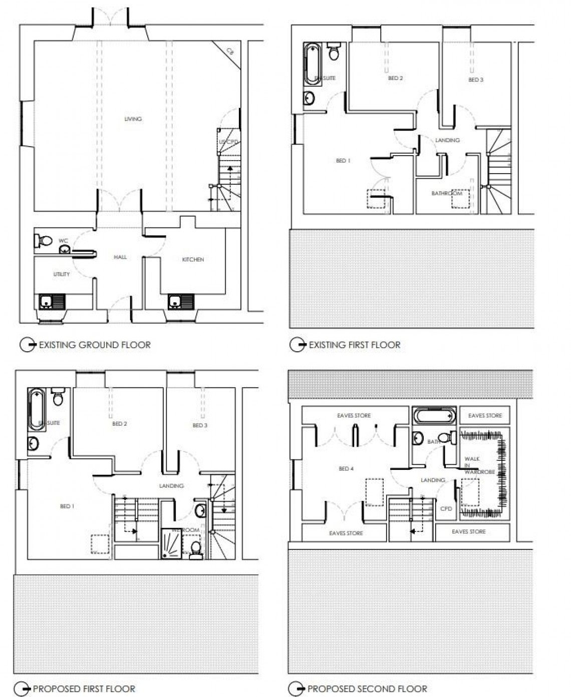
A Freehold semi detached period coach house located in the idyllic hamlet of Kington, near Thornbury offered in immaculate decorative order for immediate occupation. Occupying a private walled South / West facing garden with 3 allocated parking spaces with additional parking in the communal car park along with a charming communal garden set within the picturesque surroundings of the neighbouring Manor House. The accommodation ( 1292 Sq Ft ) has a combination of period features and modern comforts arranged over 2 floors with a grand entrance into to the main reception space plus kitchen, utility and WC whilst upstairs are 3 bedrooms with master en suite and shower room.
Sold with vacant possession

Tenure - Freehold
Council Tax - D
EPC - D
Management fee - £1423.28 per annum / £118.60 pcm

THE OPPORTUNITY

STUNNING COACH HOUSE - REDUCED PRICE | AUCTION

The property was previously listed with residential agents with an original asking price of £650,000 and now has a reduced guide price for sale by auction

EXTRA BEDROOM

There is potential to create a 4th bedroom and separate bathroom in the eaves of the property subject to gaining the necessary planning consents. Please refer to RIBA stage 2 drawings included with the property details and online legal pack.

OUTBUILDINGS

There are 2 stone outbuildings, we understand one of which is currently used as a studio (C3 residential Class) however would be suitable for alternative uses i.e. bedroom 4 / annexe / home office subject to any consents. Please refer to RIBA stage 2 drawings included with the property details and online legal pack.

MANAGEMENT CHARGE

Please note there is a management fee of £1423.28 per annum / £118.60 pcm. All 15 homes in the hamlet are freehold, and the monthly contribution is simply the shared cost of maintaining the private rural infrastructure that would normally fall to the local authority. The estate includes over 2,200 sqm of communal gardens, more than 580 sqm communal gravelled mews, 560 sqm ancillary car parking and service track areas, a tarmac entrance road off the public highway, estate lighting and a shared package treatment plant that is legally required for the whole site. The fee covers the upkeep of these areas, the running and servicing of the treatment plant, public liability insurance, admin costs for the Management Company (SWR) and accountancy etc and a sinking fund for future replacement of the plant.

Part of the monthly contribution effectively replaces the foul water charges that households in urban Bristol or South Glos would normally pay to Wessex/Bristol Water. Because the hamlet operates its own off-grid treatment plant, residents do not pay typical sewerage charges individually, instead, the equivalent cost is pooled and managed collectively. When viewed this way, a portion of the fee is not an “extra” cost at all, but simply the rural equivalent of a standard utility bill.

RENTAL APPRAISAL

What rent can we achieve for you?

The Bristol Residential Letting Co. are confident this property would make a good rental investment if brought to a standard suitable for the professional rental market. Danny Dean of The Bristol Residential Letting Co suggests a rent in the region of;

The Coach House, Mumbleys Lane - £1800pcm- £2000pcm

If you would like to discuss more detail on the potential for rental, you can call me on 07738766640 or email (danny@bristolreslet.com) for a no obligation discussion. I am always happy to advise investors on maximising their investment.

LOCATION

The property is set in the hamlet of Kington, west of the market town of Thornbury, a short drive from Mundy playing fields. Thornbury High Street offers a variety of shops, cafes, pubs and restaurants. Facilities include the Leisure Centre, Golf Course and Library. The town is blessed with a number of primary and junior schools, plus The Castle secondary school which is situated on the edge of open countryside close to Thornbury Castle. Positioned next to The Tower House, a Listed building formerly Kyneton House, enjoying outstanding countryside views. There is convenient access to the A38 and thereafter the M4 / M5 interchange and cities of Bristol and Cardiff.

https://what3words.com/boils.empty.piper

SOLICITORS & COMPLETION

Laura Roberts
Barcan + Kirby
0117 3252929
L.Roberts@barcankirby.co.uk
https://barcankirby.co.uk/

EXTENDED COMPLETION

Completion is set for 8 weeks or earlier subject to mutual consent.

LEGAL PACK COMPLETE

We have been informed by our client’s solicitors that the legal pack for this lot is now complete.

Should any last minute addendums occur you will be automatically notified by email.

If the vendors have indicated they are willing to consider pre-auction offers, now is the time to submit your offer by completing the pre-auction offer form.

IMPORTANT AUCTION INFORMATION

VIEWINGS

Please submit a viewing request online and we will contact you to organise an appointment.
We will send you an email and text to confirm the appointment time and the full property address.
Viewings are supervised by a member of the Hollis Morgan Auction team who will meet you at the property.

MATERIAL INFORMATION

Information including utilities, Electricity supply, Water supply, Sewerage, Heating, Broadband, Mobile signal / coverage, Parking, Building safety, Restrictions and rights, Rights and easements, Flood risk, Erosion risk, Coastal erosion risk, Planning permission for proposal for development, Property accessibility / adaptations, Coalfield or mining area all of which will be supplied within the legal pack that can be accessed for free via the Hollis Morgan website or via your EIG account.

ONLINE LEGAL PACKS

Digital Copies of the Online legal pack can be downloaded Free of Charge.
Please visit the Hollis Morgan Website and select the chosen lot from our Current Auction List.
Press the GREEN button to "Download Legal Packs" For the first visit you will be required to register simply with your email and a password.
Having set up your account you can download legal packs or if they are not yet available, they will automatically be sent to you when they are uploaded.
You will be automatically updated by email if any new information is added.
There will be a note added to the list to confirm AUCTION PACK NOW COMPLETE when no further information is due to be added.
*** STAY UPDATED *** By registering for the legal pack we can ensure you are kept updated on any changes to this Lot in the build up to the sale.

BUYER’S PREMIUM

Please be aware all purchasers are subject to a £1,500 + VAT (£1,800 inc VAT) buyer's premium which is ALWAYS payable upon exchange of contracts whether the sale is concluded before, during or after the auction date.

GUIDE PRICE

An indication of the seller's current minimum acceptable price at auction. The guide price or range of guide prices is given to assist consumers in deciding whether to pursue a purchase. It is usual, but not always the case, that a provisional reserve range is agreed between the seller and the auctioneer at the start of marketing. As the reserve is not fixed at this stage and can be adjusted by the seller at any time up to the day of the auction in the light of interest shown during the marketing period, a guide price is issued. This guide price can be shown in the form of a minimum and maximum price range within which an acceptable sale price (reserve) would fall, or as a single price figure within 10% of which the minimum acceptable price (reserve) would fall. A guide price is different to a reserve price (see separate definition). Both the guide price and the reserve price can be subject to change up to and including the day of the auction.

RESERVE PRICE

The seller's minimum acceptable price at auction and the figure below which the auctioneer cannot sell. The reserve price is not disclosed and remains confidential between the seller and the auctioneer. Both the guide price and the reserve price can be subject to change up to and including the day of the auction.

PRE AUCTION OFFERS

Some vendors are willing to consider offers prior to the auction.
Pre auction offers can ONLY be submitted by completing the online PRE AUCTION OFFER FORM
The form can be found on the Hollis Morgan website on the individual auction property listing.
Please note offers will not be considered until you have inspected the COMPLETE LEGAL PACK once it has been released.
There will be a note added to the list to confirm AUCTION PACK NOW COMPLETE when our client’s solicitor informs us no further information is due to be added.
In the event of an offer being accepted the property will only be removed from the online auction and viewings stopped once contracts have successfully EXCHANGED subject to the standard auction terms and payment of the buyer’s premium (£1,800 Inclusive of VAT) to Hollis Morgan.
Contracts can be exchanged via the solicitors or at the Hollis Morgan offices by appointment only.

REGISTRATION PROCESS

The registration process is extremely simple – visit the Hollis Morgan auction website and click on the “Register to Bid” button.
The “Register to Bid” button can be found on the auction home page or on the individual lot listings.
Please note this function is not available on Rightmove or Zoopla.

Stage 1 – Complete the Online Bidding Form
Stage 2 – Upload your certified ID
Stage 3 – Invitation to bid
Stage 4 – Pay your security deposit (£6,800)

You are now ready to bid – Good luck!

If your bid is successful, the balance of the deposit monies must be transferred to our client account within 24 hours of the auction sale.
If you are unsuccessful at the auction your holding deposit will be returned within 48 hours.

SURVEYS AND VALUATIONS

If you would like to arrange a survey or mortgage valuation of this Lot BEFORE the auction, please instruct your appointed surveyor to contact Hollis Morgan and we will arrange access for them to inspect the property. Please note that buyers CANNOT attend the surveys and the surveyors are responsible for collecting and returning keys to the Hollis Morgan offices in Clifton.

AUCTION FINANCE & BRIDGING LOANS

Some properties may require specialist auction finance- please contact Hollis Morgan for access to expert advice and whole of market rates from our independent brokers.

Hollis Morgan may receive introductory fees for this service from the broker.

AUCTION BUYER’S GUIDE VIDEO

We have short video guides for both buying and selling by Public Auction on the Hollis Morgan Website. If you have any further questions regarding the process, please don’t hesitate to contact Auction HQ.

2026 CHARITY OF THE YEAR

Hollis Morgan are proud to be supporting Bristol Schools Rugby Union as our 2026 Charity of the Year. BSRU ( working in association with Bristol Bears ) oversee and support rugby in all schools, State and Independent , in the Greater Bristol area. Bristol Schools provide School Rugby Development opportunities and County level fixtures for secondary boys and girls. Including playing fixtures at U18s against the leading Independent Schools in our region, schools such as Clifton College, BGS, QEH, Collegiate and Millfield. For more information and details of the fixture list please follow them on Instagram.

AUCTION PROPERTY DETAILS DISCLAIMER

Hollis Morgan endeavour to make our sales details clear, accurate and reliable in line with the Consumer Protection from Unfair Trading Regulations 2008 but they should not be relied on as statements or representations of fact, and they do not constitute any part of an offer or contract. All Hollis Morgan references to planning, tenants, boundaries, potential development, tenure etc is to be superseded by the information contained in the legal pack. It should not be assumed that this property has all the necessary Planning, Building Regulation, or other consents. Any services, appliances and heating system(s) listed have not been checked or tested. Please note that in some instances the photographs may have been taken using a wide-angle lens. The seller does not make any representation or give any warranty in relation to the property, and we have no authority to do so on behalf of the seller.


Local Information

Schools Stations Healthcare
Floorplan for COACH HOUSE - REDUCED FOR AUCTION | THORNBURY
EPC Graph for COACH HOUSE - REDUCED FOR AUCTION | THORNBURY