Lot 39

Development Site @ Uttoxeter Road, Handsacre, WS15 4DW

Sold @ Auction £60,000 +++

Bedrooms 9 Bathrooms 6 Reception 6

  • FOR SALE BY ONLINE AUCTION
  • WEDNESDAY 11TH FEBRUARY 2026
  • VIDEO TOUR NOW ONLINE
  • VIEWINGS - REFER TO DETAILS
  • LEGAL PACK COMPLETE
  • SOLD @ FEBRUARY LIVE ONLINE AUCTION
  • FREEHOLD DEVELOPMENT SITE
  • PLANNING REFUSED
  • POTENTIAL FOR ALTERNATIVE SCHEMES SUBJECT TO PP
  • EXTENDED 6 WEEK COMPLETION

FOR SALE BY LIVE ONLINE AUCTION

*** SOLD @ FEBRUARY LIVE ONLINE AUCTION ***

GUIDE PRICE £25,000 +++
SOLD @ £60,000

ADDRESS | Land at Uttoxeter Road, Handsacre, Rugeley, Staffordshire WS15 4DW

Lot Number 39

The Live Online Auction is on Wednesday 11th February 2026 @ 12:00 Noon
Registration Deadline is on Friday 6th February 2026 @ 16:00

The Auction will be streamed LIVE ONLINE via the Hollis Morgan website & you can choose to bid by telephone, proxy or via your computer.
Registration is a simple online process – please visit the Hollis Morgan auction website and click “REGISTER TO BID”

PRE AUCTION OFFERS

On this occasion the vendors will NOT be considering pre auction offers.

GUIDE PRICE RANGE

The vendors have issued a guide price range of £25,000 - £75,000 for this lot.

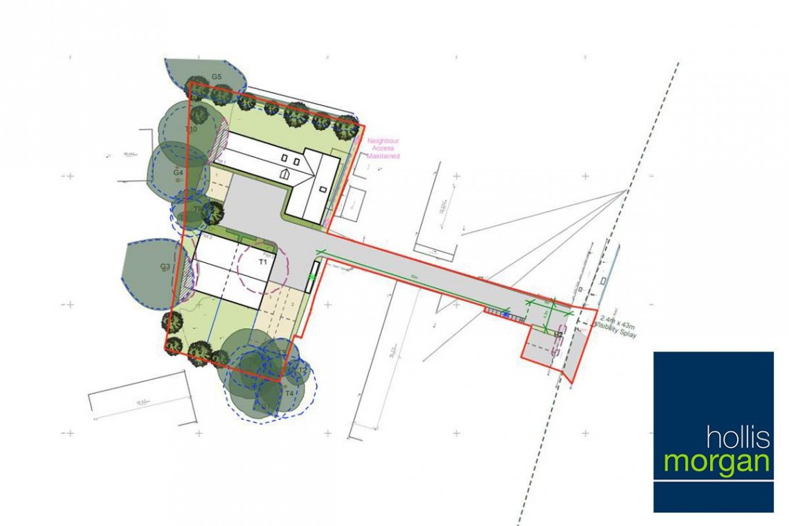
THE LAND

A Freehold parcel of land ( 0.26 Acres ) to the rear of Uttoxeter Road with vehicular access.
Sold with vacant possession.

Tenure - Freehold

THE OPPORTUNITY

DEVELOPMENT SITE

Outline Planning ( 25/01264/OUT ) has been refused ( Jan 2026 ) for the erection of 3 residential dwellings on the site however we understand there is still scope for alternative schemes subject to PP ( Please refer to online legal pack )

Interested parties should note planning was previously ( 2007 ) granted for the erection of 4 x semi detached houses.

PLANNING - REFUSED

Reference25/01264/OUT
Application ReceivedFri 10 Oct 2025
Application ValidatedThu 30 Oct 2025
AddressLand Rear Of 19 - 27 Uttoxeter Road Handsacre Rugeley Staffordshire
ProposalOutline development for up to 3 dwellings including access with all other matters reserved (resubmission 24/00951/OUT)
StatusREFUSED
Appeal StatusUnknown
Appeal DecisionNot Available

PLANNING HISTORY ( 2007 )

Reference07/00047/FUL
Application ReceivedWed 17 Jan 2007
Application ValidatedWed 17 Jan 2007
AddressLand Rear Of 19 - 27 Uttoxeter Road Handsacre Rugeley Staffordshire
ProposalErection of 4no. 1 bedroom semi detached dwellings and associated works
StatusDecided
DecisionApprove
Decision Issued DateTue 13 Mar 2007
Appeal StatusUnknown
Appeal DecisionNot Available

PLANNING INFORMATION

Full details of the proposed scheme and drawings can be downloaded with the online legal pack.

LOCATION

The property is located just a short distance from Armitage & Handsacre, where there are a range of amenities including shops, pubs, a Butchers, village hall, a doctors’ surgery and dispensary pharmacy. The location is ideal for access to local countryside and public footpaths and Cannock Chase, an Area of Outstanding Natural Beauty, lies a few minutes’ drive away and offers activities including walking, cycling and pony trekking through picturesque woodland and protected parkland. The market town of Rugeley and Cathedral City of Lichfield are both a short drive away, where supermarkets, shopping centres and leisure facilities including Beacon Park can be found, and the property lies a short drive from commuter routes including A515, A51, A38 and M6. Rail travel from Lichfield and Rugeley provide direct links to Birmingham, London and additional destinations, and Birmingham International Airport is around a 35 minute drive away.

SOLICITORS & COMPLETION

Amy Dunn
Flagship Housing
0845 258 6353
conveyancing@flagship-housing.co.uk
www.flagship-housing.co.uk

EXTENDED COMPLETION

Completion is set for 6 weeks or earlier subject to mutual consent.

LEGAL PACK COMPLETE

We have been informed by our client’s solicitors that the legal pack for this lot is now complete.

Should any last minute addendums occur you will be automatically notified by email.

If the vendors have indicated they are willing to consider pre-auction offers, now is the time to submit your offer by completing the pre-auction offer form.

IMPORTANT AUCTION INFORMATION

VIEWINGS

The site is open for an external inspection during daylight hours

MATERIAL INFORMATION

Information including utilities, Electricity supply, Water supply, Sewerage, Heating, Broadband, Mobile signal / coverage, Parking, Building safety, Restrictions and rights, Rights and easements, Flood risk, Erosion risk, Coastal erosion risk, Planning permission for proposal for development, Property accessibility / adaptations, Coalfield or mining area all of which will be supplied within the legal pack that can be accessed for free via the Hollis Morgan website or via your EIG account.

ONLINE LEGAL PACKS

Digital Copies of the Online legal pack can be downloaded Free of Charge.
Please visit the Hollis Morgan Website and select the chosen lot from our Current Auction List.
Press the GREEN button to "Download Legal Packs" For the first visit you will be required to register simply with your email and a password.
Having set up your account you can download legal packs or if they are not yet available, they will automatically be sent to you when we receive them.
You will be automatically updated by email if any new information is added.
There will be a note added to the list to confirm AUCTION PACK NOW COMPLETE when no further information is due to be added.
*** STAY UPDATED *** By registering for the legal pack we can ensure you are kept updated on any changes to this Lot in the build up to the sale.

BUYER’S PREMIUM

Please be aware all purchasers are subject to a £1,500 + VAT (£1,800 inc VAT) buyer's premium which is ALWAYS payable upon exchange of contracts whether the sale is concluded before, during or after the auction date.

GUIDE PRICE

An indication of the seller's current minimum acceptable price at auction. The guide price or range of guide prices is given to assist consumers in deciding whether to pursue a purchase. It is usual, but not always the case, that a provisional reserve range is agreed between the seller and the auctioneer at the start of marketing. As the reserve is not fixed at this stage and can be adjusted by the seller at any time up to the day of the auction in the light of interest shown during the marketing period, a guide price is issued. This guide price can be shown in the form of a minimum and maximum price range within which an acceptable sale price (reserve) would fall, or as a single price figure within 10% of which the minimum acceptable price (reserve) would fall. A guide price is different to a reserve price (see separate definition). Both the guide price and the reserve price can be subject to change up to and including the day of the auction.

RESERVE PRICE

The seller's minimum acceptable price at auction and the figure below which the auctioneer cannot sell. The reserve price is not disclosed and remains confidential between the seller and the auctioneer. Both the guide price and the reserve price can be subject to change up to and including the day of the auction.

REGISTRATION PROCESS

The registration process is extremely simple – visit the Hollis Morgan auction website and click on the “Register to Bid” button.
The “Register to Bid” button can be found on the auction home page or on the individual lot listings.
Please note this function is not available on Rightmove or Zoopla.

Stage 1 – Complete the Online Bidding Form
Stage 2 – Upload your certified ID
Stage 3 – Invitation to bid
Stage 4 – Pay your security deposit (£6,800)

You are now ready to bid – Good luck!

If your bid is successful, the balance of the deposit monies must be transferred to our client account within 24 hours of the auction sale.
If you are unsuccessful at the auction your holding deposit will be returned within 48 hours.

SURVEYS AND VALUATIONS

If you would like to arrange a survey or mortgage valuation of this Lot BEFORE the auction, please instruct your appointed surveyor to contact Hollis Morgan and we will arrange access for them to inspect the property. Please note that buyers CANNOT attend the surveys and the surveyors are responsible for collecting and returning keys to the Hollis Morgan offices in Clifton.

AUCTION FINANCE & BRIDGING LOANS

Some properties may require specialist auction finance- please contact Hollis Morgan for access to expert advice and whole of market rates from our independent brokers.

Hollis Morgan may receive introductory fees for this service from the broker.

AUCTION BUYER’S GUIDE VIDEO

We have short video guides for both buying and selling by Public Auction on the Hollis Morgan Website. If you have any further questions regarding the process, please don’t hesitate to contact Auction HQ.

2026 CHARITY OF THE YEAR
Hollis Morgan are proud to be supporting Bristol Schools Rugby Union as our 2026 Charity of the Year. BSRU ( working in association with Bristol Bears ) oversee and support rugby in all schools, State and Independent , in the Greater Bristol area. Bristol Schools provide School Rugby Development opportunities and County level fixtures for secondary boys and girls. Including playing fixtures at U18s against the leading Independent Schools in our region, schools such as Clifton College, BGS, QEH, Collegiate and Millfield. For more information and details of the fixture list please follow them on Instagram.

AUCTION PROPERTY DETAILS DISCLAIMER

Hollis Morgan endeavour to make our sales details clear, accurate and reliable in line with the Consumer Protection from Unfair Trading Regulations 2008 but they should not be relied on as statements or representations of fact, and they do not constitute any part of an offer or contract. All Hollis Morgan references to planning, tenants, boundaries, potential development, tenure etc is to be superseded by the information contained in the legal pack. It should not be assumed that this property has all the necessary Planning, Building Regulation, or other consents. Any services, appliances and heating system(s) listed have not been checked or tested. Please note that in some instances the photographs may have been taken using a wide-angle lens. The seller does not make any representation or give any warranty in relation to the property, and we have no authority to do so on behalf of the seller.


Local Information

Schools Stations Healthcare
Floorplan for SITE | PLANNING | WS15