Lot 44

Drill Hall Lower Dock Street, Newport, NP20 1EF

Sold @ Auction £120,000 +++

Bedrooms 14 Bathrooms 10 Reception 9

  • FOR SALE BY ONLINE AUCTION
  • WEDNESDAY 11TH MARCH 2026
  • VIRTUAL TOUR NOW ONLINE
  • VIEWINGS – REFER TO DETAILS
  • LEGAL PACK COMPLETE
  • SOLD @ MARCH LIVE ONLINE AUCTION
  • FREEHOLD DEVELOPMENT OPPORTUNITY
  • RESI PLANNING GRANTED
  • GDV - £2,291,500 | RENT - £186,300 pa
  • EXTENDED 8 WEEK COMPLETION

FOR SALE BY LIVE ONLINE AUCTION

*** SOLD @ MARCH LIVE ONLINE AUCTION ***

GUIDE PRICE £100,000 - £150,000 +++
SOLD @ £120,000

ADDRESS | Drill Hall, Lower Dock Street, Newport, Wales NP20 1EF

Lot Number 44

The Live Online Auction is on Wednesday 11th March 2026 @ 12:00 Noon
Registration Deadline is on Friday 6th March 2026 @ 16:00

The Auction will be streamed LIVE ONLINE via the Hollis Morgan website & you can choose to bid by telephone, proxy or via your computer.
Registration is a simple online process – please visit the Hollis Morgan auction website and click “REGISTER TO BID”

THE PROPERTY

The Grade II Listed Drill hall which was completed in 1901 was the headquarters for the 3rd Monmouthshire Rifle Volunteer Corps. The hall was decommissioned in the 1960s and has been used as a religious building until a fire severely damaged it in March 2018. The property which is located on the corner of Lower Dock St and Caroline St, close to Newport city centre.
Sold with vacant possession.

Tenure - Freehold

THE OPPORTUNITY

PLANNING GRANTED | 9 FLATS

Planning has been granted to convert this iconic property into a scheme of 9 luxury flats with a small commercial element.
We understand the GDV is in the region of £2.3m

FLAT 1 – 2 BED | 66m2
FLAT 2 – 2 BED | 63.5m2
FLAT 3 – 1 BED | 49m2
FLAT 4 – 2 BED | 67m2
FLAT 5 – 2 BED | 76m2
FLAT 6 – 1 BED | 58m2
FLAT 7 – 1 BED | 67m2
FLAT 8 – 2 BED | 79m2
FLAT 9 – 2 BED | 81m2
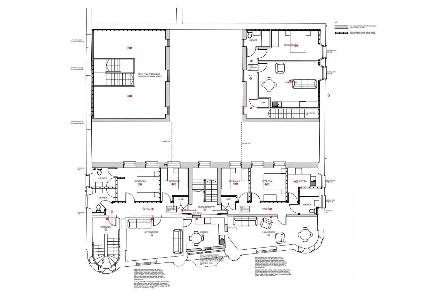
GYMNASIUM / OFFICE SPACE | 93.5m2

COMMERCIAL

Interested parties may wish to investigate further planning and change of use on the commercial element to create additional residential flats.
Subject to consents

Newport City Centre Masterplan Area and the EOI Form for the grants earmarked for the development has been included in the Legal pack.
We understand that The Drill Hall is within the “Core City” regeneration region for the Place-maker Grants.

PLANNING GRANTED

TOWN AND COUNTRY PLANNING ACT 1990 [as amended]
Application No: 23/0743
Application Type: Full
Proposal: CONVERSION, REFURBISHMENT AND EXTENSION OF THE FORMER DRILL HALL TO CREATE A MIXED USE SCHEME COMPRISING NINE FLATS AND FIRST FLOOR OFFICE/GYM (RESUBMISSION FOLLOWING REFUSAL OF 22/1041)
Site/Location: Drill Hall, 58 Lower Dock Street, Newport, South Wales, NP20 1EF
Decision Date: 11th April 2024

PLANNING INFORMATION

Full details of the proposed scheme and drawings can be downloaded with the online legal pack.

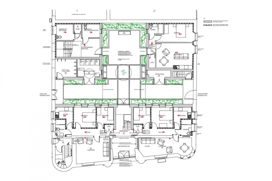
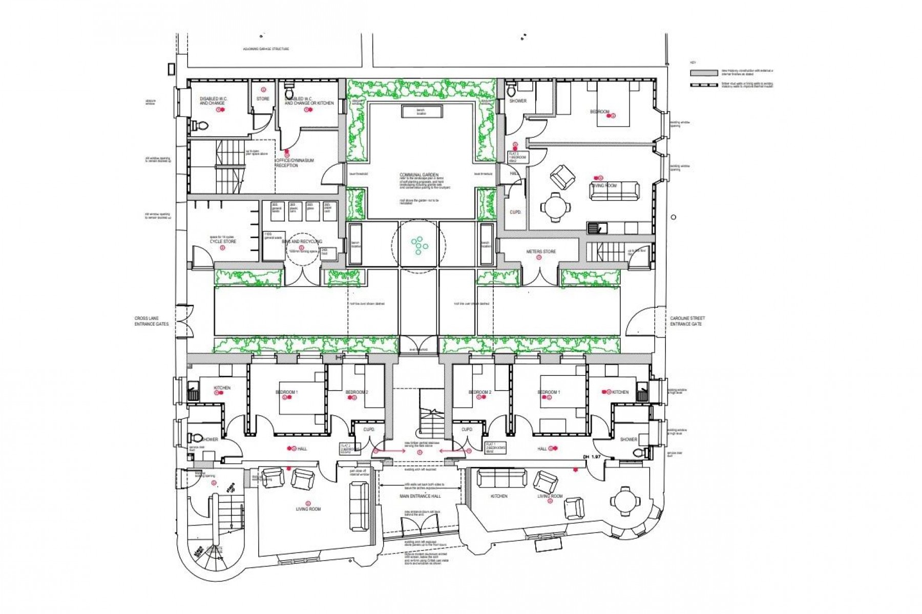
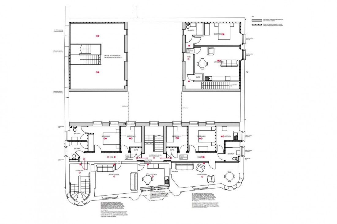
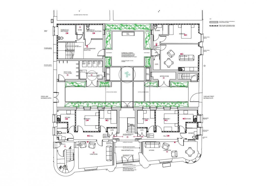
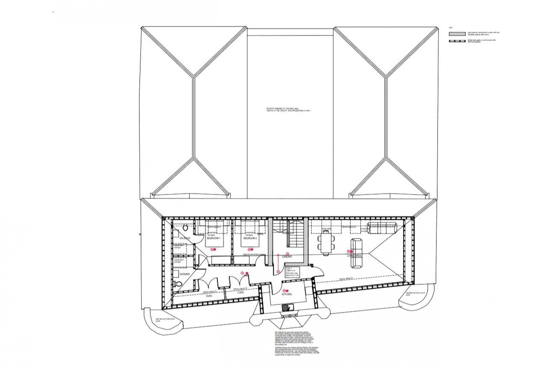
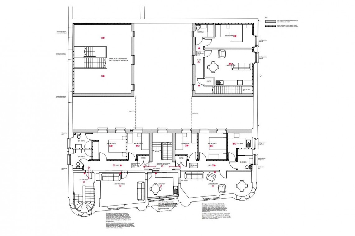
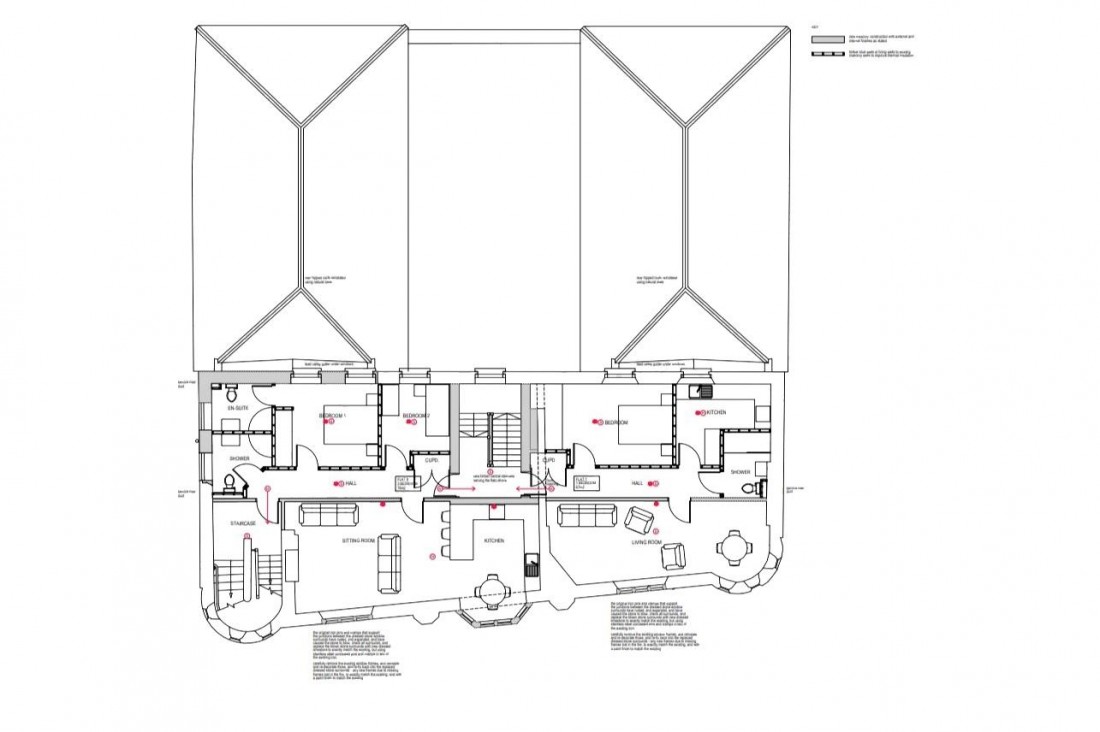
PROPOSED SCHEDULE OF ACCOMODATION

GROUND FLOOR

FLAT 1 – 2 BED – 66m2
LIVING ROOM | KITCHEN | BEDROOM 1 | BEDROOM 2 | HALL | BATHROOM | STORAGE CUPBOARD

FLAT 2 – 2 BED – 63.5m2
LIVING ROOM | KITCHEN | BEDROOM 1 | BEDROOM 2 | HALL | BATHROOM | STORAGE CUPBOARD

FLAT 3 – 1 BED 49m2
OPEN PLAN LIVING ROOM & KITCHEN | BEDROOM | HALL | BATHROOM | STORAGE CUPBOARD

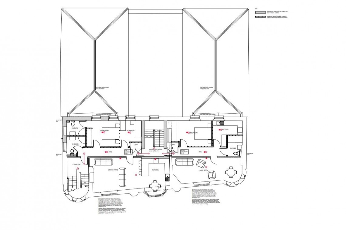
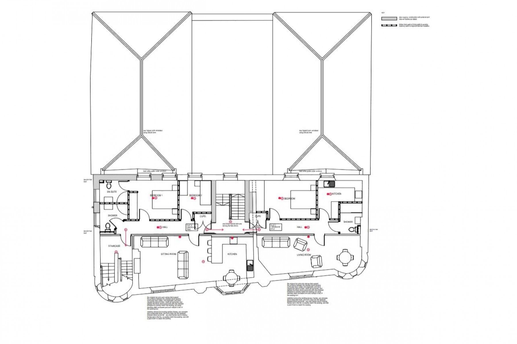
FIRST FLOOR

GYMNASIUM / OFFICE SPACE – 93.5m2

FLAT 4 – 2 BED – 67m2
LIVING ROOM | KITCHEN | BEDROOM 1 | BEDROOM 2 | HALL | BATHROOM | STORAGE CUPBOARD

FLAT 5 – 2 BED – 76m2
LIVING ROOM | KITCHEN | BEDROOM 1 | EN-SUITE | BEDROOM 2 | HALL | BATHROOM | STORAGE CUPBOARD

FLAT 6 – 1 BED – 58m2
OPEN PLAN LIVING ROOM & KITCHEN | BEDROOM | HALL | BATHROOM | STORAGE CUPBOARD

SECOND FLOOR

FLAT 7 – 1 BED – 67m2
LIVING ROOM | KITCHEN | BEDROOM 1 | BEDROOM 2 | HALL | BATHROOM | STORAGE CUPBOARD

FLAT 8 – 2 BED – 79m2
OPEN PLAN LIVING ROOM & KITCHEN | BEDROOM 1 | EN-SUITE | BEDROOM 2 | HALL | BATHROOM | STORAGE CUPBOARD

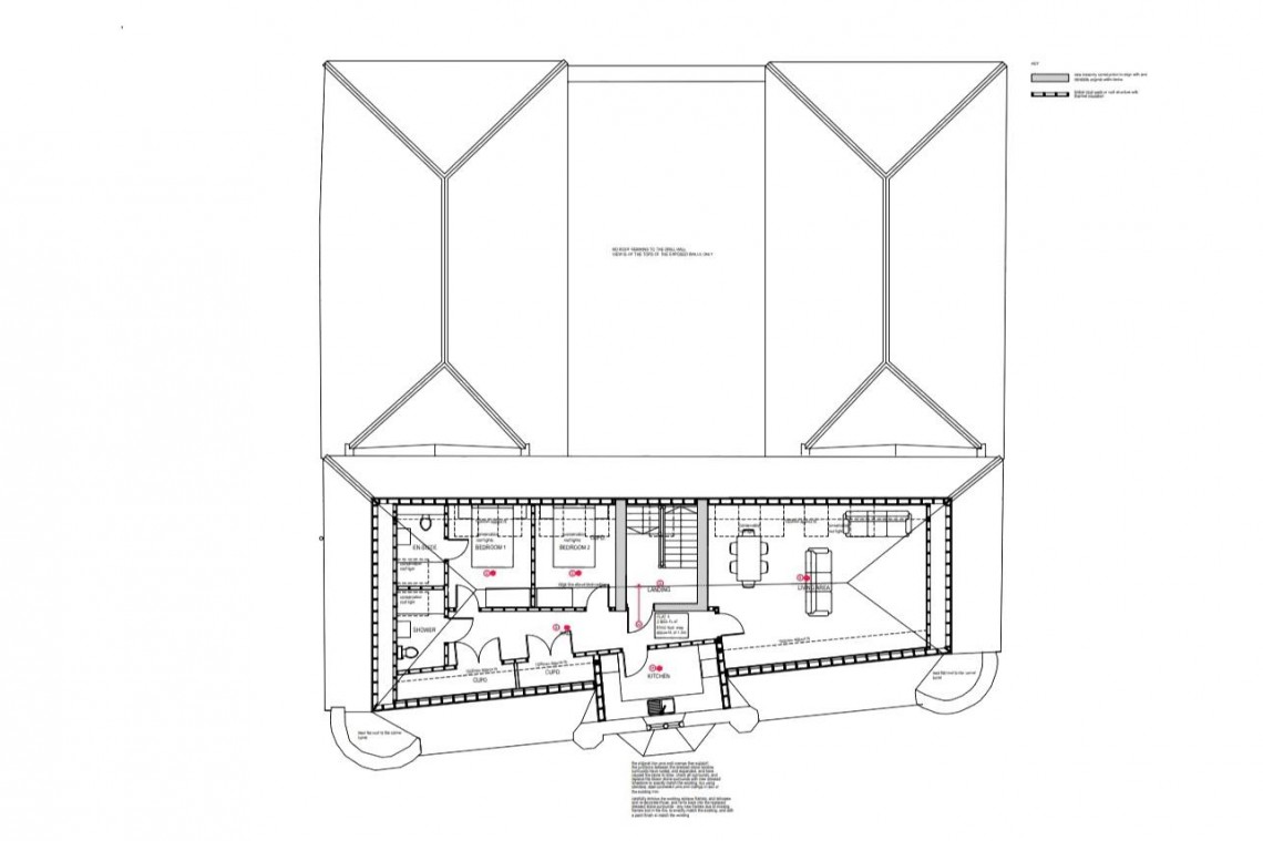
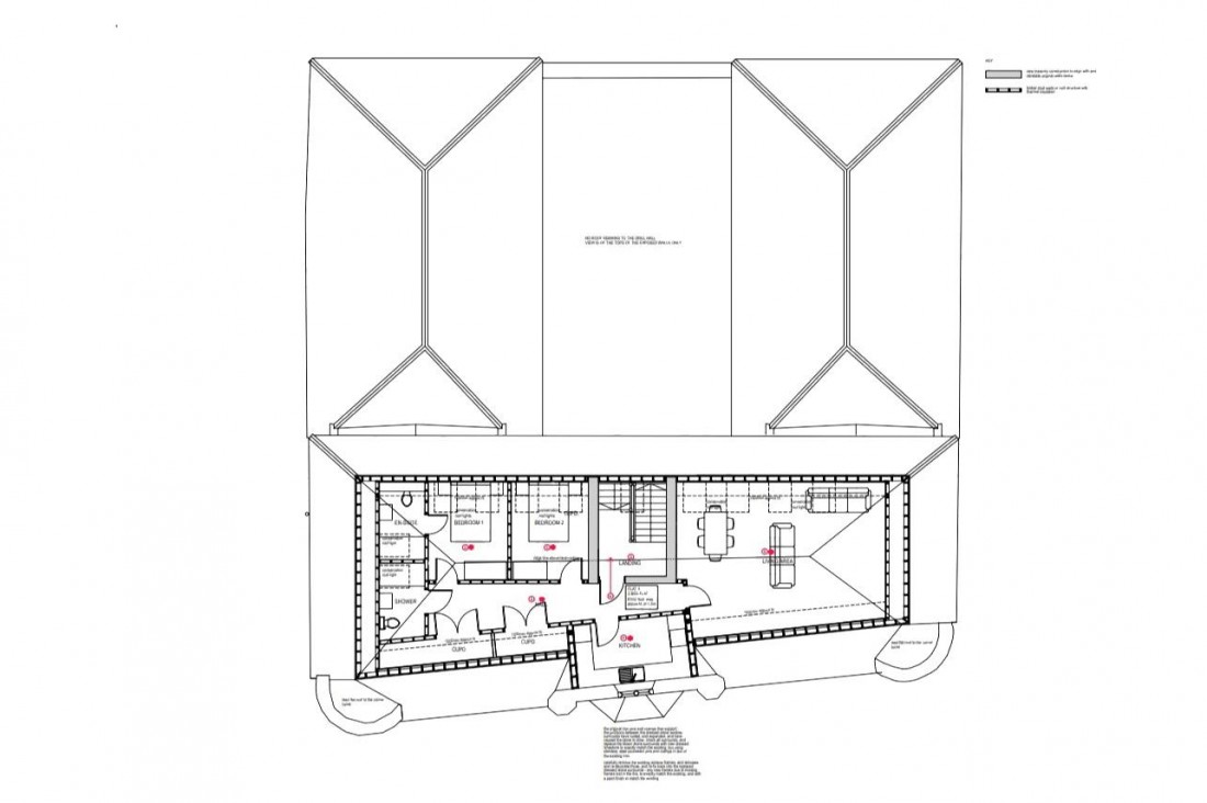
THIRD FLOOR

FLAT 9 – 2 BED – 81m2 (above heigh of 1.5m)
LIVING AREA | KITCHEN | BEDROOM 1 | EN-SUITE | BEDROOM 2 | HALL | BATHROOM | STORAGE CUPBOARD 1 | STORAGE CUPBOARD 2

GDV & RENTAL APPRAISAL

FLAT 1 – £246,000 | £1,700 pcm | £20,400 pa
FLAT 2 – £225,000 | 1,650 pcm | £19,800 pa
FLAT 3 – £197,000 | 1,200 pcm | £14,400 pa
FLAT 4 – £250,000 | 1,700 pcm | £20,400 pa
FLAT 5 – £290,000 | £1,850 pcm | £22,200 pa
FLAT 6 – £200,000 | £1,300 pcm | £15,600 pa
FLAT 7 – £220,000 | £1,400 pcm | £16,800 pa
FLAT 8 – £280,000 | £1,850 pcm | £22,200 pa
FLAT 9 – £285,000 | £1,875 pcm | £22,500 pa
COMMERCIAL - £98,500 | £1,000 pcm | £12,000 pa

GDV - £2,291,500
RENT - £15,525 pcm
RENT - £186,300 pa

* Values provided to vendor by independent local agents.

LOCATION

A popular residential location with easy access to Newport City Centre and excellent road networks to Cardiff & Bristol being just 2 miles from Junction 24 of the M4 at the Coldra and 2 miles from the city centre. Interested parties should note the removal of both Severn Bridge Tolls has made Newport and the surrounding areas extremely popular.

SOLICITORS & COMPLETION

Alan Turner
Alan Turner & Co Solicitors
01225 336 260
info@alanturner.com
https://www.alanturner.com/

EXTENDED COMPLETION

Completion is set for 8 weeks or earlier subject to mutual consent.

LEGAL PACK COMPLETE

We have been informed by our client’s solicitors that the legal pack for this lot is now complete.

Should any last minute addendums occur you will be automatically notified by email.

If the vendors have indicated they are willing to consider pre-auction offers, now is the time to submit your offer by completing the pre-auction offer form.

IMPORTANT AUCTION INFORMATION

MATERIAL INFORMATION

Information including utilities, Electricity supply, Water supply, Sewerage, Heating, Broadband, Mobile signal / coverage, Parking, Building safety, Restrictions and rights, Rights and easements, Flood risk, Erosion risk, Coastal erosion risk, Planning permission for proposal for development, Property accessibility / adaptations, Coalfield or mining area all of which will be supplied within the legal pack that can be accessed for free via the Hollis Morgan website or via your EIG account.

NO VIEWINGS ON THIS PROPERTY

The property is not safe and unsuitable for internal inspection.
Anyone choosing to enter the premises or the grounds does so at entirely their own risk.
Hollis Morgan, our clients or any associated agents accept no responsibility for any injuries associated with viewing this property.

ONLINE LEGAL PACKS

Digital Copies of the Online legal pack can be downloaded Free of Charge.
Please visit the Hollis Morgan Website and select the chosen lot from our Current Auction List.
Press the GREEN button to "Download Legal Packs" For the first visit you will be required to register simply with your email and a password.
Having set up your account you can download legal packs or if they are not yet available, they will automatically be sent to you when we receive them.
You will be automatically updated by email if any new information is added.
There will be a note added to the list to confirm AUCTION PACK NOW COMPLETE when no further information is due to be added.
*** STAY UPDATED *** By registering for the legal pack we can ensure you are kept updated on any changes to this Lot in the build up to the sale.

BUYER’S PREMIUM

Please be aware all purchasers are subject to a £1,500 + VAT (£1,800 inc VAT) buyer's premium which is ALWAYS payable upon exchange of contracts whether the sale is concluded before, during or after the auction date.

GUIDE PRICE

An indication of the seller's current minimum acceptable price at auction. The guide price or range of guide prices is given to assist consumers in deciding whether to pursue a purchase. It is usual, but not always the case, that a provisional reserve range is agreed between the seller and the auctioneer at the start of marketing. As the reserve is not fixed at this stage and can be adjusted by the seller at any time up to the day of the auction in the light of interest shown during the marketing period, a guide price is issued. This guide price can be shown in the form of a minimum and maximum price range within which an acceptable sale price (reserve) would fall, or as a single price figure within 10% of which the minimum acceptable price (reserve) would fall. A guide price is different to a reserve price (see separate definition). Both the guide price and the reserve price can be subject to change up to and including the day of the auction.

RESERVE PRICE

The seller's minimum acceptable price at auction and the figure below which the auctioneer cannot sell. The reserve price is not disclosed and remains confidential between the seller and the auctioneer. Both the guide price and the reserve price can be subject to change up to and including the day of the auction.

PRE AUCTION OFFERS

Some vendors are willing to consider offers prior to the auction.
Pre auction offers can ONLY be submitted by completing the online PRE AUCTION OFFER FORM
The form can be found on the Hollis Morgan website on the individual auction property listing.
Please note offers will not be considered until you have inspected the COMPLETE LEGAL PACK once it has been released.
There will be a note added to the list to confirm AUCTION PACK NOW COMPLETE when our client’s solicitor informs us no further information is due to be added.
In the event of an offer being accepted the property will only be removed from the online auction and viewings stopped once contracts have successfully EXCHANGED subject to the standard auction terms and payment of the buyer’s premium (£1,800 Inclusive of VAT) to Hollis Morgan.
Contracts can be exchanged via the solicitors or at the Hollis Morgan offices by appointment only.

REGISTRATION PROCESS

The registration process is extremely simple – visit the Hollis Morgan auction website and click on the “Register to Bid” button.
The “Register to Bid” button can be found on the auction home page or on the individual lot listings.
Please note this function is not available on Rightmove or Zoopla.

Stage 1 – Complete the Online Bidding Form
Stage 2 – Upload your certified ID
Stage 3 – Invitation to bid
Stage 4 – Pay your security deposit (£6,800)

You are now ready to bid – Good luck!

If your bid is successful, the balance of the deposit monies must be transferred to our client account within 24 hours of the auction sale.
If you are unsuccessful at the auction your holding deposit will be returned within 48 hours.

SURVEYS AND VALUATIONS

If you would like to arrange a survey or mortgage valuation of this Lot BEFORE the auction, please instruct your appointed surveyor to contact Hollis Morgan and we will arrange access for them to inspect the property. Please note that buyers CANNOT attend the surveys and the surveyors are responsible for collecting and returning keys to the Hollis Morgan offices in Clifton.

AUCTION FINANCE & BRIDGING LOANS

Some properties may require specialist auction finance- please contact Hollis Morgan for access to expert advice and whole of market rates from our independent brokers.

Hollis Morgan may receive introductory fees for this service from the broker.

AUCTION BUYER’S GUIDE VIDEO

We have short video guides for both buying and selling by Public Auction on the Hollis Morgan Website. If you have any further questions regarding the process, please don’t hesitate to contact Auction HQ.

2026 CHARITY OF THE YEAR
Hollis Morgan are proud to be supporting Bristol Schools Rugby Union as our 2026 Charity of the Year. BSRU ( working in association with Bristol Bears ) oversee and support rugby in all schools, State and Independent , in the Greater Bristol area. Bristol Schools provide School Rugby Development opportunities and County level fixtures for secondary boys and girls. Including playing fixtures at U18s against the leading Independent Schools in our region, schools such as Clifton College, BGS, QEH, Collegiate and Millfield. For more information and details of the fixture list please follow them on Instagram.

AUCTION PROPERTY DETAILS DISCLAIMER

Hollis Morgan endeavour to make our sales details clear, accurate and reliable in line with the Consumer Protection from Unfair Trading Regulations 2008 but they should not be relied on as statements or representations of fact, and they do not constitute any part of an offer or contract. All Hollis Morgan references to planning, tenants, boundaries, potential development, tenure etc is to be superseded by the information contained in the legal pack. It should not be assumed that this property has all the necessary Planning, Building Regulation, or other consents. Any services, appliances and heating system(s) listed have not been checked or tested. Please note that in some instances the photographs may have been taken using a wide-angle lens. The seller does not make any representation or give any warranty in relation to the property, and we have no authority to do so on behalf of the seller.


Local Information

Schools Stations Healthcare
Floorplan for PLANNING GRANTED | NEWPORT Floorplan for PLANNING GRANTED | NEWPORT Floorplan for PLANNING GRANTED | NEWPORT Floorplan for PLANNING GRANTED | NEWPORT Floorplan for PLANNING GRANTED | NEWPORT