Sold @ Auction £600,000

209, Gloucester Road, Bishopston, BS7 8NN

Bedrooms 5 Bathrooms 7 Reception 4

  • FOR SALE BY ONLINE AUCTION
  • WEDNESDAY 11TH FEBRUARY 2026
  • DOWNLOAD FREE LEGAL PACK
  • VIDEO TOUR NOW ONLINE
  • VIEWINGS - REFER TO DETAILS
  • SOLD @ FEBRUARY LIVE ONLINE AUCTION
  • FREEHOLD MIXED USE INVESTMENT / DEVELOPMENT
  • 4 X FLATS | COMMERCIAL | RESI DEVELOPMENT TO REAR
  • POTENTIAL £100K + PA INCOME
  • EXTENDED 8 WEEK COMPLETION

FOR SALE BY LIVE ONLINE AUCTION

*** SOLD @ FEBRUARY LIVE ONLINE AUCTION ***

GUIDE PRICE RANGE £550,000 - £650,000
SOLD @ £600,000

ADDRESS | 209 Gloucester Road, Gloucester Road, Bristol BS7 8NN

Lot Number 48

*** PLEASE NOTE NEW AUCTION START TIME - NOW 12:00 ***

The Live Online Auction is on Wednesday 11th February 2026 @ 12:00 Noon
Registration Deadline is on Friday 6th February 2026 @ 16:00

The Auction will be streamed LIVE ONLINE via the Hollis Morgan website & you can choose to bid by telephone, proxy or via your computer.
Registration is a simple online process – please visit the Hollis Morgan auction website and click “REGISTER TO BID”

GUIDE PRICE RANGE

The vendors have issued a guide price range of £550,000 - £650,000 for this lot.

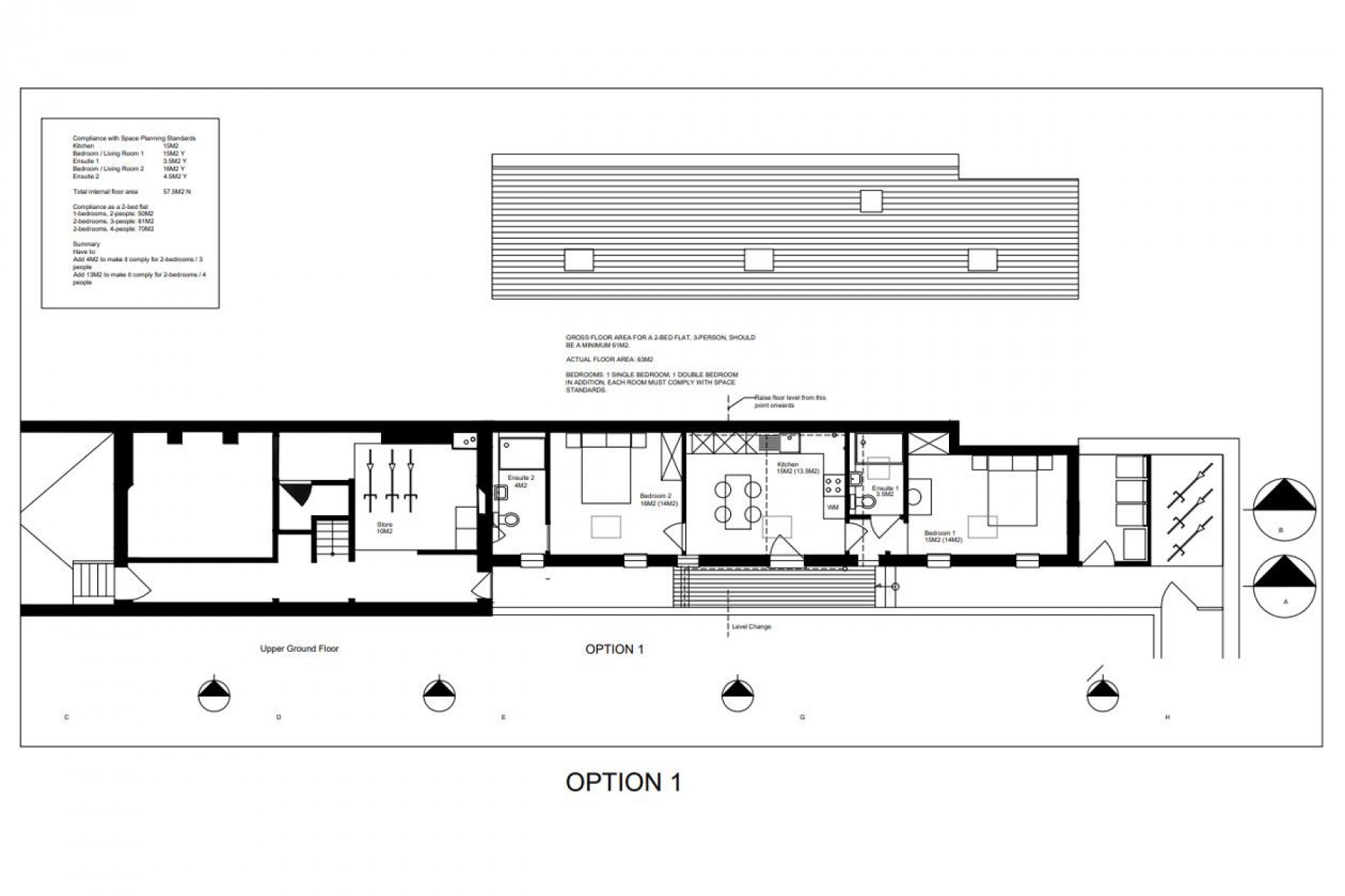
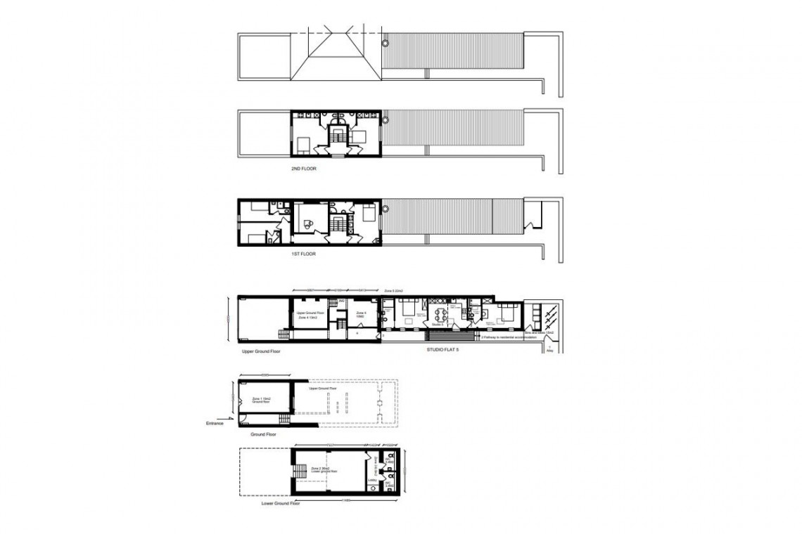
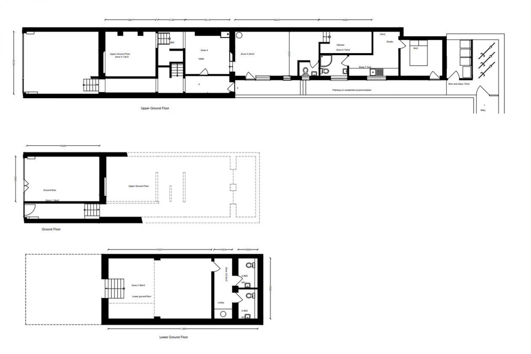
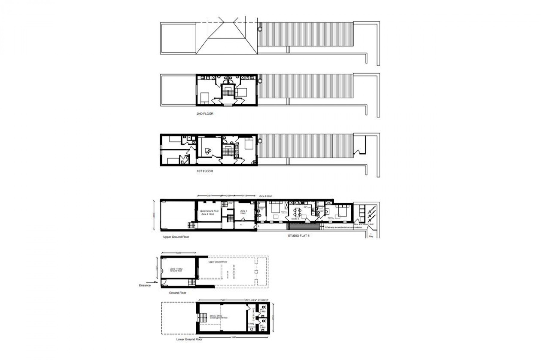
THE PROPERTY

A Freehold mid terraced mixed use property ( 3590 Sq Ft ) comprising the following;

COMMERCIAL

Vacant Retail Unit (Class E)

RESIDENTIAL

Flat 1 – Rear Studio – AST @ £895 pcm
Flat 2 – Front 2 Bed flat – AST @ £1500 pcm
Flat 3 – Rear Studio @ £925 pcm
Flat 4 – Front Studio @ £895 pcm
Sold subject to existing tenancies.

DEVELOPMENT

Vacant Resi to rear with scope for development ( stc )

Tenure - Freehold
Council Tax - Band A
EPC - C, E, C, & D

THE OPPORTUNITY

RESIDENTIAL INVESTMENT

The upper floors comprise 4 tenanted residential units ( 3 Studio | 2 Bed Flat ) let on AST producing £50,580 pa
The Flats are accessed via newly created entrance hall at the front of the property.

DEVELOPMENT @ REAR

The rear of the property is a large single storey building with scope for residential development and independent pedestrian access from Somerville Road
The unit would suit either 2 x 2 beds or a single larger dwelling.

RESI CONVERSION OF RETAIL UNIT

The existing Retail unit (Class E) which is at the front of the building with an excellent trading position onto Gloucester Road is currently vacant but has scope for a residential conversion and additional unit subject to consents.

Example of Conversion of Ground Floor @ 205 Gloucester Road in the same rank.
16/00625/F - Proposed change of use from existing single dwelling to 3 no.self-contained flats.

There is also a large void section in the middle of the ground floor space that has no natural light but a lot of space and scope to be either Incorporated into either the retail unit space or into the rear development.

All subject to gaining the necessary consents.

VACANT RETAIL UNIT (class E)

Local commercial lettings agents have quoted a rental income of £1400 pcm | £16,800 pa
Please note the current vendor has interest from local businesses at circa £1200 / £1500 pcm but no formal lease has been signed.
If you would like to discuss this further please contact us.

POTENTIAL £100K + INCOME

LOCATION

The property has an excellent position on the Gloucester Road with its eclectic range of shops and restaurant and close to the city centre with its business areas, shopping and leisure opportunities as well as some of the major institutions of Bristol including the University of Bristol, UWE and the BRI.

RENTAL APPRAISAL

What rent can we achieve for you?

The Bristol Residential Letting Co. are confident this property would make a good rental investment if brought to a standard suitable for the professional rental market. Danny Dean of The Bristol Residential Letting Co suggests a rent in the region of;

209 Gloucester Road – Studio flats - £1050 - £1150pcm | - £1400pcm - £1500pcm

If you would like to discuss more detail on the potential for rental, you can call me on 07738766640 or email (danny@bristolreslet.com) for a no obligation discussion. I am always happy to advise investors on maximising their investment.

SOLICITORS & COMPLETION

Matthew Martin
Converse Law
01242 323265
07971 239566
matthew.martin@converselaw.com
www.converselaw.com

EXTENDED COMPLETION

Completion is set for 8 weeks or earlier subject to mutual consent.

IMPORTANT AUCTION INFORMATION

VIEWINGS

Please submit a viewing request online and we will contact you to organise an appointment.
We will send you an email and text to confirm the appointment time and the full property address.
Viewings are supervised by a member of the Hollis Morgan Auction team who will meet you at the property.

MATERIAL INFORMATION

Information including utilities, Electricity supply, Water supply, Sewerage, Heating, Broadband, Mobile signal / coverage, Parking, Building safety, Restrictions and rights, Rights and easements, Flood risk, Erosion risk, Coastal erosion risk, Planning permission for proposal for development, Property accessibility / adaptations, Coalfield or mining area all of which will be supplied within the legal pack that can be accessed for free via the Hollis Morgan website or via your EIG account.

ONLINE LEGAL PACKS

Digital Copies of the Online legal pack can be downloaded Free of Charge.
Please visit the Hollis Morgan Website and select the chosen lot from our Current Auction List.
Press the GREEN button to "Download Legal Packs" For the first visit you will be required to register simply with your email and a password.
Having set up your account you can download legal packs or if they are not yet available, they will automatically be sent to you when we receive them.
You will be automatically updated by email if any new information is added.
There will be a note added to the list to confirm AUCTION PACK NOW COMPLETE when no further information is due to be added.
*** STAY UPDATED *** By registering for the legal pack we can ensure you are kept updated on any changes to this Lot in the build up to the sale.

BUYER’S PREMIUM

Please be aware all purchasers are subject to a £1,500 + VAT (£1,800 inc VAT) buyer's premium which is ALWAYS payable upon exchange of contracts whether the sale is concluded before, during or after the auction date.

GUIDE PRICE

An indication of the seller's current minimum acceptable price at auction. The guide price or range of guide prices is given to assist consumers in deciding whether to pursue a purchase. It is usual, but not always the case, that a provisional reserve range is agreed between the seller and the auctioneer at the start of marketing. As the reserve is not fixed at this stage and can be adjusted by the seller at any time up to the day of the auction in the light of interest shown during the marketing period, a guide price is issued. This guide price can be shown in the form of a minimum and maximum price range within which an acceptable sale price (reserve) would fall, or as a single price figure within 10% of which the minimum acceptable price (reserve) would fall. A guide price is different to a reserve price (see separate definition). Both the guide price and the reserve price can be subject to change up to and including the day of the auction.

RESERVE PRICE

The seller's minimum acceptable price at auction and the figure below which the auctioneer cannot sell. The reserve price is not disclosed and remains confidential between the seller and the auctioneer. Both the guide price and the reserve price can be subject to change up to and including the day of the auction.

PRE AUCTION OFFERS

Some vendors are willing to consider offers prior to the auction.
Pre auction offers can ONLY be submitted by completing the online PRE AUCTION OFFER FORM
The form can be found on the Hollis Morgan website on the individual auction property listing.
Please note offers will not be considered until you have inspected the COMPLETE LEGAL PACK once it has been released.
There will be a note added to the list to confirm AUCTION PACK NOW COMPLETE when our client’s solicitor informs us no further information is due to be added.
In the event of an offer being accepted the property will only be removed from the online auction and viewings stopped once contracts have successfully EXCHANGED subject to the standard auction terms and payment of the buyer’s premium (£1,800 Inclusive of VAT) to Hollis Morgan.
Contracts can be exchanged via the solicitors or at the Hollis Morgan offices by appointment only.

REGISTRATION PROCESS

The registration process is extremely simple – visit the Hollis Morgan auction website and click on the “Register to Bid” button.
The “Register to Bid” button can be found on the auction home page or on the individual lot listings.
Please note this function is not available on Rightmove or Zoopla.

Stage 1 – Complete the Online Bidding Form
Stage 2 – Upload your certified ID
Stage 3 – Invitation to bid
Stage 4 – Pay your security deposit (£6,800)

You are now ready to bid – Good luck!

If your bid is successful, the balance of the deposit monies must be transferred to our client account within 24 hours of the auction sale.
If you are unsuccessful at the auction your holding deposit will be returned within 48 hours.

SURVEYS AND VALUATIONS

If you would like to arrange a survey or mortgage valuation of this Lot BEFORE the auction, please instruct your appointed surveyor to contact Hollis Morgan and we will arrange access for them to inspect the property. Please note that buyers CANNOT attend the surveys and the surveyors are responsible for collecting and returning keys to the Hollis Morgan offices in Clifton.

AUCTION FINANCE & BRIDGING LOANS

Some properties may require specialist auction finance- please contact Hollis Morgan for access to expert advice and whole of market rates from our independent brokers.

Hollis Morgan may receive introductory fees for this service from the broker.

AUCTION BUYER’S GUIDE VIDEO

We have short video guides for both buying and selling by Public Auction on the Hollis Morgan Website. If you have any further questions regarding the process, please don’t hesitate to contact Auction HQ.

2026 CHARITY OF THE YEAR

Hollis Morgan are proud to be supporting Bristol Schools Rugby Union as our 2026 Charity of the Year. BSRU ( working in association with Bristol Bears ) oversee and support rugby in all schools, State and Independent , in the Greater Bristol area. Bristol Schools provide School Rugby Development opportunities and County level fixtures for secondary boys and girls. Including playing fixtures at U18s against the leading Independent Schools in our region, schools such as Clifton College, BGS, QEH, Collegiate and Millfield. For more information and details of the fixture list please follow them on Instagram.

AUCTION PROPERTY DETAILS DISCLAIMER

Hollis Morgan endeavour to make our sales details clear, accurate and reliable in line with the Consumer Protection from Unfair Trading Regulations 2008 but they should not be relied on as statements or representations of fact, and they do not constitute any part of an offer or contract. All Hollis Morgan references to planning, tenants, boundaries, potential development, tenure etc is to be superseded by the information contained in the legal pack. It should not be assumed that this property has all the necessary Planning, Building Regulation, or other consents. Any services, appliances and heating system(s) listed have not been checked or tested. Please note that in some instances the photographs may have been taken using a wide-angle lens. The seller does not make any representation or give any warranty in relation to the property, and we have no authority to do so on behalf of the seller.


Local Information

Schools Stations Healthcare
Floorplan for INVESTMENT + DEVELOPMENT | BISHOPSTON