FOR SALE Guide Price £675,000

Development Site @, 79A, Grove Road, Fishponds, BS16 2BP

Bedrooms 33 Bathrooms 22 Reception 11

  • FREEHOLD
  • DEVELOPMENT SITE
  • RESI PLANNING GRANTED
  • 11 X 3 BED HOUSES
  • GDV £4.745m - £4.945m
  • 0.5 ACRES
  • PARKING
  • OFFERS INVITED

THE SITE

ADDRESS | Development Site @ 79a Grove Road, Fishponds, Bristol BS16 2BP

A prime Freehold site of approximately 0.5 acres with a range of existing one and two story buildings and wide frontage on Grove Road within walking distance of the local parks and High Street.
Sold with vacant possession.

Development Costs - Detail available upon request
Tenure - Freehold
Utilities, Rights & Restrictions - Please refer to the Legal Pack
Flood Risk - Please refer to the Legal Pack

THE OPPORTUNITY

DEVELOPMENT SITE | PLANNING GRANTED

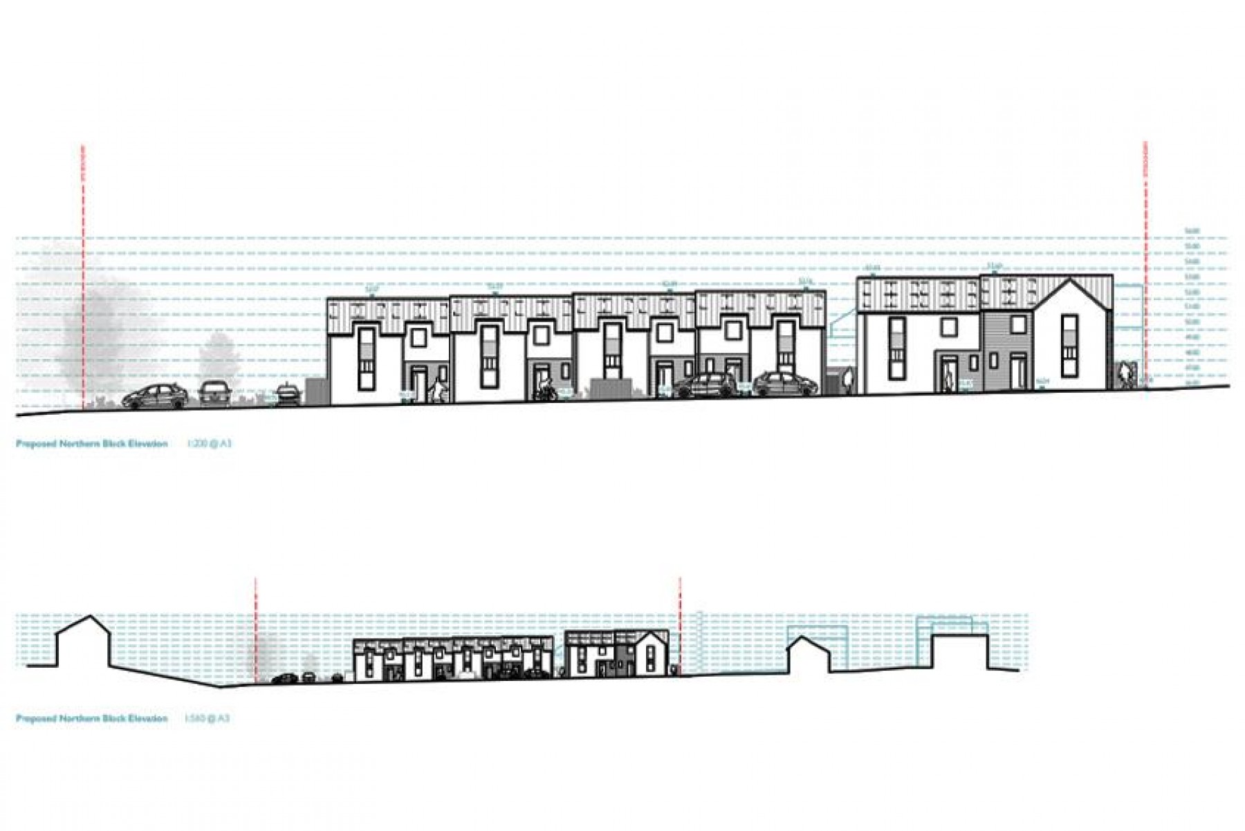
Planning ( 23/00133/F ) has been granted to demolish the existing industrial buildings and erect a stylish scheme of 11 x 3 bedroom dwellings ( 911 Sq Ft ) with parking and gardens and a proposed GDV of £4.745m - £4.945m

Please note were informed there is no condition from the council for the 23/00133/F scheme to be constructed to Passivhaus regs - the only condition relating is a reduction in co2.
Please refer to planning info.

ALTERNATIVE SCHEMES

The site will suit a range of potential uses including continued industrial use or conversion of the existing commercial buildings into residential units.
Interested parties should note the historic and now lapsed planning scheme ( 16/02130/F ) for a higher density development.
All above subject to gaining the necessary consents.

PROPOSED SCHEDULE OF DEVELOPMENT

Unit 1 – 3 Bedroom Semi Detached House | 911 Sq Ft | Parking | Garden
Unit 2 – 3 Bedroom Semi Detached House | 911 Sq Ft | Parking | Garden
Unit 3 – 3 Bedroom End of Terrace House | 911 Sq Ft | Parking | Garden
Unit 4 – 3 Bedroom Terraced House | 911 Sq Ft | Parking | Garden
Unit 5 – 3 Bedroom Terraced House | 911 Sq Ft | Parking | Garden
Unit 6 - 3 Bedroom End of Terrace House | 911 Sq Ft | Parking | Garden
Unit 7 – 3 Bedroom Semi Detached House | 911 Sq Ft | Parking | Garden
Unit 8 – 3 Bedroom Semi Detached House | 911 Sq Ft | Parking | Garden
Unit 9 – 3 Bedroom End of Terrace House | 911 Sq Ft | Parking | Garden
Unit 10 – 3 Bedroom Terraced House | 911 Sq Ft | Parking | Garden
Unit 11– 3 Bedroom End of Terrace House | 911 Sq Ft | Parking | Garden

PROPOSED GDV SCHEDULE

Unit 1 – £400,000 - £425,000
Unit 2 – £400,000 - £425,000
Unit 3 – £400,000 - £425,000
Unit 4 – £400,000 - £425,000
Unit 5 – £400,000 - £425,000
Unit 6 – £400,000 - £425,000
Unit 7 – £400,000 - £425,000
Unit 8 – £400,000 - £425,000
Unit 9 – £400,000 - £425,000
Unit 10 – £400,000 - £425,000
Unit 11– £400,000 - £425,000
Total = £4,400,000 - £4,675,000

For further information on GDV and sales advice please contact Dan Harris from the Hollis Morgan New Homes Team.

PLANNING GRANTED

Reference23/00133/F
Alternative ReferencePP-11788760
Application ReceivedThu 12 Jan 2023
Application ValidatedWed 15 Feb 2023
Address79A Grove Road Fishponds Bristol BS16 2BP
ProposalChange of use from industrial use, including the demolition of the existing industrial buildings, to 11 residential PassivHaus dwellings with associated car parking and landscaping.
StatusDecided
DecisionGRANTED subject to condition(s)
Decision Issued DateFri 21 Mar 2025

LAPSED PLANNING

Reference16/02130/F
Alternative ReferencePP-05056560
Application ReceivedTue 19 Apr 2016
Application ValidatedFri 13 May 2016
Address79A Grove Road Fishponds Bristol BS16 2BP
ProposalChange of use from industrial use, 14 new dwellings and a community hub - Revised Design (Major application).
StatusDecided
DecisionGRANTED subject to condition(s)
Decision Issued DateMon 19 Jun 2017
Appeal StatusUnknown

LOCATION

Fishponds is a popular and thriving neighbourhood located in the eastern outskirts of Bristol, offering a diverse range of housing options to suit all types of buyers. With a mix of period properties and modern developments, Fishponds has a unique character and charm that appeals to many. The area is well-known for its strong community spirit, with plenty of local events and activities throughout the year. The bustling High Street is a major draw, with an array of independent shops, cafes, and restaurants offering an eclectic mix of cuisines and cultures. From artisan bakeries and coffee shops to vintage clothing stores and gift shops, Fishponds has something for everyone. For those who require easy access to the city center, Fishponds is well-connected, with regular buses and a nearby train station providing excellent transport links. It's also just a short distance from the University of the West of England (UWE), making it a popular choice for students. Families with children will appreciate the range of good schools in the area, including Fishponds Church of England Academy and Bristol Metropolitan Academy. For those who enjoy spending time outdoors, Fishponds also has several green spaces, including Fishponds Park.

RENTAL APPRAISAL

What rent can we achieve for you?

The Bristol Residential Letting Co. are confident this property would make a good rental investment if brought to a standard suitable for the professional rental market. Danny Dean of The Bristol Residential Letting Co suggests a rent in the region of;

Development Site @, 79A, Grove Road 3 bed houses- £1600pcm+++++++

If you would like to discuss more detail on the potential for rental, you can call me on 07738766640 or email (danny@bristolreslet.com) for a no obligation discussion. I am always happy to advise investors on maximising their investment.

PROPERTY DETAILS DISCLAIMER

Hollis Morgan endeavour to make our sales details clear, accurate and reliable in line with the Consumer Protection from Unfair Trading Regulations 2008 but they should not be relied on as statements or representations of fact, and they do not constitute any part of an offer or contract. All Hollis Morgan references to planning, tenants, boundaries, potential development, tenure etc is to be superseded by the information contained in the legal pack. It should not be assumed that this property has all the necessary Planning, Building Regulation, or other consents. Any services, appliances and heating system(s) listed have not been checked or tested. Please note that in some instances the photographs may have been taken using a wide-angle lens. The seller does not make any representation or give any warranty in relation to the property, and we have no authority to do so on behalf of the seller.


Local Information

Schools Stations Healthcare
Floorplan for SITE | PLANNING GRANTED | FISHPONDS Floorplan for SITE | PLANNING GRANTED | FISHPONDS