FOR SALE Guide Price £350,000

Development Site @, 23, Montpelier, Weston-Super-Mare, BS23 2RJ

Bedrooms 13 Bathrooms 10 Reception 7

  • FREEHOLD
  • DEVELOPMENT SITE
  • RESI PLANNING GRANTED
  • 7 UNITS
  • GDV £1.895M
  • 4 x 2 bed | 2 bath apartments
  • 1 x 3 bed | 2 bath Duplex
  • 1 X 1 Bed | 1 Bath Flat
  • 1 x 2 bed | 2 Bath Coach House.

THE LAND

ADDRESS | Development Site @ 23 Montpelier, Weston-Super-Mare, North Somerset BS23 2RJ

A level Freehold development site of 0.49 acres with vehicular access from Montpelier.
Sold with vacant possession.

Tenure - Freehold

THE OPPORTUNITY

RESIDENTIAL DEVELOPMENT | PLANNING GRANTED

Planning has been granted to erect a scheme of 7 residential units with an anticipated GDV of £1.895m
The scheme comprises 4 x 2 bed | 2 bath apartments, 1 x 3 bed | 2 bath Duplex, 1 X 1 Bed | 1 Bath Flat and 1 x 2 bed | 2 Bath Coach House.

Interested parties will note that the CIL has been paid ( £26,000 ) following the commencement of works as the site has been excavated and ready for foundations ( £60,000 ) and as such we understand the project can be completed under the previous building regs terms.

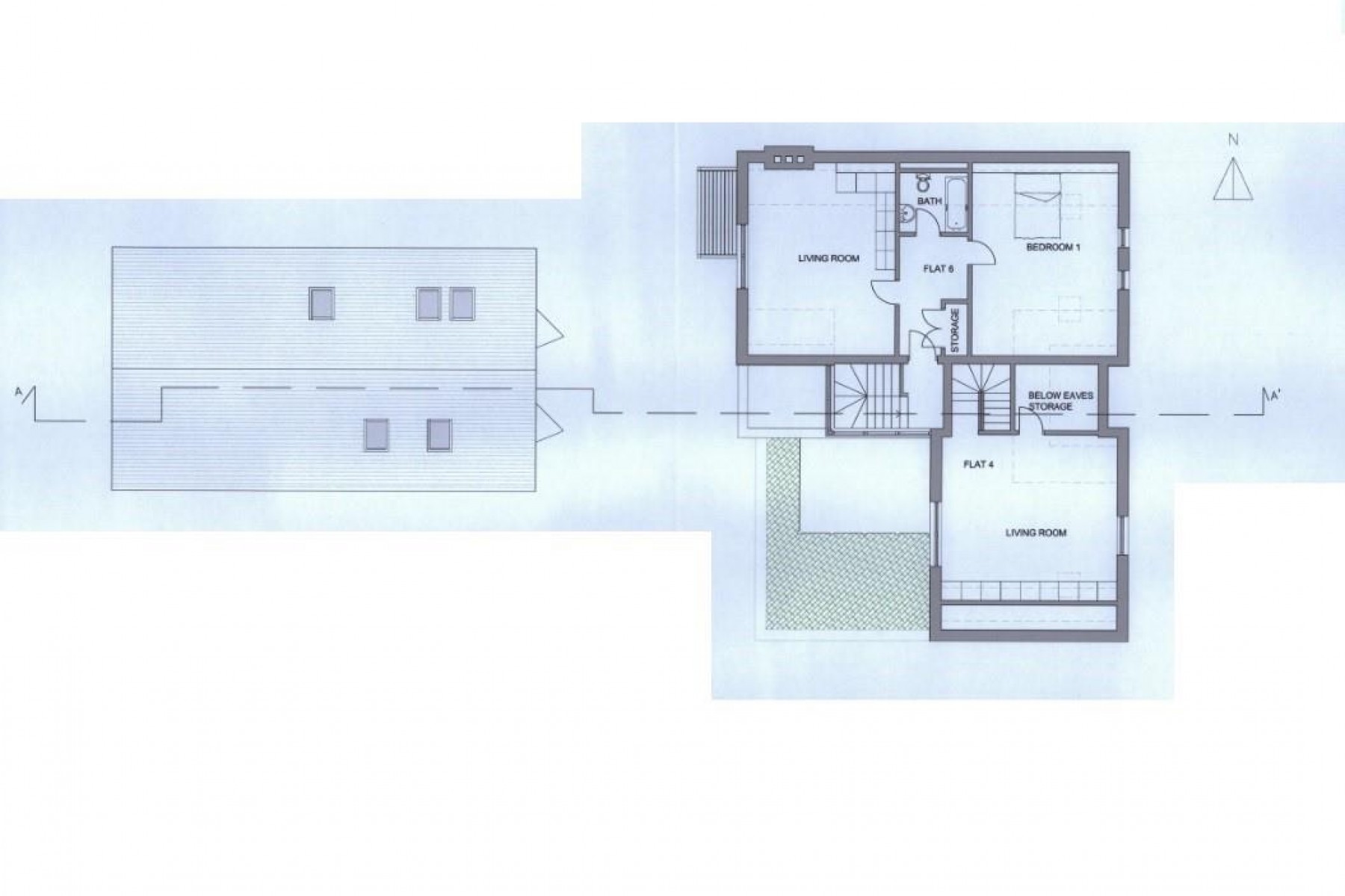
There is potential to tweak the layout of flat 6 to create an extra bedroom to increase to a 2 bed unit.

There is additional land on the site that may have scope for extra development - subject to consents.

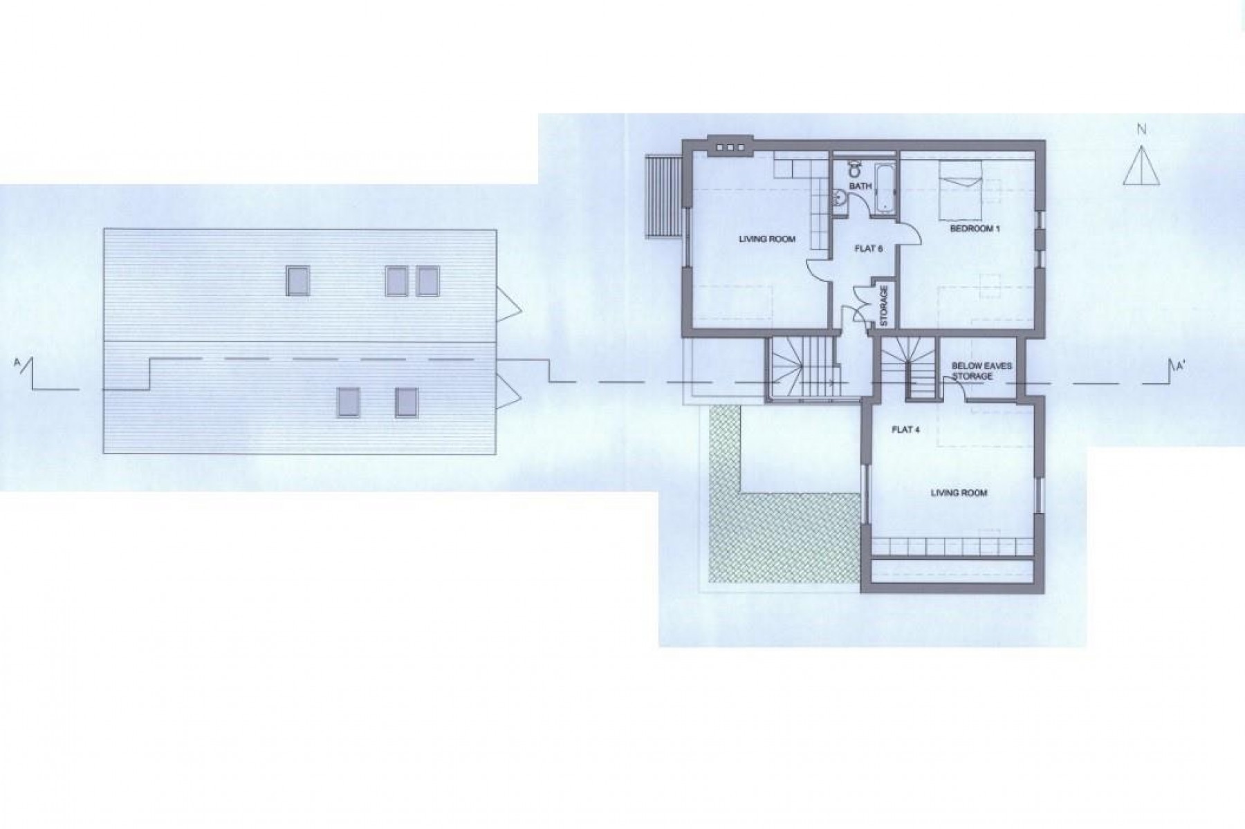
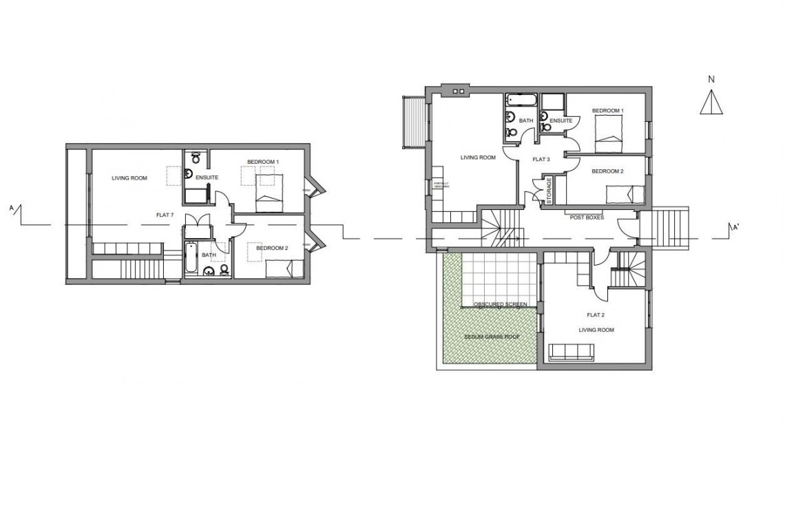
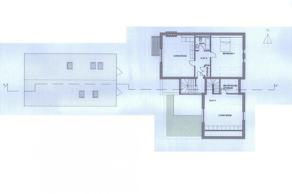
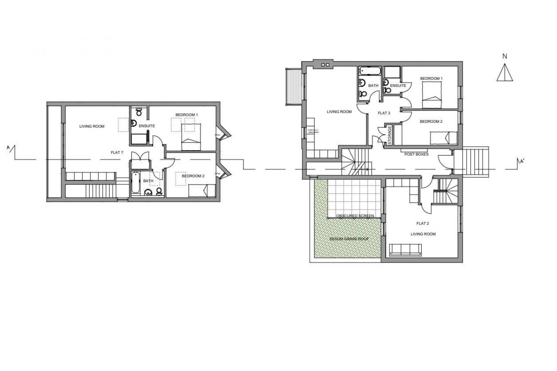
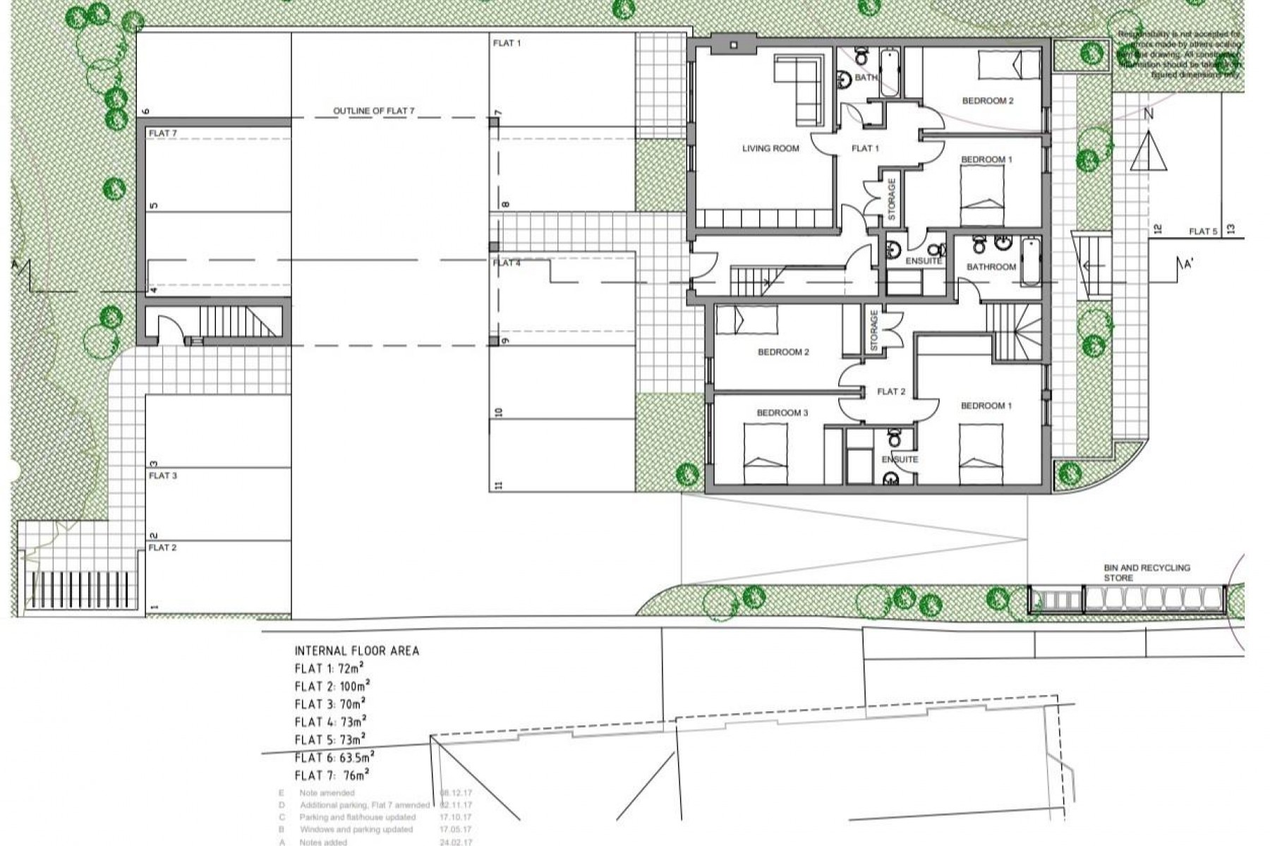
PROPOSED SCHEDULE OF ACCOMODATION

Flat 1 – 775 Sq Ft | Lower Ground Floor | Open Plan Kitchen / Diner / Living Space | Bedroom 1 | En Suite | Bedroom 2 | Bathroom
Flat 2 – 1076 Sq Ft | Lower Ground & Ground Floor | Open Plan Kitchen / Diner / Living Space | Terrace | Bedroom 1 | En Suite | Bedroom 2 | Bedroom 3 | Bathroom
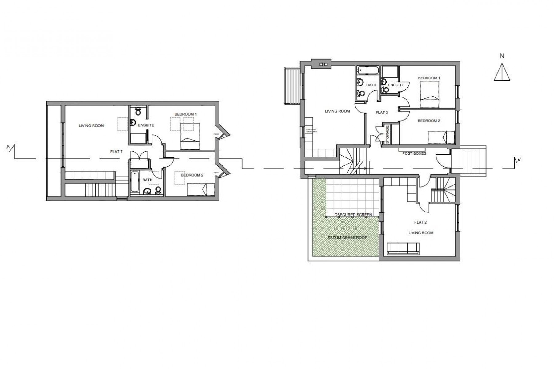
Flat 3 – 753 Sq Ft | Ground Floor | Open Plan Kitchen / Diner / Living Space | Bedroom 1 | En Suite | Bedroom 2 | Bathroom
Flat 4 – 785 Sq Ft | First Floor & Top Floor | Open Plan Kitchen / Diner / Living Space | Bedroom 1 | En Suite | Bedroom 2 | Bathroom
Flat 5 – 785 Sq Ft | First Floor | Open Plan Kitchen / Diner / Living Space | Bedroom 1 | En Suite | Bedroom 2 | Bathroom
Flat 6 – 683 Sq Ft | Top Floor | Open Plan Kitchen / Diner / Living Space | Bedroom 1 | En Suite
Coach House | 818 Sq Ft | Ground Floor | Open Plan Kitchen / Diner / Living Space | Bedroom 1 | En Suite | Bedroom 2 | Bathroom
Allocated off street parking.

PROPOSED SCHEDULE OF GDV

Flat 1 - £250,000
Flat 2 - £320,000
Flat 3 - £260,000
Flat 4 - £275,000
Flat 5 - £265,000
Flat 6 - £250,000
Coach House - £275,000
Total - £1.895m

PLANNING GRANTED

Reference17/P/5425/FUL
Application ReceivedFri 08 Dec 2017
Application ValidatedFri 08 Dec 2017
Address23 Montpelier Weston-super-mare North Somerset
ProposalErection of 7no residential dwellings (flats) with associated parking and landscaping. Alterations to pedestrian and vehicular access
StatusDecided
DecisionApprove
Decision Issued DateWed 14 Mar 2018
Appeal StatusNot Available
Appeal DecisionNot Available

PLANNING UPDATE

20/P/2898/RDC | Request to discharge condition numbers 7 and 21 from planning approval 17/P/5425/FUL

20/P/2961/RDC | Discharge of condition No. 9 on application 17/P/5425/FUL

21/P/1460/MMA | Minor material amendment to vary condition 2 (approved plans) on permission 17/P/5425/FUL (Erection of 7no residential dwellings (flats) with associated parking and landscaping. Alterations to pedestrian and vehicular access) to allow changes to the approved design including removal of chimneys, alterations windows, doors and balconies, change of materials, new railings and new fence to driveway

LOCATION

Weston Super Mare is a popular seaside town located on the Bristol Channel coast of North Somerset situated approximately 18 miles (29 km) south-west of Bristol and has a population of approximately 80,000 people. The town has a long history as a popular holiday destination, with a sandy beach that stretches for over two miles (3.2 km) and a variety of attractions and activities for visitors. The town centre has a mix of old and modern buildings, with several historic landmarks such as the Grand Pier, the Winter Gardens Pavilion, and the Birnbeck Pier. Westons main attraction is its beach, which is backed by a wide promenade and a range of amenities such as cafes, restaurants, and shops. The Grand Pier is a popular destination for families, with a variety of fairground rides, arcade games, and attractions. The town also has several parks and green spaces, including the 12-acre Grove Park, which has a children's play area, a boating lake, and a miniature railway. Other popular parks include Clarence Park and Ashcombe Park, both of which offer picturesque settings for picnics and walks. Weston is well connected with the M5 motorway running nearby and regular train services to Bristol, Bath, and other major cities. The town also has its own railway station, which is located within walking distance of the town center and the beach.

PROPERTY DETAILS DISCLAIMER

Hollis Morgan endeavour to make our sales details clear, accurate and reliable in line with the Consumer Protection from Unfair Trading Regulations 2008 but they should not be relied on as statements or representations of fact, and they do not constitute any part of an offer or contract. All Hollis Morgan references to planning, tenants, boundaries, potential development, tenure etc is to be superseded by the information contained in the legal pack. It should not be assumed that this property has all the necessary Planning, Building Regulation, or other consents. Any services, appliances and heating system(s) listed have not been checked or tested. Please note that in some instances the photographs may have been taken using a wide-angle lens. The seller does not make any representation or give any warranty in relation to the property, and we have no authority to do so on behalf of the seller.


Local Information

Schools Stations Healthcare
Floorplan for SITE | PLANNING GRANTED | W S M Floorplan for SITE | PLANNING GRANTED | W S M Floorplan for SITE | PLANNING GRANTED | W S M Floorplan for SITE | PLANNING GRANTED | W S M