Lot 29

423 Whitehall Road, Whitehall, BS5 7BP

Sold @ Auction £395,000 +++

Bedrooms 14 Bathrooms 8 Reception 1

  • FOR SALE BY ONLINE AUCTION
  • WEDNESDAY 19TH NOVEMBER 2025
  • VIRTUAL TOUR NOW ONLINE
  • VIEWINGS – REFER TO DETAILS
  • LEGAL PACK COMPLETE
  • SOLD @ NOVEMBER LIVE ONLINE AUCTION
  • FREEHOLD DEVELOPMENT OPPORTUNITY
  • PLANNING GRANTED | 14 BED | 8 BATH HMO
  • SCOPE FOR £126K INCOME PA
  • EXTENDED 8 WEEK COMPLETION

FOR SALE BY LIVE ONLINE AUCTION

*** SOLD @ NOVEMBER LIVE ONLINE AUCTION ***

GUIDE PRICE £375,000 +++
SOLD @ £395,000

ADDRESS | 423, Whitehall Road Whitehall, Bristol, BS5 7BP

Lot Number 29

*** PLEASE NOTE NEW AUCTION START TIME - NOW 12:00 ***

The Live Online Auction is on Wednesday 19th November 2025 @ 12:00 Noon
Registration Deadline is on Friday 14th November 2025 @ 16:00

The Auction will be streamed LIVE ONLINE via the Hollis Morgan website & you can choose to bid by telephone, proxy or via your computer.
Registration is a simple online process – please visit the Hollis Morgan auction website and click “REGISTER TO BID”

THE PROPERTY

A Freehold mixed use property occupying a prominent corner position in this popular location with excellent access to the City Centre. The accommodation is currently arranged as a ground floor retail unit with self contained flat on the first floor.
Sold with vacant possession.

Tenure - Freehold
Council Tax - A
EPC - E | C

THE OPPORTUNITY

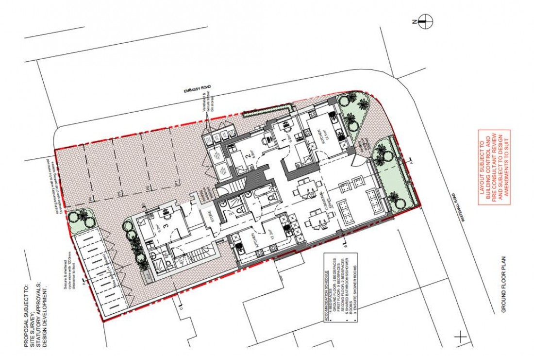
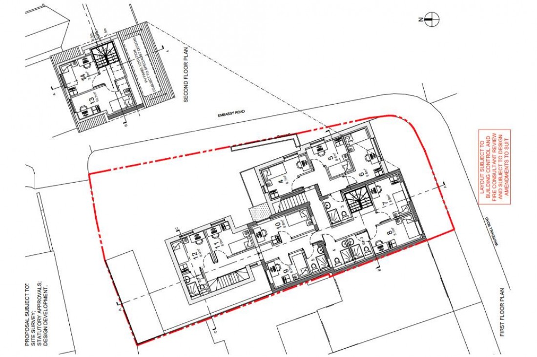
14 BED | 8 BATH HMO

The property has planning granted ( 23/04178/F ) to convert and extend the existing mixed use property into a purpose built high yielding HMO ( 3218 Sq Ft ) with large communal reception area, 2 separate communal kitchen plus 14 beds and 8 bathrooms ( 5 Shared + 3 En Suite ) over 3 floors.
Outside are 4 parking spaces plus bike and bin stores.

POTENTIAL INCOME | £126k

There is scope for £750 pcm per room | £10,500 pcm | £126k pa once completed.
Please refer to independent rental appraisal

ALTERNATIVE SCHEME

There is scope for a range of residential and commercial uses subject to gaining the necessary consents.

PLANNING - CHANGE OF USE

Reference24/04145/COU
Alternative ReferencePP-13493605
Application ReceivedMon 21 Oct 2024
Application ValidatedMon 21 Oct 2024
Address423 Whitehall Road Bristol BS5 7BP
ProposalApplication to determine if prior approval is required for a proposed: Change of use from Commercial, Business and Service (Use Class E) to Dwellinghouses (Use Class C3) Town and Country Planning (General Permitted Development) (England) Order 2015 (as amended) - Schedule 2, Part 3, Class MA - Change of use to 1 No. Residential ground floor flat.
StatusDecided
DecisionPrior Approval GIVEN
Decision Issued DateThu 19 Dec 2024

PLANNING - 14 BED HMO

Reference23/04178/F
Alternative ReferencePP-12563066
Application ReceivedMon 30 Oct 2023
Application ValidatedMon 27 Nov 2023
Address423 Whitehall Road Bristol BS5 7BP
ProposalConversion and enlargement of existing building to create a large house in multiple occupation (Sui generis) comprising 14 bedrooms and associated works.
StatusDecided
DecisionREFUSED
Decision Issued DateMon 16 Dec 2024
Appeal StatusAppeal decided
Appeal DecisionAppeal Allowed

PLANNING INFORMATION

Full details of the proposed scheme and drawings can be downloaded with the online legal pack.

RENTAL APPRAISAL

423 Whitehall Road, Whitehall, BS5 7BP

We have carried out a rental appraisal for the above property as an investment and offer our service to landlords operating in the Bristol area.

Bristol Property Centre. Founded in 2011 by Ashley Day, BPC has grown to have over 400 properties under full management across the whole of Bristol. We also provide let only and rent collect service and can advise on all aspects of residential lettings.

Rental assessment

We have researched the market and believe this property could achieve a rental in the region of £600 to £800 per room Per calendar month this would be on a room by room basis and including bills. We have a very similar 14 bedroom house close-by which we can discuss as a case study.

If you would like a more in depth rental valuation or to arrange a meeting please contact Ashley Day on 0117 9073577 or email ashley@bristolpropertycentre.co.uk

LOCATION

Whitehall Road is one of the main link roads within Whitehall and provides direct access to the City Centre and St. Georges Park. Local amenities and services are all within close proximity including the vibrant Church Road which boasts an array of independent retailers, convenience stores, bars and restaurants. Bristol City Centre is approximately two miles away.

SOLICITORS & COMPLETION

Andrew Given
Goughs
01249 717871
AndrewGiven@Goughs.co.uk
https://www.goughs.co.uk/

EXTENDED COMPLETION

Completion is set for 8 weeks or earlier subject to mutual consent.

LEGAL PACK COMPLETE

We have been informed by our client’s solicitors that the legal pack for this lot is now complete.

Should any last minute addendums occur you will be automatically notified by email.

If the vendors have indicated they are willing to consider pre-auction offers, now is the time to submit your offer by completing the pre-auction offer form.

IMPORTANT AUCTION INFORMATION

VIEWINGS

Please submit a viewing request online and we will contact you to organise an appointment.
We will send you an email and text to confirm the appointment time and the full property address.
Viewings are supervised by a member of the Hollis Morgan Auction team who will meet you at the property.

MATERIAL INFORMATION

Information including utilities, Electricity supply, Water supply, Sewerage, Heating, Broadband, Mobile signal / coverage, Parking, Building safety, Restrictions and rights, Rights and easements, Flood risk, Erosion risk, Coastal erosion risk, Planning permission for proposal for development, Property accessibility / adaptations, Coalfield or mining area all of which will be supplied within the legal pack that can be accessed for free via the Hollis Morgan website or via your EIG account.

ONLINE LEGAL PACKS

Digital Copies of the Online legal pack can be downloaded Free of Charge.
Please visit the Hollis Morgan Website and select the chosen lot from our Current Auction List.
Press the GREEN button to "Download Legal Packs" For the first visit you will be required to register simply with your email and a password.
Having set up your account you can download legal packs or if they are not yet available, they will automatically be sent to you when we receive them.
You will be automatically updated by email if any new information is added.
There will be a note added to the list to confirm AUCTION PACK NOW COMPLETE when no further information is due to be added.
*** STAY UPDATED *** By registering for the legal pack we can ensure you are kept updated on any changes to this Lot in the build up to the sale.

BUYER’S PREMIUM

Please be aware all purchasers are subject to a £1,500 + VAT (£1,800 inc VAT) buyer's premium which is ALWAYS payable upon exchange of contracts whether the sale is concluded before, during or after the auction date.

GUIDE PRICE

An indication of the seller's current minimum acceptable price at auction. The guide price or range of guide prices is given to assist consumers in deciding whether to pursue a purchase. It is usual, but not always the case, that a provisional reserve range is agreed between the seller and the auctioneer at the start of marketing. As the reserve is not fixed at this stage and can be adjusted by the seller at any time up to the day of the auction in the light of interest shown during the marketing period, a guide price is issued. This guide price can be shown in the form of a minimum and maximum price range within which an acceptable sale price (reserve) would fall, or as a single price figure within 10% of which the minimum acceptable price (reserve) would fall. A guide price is different to a reserve price (see separate definition). Both the guide price and the reserve price can be subject to change up to and including the day of the auction.

RESERVE PRICE

The seller's minimum acceptable price at auction and the figure below which the auctioneer cannot sell. The reserve price is not disclosed and remains confidential between the seller and the auctioneer. Both the guide price and the reserve price can be subject to change up to and including the day of the auction.

PRE AUCTION OFFERS

Some vendors are willing to consider offers prior to the auction.
Pre auction offers can ONLY be submitted by completing the online PRE AUCTION OFFER FORM
The form can be found on the Hollis Morgan website on the individual auction property listing.
Please note offers will not be considered until you have inspected the COMPLETE LEGAL PACK once it has been released.
There will be a note added to the list to confirm AUCTION PACK NOW COMPLETE when our client’s solicitor informs us no further information is due to be added.
In the event of an offer being accepted the property will only be removed from the online auction and viewings stopped once contracts have successfully EXCHANGED subject to the standard auction terms and payment of the buyer’s premium (£1,800 Inclusive of VAT) to Hollis Morgan.
Contracts can be exchanged via the solicitors or at the Hollis Morgan offices by appointment only.

REGISTRATION PROCESS

The registration process is extremely simple – visit the Hollis Morgan auction website and click on the “Register to Bid” button.
The “Register to Bid” button can be found on the auction home page or on the individual lot listings.
Please note this function is not available on Rightmove or Zoopla.

Stage 1 – Complete the Online Bidding Form
Stage 2 – Upload your certified ID
Stage 3 – Invitation to bid
Stage 4 – Pay your security deposit (£6,800)

You are now ready to bid – Good luck!

If your bid is successful, the balance of the deposit monies must be transferred to our client account within 24 hours of the auction sale.
If you are unsuccessful at the auction your holding deposit will be returned within 48 hours.

SURVEYS AND VALUATIONS

If you would like to arrange a survey or mortgage valuation of this Lot BEFORE the auction, please instruct your appointed surveyor to contact Hollis Morgan and we will arrange access for them to inspect the property. Please note that buyers CANNOT attend the surveys and the surveyors are responsible for collecting and returning keys to the Hollis Morgan offices in Clifton.

AUCTION FINANCE & BRIDGING LOANS

Some properties may require specialist auction finance- please contact Hollis Morgan for access to expert advice and whole of market rates from our independent brokers.

Hollis Morgan may receive introductory fees for this service from the broker.

AUCTION BUYER’S GUIDE VIDEO

We have short video guides for both buying and selling by Public Auction on the Hollis Morgan Website. If you have any further questions regarding the process, please don’t hesitate to contact Auction HQ.

2025 CHARITY OF THE YEAR

Hollis Morgan is supporting Uncle Pauls Chilli Charity empowering socially disadvantaged people with barriers to learning &/or disabilities based in Butcombe, North Somerset, our land overlooks the Mendip Hills and Blagdon lake. There are three main areas of focus at Uncle Paul’s Chilli Charity Education, Wellbeing and Social Prescribing – visit www.chillicharity.org.uk/ for more details or the Hollis Morgan Charity Page of our website.

AUCTION PROPERTY DETAILS DISCLAIMER

Hollis Morgan endeavour to make our sales details clear, accurate and reliable in line with the Consumer Protection from Unfair Trading Regulations 2008 but they should not be relied on as statements or representations of fact, and they do not constitute any part of an offer or contract. All Hollis Morgan references to planning, tenants, boundaries, potential development, tenure etc is to be superseded by the information contained in the legal pack. It should not be assumed that this property has all the necessary Planning, Building Regulation, or other consents. Any services, appliances and heating system(s) listed have not been checked or tested. Please note that in some instances the photographs may have been taken using a wide-angle lens. The seller does not make any representation or give any warranty in relation to the property, and we have no authority to do so on behalf of the seller.


Local Information

Schools Stations Healthcare
Floorplan for 14 BED + 8 BATH HMO | £126k pa | BS5 Floorplan for 14 BED + 8 BATH HMO | £126k pa | BS5 Floorplan for 14 BED + 8 BATH HMO | £126k pa | BS5