UNDER OFFER, Guide Price £500,000

30, The Mall, Clifton Village, BS8 4DS

Bedrooms 4 Bathrooms 3 Reception 2

  • CLIFTON VILLAGE
  • FREEHOLD COMMERCIAL
  • VACANT
  • RETAIL UNIT + BASEMENT
  • 4 UPPER FLOORS
  • RESI PLANNING GRANTED
  • 2 X 2 BED MAIS
  • HUGE POTENTIAL
  • REQUIRES UPDATING

THE PROPERTY

30 The Mall, Clifton Village, Bristol BS8 4DS

A Freehold period grade II listed property located on the iconic The Mall in the heart of Clifton Village close to the Clifton Club and Mall Gardens with excellent passing trade. The property is arranged over 5 floors plus a basement providing 2876 Sq Ft of accommodation and having most recently been occupied by an art gallery but offered with vacant possession.

Tenure - Freehold
EPC - D
Utilities, Rights & Restrictions - Please refer to the Legal Pack
Flood Risk - Please refer to the Legal Pack

THE OPPORTUNITY

MIXED USE INVESTMENT | DEVELOPMENT

The property has scope for an excellent investment.
The retail unit will produce circa £25,000 pa
The maisonettes will have a resale value of circa £400,000 + each once converted.
Please refer to independent rental appraisal.

RESIDENTIAL PLANNING | UPPER FLOORS

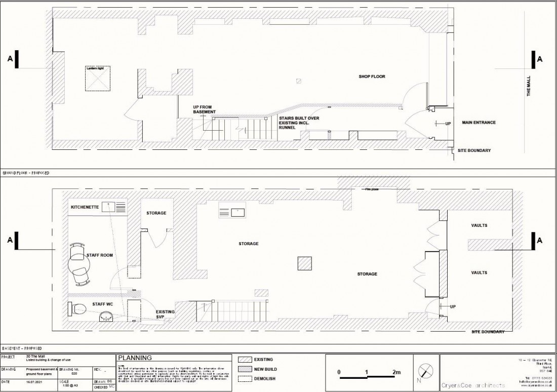
Planning and listed building consent was granted in November 2023 to convert the upper 4 floors into 2 x 2 bedroom maisonettes with independent access from The Mall.
Quote for reinstatement works can be found in the legal pack.

21/05760/F & 21/05761/LA
Change of use from retail to part retail / Class E and residential apartments: Refurbishment of ground and basement providing retail (Class E) use including storage and staff facilities. First to Fourth floor converted to two number two bedroom apartments.

UPPER FLOORS | ALTERNATIVE SCHEME

There is scope for alternative schemes on the upper floors such as a large single dwelling or 4 separate 1 bedroom flats.
Subject to gaining the necessary consents.

PLANNING GRANTED

Reference21/05760/F
Alternative ReferencePP-10324004
Application ReceivedWed 27 Oct 2021
Application ValidatedTue 02 Nov 2021
Address30 The Mall Bristol BS8 4DS
ProposalChange of use from retail to part retail / Class E and residential apartments: Refurbishment of ground and basement providing retail (Class E) use including storage and staff facilities. First to Fourth floor converted to two number two bedroom apartments.
StatusDecided
DecisionGRANTED subject to condition(s)
Decision Issued DateMon 06 Nov 2023

LISTED BUILDING CONSENT

Reference21/05761/LA
Alternative ReferencePP-10324004
Application ReceivedWed 27 Oct 2021
Application ValidatedTue 02 Nov 2021
Address30 The Mall Bristol BS8 4DS
ProposalChange of use from retail to part retail / Class E and residential apartments: Refurbishment of ground and basement providing retail (Class E) use including storage and staff facilities. First to Fourth floor converted to two number two bedroom apartments.
StatusDecided
DecisionGRANTED subject to condition(s)
Decision Issued DateMon 06 Nov 2023

PLANNING INFORMATION

Full details of the proposed scheme and drawings can be downloaded with the online legal pack.

LOCATION

Clifton Village is one of the most unique and sought after locations in the City. From its very early days as a Spa destination to the later Georgians and Victorians Clifton offers charm at every turn from the fine sweep of Royal York Crescent to the grandeur of Victoria Square. At its heart lies the picturesque “Village” offering an eclectic range of independent shops, boutiques, cafes, bars and restaurants including Cote, The Ivy and the Avon Gorge Hotel. The Downs offers four hundred acres of green public space whilst Brunel’s Clifton Suspension Bridge provides a gateway to the Ashton Court Estate with its woodlands, mountain bike trails and walks whilst there is excellent access to the exciting Harbourside district, the City Centre and Temple Meads.

RENTAL APPRAISAL

What rent can we achieve for you?

The Bristol Residential Letting Co. are confident this property would make a good rental investment if brought to a standard suitable for the professional rental market. Danny Dean of The Bristol Residential Letting Co suggests a rent in the region of;

30, The Mall, 2 bedroom maisonette - £1600pcm - £1700pcm | 1 bedroom Apartments - £1300+ per property.

If you would like to discuss more detail on the potential for rental, you can call me on 07738766640 or email (danny@bristolreslet.com) for a no obligation discussion. I am always happy to advise investors on maximising their investment.

PROPERTY DETAILS DISCLAIMER

Hollis Morgan endeavour to make our sales details clear, accurate and reliable in line with the Consumer Protection from Unfair Trading Regulations 2008 but they should not be relied on as statements or representations of fact, and they do not constitute any part of an offer or contract. All Hollis Morgan references to planning, tenants, boundaries, potential development, tenure etc is to be superseded by the information contained in the legal pack. It should not be assumed that this property has all the necessary Planning, Building Regulation, or other consents. Any services, appliances and heating system(s) listed have not been checked or tested. Please note that in some instances the photographs may have been taken using a wide-angle lens. The seller does not make any representation or give any warranty in relation to the property, and we have no authority to do so on behalf of the seller.


Local Information

Schools Stations Healthcare
Floorplan for RESI PLANNING | CLIFTON VILLAGE Floorplan for RESI PLANNING | CLIFTON VILLAGE Floorplan for RESI PLANNING | CLIFTON VILLAGE Floorplan for RESI PLANNING | CLIFTON VILLAGE