Lot 69

Brockweir Mill Brockweir, Near Tintern ( Chepstow ), NP16 7NG

Sold @ Auction £210,000 +++

Bedrooms 20 Bathrooms 10 Reception 10

  • FOR SALE BY ONLINE AUCTION
  • WEDNESDAY 23RD APRIL 2025
  • VIDEO TOUR NOW ONLINE
  • VIEWINGS – REFER TO DETAILS
  • LEGAL PACK COMPLETE
  • SOLD @ APRIL LIVE ONLINE AUCTION
  • FREEHOLD DEVELOPMENT SITE
  • RESI SCHEME | 5 HOUSES
  • 1 ACRE PLOT | VILLAGE LOCATION
  • EXTENDED 8 WEEK COMPLETION

FOR SALE BY LIVE ONLINE AUCTION

*** SOLD @ APRIL LIVE ONLINE AUCTION ***

GUIDE PRICE £200,000 +++
SOLD @£210,000

ADDRESS | Brockweir Mill, Brockweir, Near Tintern ( Chepstow ), NP16 7NG

Lot Number 69

The Live Online Auction is on Wednesday 23rd April 2025 @ 17:30
Registration Deadline is on Monday 21s April 2025 @ 16:00

The Auction will be streamed LIVE ONLINE via the Hollis Morgan website & you can choose to bid by telephone, proxy or via your computer.
Registration is a simple online process – please visit the Hollis Morgan auction website and click “REGISTER TO BID”

THE LAND

ADDRESS | Brockweir Mill, Brockweir, Near Tintern ( Chepstow ), NP16 7NG

A Freehold parcel of land ( circa 1 Acre ) with an existing Mill Building and stream with stunning rural vistas of this iconic Valley just moments from the River Wye and Tintern Abbey.
Sold with vacant possession

Services - We understand the National Grid are in the process of installing a new increased power supply / transformer to the village which will enable power supply to be available on the site - quote to be included in the legal pack.

We also understand from our client that there is no Section 106 requirement connected with this land or the development when completed, and no CIL payment associated with this land or the development is due when completed.

Utilities, Rights & Restrictions - Please refer to the Legal Pack
Flood Risk - Please refer to the Legal Pack

THE OPPORTUNITY

DEVELOPMENT SITE - PLANNING GRANTED 5 HOUSES

The plot has been granted planning to erect a scheme of five houses with an additional 12 parking spaces in this highly sought after village.
New build homes in this location are extremely rare and we would suggest the resale values are in the region of £550,000 - £625,000.
The scheme is set around the restoration of the Brockweir Mill and stream running through the development which combined with the stunning rural views of the Valley will only increase the demand for the completed units.
GDV - £2.75m - £3.125m

LOWER DENSITY SCHEME

Given the quality of the position and outlook interested parties may consider a smaller scheme of 2 or even 1 large property on the site
Subject to consents.

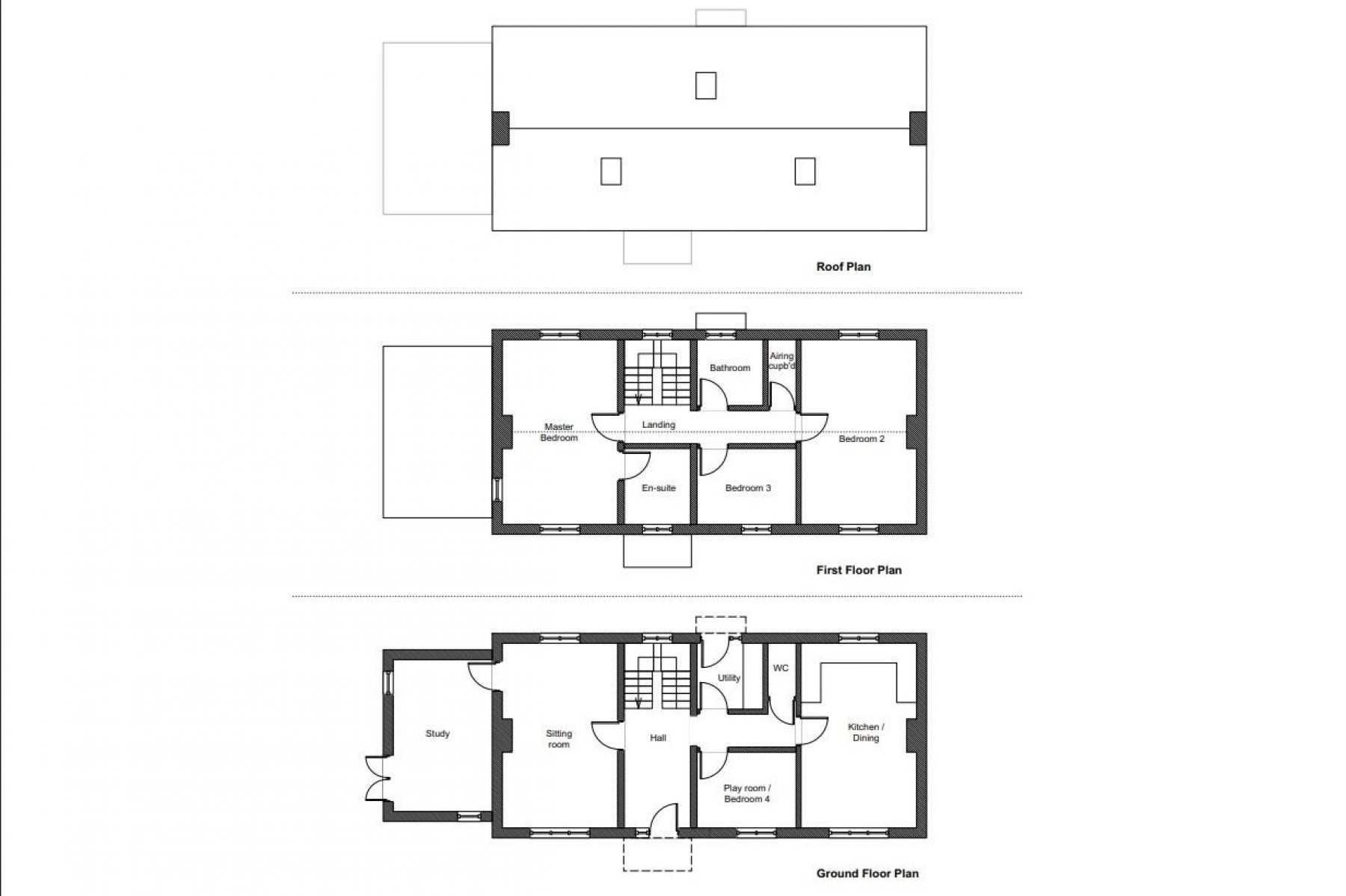
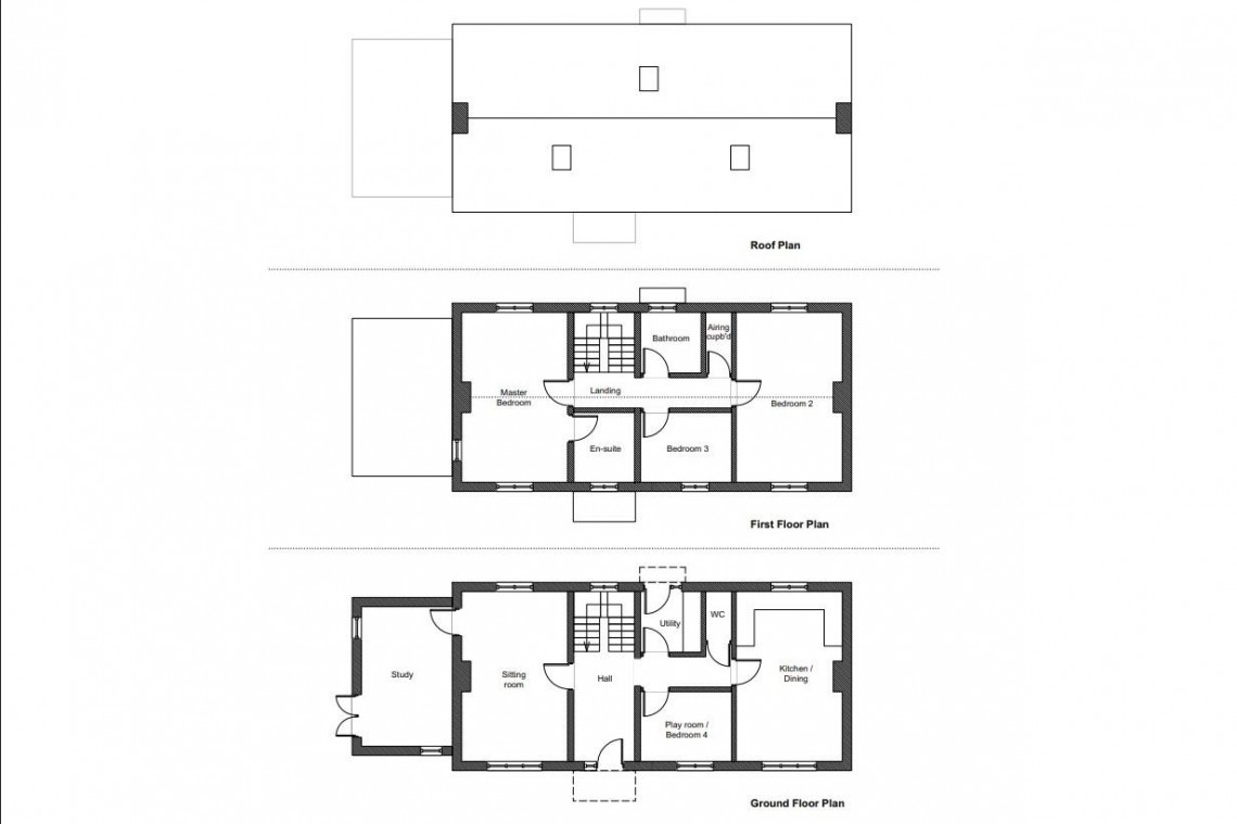
PROPOSED SCHEDULE OF ACCOMMODATION

HOUSE 1
Detached | 3 / 4 Bed | 1668 Sq Ft
Ground Floor – Entrance Hall | Sitting Room | Study |Play Room / Bed 4 | Kitchen / Diner | Utility | WC
First Floor – Landing | Master Bedroom | En Suite | Bedroom 2 | Bedroom 3 | Bathroom
Outside – Private Garden | Allocated Parking

HOUSES 2 & 3
Semi Detached | 4 Bed | 1668 Sq Ft
Ground Floor – Hall | Sitting Room | WC | Utility | Kitchen / Diner
First Floor – Bedroom 1 | En Suite | Bedroom 2 | Bathroom
Second Floor – Bedroom 3 | Bedroom 4 | Shower Room
Outside – Private Garden | Allocated Parking

HOUSE 4
Semi Detached | 4 Bed | 1668 Sq Ft
Ground Floor – Entrance Hall | Kitchen / Diner | WC / Utility | Sitting Room
First Floor – Master Bedroom | En Suite | Bedroom 2 | Bathroom
Second Floor – Bedroom 3 | Bedroom 4 | Shower Room
Outside – Private Garden | Allocated Parking

HOUSE 5
Semi Detached | 4 Bed | 1237 Sq Ft
Ground Floor – Entrance Hall | Kitchen / Diner | Sitting Room | Bedroom 3 | Bedroom 4
First Floor – Master Bedroom | Bedroom 2 | Bathroom
Outside – Private Garden | Allocated Parking

PARKING
10 Off Street allocated parking spaces + 2 visitor spaces.

THE OLD MILL
External renovation required for use as Bat Roost.

PLANNING GRANTED

ReferenceP1129/19/FUL
Alternative ReferenceDF3895
Application ReceivedWed 17 Jul 2019
Application ValidatedFri 19 Jul 2019
AddressLand Adjacent To Gregory Farm Brockweir NP16 7NG
ProposalErection of 5 No. dwellings with associated gardens, landscaping, parking and works. Retention of existing Mill building as bat roost, with any essential repairs required for safety. Opening up of culverted millstream.
StatusConsent
DecisionGranted Permission
Decision Issued DateFri 15 May 2020
Appeal StatusUnknown

Please refer to online Legal pack for documentation to confirm the planning is live as a substantial start had been made as the vendors have laid part of the house foundations to secure permanent planning consent and building regulations at 2022 level.

LOCATION

Situated in the heart of the Wye Valley; an Area of Outstanding Natural Beauty the village of Brockweir, beside the River Wye, has a thriving community village shop, café and Church and is supported by the nearby villages of St Briavels and Tintern each providing many local amenities, including pubs, deli, community shop, castle and church. St Briavels CoE Primary School serves the local school children. There are a number of very good secondary schools, both state and independent, available nearby including, Monmouth Haberdashers Schools and Dean Close St John's on the Hill prep school. There are an abundance of outdoor activities on the doorstep including canoeing or fishing on the River Wye, exploring Tintern Abbey and running or cycling around the stunning countryside of Monmouthshire and the Forest of Dean with Offa's Dyke and the Wye Valley walk a short distance away. The market towns of Chepstow and Monmouth are each within 7 and 10 miles respectively offering a full range of shopping and leisure facilities. Within commuting distance lie the regional centres of Bristol approximately 23 miles and Cardiff 37 miles, via the M48 & M4 Motorways. Rail services are available from Lydney and Chepstow.

SOLICITORS & COMPLETION

Crispin Davy
AMD
0117 9733989
crispindavy@amdsolicitors.com
https://amdsolicitors.com/

EXTENDED COMPLETION

Completion is set for 8 weeks or earlier subject to mutual consent.

LEGAL PACK COMPLETE

We have been informed by our client’s solicitors that the legal pack for this lot is now complete.

Should any last minute addendums occur you will be automatically notified by email.

If the vendors have indicated they are willing to consider pre-auction offers, now is the time to submit your offer by completing the pre-auction offer form.

IMPORTANT AUCTION INFORMATION

VIEWINGS

Please submit a viewing request online and we will contact you to organise an appointment.
We will send you an email and text to confirm the appointment time and the full property address.
Viewings are supervised by a member of the Hollis Morgan Auction team who will meet you at the property.

ONLINE LEGAL PACKS

Digital Copies of the Online legal pack can be downloaded Free of Charge.
Please visit the Hollis Morgan Website and select the chosen lot from our Current Auction List.
Press the GREEN button to "Download Legal Packs" For the first visit you will be required to register simply with your email and a password.
Having set up your account you can download legal packs or if they are not yet available, they will automatically be sent to you when we receive them.
You will be automatically updated by email if any new information is added.
There will be a note added to the list to confirm AUCTION PACK NOW COMPLETE when no further information is due to be added.
*** STAY UPDATED *** By registering for the legal pack we can ensure you are kept updated on any changes to this Lot in the build up to the sale.

BUYER’S PREMIUM

Please be aware all purchasers are subject to a £1,500 + VAT (£1,800 inc VAT) buyer's premium which is ALWAYS payable upon exchange of contracts whether the sale is concluded before, during or after the auction date.

GUIDE PRICE

An indication of the seller's current minimum acceptable price at auction. The guide price or range of guide prices is given to assist consumers in deciding whether to pursue a purchase. It is usual, but not always the case, that a provisional reserve range is agreed between the seller and the auctioneer at the start of marketing. As the reserve is not fixed at this stage and can be adjusted by the seller at any time up to the day of the auction in the light of interest shown during the marketing period, a guide price is issued. This guide price can be shown in the form of a minimum and maximum price range within which an acceptable sale price (reserve) would fall, or as a single price figure within 10% of which the minimum acceptable price (reserve) would fall. A guide price is different to a reserve price (see separate definition). Both the guide price and the reserve price can be subject to change up to and including the day of the auction.

RESERVE PRICE

The seller's minimum acceptable price at auction and the figure below which the auctioneer cannot sell. The reserve price is not disclosed and remains confidential between the seller and the auctioneer. Both the guide price and the reserve price can be subject to change up to and including the day of the auction.

PRE AUCTION OFFERS

Some vendors are willing to consider offers prior to the auction.
Pre auction offers can ONLY be submitted by completing the online PRE AUCTION OFFER FORM
The form can be found on the Hollis Morgan website on the individual auction property listing.
Please note offers will not be considered until you have inspected the COMPLETE LEGAL PACK once it has been released.
There will be a note added to the list to confirm AUCTION PACK NOW COMPLETE when our client’s solicitor informs us no further information is due to be added.
In the event of an offer being accepted the property will only be removed from the online auction and viewings stopped once contracts have successfully EXCHANGED subject to the standard auction terms and payment of the buyer’s premium (£1,800 Inclusive of VAT) to Hollis Morgan.
Contracts can be exchanged via the solicitors or at the Hollis Morgan offices by appointment only.

REGISTRATION PROCESS

The registration process is extremely simple – visit the Hollis Morgan auction website and click on the “Register to Bid” button.
The “Register to Bid” button can be found on the auction home page or on the individual lot listings.
Please note this function is not available on Rightmove or Zoopla.

Stage 1 – Complete the Online Bidding Form
Stage 2 – Upload your certified ID
Stage 3 – Invitation to bid
Stage 4 – Pay your security deposit (£6,800)

You are now ready to bid – Good luck!

If your bid is successful, the balance of the deposit monies must be transferred to our client account within 24 hours of the auction sale.
If you are unsuccessful at the auction your holding deposit will be returned within 48 hours.

SURVEYS AND VALUATIONS

If you would like to arrange a survey or mortgage valuation of this Lot BEFORE the auction, please instruct your appointed surveyor to contact Hollis Morgan and we will arrange access for them to inspect the property. Please note that buyers CANNOT attend the surveys and the surveyors are responsible for collecting and returning keys to the Hollis Morgan offices in Clifton.

AUCTION FINANCE & BRIDGING LOANS

Some properties may require specialist auction finance- please contact Hollis Morgan for access to expert advice and whole of market rates from our independent brokers.

Hollis Morgan may receive introductory fees for this service from the broker.

AUCTION BUYER’S GUIDE VIDEO

We have short video guides for both buying and selling by Public Auction on the Hollis Morgan Website. If you have any further questions regarding the process, please don’t hesitate to contact Auction HQ.

2025 CHARITY OF THE YEAR

Hollis Morgan is supporting Uncle Pauls Chilli Charity empowering socially disadvantaged people with barriers to learning &/or disabilities based in Butcombe, North Somerset, our land overlooks the Mendip Hills and Blagdon lake. There are three main areas of focus at Uncle Paul’s Chilli Charity Education, Wellbeing and Social Prescribing – visit www.chillicharity.org.uk/ for more details or the Hollis Morgan Charity Page of our website.

AUCTION PROPERTY DETAILS DISCLAIMER

Hollis Morgan endeavour to make our sales details clear, accurate and reliable in line with the Consumer Protection from Unfair Trading Regulations 2008 but they should not be relied on as statements or representations of fact, and they do not constitute any part of an offer or contract. All Hollis Morgan references to planning, tenants, boundaries, potential development, tenure etc is to be superseded by the information contained in the legal pack. It should not be assumed that this property has all the necessary Planning, Building Regulation, or other consents. Any services, appliances and heating system(s) listed have not been checked or tested. Please note that in some instances the photographs may have been taken using a wide-angle lens. The seller does not make any representation or give any warranty in relation to the property, and we have no authority to do so on behalf of the seller.


Local Information

Schools Stations Healthcare
Floorplan for PLANNING | 5 HOUSES | BROCKWEIR Floorplan for PLANNING | 5 HOUSES | BROCKWEIR Floorplan for PLANNING | 5 HOUSES | BROCKWEIR Floorplan for PLANNING | 5 HOUSES | BROCKWEIR Floorplan for PLANNING | 5 HOUSES | BROCKWEIR Floorplan for PLANNING | 5 HOUSES | BROCKWEIR Floorplan for PLANNING | 5 HOUSES | BROCKWEIR