SOLD, Guide Price £610,000

Development Opportunity @, 20, Church Road, Redfield, BS5 9JA

Bedrooms 18 Bathrooms 13 Reception 3

  • FREEHOLD
  • DEVELOPMENT OPPORTUNITY
  • PLANNING GRANTED
  • 18 BED / 13 BATH HMO
  • POTENTIAL INCOME - £165K PA
  • CENTRAL LOCATION
  • COMMERCIAL COVERSION

THE PROPERTY

ADDRESS | 20 Church Rd, Redfield, Bristol BS5 9JA

A Freehold opportunity to acquire this imposing corner property with accommodation arranged over 3 floors with access from Cobden Street and fronting the busy Church Road close to the City Centre.
Sold with vacant possession.

Tenure - Freehold
Utilities, Rights & Restrictions - Please refer to the Legal Pack
Flood Risk - Please refer to the Legal Pack

THE OPPORTUNITY

DEVELOPMENT | INVESTMENT | £162k pa

Planning has been granted to convert the property into a 18 bedroom, 13 bathroom investment block.
We understand there is scope for a rental income of £750 pcm ( inclusive of bills ) for each room.

18 Beds - £13,500 pcm | £162,000 pa

Please refer to independent appraisal in the online legal pack.

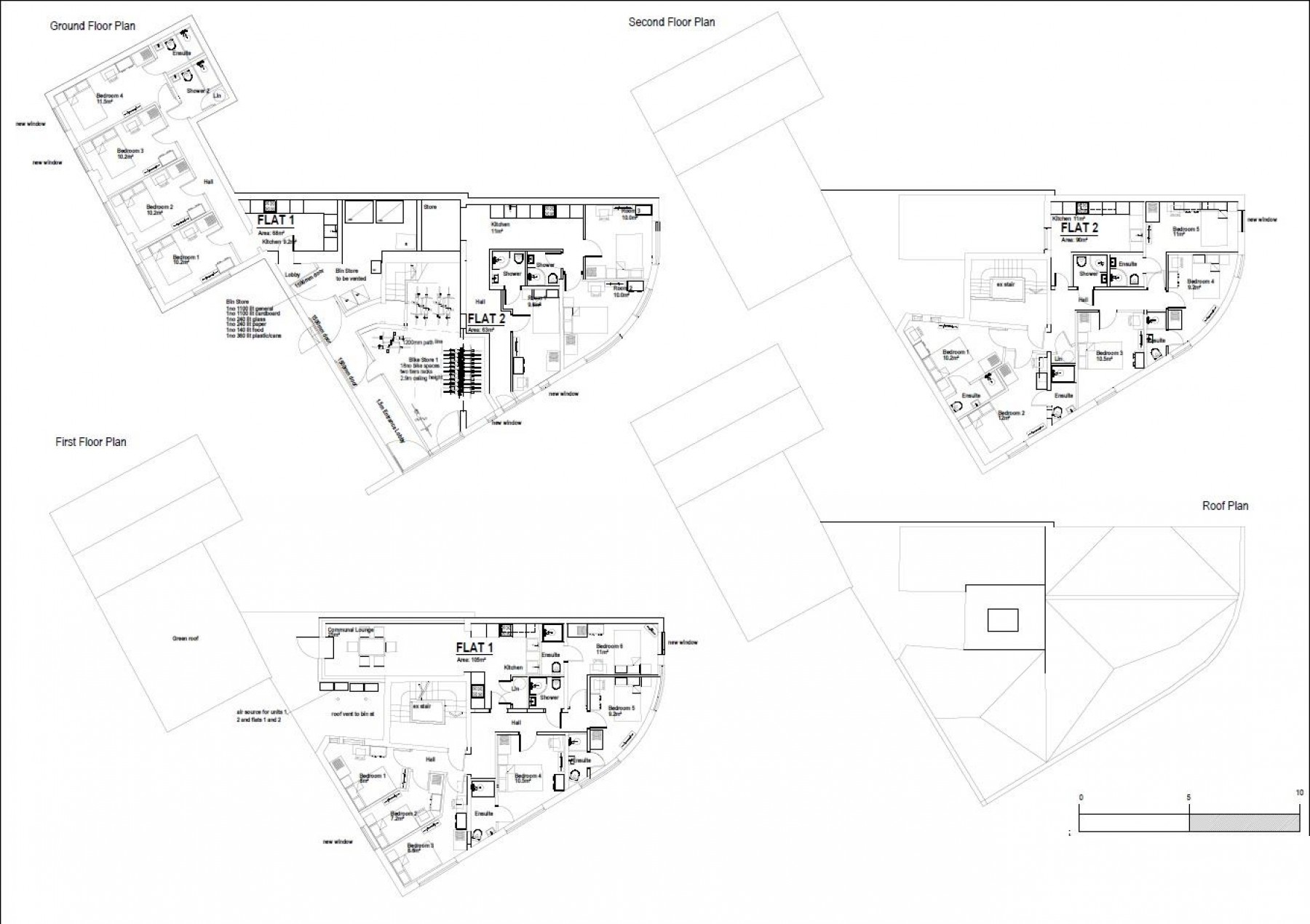
GROUND FLOOR

Access | Communal Bin & Bike stores

Flat 1 | 731 Sq Ft

Kitchen | Bedroom 1 | En Suite | Bedroom 2 | Bedroom 3 | Bedroom 4 | Bathroom

Flat 2 | 678 Sq Ft

Open plan Kitchen / dining / living space | Bedroom 1 | En suite | Bedroom 2 | Bedroom 3 | Bathroom

FIRST FLOOR FLAT | 1280 Sq Ft

Communal Open Plan Lounge / Kitchen / Diner | Bedroom 1 | Bedroom 2 | Bedroom 3 | Shower Room for Bedroom 1,2,3 | Bedroom 4 + En Suite | Bedroom 5 + En Suite | Bedroom 6 + En Suite

SECOND FLOOR FLAT | 1097 Sq Ft

Communal Kitchen | Bedroom 1 + En Suite | Bedroom 2 + En Suite | Bedroom 3 | Shower Room for Bed 3 | Bedroom 4 + En Suite | Bedroom 5 + En Suite

LOCATION

Redfield and nearby St George is a vibrant and diverse area located in East Bristol close to the City Centre. One of the main advantages of living in the area is its proximity to St George's Park, a beautiful green with a range of facilities, including tennis courts, a children's playground, and a boating lake. St George is also home to a thriving high street, Church Road, which offers a fantastic range of independent shops, cafes, and restaurants, as well as several supermarkets. The area has a strong sense of community, with regular local events and festivals whilst all the amenities of Bristol City centre are nearby.

PLANNING | GROUND FLOOR

Reference24/00627/COU
Alternative ReferencePP-12810618
Application ReceivedFri 16 Feb 2024
Application ValidatedFri 16 Feb 2024
Address20 Church Road Lawrence Hill Bristol BS5 9JA
ProposalApplication to determine if prior approval is required for a proposed: Change of use from Commercial, Business and Service (Use Class E) to Dwellinghouses (Use Class C3) Town and Country Planning (General Permitted Development) (England) Order 2015 (as amended) - Schedule 2, Part 3, Class MA - Proposed residential conversion of ground floor office to 2no 2 bedroom self contained flats with ssociated access
StatusDecided
DecisionPrior Approval GIVEN
Decision Issued DateTue 09 Apr 2024
Appeal StatusUnknown

PLANNING | UPPER FLOORS

Reference23/04825/F
Alternative ReferencePP-12673513
Application ReceivedWed 13 Dec 2023
Application ValidatedWed 20 Dec 2023
Address20 Church Road Lawrence Hill Bristol BS5 9JY
ProposalConversion of a mixed-use commercial building to ground floor offices and 2no. small Houses in Multiple Occupation (HMOs) (C4), with associated cycle parking and refuse storage.
StatusDecided
DecisionGRANTED subject to condition(s)
Decision Issued DateWed 14 Feb 2024
Appeal StatusUnknown

PLANNING | 3 EXTRA ROOMS

Reference24/01716/F
Alternative ReferencePP-13026292
Application ReceivedThu 02 May 2024
Application ValidatedThu 02 May 2024
Address20 Church Road Lawrence Hill Bristol BS5 9JA
ProposalConversion of part of existing ground floor from commercial (class E) to 2no C4 small hmo flats with associated bike and bin storage.
StatusDecided
DecisionGRANTED subject to condition(s)
Decision Issued DateTue 17 Sep 2024

PLANNING INFORMATION

Full details of the proposed scheme and drawings can be downloaded with the online legal pack.

PROPERTY DETAILS DISCLAIMER

Hollis Morgan endeavour to make our sales details clear, accurate and reliable in line with the Consumer Protection from Unfair Trading Regulations 2008 but they should not be relied on as statements or representations of fact, and they do not constitute any part of an offer or contract. All Hollis Morgan references to planning, tenants, boundaries, potential development, tenure etc is to be superseded by the information contained in the legal pack. It should not be assumed that this property has all the necessary Planning, Building Regulation, or other consents. Any services, appliances and heating system(s) listed have not been checked or tested. Please note that in some instances the photographs may have been taken using a wide-angle lens. The seller does not make any representation or give any warranty in relation to the property, and we have no authority to do so on behalf of the seller.


Local Information

Schools Stations Healthcare
Floorplan for 18 BED HMO | £167k pa | BS5 Floorplan for 18 BED HMO | £167k pa | BS5 Floorplan for 18 BED HMO | £167k pa | BS5 Floorplan for 18 BED HMO | £167k pa | BS5