SOLD, Guide Price £220,000

Land @, Raynes Road, Ashton, BS3 2DN


  • BUILDING PLOT
  • PP DETACHED DWELLING
  • SOUGHT AFTER LOCATION
  • FREEHOLD
  • BS3

The Land

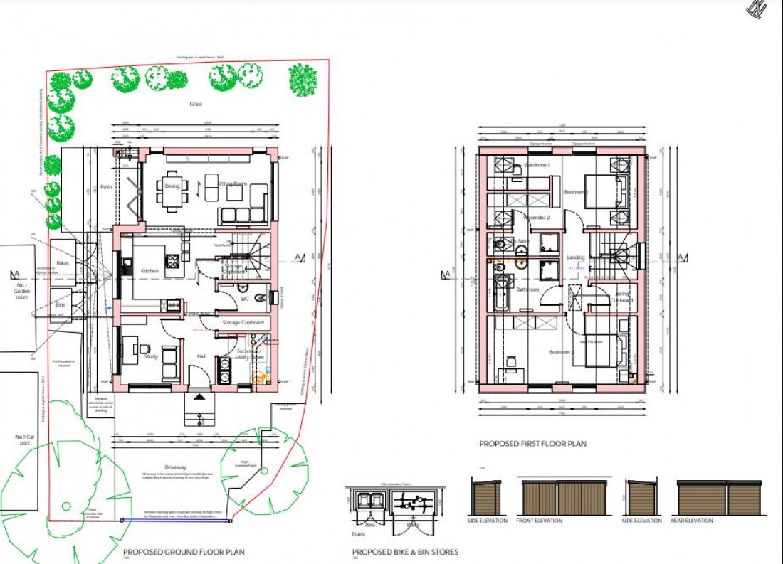
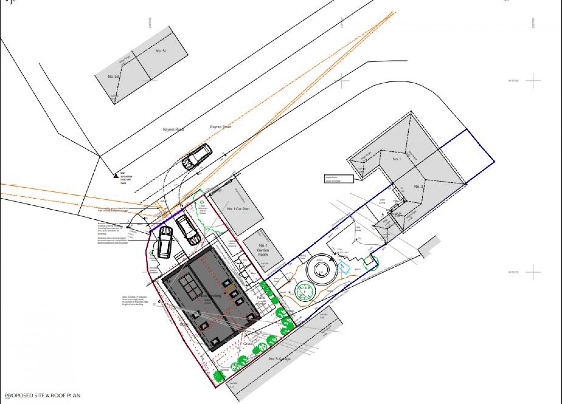
An extremely rare opportunity to purchase a Freehold parcel of land in the heart of BS3. Full planning has been granted to erect a stylish yet highly energy efficient detached home set overt two floors, perfect for a developer or self builder. Once constructed in line with market standards the property would warrant a price in the region of £600,000.

Planning Information

21/01894/F | Demolition of existing garages and construction of a new dwelling. (Self build) | 3 Gerald Road Bristol BS3 2DN

https://pa.bristol.gov.uk/online-applications/applicationDetails.do?keyVal=QR14X0DNGT500&activeTab=summary

C.I.L

Community Infrastructure Levy of £4000 is payable upon commencement of works.

Location

This property has easy access to Bristol City Centre, Bristol International Airport, Ashton Court Estate and the Bristol Link Road. This Ashton location offers the flourishing independent shops, bars and restaurants of North street and is in close proximity to Whapping Wharf and Bristol Temple Meads train station. A vast array of well-respected schools are nearby. This property is welcomed to the sales market with no onward chain.

Please Note

Please Note - Hollis Morgan endeavour to make our sales details clear, accurate and reliable in line with the Consumer Protection from Unfair Trading Regulations 2008 but they should not be relied on as statements or representations of fact and they do not constitute any part of an offer or contract. All Hollis Morgan references to planning, tenants, boundaries, potential development, tenure etc is to be superseded by the information provided in your solicitors enquiries. It should not be assumed that this property has all the necessary Planning, Building Regulation or other consents. Any services, appliances and heating system(s) listed may not been checked or tested and you should rely on your own investigations. The seller does not make any representation or give any warranty in relation to the property and we have no authority to do so on behalf of the seller. Please note that in some instances the photographs may have been taken using a wide angle lens.


Local Information

Schools Stations Healthcare
Floorplan for Gerald Road, Ashton