Sold @ Auction £600,000

254 - 256, Two Mile Hill Road, Kingswood, BS15 1BA

Bedrooms 21 Bathrooms 12 Reception 12

  • FOR SALE BY ONLINE AUCTION
  • WEDNESDAY 19TH APRIL 2023
  • VIDEO TOUR NOW ONLINE
  • VIEWINGS - REFER TO DETAILS
  • DOWNLOAD ONLINE LEGAL PACKS
  • SOLD @ APRIL ONLINE AUCTION
  • FREEHOLD DEVELOPMENT SITE
  • PLANNING GRANTED | £2.6M GDV
  • 6 X FLATS | 3 X TOWNHOUSES
  • EXTENDED 8 WEEK COMPLETION

FOR SALE BY LIVE ONLINE AUCTION

*** SOLD PRIOR TO AUCTION ***

GUIDE £585,000 +++
SOLD @ £600,000

ADDRESS | 254-256 Two Mile Hill Road, Kingswood, Bristol, BS15 1BA

Lot Number 11
The Live Online Auction is on Wednesday 19th April 2023 @ 17:30
Registration Deadline is on Monday 17th April 2023 @ 16:00

The Auction will be streamed LIVE ONLINE via the Hollis Morgan website & you can chose to bid by telephone, proxy or via your computer.
Registration is a simple online process – please visit the Hollis Morgan auction website and click “REGISTER TO BID”

VIEWINGS

Viewings can be booked on specific days for this property – please submit a viewing request online and we will contact you to arrange access.
Hollis Morgan would be grateful if you could arrive promptly to inspect the properties at the START of the agreed time as we have scheduled viewings throughout the day and CANNOT wait for late arrivals.
There are likely to be viewings on the property before and after your appointment and if you miss your slot (usually 15 minutes or longer for larger properties) you will be asked to wait until the next available time.

EXTENDED COMPLETION

Completion is set for 8 weeks or earlier subject to mutual consent.

ONLINE LEGAL PACKS

Digital Copies of the Online legal pack can be downloaded Free of Charge.
Please visit the Hollis Morgan Website and select the chosen lot from our Current Auction List.
Follow the RED link to "Download Legal Packs" For the first visit you will be required to register simply with your email and a password.
Having set up your account you can download legal packs or if they are not yet available, they will automatically be sent to you when we receive them.
You will be automatically updated by email if any new information is added.
There will be a note added to the list to confirm AUCTION PACK NOW COMPLETE when no further information is due to be added.
*** STAY UPDATED *** By registering for the legal pack we can ensure you are kept updated on any changes to this Lot in the build up to the sale.

EPC

For full details of the EPC please refer to the online legal pack.

LEGAL PACK COMPLETE

We have been informed by our client’s solicitors that the legal pack for this lot is now complete.

Should any last minute addendums occur you will be automatically notified by email.

If the vendors have indicated they are willing to consider pre-auction offers, now is the time to submit your offer by completing the pre-auction offer form.

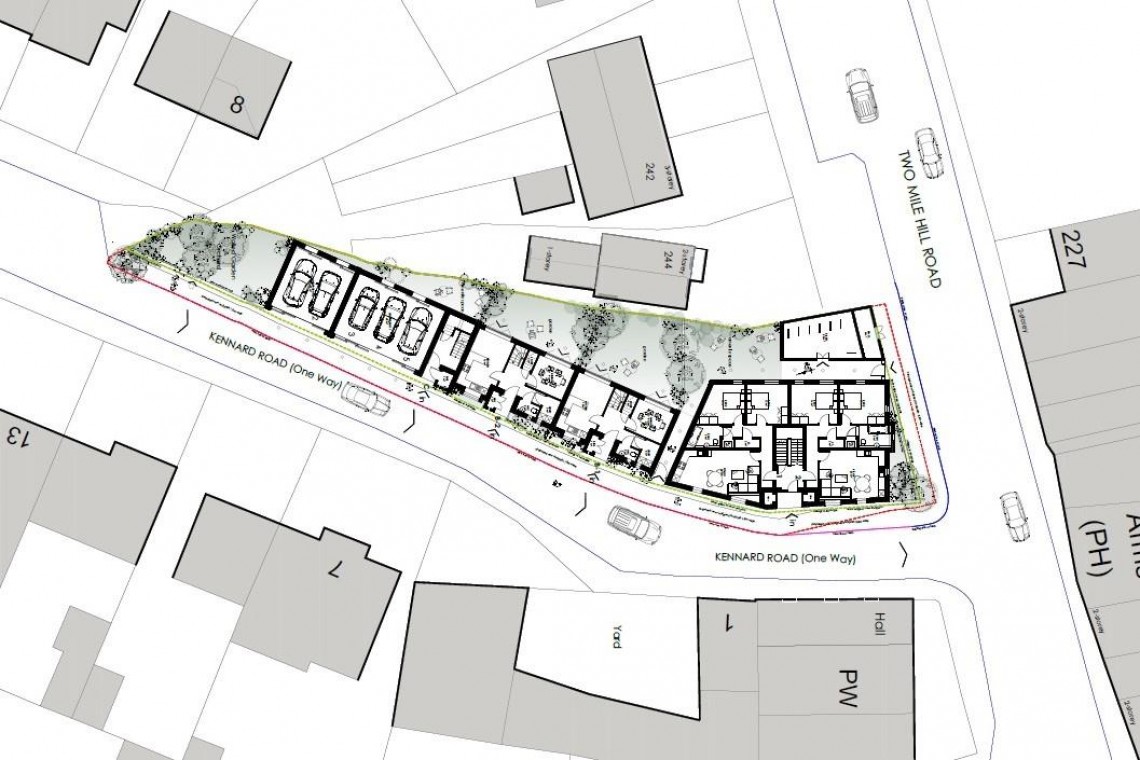
THE LAND

A Freehold parcel of land ( 0.15 Acres ) on the corner of Two Mile Hill and Kennard Road.
Sold with vacant possession.

LOCATION

Two Mile Hill is located just a few miles East of Bristol city centre, providing easy access to the city's shops, restaurants, and cultural attractions. The area has excellent transport links, with regular buses and easy access to the M4 and M5 motorways, making it an ideal location for commuters. The housing stock in Two Mile Hill is diverse, with a range of property types, including Victorian terraces, 1930s semis, and modern apartments, there are several parks and green spaces nearby, including the popular Kingswood Park. The area is served by several primary and secondary schools including the highly regarded Two Mile Hill Primary School. There are also plenty of amenities in the area, including supermarkets, shops, and restaurants.

THE OPPORTUNITY

PLANNING GRANTED | 9 UNITS

The site has planning for a 9 unit scheme ( 6 x Flats | 3 x Townhouses ) with a GDV of £2.6m

PROPOSED SCHEDULE OF ACCOMMODATION

GROUND FLOOR

Apt 1 - 70 sq.m 2 bed / 4 Person apartment
Apt 2 - 70 sq.m 2 bed / 4 Person apartment

FIRST FLOOR

Apt 3 - 70 sq.m 2 bed / 4 Person apartment
Apt 4 - 70 sq.m 2 bed / 4 Person apartment

SECOND FLOOR

Apt 5 - 70 sq.m 2 bed / 4 Person apartment
Apt 6 - 70 sq.m 2 bed / 4 Person apartment

SUB TOTAL = 6 x Apartment

HOUSES

Home Type B - 134 sq.m 3 bed / 5 Person Town house
Home Type B - 134 sq.m 3 bed / 5 Person Town house
Home Type C - 132 sq.m 3 bed / 6 Person Coach house

SUB TOTAL = 3 x Houses
















TOTAL = 9No. DWELLINGS

HOLLIS MORGAN NEW HOMES

The New Homes team have appraised the site and are happy to discuss GDV and any other questions regarding the completed development.

PLANNING GRANTED

NOTICE OF DECISION Town and Country Planning Act 1990 (as amended)
Town and Country Planning (Development Management Procedure) (England) Order 2015
Decision : GRANTED subject to condition(s)
Application no: 21/05368/P
Type of application: Outline Planning
Site address: Land Of Former 254 To 256, Two Mile Hill Road, Bristol, BS15 1BA
Description of development: Outline application covering access, appearance, scale and layout (landscape reserved) for the demolition of remaining structures, and redevelopment to provide two separate buildings comprising 9 residential dwellings (Use Class C3) with associated parking, bin storage, cycle parking and public realm/highway improvements.
Committee/delegation date: 06.02.23
Date of Notice: 06.02.23

PLANNING INFORMATION

Full details of the proposed scheme and drawings can be downloaded with the online legal pack.

RENTAL APPRAISAL

What rent can we achieve for you?

The Bristol Residential Letting Co. are confident this property would make a good rental investment if brought to a standard suitable for the professional rental market. Danny Dean of The Bristol Residential Letting Co suggests a rent in the region of;

254 - 256, Two Mile Hill Road – 6 x 2 bed flats - £1350pcm - £1500pcm | 3 bed town houses - £1700pcm - £1800pcm

If you would like to discuss more detail on the potential for rental, you can call me on 07738766640 or email (danny@bristolreslet.com) for a no obligation discussion. I am always happy to advise investors on maximising their investment.

SOLICITORS

Simon Twose
Henriques Griffiths
t: 01454 859466
e: stwose@henriquesgriffiths.com
www.henriquesgriffiths.com

IMPORTANT AUCTION INFORMATION

BUYER’S PREMIUM

Please be aware all purchasers are subject to a £1000 + VAT (£1,200 inc VAT) buyer's premium which is ALWAYS payable upon exchange of contracts whether the sale is concluded before, during or after the auction date.

GUIDE PRICE

An indication of the seller's current minimum acceptable price at auction. The guide price or range of guide prices is given to assist consumers in deciding whether to pursue a purchase. It is usual, but not always the case, that a provisional reserve range is agreed between the seller and the auctioneer at the start of marketing. As the reserve is not fixed at this stage and can be adjusted by the seller at any time up to the day of the auction in the light of interest shown during the marketing period, a guide price is issued. This guide price can be shown in the form of a minimum and maximum price range within which an acceptable sale price (reserve) would fall, or as a single price figure within 10% of which the minimum acceptable price (reserve) would fall. A guide price is different to a reserve price (see separate definition). Both the guide price and the reserve price can be subject to change up to and including the day of the auction.

RESERVE PRICE

The seller's minimum acceptable price at auction and the figure below which the auctioneer cannot sell. The reserve price is not disclosed and remains confidential between the seller and the auctioneer. Both the guide price and the reserve price can be subject to change up to and including the day of the auction.

PRE-AUCTION OFFERS

Some vendors are willing to consider offers prior to the auction.
Pre-auction offers can ONLY be submitted by completing the online PRE-AUCTION OFFER FORM
The form can be found on the Hollis Morgan website on the individual auction property listings – look for the big red button.
Please note offers will not be considered until you have inspected the COMPLETE LEGAL PACK once it has been released.
There will be a note added to the list to confirm AUCTION PACK NOW COMPLETE when our client’s solicitor informs us no further information is due to be added.
In the event of an offer being accepted the property will only be removed from the online auction and viewings stopped once contracts have successfully EXCHANGED subject to the standard auction terms and payment of the buyer’s premium (£1000 + VAT) to Hollis Morgan.
Contracts can be exchanged via the solicitors or at the Hollis Morgan offices by appointment only.

REGISTRATION PROCESS

The registration process is extremely simple – visit the Hollis Morgan auction website and click on the “Register to Bid” button.
The “Register to Bid” button can be found on the auction home page or on the individual lot listings.
Please note this function is not available on Rightmove or Zoopla.

Stage 1 – Complete the Online Bidding Form
Stage 2 – Upload your certified ID
Stage 3 – Invitation to bid
Stage 4 – Pay your security deposit (£6,200)

You are now ready to bid – Good luck!

If your bid is successful, the balance of the deposit monies must be transferred to our client account within 24 hours of the auction sale.
If you are unsuccessful at the auction your holding deposit will be returned within 48 hours.

SURVEYS AND VALUATIONS

If you would like to arrange a survey or mortgage valuation of this Lot BEFORE the auction, please instruct your appointed surveyor to contact Hollis Morgan and we will arrange access for them to inspect the property. Please note that buyers CANNOT attend the surveys and the surveyors are responsible for collecting and returning keys to the Hollis Morgan offices in Clifton.

AUCTION FINANCE & BRIDGING LOANS

Some properties may require specialist auction finance- please contact Hollis Morgan for access to expert advice and whole of market rates from our independent brokers.

Hollis Morgan may receive introductory fees for this service from the broker.

AUCTION BUYER’S GUIDE VIDEO

We have short video guides for both buying and selling by Public Auction on the Hollis Morgan Website. If you have any further questions regarding the process, please don’t hesitate to contact Auction HQ.

2023 CHARITY OF THE YEAR

Hollis Morgan is supporting Spear Bristol as our 2023 Charity of the year with a % of each Buyers premium being donated.
Spear Bristol works with 16 - 24 year olds who struggle to find and then stay in employment and further education.
During intensive 6 week programmes our young people are taught a range employment getting skills and arguably more importantly, our coaches look to address the underlying reasons our young people struggle and seek to equip them with coping mechanisms to build confidence and resilience.
With our help Spear Bristol will be working with some 100 young Bristol people this year - Visit the Hollis Morgan Charity page of our website for further details

TESTIMONIALS

We are very proud of what our past clients have say about us - please visit the Hollis Morgan website to read their testimonials.

I WANT TO SELL BY AUCTION

Since 2010 Hollis Morgan have been the most successful land and property auctioneers across the Region. Famous for large public sales our reputation was built on transparent, competitive bidding leading to some memorable results. As a reaction to covid we have moved to a monthly live online platform which has proved to be a huge success. Our core service has all the benefits of a traditional auction but now, via a fully interactive online saleroom with options to bid by telephone, proxy or online we can now reach a national and international audience - the feedback from our clients is hugely positive and we are now committed to this 21st century method of selling land and property.

In 2022 Hollis Morgan Sold More Lots by auction in Bristol, North Somerset, Bath & Gloucester than any other Auctioneer!
In 2022 over £65m of land and property was successfully sold under the hammer by Hollis Morgan.
Since 2010 Hollis Morgan have Sold More Lots by auction than any other local firm!

Bristol’s most experienced auctioneer Andrew Morgan MBE – with forty years’ experience on the rostrum.
Auction specific premium adverts on both the UK’s biggest property portals Rightmove & Zoopla.
Digital Mailing list of over 40,000 Local, National, Regional and International Developers, Investors and family buyers.
Over 100 years combined property experience operating from our Regional HQ based in Clifton covering Bristol and the West Country.
Innovative yet simple marketing techniques such as virtual tours, drone shots, video tours, hi vis signage and professional photos.
Active and coordinated social media presence on Instagram, twitter, LinkedIn and Google.

WHY LIVE ONLINE AUCTION?

•Fixed Timescales & Speed - Exchange on the day with a quick & fixed completion of 4, 6 or 8 weeks.
•Closure & Control - 10% non refundable deposit taken upon exchange and the deal is done unlike a traditional sale.
•High Profile Sale – Intensive 4-6 week marketing campaign to make your lot visible and available to all potential buyers.
•Guaranteed Price - you set a minimum reserve which protects you from selling for any less than you want.
•Transparency & Competitive Bidding - Auction provides a transparency of sale ensuring your lot is sold to the person willing to pay the most on the day.

For loads more reasons to instruct Hollis Morgan and the statistics to back it up please visit our seling by auction section of the Hollis Morgan website.


AUCTION PROPERTY DETAILS DISCLAIMER

Hollis Morgan endeavour to make our sales details clear, accurate and reliable in line with the Consumer Protection from Unfair Trading Regulations 2008 but they should not be relied on as statements or representations of fact, and they do not constitute any part of an offer or contract. All Hollis Morgan references to planning, tenants, boundaries, potential development, tenure etc is to be superseded by the information contained in the legal pack. It should not be assumed that this property has all the necessary Planning, Building Regulation, or other consents. Any services, appliances and heating system(s) listed have not been checked or tested. Please note that in some instances the photographs may have been taken using a wide-angle lens. The seller does not make any representation or give any warranty in relation to the property, and we have no authority to do so on behalf of the seller.


Local Information

Schools Stations Healthcare
Floorplan for SITE | PLANNING GRANTED | BS15 Floorplan for SITE | PLANNING GRANTED | BS15 Floorplan for SITE | PLANNING GRANTED | BS15 Floorplan for SITE | PLANNING GRANTED | BS15