SOLD @ LIVE ONLINE AUCTION
GUIDE £775,000
SOLD @ £800,000
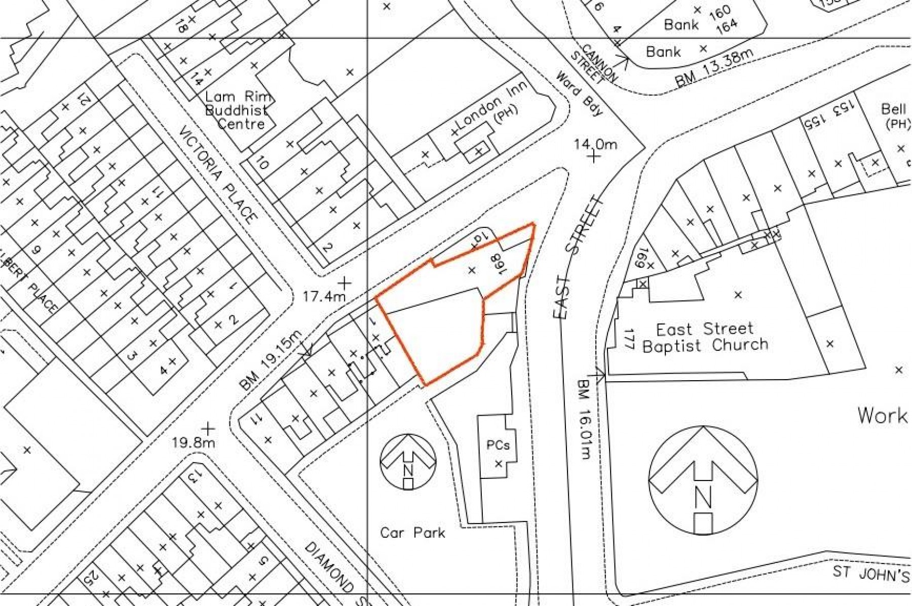
ADDRESS | Malago Rise, 168 East Street, Bedminster, Bristol BS3 4EH
Lot Number 18
The Live Online Auction is on Wednesday 27th July 2022 @ 17:30
Registration Deadline is on Monday 25th July @ 16:00
The Auction will be streamed LIVE ONLINE via the Hollis Morgan website & you can chose to bid by telephone, proxy or via your computer.
Registration is a simple online process – please visit the Hollis Morgan auction website and click “REGISTER TO BID”
VIEWINGS
Viewings can be booked on specific days for this property – please submit a viewing request online and we will contact you to arrange access.
Hollis Morgan would be grateful if you could arrive promptly to inspect the properties at the START of the agreed time as we have scheduled viewings throughout the day and CANNOT wait for late arrivals.
There are likely to be viewings on the property before and after your appointment and if you miss your slot (usually 15 minutes or longer for larger properties) you will be asked to wait until the next available time.
We insist safe social distancing is always practiced – you will need a facemask to enter the property.
Please note that hard copy of details will not be provided but will have been emailed to you with instructions on how to bid and what happens next before the viewing.
EXTENDED COMPLETION
Completion is set for 8 weeks or earlier subject to mutual consent.
ONLINE LEGAL PACKS
** LEGAL PACK **
Digital Copies of the Online legal pack can be downloaded Free of Charge.
Please visit the Hollis Morgan Website and select the chosen lot from our Current Auction List.
Follow the RED link to "Download Legal Packs" For the first visit you will be required to register simply with your email and a password.
Having set up your account you can download legal packs or if they are not yet available, they will automatically be sent to you when we receive them.
You will be automatically updated by email if any new information is added.
There will be a note added to the list to confirm AUCTION PACK NOW COMPLETE when no further information is due to be added.
*** STAY UPDATED *** By registering for the legal pack we can ensure you are kept updated on any changes to this Lot in the build up to the sale.
EPC
For full details of the EPC please refer to the online legal pack.
Amber Ellis-Martin
RDP Law Limited
amber.ellismartin@rdplaw.co.uk
Wentwood House, Langstone Business Village, Newport, NP18 2HJ
T: 01633 413500
F: 01633 413499
www.rdplaw.co.uk
A Freehold property comprising a large cleared site ( access via British Road ) to the rear of the existing 3 storey property fronting East Street.
Sold with vacant possession.
Located in one of Bristol’s most sought after locations just yards from the iconic North Street yet tucked back from the action that is quite literally on your doorstep, There is a vast array of open green spaces nearby including Gores Marsh Park, Ashton Court Estate and Greville Smyth Park. This property has easy access to Bristol City Centre, Bristol International Airport and the Bristol Link Road. These are excellent transportation links making this one of the most convenient and valued locations in Bristol. This Southville location offers the flourishing independent shops, bars, cafes and restaurants of North Street including the popular Tobacco Factory, The Malago and a community centre that runs workshops, fitness classes and outreach events. These amenities are ideally located only a 2 minute walk away at the end of the road. This excellent home is in close proximity to Whapping Wharf and Bristol Temple Meads train station. Many well-respected schools are nearby including the very popular Southville Primary School.
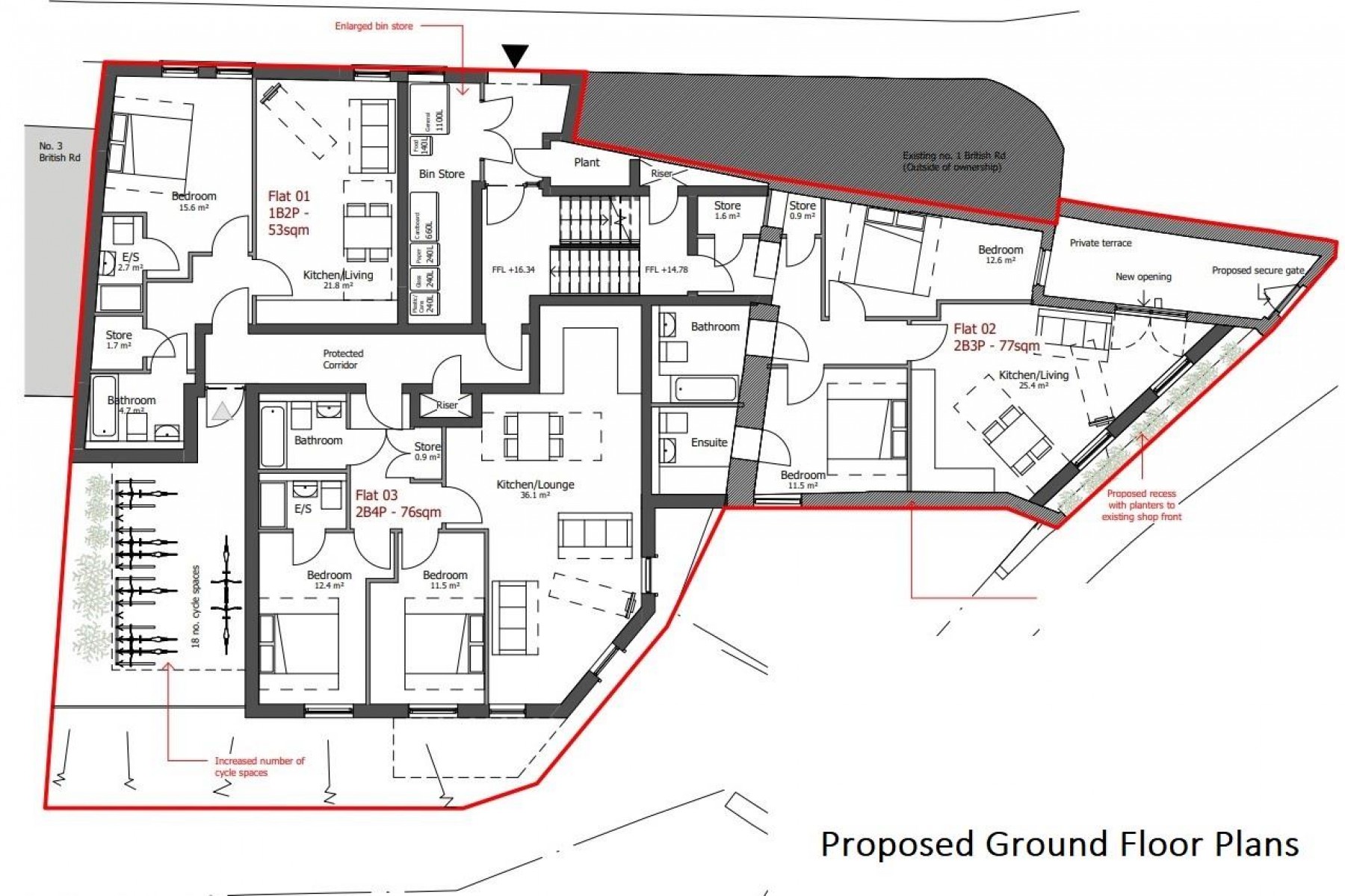
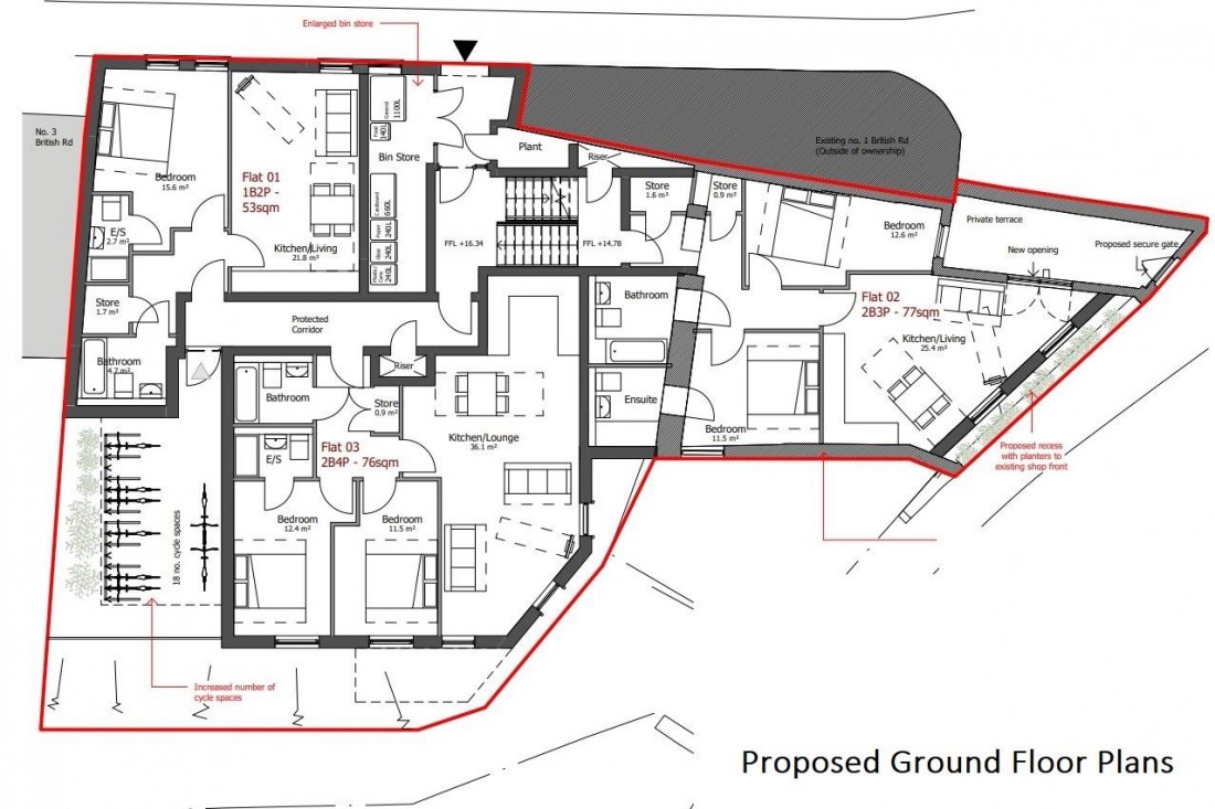
PLANNING GRANTED - 9 FLATS
Planning has been granted to create a scheme of 9 flats ( 8 x 2 Beds & 1 x 1 Beds ) with 3 units within the existing building and 6 new builds at the rear.
Work has commenced on the demolition of the rear of the site and some internal strip out.
We are informed the current works have been signed off by JHAI building control and the site has a ICW New homes 10 year warranty and has had its first 2 visits out of 4 to obtain the warranty - please refer to online legal pack.
TWEAKED SCHEME - AWAITING DECISION
This application was submitted to remove all the balconies apart from the communal ones.
Initially this was requested with other small changes as part of an NMA and the council said the balconies needed a separate s73 application but that it would be approved if this route was taken.
( We understand the determination period will pass before the auction date - the application was 5/3/22).
A set of drawings with no balconies is included in the legal pack.
The Hollis Morgan New Homes team have appraised the site and have advised the following resale prices for the completed units.
Flat 1 - £235,000
Flat 2 - £310,000
Flat 3 - £295,000
Flat 4 - £275,000
Flat 5 - £275,000
Flat 6 - £300,000
Flat 7 - £275,000
Flat 8 - £275,000
Flat 9 - £295,000
Total - £2.535m
GROUND FLOOR
Bike and Bin Stores
FLAT 1 – 570 Sq FT
New Build
Self contained One bedroom flat with open plan living space, bathroom and en suite.
Flat 2- 829 Sq Ft
Conversion of existing building
Self contained Two Bedroom flat with open plan living space, bathroom and en suite.
Flat 3 – 818 Sq Ft
New Build
Self contained Two Bedroom flat with open plan living space, bathroom and en suite.
FIRST FLOOR
Communal Terrace
Flat 4 – 710 Sq Ft
New Build
Self contained Two Bedroom flat with open plan living space, bathroom and en suite.
Flat 5 – 656 Sq Ft
Conversion of existing building
Self contained Two Bedroom flat with open plan living space, bathroom.
Flat 6 – 818 Sq Ft
New Build
Self contained Two Bedroom flat with open plan living space, bathroom, en suite and private terrace.
SECOND FLOOR
Flat 7 – 710 Sq Ft
New Build
Self contained Two Bedroom flat with open plan living space, bathroom and en suite.
Flat 8 – 656 Sq Ft
Conversion of existing building
Self contained Two Bedroom flat with open plan living space, bathroom.
Flat 9 – 818 Sq Ft
New Build
Self contained Two Bedroom flat with open plan living space, bathroom, en suite and private terrace.
Reference15/06489/F
Alternative ReferencePP-04706937
Application ReceivedThu 17 Dec 2015
Application ValidatedThu 21 Jan 2016
Address168 East Street Bedminster Bristol BS3 4EH
ProposalDemolition of existing rear annexes (retaining main building block) and redevelopment as 9 apartments, landscaped deck area and associated works (as revised 16.03.2016).
StatusDecided
DecisionGRANTED subject to condition(s)
Decision Issued DateFri 15 Apr 2016
Appeal StatusUnknown
Appeal Decision
Reference20/04318/X
Alternative ReferencePP-09066182
Application ReceivedFri 18 Sep 2020
Application ValidatedMon 28 Sep 2020
Address168 East Street Bedminster Bristol BS3 4EH
ProposalApplication for variation of Condition No. 15(List of approved plans and drawings) following grant of planning permission 15/06489/F - Demolition of existing rear annexes (retaining main building block) and redevelopment as 9 apartments, landscaped deck area and associated works. The revisions seek to improve the appearance and layout of the scheme.
StatusDecided
DecisionGRANTED subject to condition(s)
Decision Issued DateFri 05 Mar 2021
Appeal StatusUnknown
Appeal Decision
Reference22/01862/X
Alternative ReferencePP-11167079
Application ReceivedTue 12 Apr 2022
Application ValidatedTue 12 Apr 2022
Address168 East Street Bedminster Bristol BS3 4EH
ProposalApplication for variation of condition 11 (list of approved plans and drawings) of permission 20/04318/X(variation of Condition No. 15 of planning permission 15/06489/F) (Demolition of existing rear annexes (retaining main building block) and redevelopment as 9 apartments, landscaped deck area and associated works).
StatusPending consideration
Appeal StatusUnknown
Appeal Decision
What rent can we achieve for you?
The Bristol Residential Letting Co. are confident this property would make a good rental investment if brought to a standard suitable for the professional rental market. Danny Dean of The Bristol Residential Letting Co suggests a rent in the region of;
MALAGO RISE, 168 EAST STREET.
2 bedroom Flats - £1350pcm - £1400pcm
1 bedroom flat - £1000pcm - £1100pcm
If you would like to discuss more detail on the potential for rental, you can call me on 07738766640 or email (danny@bristolreslet.com) for a no obligation discussion. I am always happy to advise investors on maximising their investment.
BUYER’S PREMIUM
Please be aware all purchasers are subject to a £1000 + VAT (£1,200 inc VAT) buyer's premium which is ALWAYS payable upon exchange of contracts whether the sale is concluded before, during or after the auction date.
GUIDE PRICE
An indication of the seller's current minimum acceptable price at auction. The guide price or range of guide prices is given to assist consumers in deciding whether to pursue a purchase. It is usual, but not always the case, that a provisional reserve range is agreed between the seller and the auctioneer at the start of marketing. As the reserve is not fixed at this stage and can be adjusted by the seller at any time up to the day of the auction in the light of interest shown during the marketing period, a guide price is issued. This guide price can be shown in the form of a minimum and maximum price range within which an acceptable sale price (reserve) would fall, or as a single price figure within 10% of which the minimum acceptable price (reserve) would fall. A guide price is different to a reserve price (see separate definition). Both the guide price and the reserve price can be subject to change up to and including the day of the auction.
RESERVE PRICE
The seller's minimum acceptable price at auction and the figure below which the auctioneer cannot sell. The reserve price is not disclosed and remains confidential between the seller and the auctioneer. Both the guide price and the reserve price can be subject to change up to and including the day of the auction.
PRE-AUCTION OFFERS
Some vendors are willing to consider offers prior to the auction.
Pre-auction offers can ONLY be submitted by completing the online PRE-AUCTION OFFER FORM
The form can be found on the Hollis Morgan website on the individual auction property listings – look for the big red button.
Please note offers will not be considered until you have inspected the COMPLETE LEGAL PACK once it has been released.
There will be a note added to the list to confirm AUCTION PACK NOW COMPLETE when our client’s solicitor informs us no further information is due to be added.
In the event of an offer being accepted the property will only be removed from the online auction and viewings stopped once contracts have successfully EXCHANGED subject to the standard auction terms and payment of the buyer’s premium (£1000 + VAT) to Hollis Morgan.
Contracts can be exchanged via the solicitors or at the Hollis Morgan offices by appointment only.
REGISTRATION PROCESS
The registration process is extremely simple – visit the Hollis Morgan auction website and click on the “Register to Bid” button.
The “Register to Bid” button can be found on the auction home page or on the individual lot listings.
Please note this function is not available on Rightmove or Zoopla.
Stage 1 – Complete the Online Bidding Form
Stage 2 – Upload your certified ID
Stage 3 – Invitation to bid
Stage 4 – Pay your security deposit (£6,200)
You are now ready to bid – Good luck!
If your bid is successful, the balance of the deposit monies must be transferred to our client account within 24 hours of the auction sale.
If you are unsuccessful at the auction your holding deposit will be returned within 48 hours.
SURVEYS AND VALUATIONS
If you would like to arrange a survey or mortgage valuation of this Lot BEFORE the auction, please instruct your appointed surveyor to contact Hollis Morgan and we will arrange access for them to inspect the property. Please note that buyers CANNOT attend the surveys and the surveyors are responsible for collecting and returning keys to the Hollis Morgan offices in Clifton.
AUCTION FINANCE
Some properties may require specialist auction finance- please contact Hollis Morgan for access to expert advice and "whole of market" rates.
AUCTION BUYER’S GUIDE VIDEO
We have short video guides for both buying and selling by Public Auction on the Hollis Morgan Website. If you have any further questions regarding the process, please don’t hesitate to contact Auction HQ.
2022 CHARITY OF THE YEAR
Hollis Morgan is supporting Bristol Charity Gympanzees as our 2022 Charity of the year with a % of each Buyers premium being donated.
Gympanzees are a charity based in Bristol helping children and young people with disabilities to access fun, fitness, and friendship.
Visit the Hollis Morgan Charity page of our website for further details or the charity direct @ www.gympanzees.org
TESTIMONIALS
We are very proud of what our past clients have say about us - please visit the Hollis Morgan website to read their testimonials.
WHY HOLLIS MORGAN
Want to sell by auction?
Covid has meant dramatic adjustments to our working practices, famous for our large public auctions we have adapted by launching a monthly Live Online Auction service – an interactive platform for Buying & Selling all types of land and property.
A Live online auction has all the benefits of a traditional auction such as speed & transparency but with the advantage of being able to bid from anywhere with the auction streamed live on the Hollis Morgan website and the option to bid by telephone, proxy or online.
In 2020 we sold nearly 300 lots by this updated method - we have embraced this change and move forward with our 2022 live online calendar of sales confident we can provide the best service for our clients.
•In 2021 Hollis Morgan Sold More Lots by auction in Bristol, North Somerset & Gloucester than any other Auctioneer!
•In 2021 almost 40% of all the Auction Lots offered in Bristol, North Somerset and Gloucester were Sold by Hollis Morgan
•In 2021 over £47m was successfully sold under the hammer in Bristol, North Somerset & Gloucester by Hollis Morgan.
•Since 2010 Hollis Morgan have Sold More Lots by auction ( 1301 ) than any other local firm raising £336m!
*Source EIG 2022
We also offer…
•Bristol’s most experienced auctioneer Andrew Morgan MBE – with forty years’ experience on the rostrum.
•Auction specific premium adverts on both the UK’s biggest property portals Rightmove & Zoopla.
•Digital Mailing list of over 20,000 Local, National, Regional and International Developers, Investors and family buyers.
•Over 100 years combined property experience operating from our Regional HQ based in Clifton covering Bristol and the West Country.
•Innovative yet simple marketing techniques such as virtual tours, drone shots, video tours, hi vis signage and professional photos.
•Active and coordinated social media presence on Instagram, twitter, LinkedIn and Google retargeting programme.
Why Live Online Auction?
•Fixed Timescales & Speed - Exchange on the day with a quick & fixed completion of 4, 6 or 8 weeks.
•Closure & Control - 10% non refundable deposit taken upon exchange and the deal is done unlike a traditional sale.
•High Profile Sale – Intensive 4-6 week marketing campaign to make your lot visible and available to all potential buyers.
•Guaranteed Price - you set a minimum reserve which protects you from selling for any less than you want.
•Transparency & Competitive Bidding - Auction provides a transparency of sale ensuring your lot is sold to the person willing to pay the most on the day.
For loads more reasons to instruct Hollis Morgan and the statistics to back it up please visit our seling by auction section of the Hollis Morgan website.
AUCTION PROPERTY DETAILS DISCLAIMER
Hollis Morgan endeavour to make our sales details clear, accurate and reliable in line with the Consumer Protection from Unfair Trading Regulations 2008 but they should not be relied on as statements or representations of fact, and they do not constitute any part of an offer or contract. All Hollis Morgan references to planning, tenants, boundaries, potential development, tenure etc is to be superseded by the information contained in the legal pack. It should not be assumed that this property has all the necessary Planning, Building Regulation, or other consents. Any services, appliances and heating system(s) listed have not been checked or tested. Please note that in some instances the photographs may have been taken using a wide-angle lens. The seller does not make any representation or give any warranty in relation to the property, and we have no authority to do so on behalf of the seller.