SOLD STC £235,000

3, Glenfrome Road, St. Werburghs, BS2 9UZ

Bedrooms 1 Bathrooms 1 Reception 1

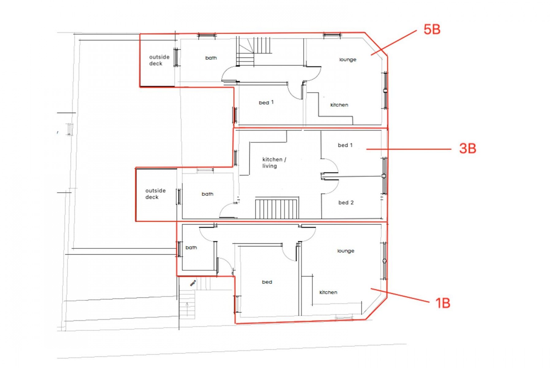
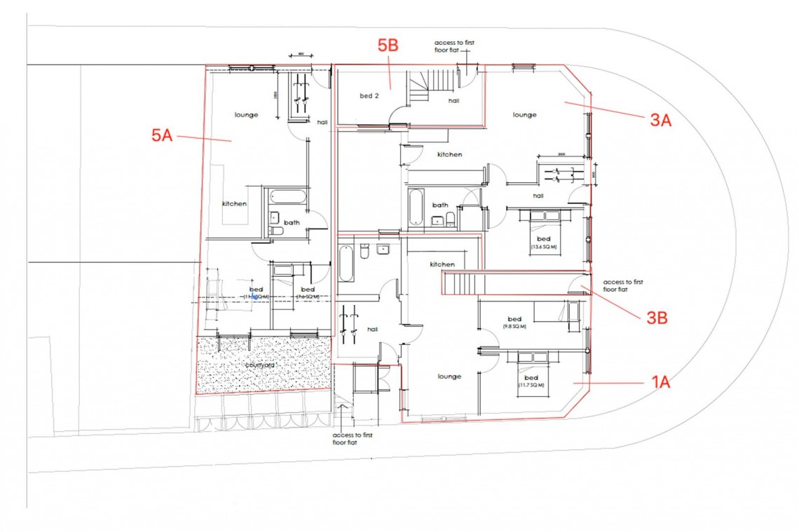
  • Development of 6 Apartments
  • Modern Finish
  • Roof Terraces/Courtyards
  • Desirable Location
  • Gas Central Heating
  • Help to buy available
  • Ready to Reserve
  • June 2022 Completion

The Development

Transformed from a former commercial premises this exciting development offers 6 Apartments spread over two floors with a selection of properties a prospering from private roof terrace/courtyard area. The internals have been tastefully finished with fully fitted kitchens complete with integrated appliances and contemporary bathroom suites with quality fittings. The apartments also benefits from Gas Central heating and solar panels standards to ensure low heat loss and energy waste whilst effortlessly blending into the surrounding neighbourhood.

1A - Reserved
1B - £235,000
3A - Reserved
3B - Reserved
5A - Reserved
5B - Reserved

Location

St. Werburghs is located to the North-East of Central Bristol and is home to a thriving residential community as well as local businesses such as an organic supermarket there’s even a nature reserve and a Church converted into a climbing centre! There are many amenities within walking distance of the property such as the Cabot Circus shopping centre with Showcase Cinema De Lux and the rest of Bristol City centre. The M32 motorway is moments away connecting you to the M4 and M5 in all directions. Bristol Temple Meads train station is less than two miles, while Bristol International Airport to the south of the city is 12 miles.

Other Information

999 year leases will be created for each apartment with an internal management company. Residents will collectively own freehold. Monthly Maintenance fee TBC.

Help to buy available with all ground floor apartments.

Please Note

We endeavour to make our sales details accurate and reliable but they should not be relied on as statements or representations of fact and they do not constitute any part of an offer or contract. The seller does not make any representation or give any warranty in relation to the property and we have no authority to do so on behalf of the seller.
Internal images are for illustrative purposes and the internal appearance is a typical interior to demonstrate the feel & quality of this development.
The developer reserves the right to amend the specification as necessary without prior notice, but to an equal standard. Please note that whilst current views may be unrestricted these could alter in the future. No person in the employment of our selling agent has any authority to make any representations or warranty whatsoever in relation to the property.


Local Information

Schools Stations Healthcare