Sold @ Auction £333,000

House + Plot, 23, Broomhill Road, Brislington, BS4 4SQ

Bedrooms 5 Bathrooms 4 Reception 3

  • FOR SALE BY PUBLIC AUCTION
  • TUESDAY 25TH FEBRUARY 2020
  • ALL SAINTS CHURCH, CLIFTON, BS8 2HY
  • WEEKLY SET VIEWINGS
  • DOWNLOAD ONLINE LEGAL PACKS
  • DEVELOPMENT OPPORTUNITY
  • PROPOSED GDV - £720,000
  • CONVERT EXISTING - 2 FLATS
  • NEW BUILD 3 BED HOUSE
  • EXTENDED 6 WEEK COMPLETION

ADDRESS

House + Plot, 23, Broomhill Road, Brislington, BS4 4SQ

FOR SALE BY AUCTION

*** SOLD @ HOLLIS MORGAN RECORD BREAKING FEBRUARY AUCTION ***

GUIDE £330,000 +++
SOLD @ £333,000

LOT NUMBER 22
Tuesday 25th February 2020
All Saints Church Pembroke Road, Clifton, Bristol BS8 2HY
Legal Pack Room and Registration will be open from 18:15
The sale will begin promptly at 19:00

EXTENDED COMPLETION

Completion is set for 6 weeks or earlier subject to mutual consent.

SOLICITORS

Jo Cox
Setfords Solicitors
e: jcox@setfords.co.uk

ONLINE LEGAL PACKS

Digital Copies of the Online legal pack can be downloaded Free of Charge.
Please visit the Hollis Morgan Website and select the chosen lot from our Current Auction List.
Follow the RED link to "Download Legal Packs" For the first visit you will be required to register simply with your email and a password.
Having set up your account you can download legal packs or if they are not yet available they will automatically be sent to you when we receive them.
You will be automatically updated by email if any new information is added.
There will be a note added to the list to confirm AUCTION PACK NOW COMPLETE when no further information is due to be added.
*** STAY UPDATED *** By registering for the legal pack we can ensure you are kept updated on any changes to this Lot in the build up to the sale.

THE PROPERTY

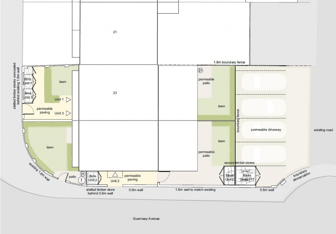
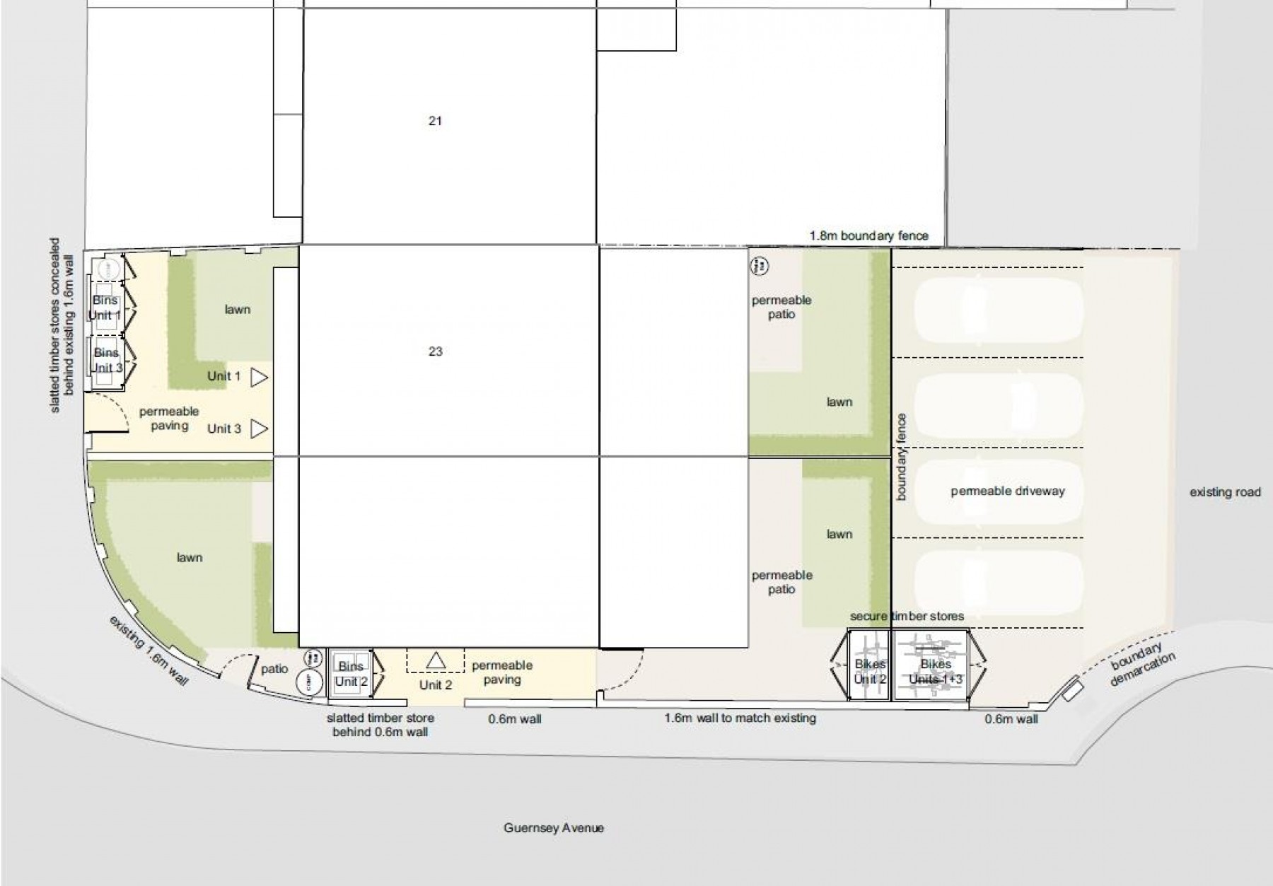
A freehold semi detached property ( 1645 Sq Ft ) occupying a large corner plot with parking and gardens.
Sold with vacant possession.

LOCATION

The property occupies a prominent corner position on Broomhill Road within the popular suburb of Brislington. Bath Road is nearby and provides excellent access to both Bristol City Centre (3 miles) and Bath (10 miles).

THE OPPORTUNITY

DEVELOPMENT OPPORTUNITY

Planning has been granted to convert the existing semi detached property into 2 Flats and to erect a new build 3 bedroom house adjacent.

PROPOSED GDV - £720,000

Unit 1 - £200,000
Unit 2 - £210,000
Unit 3 - £310,000

PROPOSED SCHEDULE OF ACCOMMODATION

CONVERSION OF EXISTING

UNIT 1
GROUND FLOOR - 61 Sq M
Private Entrance, Open plan living space, Utility, Bedroom 1, Bedroom 2, enclosed rear garden, parking.

UNIT 2
FIRST AND SECOND FLOOR - 74 Sq M
Private Entrance, Open plan living space, Bathroom, Bedroom 1, En Suite, Bedroom 2, parking

NEW BUILD

SEMI DETACHED HOUSE - 114 Sq M
Private entrance, Entrance Hall, Living Room, WC, Open plan kitchen dining space, Bedroom 1, En suite, Bedroom 2, Bathroom, Bedroom 3, En Suite, Enclosed rear garden, 2 x parking.

PLANNING GRANTED

Reference19/03848/F
Alternative ReferencePP-08024592
Application ReceivedWed 07 Aug 2019
Application ValidatedMon 12 Aug 2019
Address23 Broomhill Road Bristol BS4 4SQ
ProposalProposed demolition of rear outbuildings and single storey rear extension, reconfiguration of existing house and erect a two storey side extension, single storey rear extension and roof extensions, to provide 2no two-bedroom units and 1no three-bedroom unit, associated car and cycle parking provision, refuse and recycling areas, and gardens.
StatusDecided
DecisionGRANTED subject to condition(s)
Decision Issued DateThu 10 Oct 2019
Appeal StatusUnknown

PLANNING INFORMATION

Full details of the proposed scheme and drawings can be downloaded with the online legal pack.

RENTAL APPRAISAL

What rent can we achieve for you?

The Bristol Residential Letting Co. are confident this property would make a good rental investment. Josh Box of The Bristol Residential Letting Co suggests a rent in the region of;

Unit 1, 2 bedroom garden flat - £925pcm - £975pcm

Unit 2, 2 bedroom first floor maisonette - £925pcm - £975pcm

New Build 3 bedroom house - £1200pcm - £1300pcm

If you would like to discuss more detail on the potential for rental, you can call me (0117 370 8818) or email (josh@bristolreslet.com) for a no obligation discussion. Alternatively why not drop into my Office (222 North Street, Southville, BS3 1JD) where I am always happy to advise investors on maximising their investment.

EPC

For full details of the EPC please refer to the online legal pack.

BUYER'S PREMIUM

Please be aware all purchasers are subject to a £1000 + VAT (£1,200 inc VAT) buyer's premium which is ALWAYS payable upon exchange of contracts whether the sale is concluded before, during or after the auction date.

GUIDE PRICE

An indication of the seller's current minimum acceptable price at auction. The guide price or range of guide prices is given to assist consumers in deciding whether or not to pursue a purchase. It is usual, but not always the case, that a provisional reserve range is agreed between the seller and the auctioneer at the start of marketing. As the reserve is not fixed at this stage and can be adjusted by the seller at any time up to the day of the auction in the light of interest shown during the marketing period, a guide price is issued. This guide price can be shown in the form of a minimum and maximum price range within which an acceptable sale price (reserve) would fall, or as a single price figure within 10% of which the minimum acceptable price (reserve) would fall. A guide price is different to a reserve price (see separate definition). Both the guide price and the reserve price can be subject to change up to and including the day of the auction.

RESERVE PRICE

The seller's minimum acceptable price at auction and the figure below which the auctioneer cannot sell. The reserve price is not disclosed and remains confidential between the seller and the auctioneer. Both the guide price and the reserve price can be subject to change up to and including the day of the auction.

PRE AUCTION OFFERS

Some properties may be available to buy prior to the auction.
Pre auction offers can only be submitted by completing the OFFER FORM which can be downloaded with the online legal pack - please email the COMPLETED form to – olly@hollismorgan.co.uk.
Please note offers will not be considered until you have VIEWED the property and the COMPLETE LEGAL PACK has been released.
You will be emailed a note to confirm the AUCTION PACK NOW COMPLETE and then offers can be submitted.
In the event of an offer being accepted the property will only be removed from the auction and viewings stopped once contracts have successfully EXCHANGED subject to the standard auction terms and payment of the buyer’s premium ( £1,200 ) to Hollis Morgan. Contracts can be signed either via the solicitors or at the Hollis Morgan offices subject to appointment.

SURVEYS AND VALUATIONS

If you would like to arrange a survey or mortgage valuation of this Lot BEFORE the auction please instruct your appointed surveyor to contact Hollis Morgan and we will arrange access for them to inspect the property. Please note that buyers CANNOT attend the surveys and the surveyors are responsible for collecting and returning keys to the Hollis Morgan offices in Clifton.

BIDDING AT THE AUCTION

This property is for sale by public auction and if you intend to bid please bring the following:

Proof of identity (valid passport or photo driving licence).
Proof of address (bank statement, recent utility bill, council tax bill or tenancy agreement).
10% deposit payment.
Buyers premium payment.
Details of your solicitor.

You will need to register to bid – registration will be open from 18:15
Forms can be downloaded and completed beforehand ( found in the legal pack ) or collected at the auction venue.

PAYING THE DEPOSIT & BUYERS PREMIUM

We can only accept the following at the auction:

Personal or Company Cheque
Bankers Draft
Debit Card ( NOT CREDIT CARD )

TELEPHONE AND PROXY BIDDING

If you cannot attend the auction (although we strongly advise you do) you can make a TELEPHONE or PROXY BID. This authorises the auctioneer to bid on your behalf up to a pre-set limit. Forms and relevant conditions are available to download with the online legal pack. A completed form, ID and two cheques (one for the 10% deposit and one for the Buyer's Administration Fee of £1,200) are required by the Auction Department at least two full working days before the auction.

AUCTION BUYERS GUIDE VIDEO

We have short video guides for both buying and selling by Public Auction on the Hollis Morgan Website. If you have any further questions regarding the process please don’t hesitate to contact Auction HQ.

WHY HOLLIS MORGAN?

WHY HOLLIS MORGAN?
Hollis Morgan regularly hold the largest property auctions across Bristol and the West Country from our iconic Sale Room in Clifton, since we formed in 2010 we have sold the most £££'s of land and property by Public Auction in the region - EVERY YEAR!
Between 2010 and 2018 we have held 51 auctions, offering 1321 lots and raising over £270k for clients across the region.
Did you know… In 2018 we had the highest % success rate and sold more £££’s of Land and Property by auction than all the other Auctioneers in Bristol & North Somerset combined!

TESTIMONIALS

We are very proud of what our past clients have say about us - please visit the Hollis Morgan website to read their testimonials.

AUCTION PROPERTY DETAILS DISCLAIMER

Hollis Morgan endeavour to make our sales details clear, accurate and reliable in line with the Consumer Protection from Unfair Trading Regulations 2008 but they should not be relied on as statements or representations of fact and they do not constitute any part of an offer or contract. All Hollis Morgan references to planning, tenants, boundaries, potential development, tenure etc is to be superseded by the information contained in the legal pack. It should not be assumed that this property has all the necessary Planning, Building Regulation or other consents. Any services, appliances and heating system(s) listed have not been checked or tested. Please note that in some instances the photographs may have been taken using a wide angle lens. The seller does not make any representation or give any warranty in relation to the property and we have no authority to do so on behalf of the seller.


Local Information

Schools Stations Healthcare
Floorplan for HOUSE + PLOT COMBO - BS4 Floorplan for HOUSE + PLOT COMBO - BS4 Floorplan for HOUSE + PLOT COMBO - BS4 Floorplan for HOUSE + PLOT COMBO - BS4 Floorplan for HOUSE + PLOT COMBO - BS4