Sold @ Auction £1,125,000

Development Site @, 5, Kingsdown Parade, Kingsdown, BS6 5UP

Bedrooms 18 Bathrooms 12 Reception 9

  • FOR SALE BY ONLINE AUCTION
  • WEDNESDAY 16th FEBRUARY 2022
  • VIDEO TOUR NOW ONLINE
  • VIEWINGS - REFER TO DETAILS
  • DOWNLOAD ONLINE LEGAL PACKS
  • SOLD @ FEBRUARY AUCTION
  • FREEHOLD DEVELOPMENT SITE
  • PLANNING GRANTED
  • 5 RESI UNITS - GDV £3.2M
  • EXTENDED 8 WEEK COMPLETION

ADDRESS

Development Site @ 5 Kingsdown Parade. Kingsdown, Bristol, BS6 5UP

FOR SALE BY LIVE ONLINE AUCTION

*** SOLD @ FEBRUARY AUCTION ***

GUIDE PRICE £900,000 +++
SOLD @ £1,125,000

Lot Number 21
The Live Online Auction is on Wednesday 16th February 2022 @ 18:00
Registration Deadline is on Monday 14th February @ 16:00

The Auction will be streamed LIVE ONLINE via the Hollis Morgan website & you can chose to bid by telephone, proxy or via your computer.
Registration is a simple online process – please visit the Hollis Morgan auction website and click “REGISTER TO BID

VIEWINGS

Interested parties can access the upper levels at any time and arrange to inspect the lower levels by appointment with HM at their own risk and must bring suitable equipment to safely access the site.

EXTENDED COMPLETION

Completion is set for 8 weeks or earlier subject to mutual consent.

SOLICITORS

Gregg Latchams
Contact - TBC

ONLINE LEGAL PACKS

** LEGAL PACK COMPLETE **

Digital Copies of the Online legal pack can be downloaded Free of Charge.
Please visit the Hollis Morgan Website and select the chosen lot from our Current Auction List.
Follow the RED link to "Download Legal Packs" For the first visit you will be required to register simply with your email and a password.
Having set up your account you can download legal packs or if they are not yet available they will automatically be sent to you when we receive them.
You will be automatically updated by email if any new information is added.
There will be a note added to the list to confirm AUCTION PACK NOW COMPLETE when no further information is due to be added.
*** STAY UPDATED *** By registering for the legal pack we can ensure you are kept updated on any changes to this Lot in the build up to the sale.

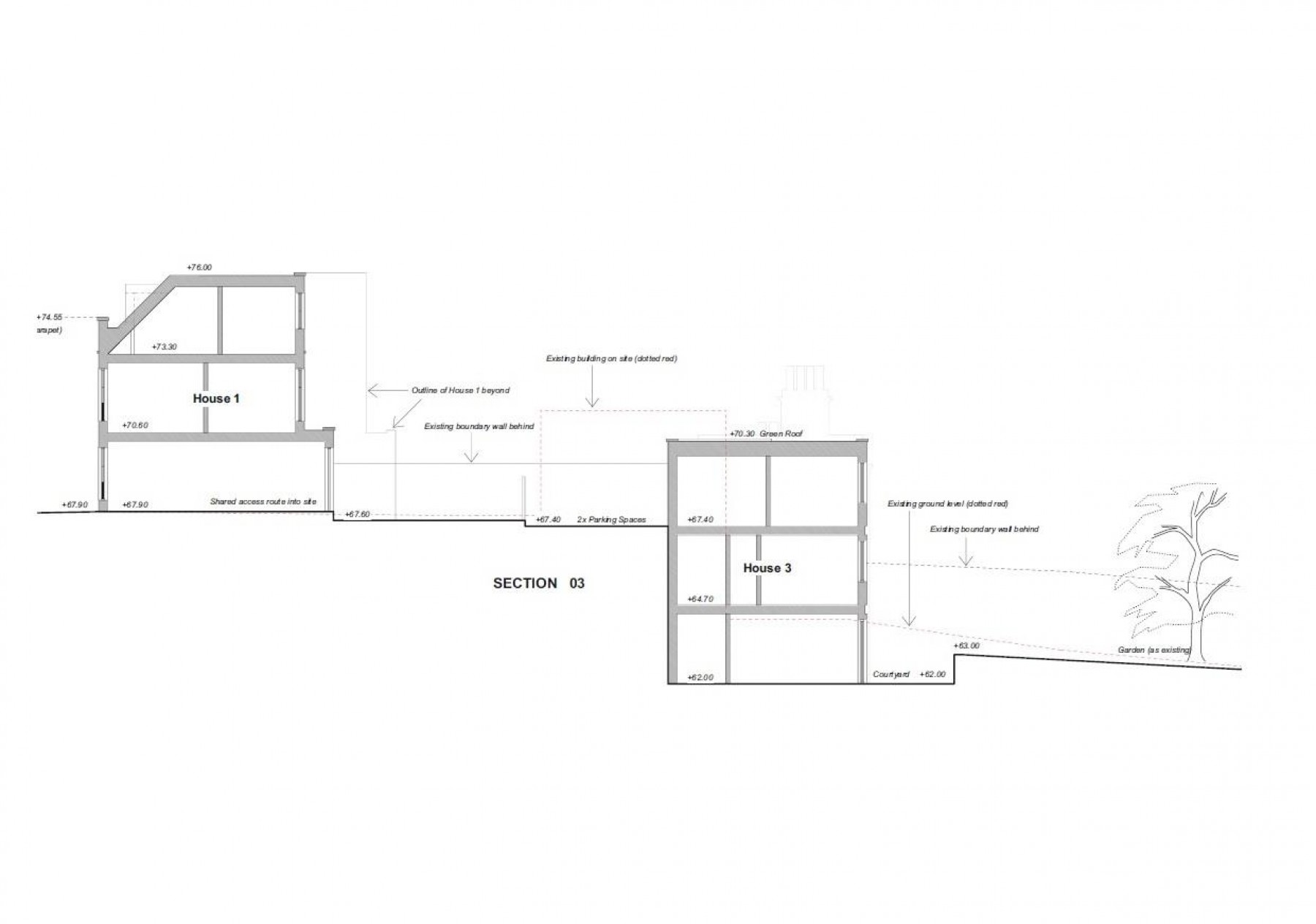
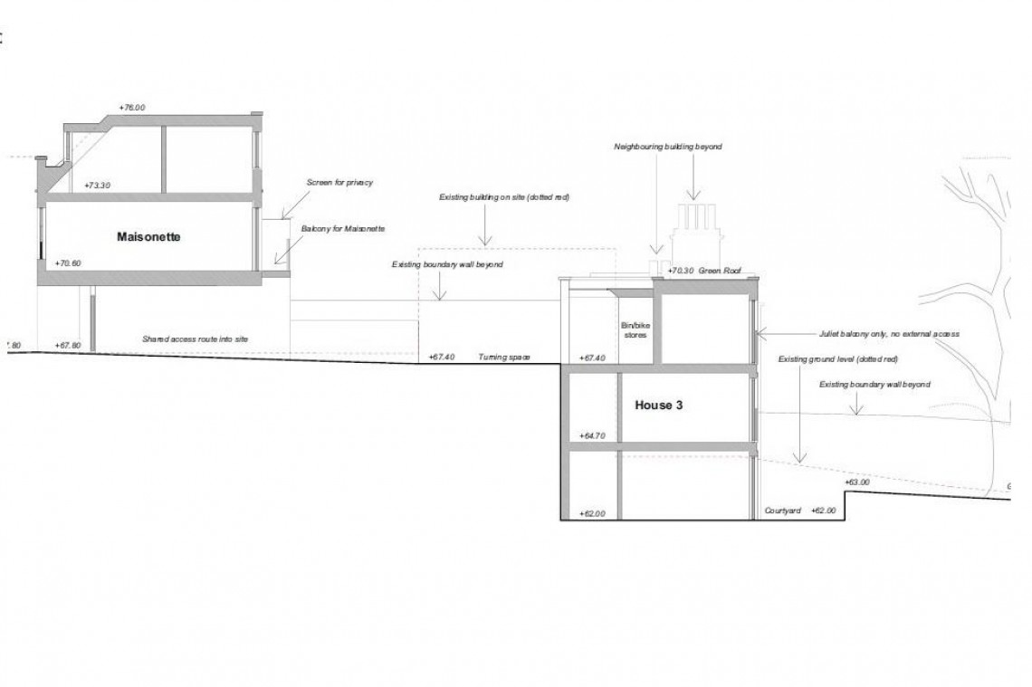
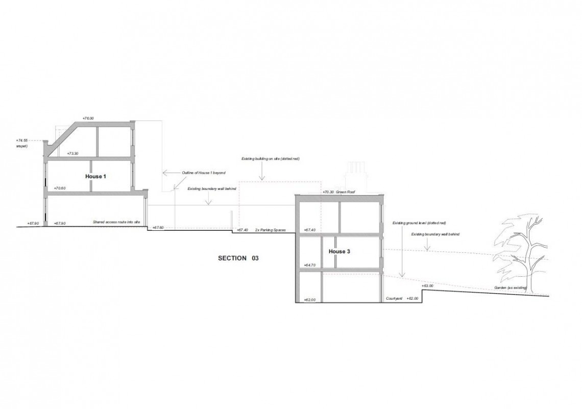
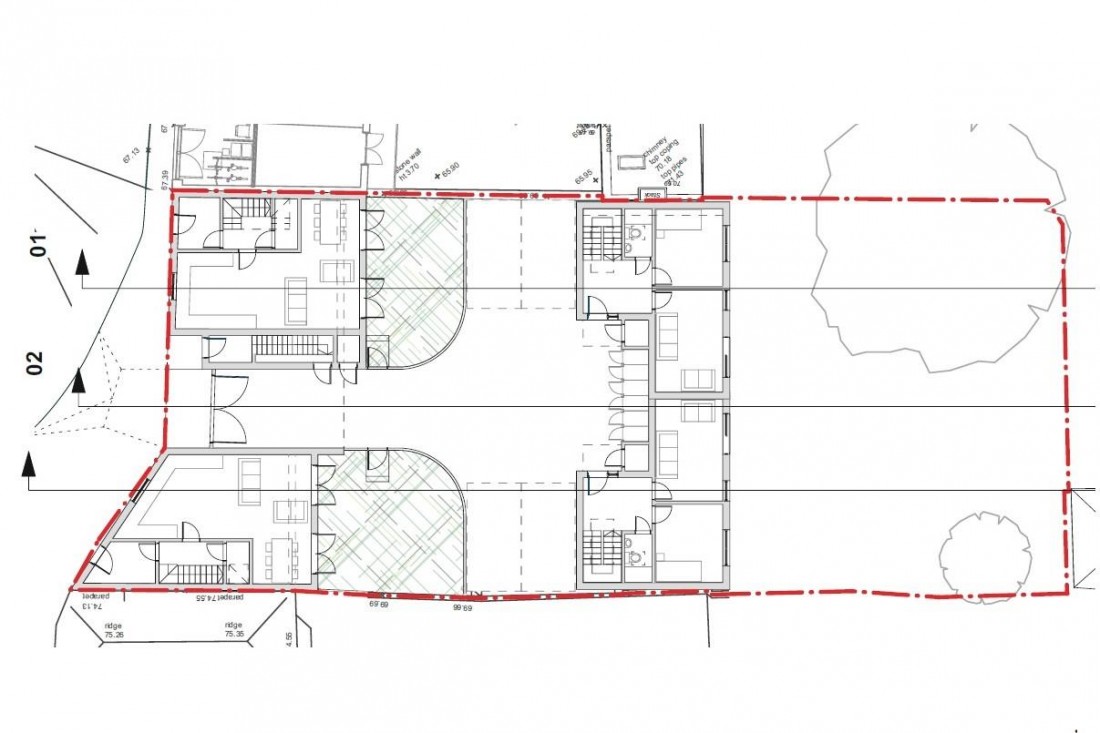
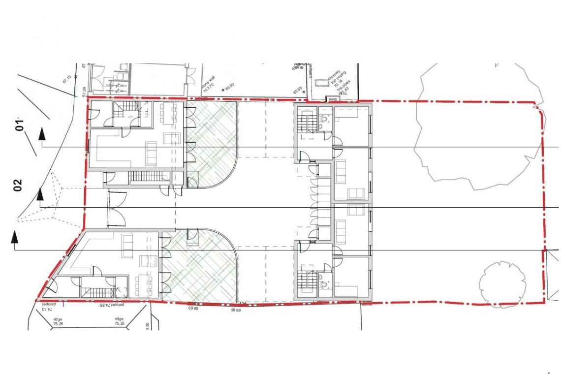
THE SITE

A Freehold site of approx 0.2 acres arranged over two levels with access from Kingsdown parade commanding an elevated position with fantastic views over the City.
Sold with vacant possession.

LOCATION

Kingsdown Parade is located in the highly desirable residential suburb of Kingsdown / Cotham which is ideally positioned for access to Bristol University ( 0.2 Miles ) and the Bristol Royal Infirmary ( 0.1 Miles ) whilst the City Centre ( 0.4 Miles ), accessed via the historic Christmas Steps, provides a wide range of pubs, restaurants and shopping facilities including the recently developed Cabot Shopping Centre with its comprehensive range of high quality stores and individual shops.

THE OPPORTUNITY

RESIDENTIAL DEVELOPMENT - PLANNING GRANTED

Planning has been granted to clear the site and erect a stylish scheme of 4 houses and 1 maisonette with a GDV of circa £3.2m

GDV - HOLLIS MORGAN NEW HOMES

The Hollis Morgan New Homes team have provided a GDV appraisal which can be downloaded in the legal pack.
If you want to discuss the site or alternative schemes in further detail please contact Calum Melhuish @ Hollis Morgan HQ

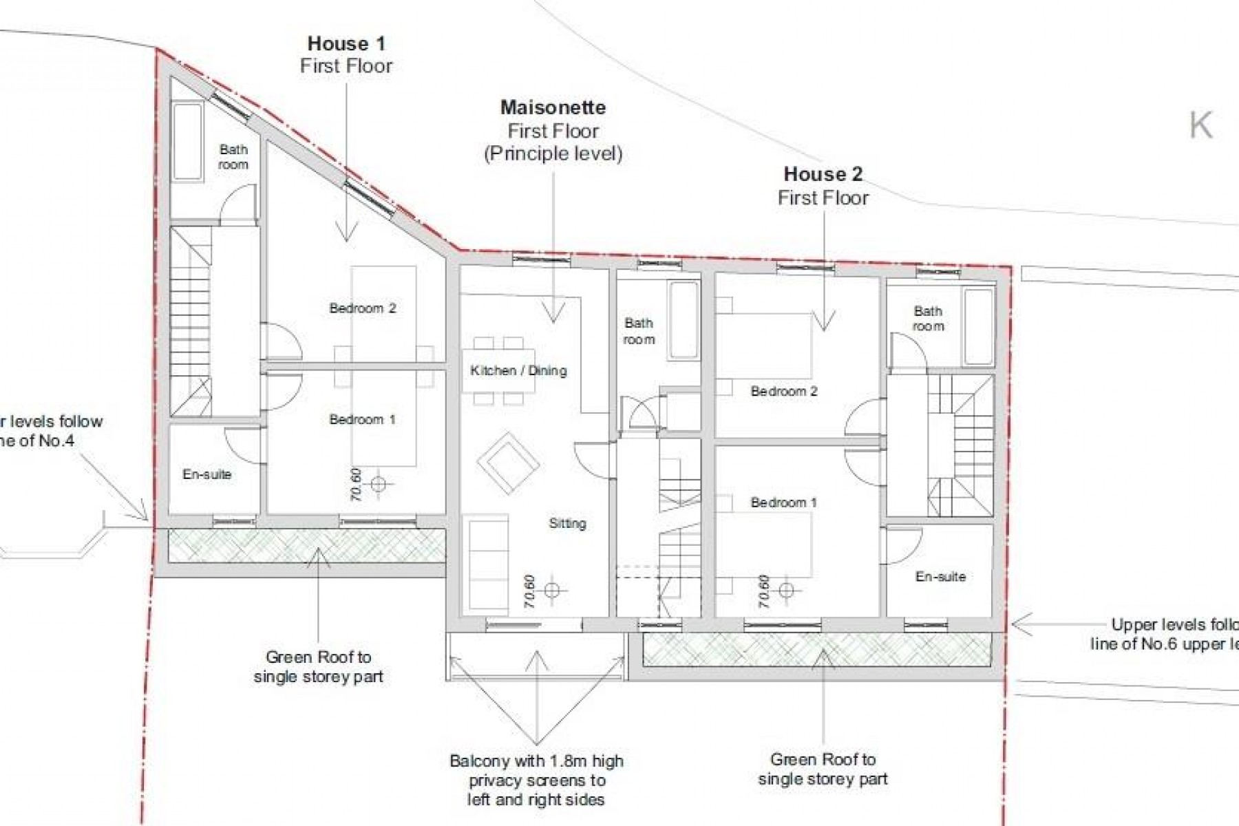
PROPOSED SCHEDULE OF ACCOMMODATION

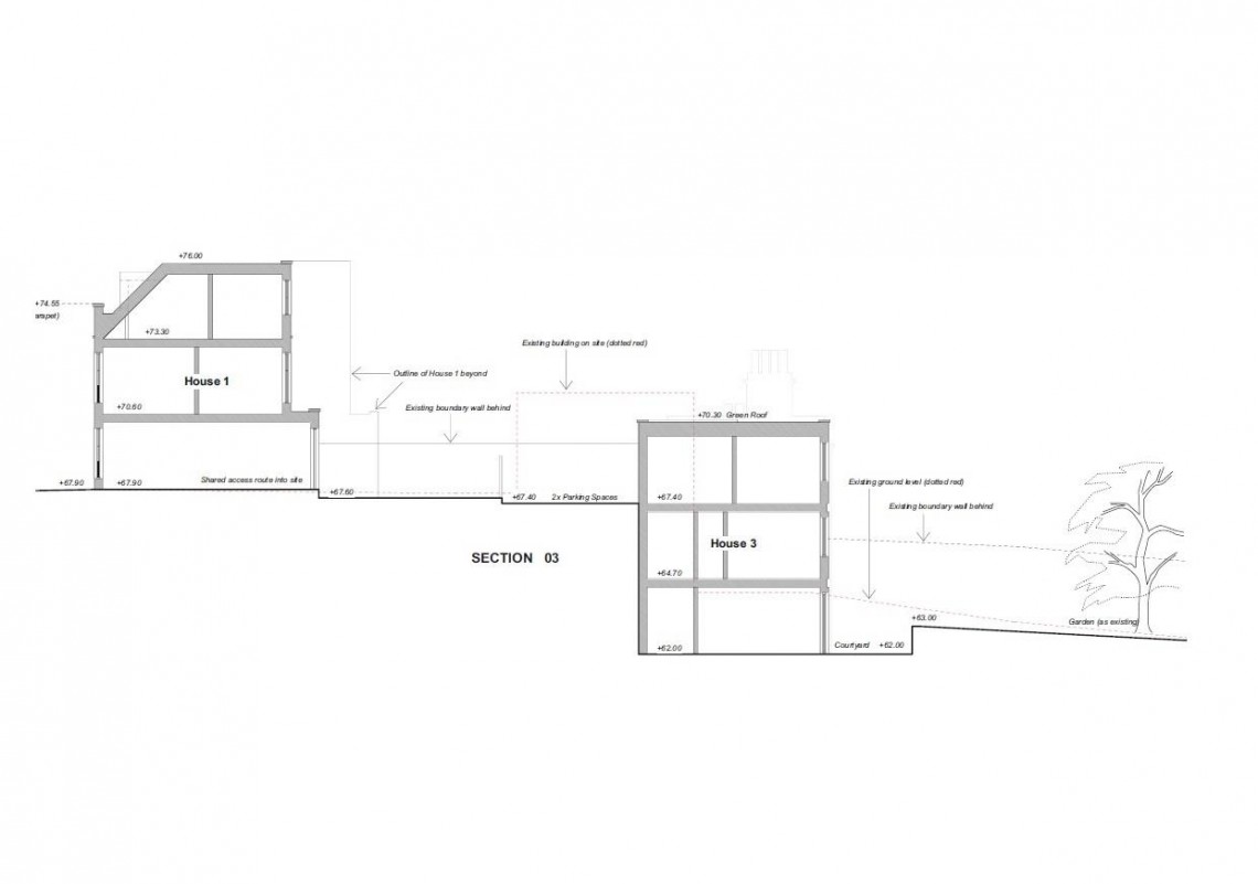
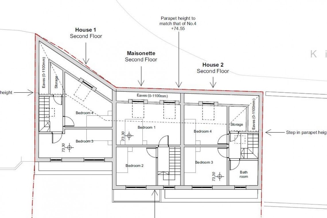
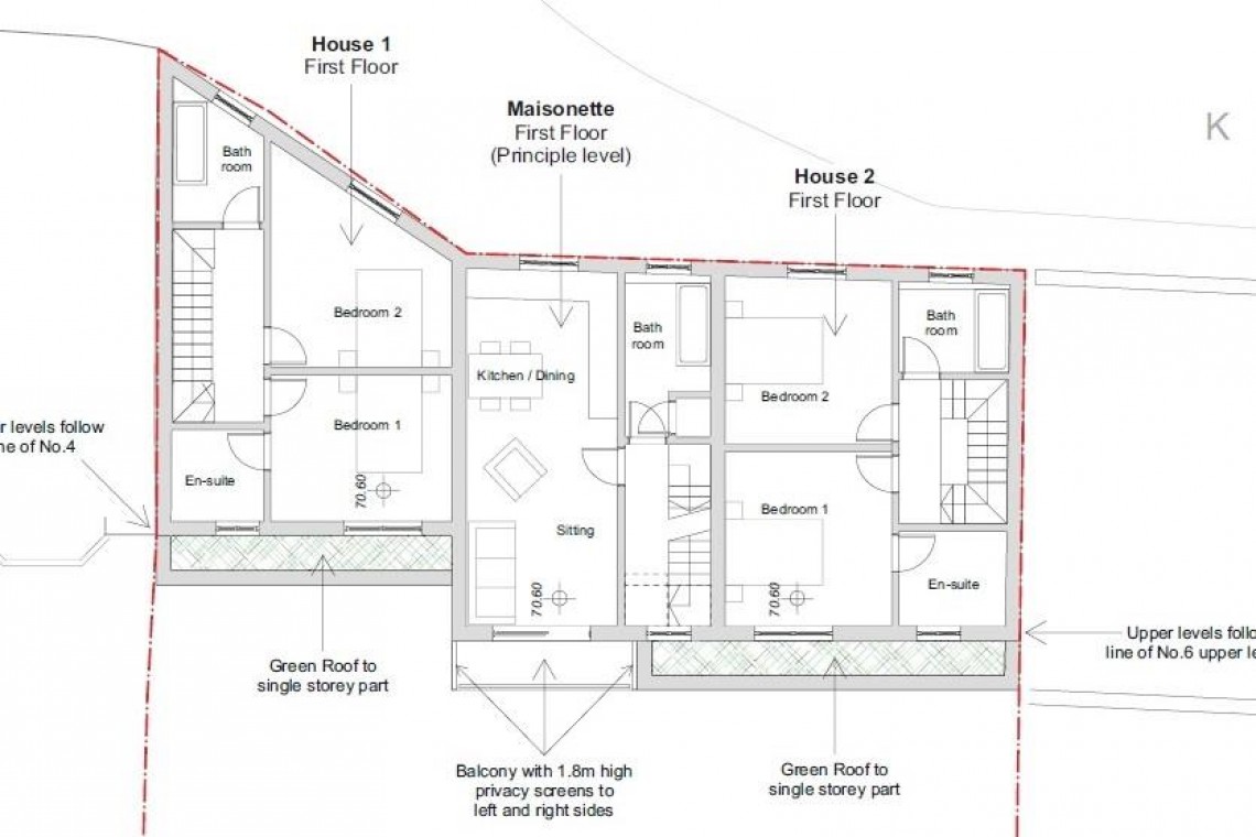
HOUSE 1 ( 121 Sq M )

GROUND FLOOR – Lobby | Entrance Hall | WC | Open Plan L Shaped Kitchen / Dining / Living Space with Doors to Garden
FIRST FLOOR – Bedroom 1 | En Suite | Bedroom 2 | Bathroom
TOP FLOOR – Bedroom 3 | Bedroom 4
Allocated Off Street Parking

HOUSE 2 ( 121.5 Sq M )

GROUND FLOOR – Lobby | Entrance Hall | WC | Open Plan L Shaped Kitchen / Dining / Living Space with Doors to Garden
FIRST FLOOR – Bedroom 1 | En Suite | Bedroom 2 | Bathroom
TOP FLOOR – Bedroom 3 | Bedroom 4 | Bathroom
Allocated Off Street Parking

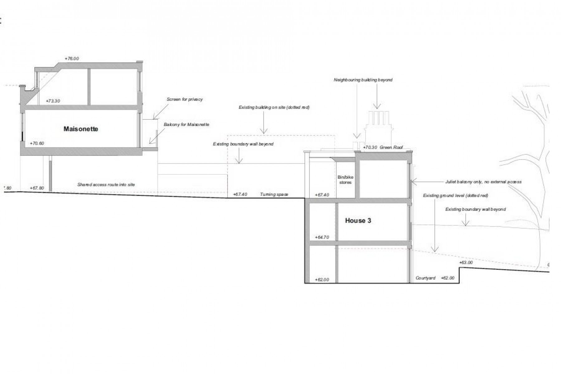
MAISONETTE ( 68.1 Sq M )

GROUND FLOOR – Private Entrance to
FIRST FLOOR – Bathroom | Open Plan L Shaped Kitchen / Dining / Living Space with Doors to Terrace
TOP FLOOR – Bedroom 1 | Bedroom 2

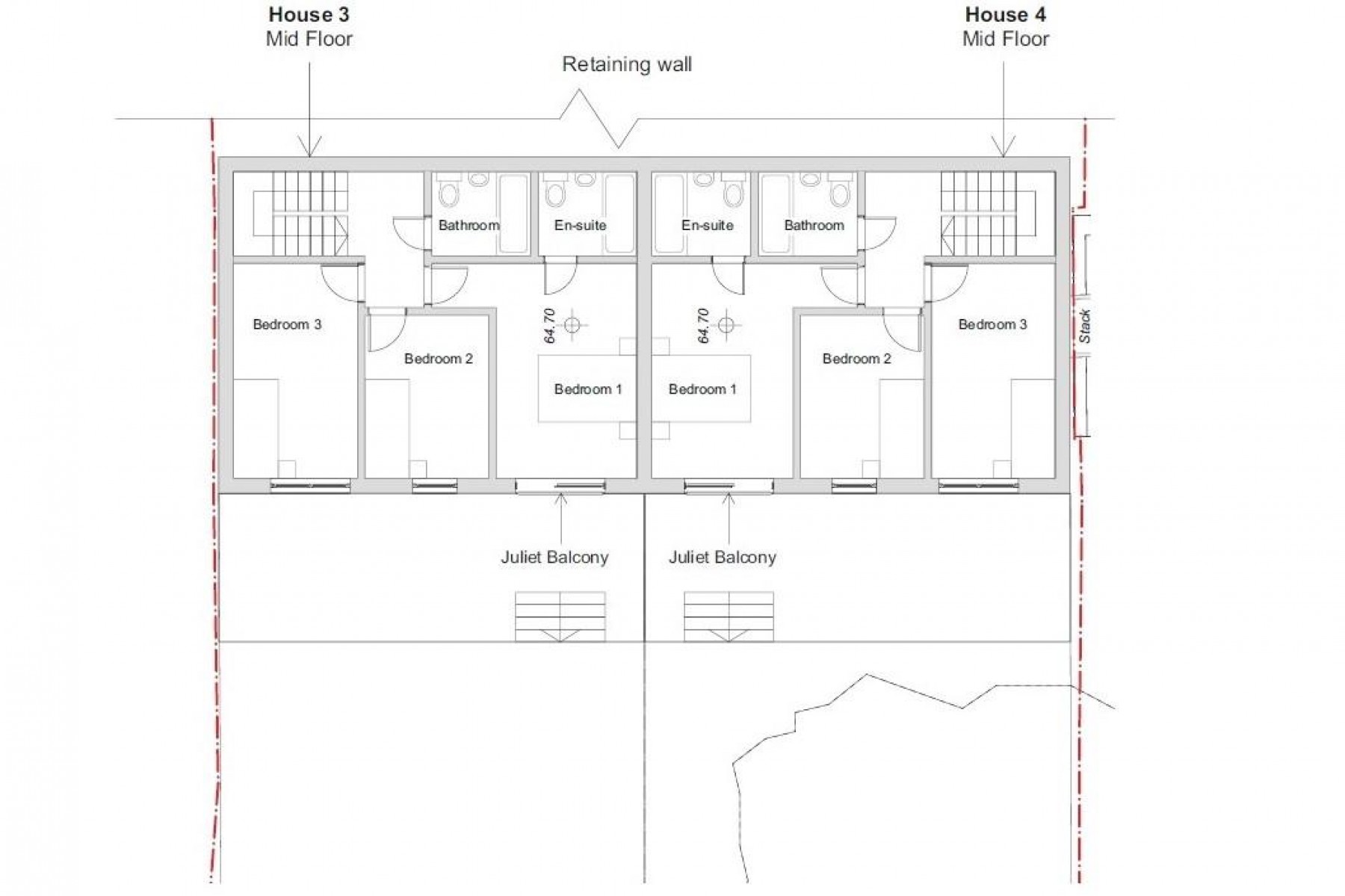
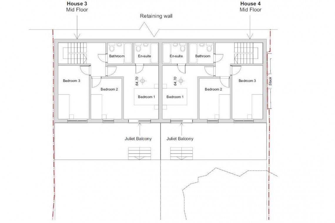
HOUSE 3 ( 140.3 Sq M )

LOWER GROUND FLOOR – Utility | WC | Larder | Open plan Kitchen / Diner with Doors to Garden
MIDDLE FLOOR – Bedroom 1 | Balcony | En suite | Bedroom 2 | Bedroom 3 | Bathroom
TOP FLOOR ( Ground floor level ) Entrance Hall | Shower | Bedroom 4 | Lounge with Balcony
Allocated Off Street Parking

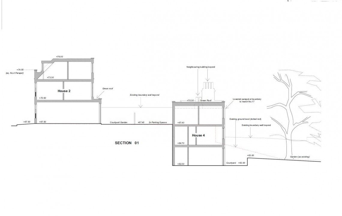
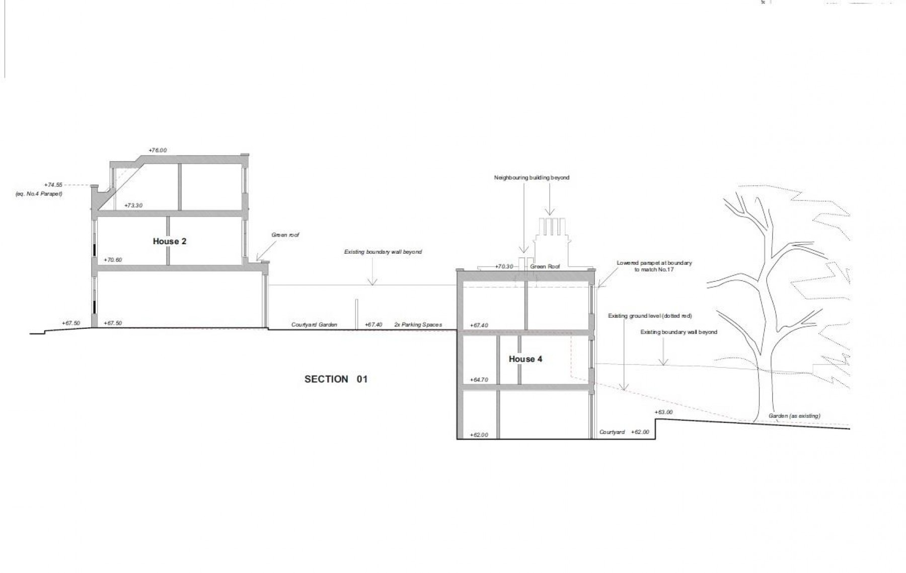
HOUSE 4 ( 140.3 Sq M )

LOWER GROUND FLOOR – Utility | WC | Larder | Open plan Kitchen / Diner with Doors to Garden
MIDDLE FLOOR – Bedroom 1 | Balcony | En suite | Bedroom 2 | Bedroom 3 | Bathroom
TOP FLOOR ( Ground floor level ) Entrance Hall | Shower | Bedroom 4 | Lounge with Balcony
Allocated Off Street Parking

PLANNING GRANTED

Reference20/03545/F
Alternative ReferencePP-08953680
Application ReceivedThu 06 Aug 2020
Application ValidatedTue 11 Aug 2020
Address5 Kingsdown Parade Bristol BS6 5UD
ProposalDemolition of existing building and construction of 5no. new dwellings (4no. houses and 1no. maisonette).
StatusDecided
DecisionGRANTED subject to condition(s)
Decision Issued DateMon 21 Dec 2020
Appeal StatusUnknown

PLANNING INFORMATION

Full details of the proposed scheme and drawings can be downloaded with the online legal pack.

EPC

For full details of the EPC please refer to the online legal pack.

BUYER'S PREMIUM

Please be aware all purchasers are subject to a £1000 + VAT (£1,200 inc VAT) buyer's premium which is ALWAYS payable upon exchange of contracts whether the sale is concluded before, during or after the auction date.

GUIDE PRICE

An indication of the seller's current minimum acceptable price at auction. The guide price or range of guide prices is given to assist consumers in deciding whether or not to pursue a purchase. It is usual, but not always the case, that a provisional reserve range is agreed between the seller and the auctioneer at the start of marketing. As the reserve is not fixed at this stage and can be adjusted by the seller at any time up to the day of the auction in the light of interest shown during the marketing period, a guide price is issued. This guide price can be shown in the form of a minimum and maximum price range within which an acceptable sale price (reserve) would fall, or as a single price figure within 10% of which the minimum acceptable price (reserve) would fall. A guide price is different to a reserve price (see separate definition). Both the guide price and the reserve price can be subject to change up to and including the day of the auction.

RESERVE PRICE

The seller's minimum acceptable price at auction and the figure below which the auctioneer cannot sell. The reserve price is not disclosed and remains confidential between the seller and the auctioneer. Both the guide price and the reserve price can be subject to change up to and including the day of the auction.

REGISTRATION PROCESS

The registration process is extremely simple – visit the Hollis Morgan auction website and click on the “Register to Bid” button.
The “Register to Bid” button can be found on the auction home page or on the individual lot listings.
Please note this function is not available on Rightmove or Zoopla.

Stage 1 – Complete the Online Bidding Form
Stage 2 – Upload your certified ID
Stage 3 – Invitation to bid
Stage 4 – Pay your security deposit ( £6,200 )

You are now ready to bid – Good luck!

If your bid is successful, the balance of the deposit monies must be transferred to our client account within 24 hours of the auction sale.
If you are unsuccessful at the auction your holding deposit will be returned within 48 hours.

SURVEYS AND VALUATIONS

If you would like to arrange a survey or mortgage valuation of this Lot BEFORE the auction please instruct your appointed surveyor to contact Hollis Morgan and we will arrange access for them to inspect the property. Please note that buyers CANNOT attend the surveys and the surveyors are responsible for collecting and returning keys to the Hollis Morgan offices in Clifton.

AUCTION FINANCE

Some properties may require specialist auction finance- please contact Hollis Morgan for access to expert advice and "whole of market" rates.

AUCTION BUYERS GUIDE VIDEO

We have short video guides for both buying and selling by Public Auction on the Hollis Morgan Website. If you have any further questions regarding the process please don’t hesitate to contact Auction HQ.

2022 CHARITY OF THE YEAR

Hollis Morgan are supporting Bristol Charity Gympanzees as our 2022 Charity of the year with a % of each Buyers premium being donated.
Gympanzees are a charity based in Bristol helping children and young people with disabilities to access fun, fitness, and friendship.
Visit the Hollis Morgan Charity page of our Website for further details or the charity direct @ www.gympanzees.org

TESTIMONIALS

We are very proud of what our past clients have say about us - please visit the Hollis Morgan website to read their testimonials.

WHY HOLLIS MORGAN?

Want to sell a property by Live Online Auction?

In 2020 we sold 150 lots by this updated method - we have embraced this change and move forward with our 2021 live online calendar of sales confident we can provide the best service for our clients.

Did you know...In 2020 Hollis Morgan SOLD more lots by auction in Bristol, North Somerset & Gloucester than any other auctioneer!
Did you know...In 2020 Hollis Morgan SOLD more £££’s of BS postcode lots than all the other local auctioneers combined!
Did you know...Since 2010 we have offered more lots in our catalogue ( 2151 ) than any other local firm.
*Source EIG Group 2021

Hollis Morgan hold the largest monthly land & property auctions in the region – book your free, no obligation valuation today!

AUCTION FINANCE

Some properties may require specialist auction finance- please contact Hollis Morgan for access to expert advice and "whole of market" rates.


Local Information

Schools Stations Healthcare
Floorplan for DEVELOPMENT SITE - PLANNING GRANTED