Sold @ Auction £86,000

Land Adjacent to, 1, Queens Road, Warmley, BS30 8EF

Bedrooms 2 Bathrooms 1 Reception 2

  • FOR SALE BY ONLINE AUCTION
  • WEDNESDAY 16TH FEBRUARY 2022
  • VIDEO TOUR NOW ONLINE
  • VIEWINGS - REFER TO DETAILS
  • DOWNLOAD ONLINE LEGAL PACKS
  • SOLD @ FEBRUARY AUCTION
  • FREEHOLD BUILDING PLOT
  • PLANNING GRANTED
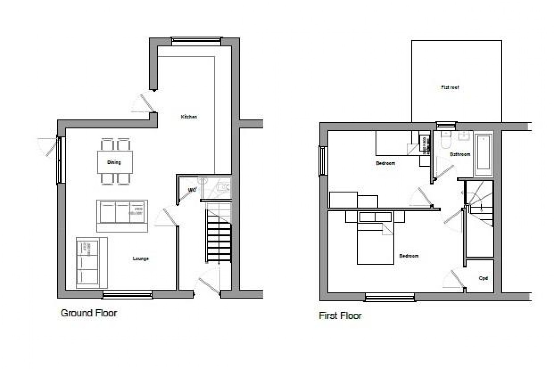
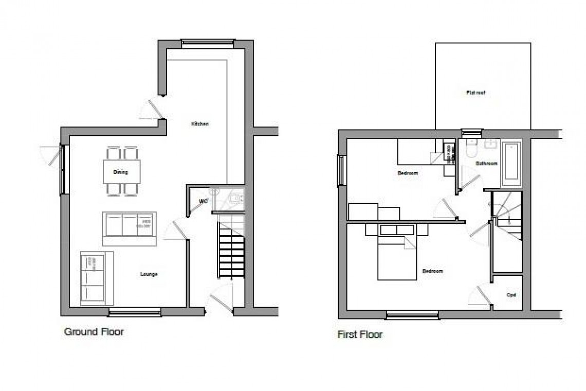
  • 2 BED SEMI ( 87 Sq m )
  • EXTENDED 6 WEEK COMPLETION

FOR SALE BY LIVE ONLINE AUCTION

*** SOLD @ FEBRUARY AUCTION ***

GUIDE PRICE £85,000 +++
SOLD @ £86,000

ADDRESS

Lot Number – 15
The Live Online Auction is on Wednesday 16th February 2022 @ 18:00
Registration Deadline is on Monday 14th February @ 16:00

The Auction will be streamed LIVE ONLINE via the Hollis Morgan website & you can chose to bid by telephone, proxy or via your computer.
Registration is a simple online process – please visit the Hollis Morgan auction website and click “REGISTER TO BID”

VIEWINGS

The site is open for inspection at all times

EXTENDED COMPLETION

Completion is set for 6 weeks or earlier subject to mutual consent.

SOLICITOR

Ian Osbourne
Star Legal
T: 0117 965 3504
ian.osborne@star-legal.co.uk


ONLINE LEGAL PACKS
** LEGAL PACK COMPLETE **

Digital Copies of the Online legal pack can be downloaded Free of Charge.
Please visit the Hollis Morgan Website and select the chosen lot from our Current Auction List.
Follow the RED link to "Download Legal Packs" For the first visit you will be required to register simply with your email and a password.
Having set up your account you can download legal packs or if they are not yet available, they will automatically be sent to you when we receive them.
You will be automatically updated by email if any new information is added.
There will be a note added to the list to confirm AUCTION PACK NOW COMPLETE when no further information is due to be added.
*** STAY UPDATED *** By registering for the legal pack we can ensure you are kept updated on any changes to this Lot in the build up to the sale.

THE LAND

A Freehold parcel of land formerly gardens to 1 Queens Road.
Sold with vacant possession.

LOCATION

Warmley benefits from excellent transport links with the A4174 Ring Road nearby providing easy access to Bristol (approximately 6 miles away).Local amenities and services including independent retailers, local pubs, bars and restaurants are all within close proximity.

THE OPPORTUNITY

PLANNING GRANTED

Planning has been granted to erect a semi detached 2 bedroom house ( 87 sq m) with parking and garden.

SCHEDULE OF ACCOMMODATION

GROUND FLOOR - Entrance Hall | Open Plan Kitchen / Diner / Reception | WC
FIRST FLOOR - Bedroom 1 | Bedroom 2 | | Bathroom
OUTSIDE - Garden | Parking

PLANNING GRANTED

APP REF: P20/18707/F
DATE VALID: 29th September 2020
DECISION DATE: 23rd November 2020
PARISH: Oldland Parish Council
NOTICE OF DECISION TOWN AND COUNTRY PLANNING ACT 1990
South Gloucestershire Council in pursuance of powers under the above mentioned Act hereby PERMIT:
APPLICATION NO: P20/18707/F
DESCRIPTION OF DEVELOPMENT: Erection of 1 no. dwelling and associated works (resubmission of P20/10502/F).
APPLICANT: Mr T Chedzoy
LOCATION: 1 Queens Road Warmley South Gloucestershire BS30 8EF

PLANNING INFORMATION

Full details of the proposed scheme and drawings can be downloaded with the online legal pack.

STANDARD AUCTION INFORMATION

BUYER’S PREMIUM

Please be aware all purchasers are subject to a £1000 + VAT (£1,200 inc VAT) buyer's premium which is ALWAYS payable upon exchange of contracts whether the sale is concluded before, during or after the auction date.

GUIDE PRICE

An indication of the seller's current minimum acceptable price at auction. The guide price or range of guide prices is given to assist consumers in deciding whether to pursue a purchase. It is usual, but not always the case, that a provisional reserve range is agreed between the seller and the auctioneer at the start of marketing. As the reserve is not fixed at this stage and can be adjusted by the seller at any time up to the day of the auction in the light of interest shown during the marketing period, a guide price is issued. This guide price can be shown in the form of a minimum and maximum price range within which an acceptable sale price (reserve) would fall, or as a single price figure within 10% of which the minimum acceptable price (reserve) would fall. A guide price is different to a reserve price (see separate definition). Both the guide price and the reserve price can be subject to change up to and including the day of the auction.

RESERVE PRICE

The seller's minimum acceptable price at auction and the figure below which the auctioneer cannot sell. The reserve price is not disclosed and remains confidential between the seller and the auctioneer. Both the guide price and the reserve price can be subject to change up to and including the day of the auction.

PRE-AUCTION OFFERS

Some vendors are willing to consider offers prior to the auction.
Pre-auction offers can ONLY be submitted by completing the online PRE-AUCTION OFFER FORM
The form can be found on the Hollis Morgan website on the individual auction property listings – look for the big red button.
Please note offers will not be considered until you have inspected the COMPLETE LEGAL PACK once it has been released.
There will be a note added to the list to confirm AUCTION PACK NOW COMPLETE when our client’s solicitor informs us no further information is due to be added.
In the event of an offer being accepted the property will only be removed from the online auction and viewings stopped once contracts have successfully EXCHANGED subject to the standard auction terms and payment of the buyer’s premium (£1000 + VAT) to Hollis Morgan.
Contracts can be exchanged via the solicitors or at the Hollis Morgan offices by appointment only.

REGISTRATION PROCESS

The registration process is extremely simple – visit the Hollis Morgan auction website and click on the “Register to Bid” button.
The “Register to Bid” button can be found on the auction home page or on the individual lot listings.
Please note this function is not available on Rightmove or Zoopla.

Stage 1 – Complete the Online Bidding Form
Stage 2 – Upload your certified ID
Stage 3 – Invitation to bid
Stage 4 – Pay your security deposit (£6,200)

You are now ready to bid – Good luck!

If your bid is successful, the balance of the deposit monies must be transferred to our client account within 24 hours of the auction sale.
If you are unsuccessful at the auction your holding deposit will be returned within 48 hours.

SURVEYS AND VALUATIONS

If you would like to arrange a survey or mortgage valuation of this Lot BEFORE the auction, please instruct your appointed surveyor to contact Hollis Morgan and we will arrange access for them to inspect the property. Please note that buyers CANNOT attend the surveys and the surveyors are responsible for collecting and returning keys to the Hollis Morgan offices in Clifton.

AUCTION FINANCE

Some properties may require specialist auction finance- please contact Hollis Morgan for access to expert advice and "whole of market" rates.

AUCTION BUYER’S GUIDE VIDEO

We have short video guides for both buying and selling by Public Auction on the Hollis Morgan Website. If you have any further questions regarding the process, please don’t hesitate to contact Auction HQ.

2022 CHARITY OF THE YEAR

Hollis Morgan is supporting Bristol Charity Gympanzees as our 2022 Charity of the year with a % of each Buyers premium being donated.
Gympanzees are a charity based in Bristol helping children and young people with disabilities to access fun, fitness, and friendship.
Visit the Hollis Morgan Charity page of our website for further details or the charity direct @ www.gympanzees.org

TESTIMONIALS

We are very proud of what our past clients have say about us - please visit the Hollis Morgan website to read their testimonials.

WHY HOLLIS MORGAN

Want to sell a property by Live Online Auction?

In 2020 we sold 150 lots by this updated method - we have embraced this change and move forward with our 2021 live online calendar of sales confident we can provide the best service for our clients.

Did you know...In 2020 Hollis Morgan SOLD more lots by auction in Bristol, North Somerset & Gloucester than any other auctioneer!
Did you know...In 2020 Hollis Morgan SOLD more £££’s of BS postcode lots than all the other local auctioneers combined!
Did you know...Since 2010 we have offered more lots in our catalogue (2151) than any other local firm.
*Source EIG Group 2021

Hollis Morgan holds the largest monthly land & property auctions in the region – book your free, no obligation valuation today!

AUCTION PROPERTY DETAILS DISCLAIMER

Hollis Morgan endeavour to make our sales details clear, accurate and reliable in line with the Consumer Protection from Unfair Trading Regulations 2008 but they should not be relied on as statements or representations of fact, and they do not constitute any part of an offer or contract. All Hollis Morgan references to planning, tenants, boundaries, potential development, tenure etc is to be superseded by the information contained in the legal pack. It should not be assumed that this property has all the necessary Planning, Building Regulation, or other consents. Any services, appliances and heating system(s) listed have not been checked or tested. Please note that in some instances the photographs may have been taken using a wide-angle lens. The seller does not make any representation or give any warranty in relation to the property, and we have no authority to do so on behalf of the seller.


Local Information

Schools Stations Healthcare
Floorplan for PLOT WITH PLANNING - WARMLEY