SOLD, Auction Guide Price +++ £203,000

Plot, 25a, Wickwar Road, Kingswood, GL12 8RF

Bedrooms 4 Bathrooms 2 Reception 2

  • FOR SALE BY ONLINE AUCTION
  • WEDNESDAY 16th FEBRUARY 2022
  • VIDEO TOUR NOW ONLINE
  • VIEWINGS - REFER TO DETAILS
  • DOWNLOAD ONLINE LEGAL PACKS
  • SOLD @ FEBRUARY AUCTION
  • FREEHOLD BUILDING PLOT
  • PLANNING GRANTED
  • DETACHED 4 BED HOUSE ( 1320 Sq Ft )
  • EXTENDED 8 WEEK COMPLETION

BIDDING REGISTRATION EXTENDED

Due to the late arrival of the legal pack registration for this lot has been extended to 10am Wednesday 16th February.
Please submit your registration forms ASAP.

ADDRESS

Plot @ 25A Wickwar Road, Kingswood, Wotton-Under-Edge, Gloucestershire

FOR SALE BY LIVE ONLINE AUCTION

*** SOLD @ FEBRUARY AUCTION ***

GUIDE PRICE £150,000 +++
SOLD @ £203,000

Lot Number 10
The Live Online Auction is on Wednesday 16th February 2022 @ 18:00
Registration Deadline is on Monday 14th February @ 16:00

The Auction will be streamed LIVE ONLINE via the Hollis Morgan website & you can chose to bid by telephone, proxy or via your computer.
Registration is a simple online process – please visit the Hollis Morgan auction website and click “REGISTER TO BID”

PRE AUCTION OFFERS

On this occasion the vendor will NOT consider pre auction offers.

VIEWINGS

The plot can be viewed from the road and internal access via a coded gate can be arranged upon request.

EXTENDED COMPLETION

Completion is set for 8 weeks or earlier subject to mutual consent.

SOLICITORS

Batchelor Sharp Solicitors
Jackie Curtis
jackie.curtis@batchelorsharp.co.uk
tel 0117 967 1772

ONLINE LEGAL PACKS

Digital Copies of the Online legal pack can be downloaded Free of Charge.
Please visit the Hollis Morgan Website and select the chosen lot from our Current Auction List.
Follow the RED link to "Download Legal Packs" For the first visit you will be required to register simply with your email and a password.
Having set up your account you can download legal packs or if they are not yet available they will automatically be sent to you when we receive them.
You will be automatically updated by email if any new information is added.
There will be a note added to the list to confirm AUCTION PACK NOW COMPLETE when no further information is due to be added.
*** STAY UPDATED *** By registering for the legal pack we can ensure you are kept updated on any changes to this Lot in the build up to the sale.

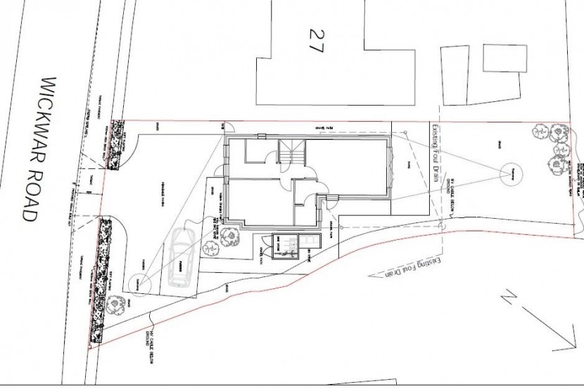
THE LAND

A Freehold plot of land measuring approximately 0.09 acres (400 sq m), situated in a village location in Kingswood, Wotton-Under-Edge with fine rural views to the rear aspect and local amenities close by.
Sold with vacant possession.

LOCATION

The semi-rural village of Kingswood is located approximately 1.2 miles South West of the market town Wotton under Edge, 2.6 miles from the village of Wickwar and 6.5 miles from the bustling market town of Chipping Sodbury. It allows ideal access to attractive countryside surrounds and the Cotswolds plus it has the benefit of commuting to Bristol via the M5 Junction 14 - approximately 4.4 miles away. The village has a quaint conservation High Street which leads to the local primary school via the historic Abbey Gates, plus a short walk north of the village will take you to the very popular Katharine Lady Berkeley secondary school. In the centre of the village there is the local store, Public House and gymnasium which is situated in the converted chapel.

THE OPPORTUNITY

PLANNING GRANTED - DETACHED HOUSE

Planning has been granted to erect a detached four bedroom house with gardens and parking in this sought after location.
We understand the completed value is in the region of £500,000.

PROPOSED SCHEDULE OF ACCOMMODATION

GROUND FLOOR
Entrance Hall | Study | Lounge | Utility | WC | Open plan kitchen / diner with doors to rear garden

FIRST FLOOR
Bedroom 1 | En Suite | Bedroom 2 | Bedroom 3 | Bedroom 4 | Bathroom

PLANNING GRANTED

STROUD DISTRICT COUNCIL
Planning Ref:S.20/1604/FUL
Application Date: 04/08/2020
Dated: 15/01/2021
Description of Land; 25A Wickwar Road, Kingswood, Wotton-Under-Edge, Gloucestershire
Description of Development ; Amendment to existing planning permission (S.19/0340/FUL) to relocate the building together with internal, fenestration and cladding revisions.
Kingswood Parish Council 374418 191630

PLANNING INFORMATION

Full details of the proposed scheme and drawings can be downloaded with the online legal pack.

EPC

For full details of the EPC please refer to the online legal pack.

BUYER'S PREMIUM

Please be aware all purchasers are subject to a £1000 + VAT (£1,200 inc VAT) buyer's premium which is ALWAYS payable upon exchange of contracts whether the sale is concluded before, during or after the auction date.

GUIDE PRICE

An indication of the seller's current minimum acceptable price at auction. The guide price or range of guide prices is given to assist consumers in deciding whether or not to pursue a purchase. It is usual, but not always the case, that a provisional reserve range is agreed between the seller and the auctioneer at the start of marketing. As the reserve is not fixed at this stage and can be adjusted by the seller at any time up to the day of the auction in the light of interest shown during the marketing period, a guide price is issued. This guide price can be shown in the form of a minimum and maximum price range within which an acceptable sale price (reserve) would fall, or as a single price figure within 10% of which the minimum acceptable price (reserve) would fall. A guide price is different to a reserve price (see separate definition). Both the guide price and the reserve price can be subject to change up to and including the day of the auction.

RESERVE PRICE

The seller's minimum acceptable price at auction and the figure below which the auctioneer cannot sell. The reserve price is not disclosed and remains confidential between the seller and the auctioneer. Both the guide price and the reserve price can be subject to change up to and including the day of the auction.

REGISTRATION PROCESS

The registration process is extremely simple – visit the Hollis Morgan auction website and click on the “Register to Bid” button.
The “Register to Bid” button can be found on the auction home page or on the individual lot listings.
Please note this function is not available on Rightmove or Zoopla.

Stage 1 – Complete the Online Bidding Form
Stage 2 – Upload your certified ID
Stage 3 – Invitation to bid
Stage 4 – Pay your security deposit ( £6,200 )

You are now ready to bid – Good luck!

If your bid is successful, the balance of the deposit monies must be transferred to our client account within 24 hours of the auction sale.
If you are unsuccessful at the auction your holding deposit will be returned within 48 hours.

SURVEYS AND VALUATIONS

If you would like to arrange a survey or mortgage valuation of this Lot BEFORE the auction please instruct your appointed surveyor to contact Hollis Morgan and we will arrange access for them to inspect the property. Please note that buyers CANNOT attend the surveys and the surveyors are responsible for collecting and returning keys to the Hollis Morgan offices in Clifton.

AUCTION FINANCE

Some properties may require specialist auction finance- please contact Hollis Morgan for access to expert advice and "whole of market" rates.

AUCTION BUYERS GUIDE VIDEO

We have short video guides for both buying and selling by Public Auction on the Hollis Morgan Website. If you have any further questions regarding the process please don’t hesitate to contact Auction HQ.

2022 CHARITY OF THE YEAR

Hollis Morgan are supporting Bristol Charity Gympanzees as our 2022 Charity of the year with a % of each Buyers premium being donated.
Gympanzees are a charity based in Bristol helping children and young people with disabilities to access fun, fitness, and friendship.
Visit the Hollis Morgan Charity page of our Website for further details or the charity direct @ www.gympanzees.org

TESTIMONIALS

We are very proud of what our past clients have say about us - please visit the Hollis Morgan website to read their testimonials.

WHY HOLLIS MORGAN?

Want to sell a property by Live Online Auction?

In 2020 we sold 150 lots by this updated method - we have embraced this change and move forward with our 2021 live online calendar of sales confident we can provide the best service for our clients.

Did you know...In 2020 Hollis Morgan SOLD more lots by auction in Bristol, North Somerset & Gloucester than any other auctioneer!
Did you know...In 2020 Hollis Morgan SOLD more £££’s of BS postcode lots than all the other local auctioneers combined!
Did you know...Since 2010 we have offered more lots in our catalogue ( 2151 ) than any other local firm.
*Source EIG Group 2021

Hollis Morgan hold the largest monthly land & property auctions in the region – book your free, no obligation valuation today!


Local Information

Schools Stations Healthcare
Floorplan for PLOT WITH PLANNING - GL12 Floorplan for PLOT WITH PLANNING - GL12