Lot 4

8 Acramans Road, Southville, BS3 1DQ

Sold @ Auction £1,330,000 +++

Bedrooms 10 Bathrooms 5 Reception 2

  • FOR SALE BY ONLINE AUCTION
  • WEDNESDAY 15TH DECEMBER 2021
  • VIDEO TOUR NOW ONLINE
  • VIEWINGS - REFER TO DETAILS
  • DOWNLOAD ONLINE LEGAL PACKS
  • DECEMBER 2021
  • FREEHOLD DETACHED PROPERTY
  • RESI DEVELOPMENT OPPORTUNITY
  • REQUIRES UPDATING / DOUBLE PLOT
  • EXTENDED 8 WEEK COMPLETION

*** VAT UPDATE ***

We have been informed ( 6.12.21 ) that VAT IS NOT PAYABLE on the purchase of this lot.

ADDRESS

8 Acramans Rd, Southville, Bristol BS3 1DQ

FOR SALE BY LIVE ONLINE AUCTION

*** SOLD @ DECEMBER AUCTION***

GUIDE PRICE £650,000 +++
SOLD @ £1,330,000

Lot Number 4
The Live Online Auction is on Wednesday 15th December @ 18:00
Registration Deadline is on Monday 13th December @ 16:00

The Auction will be streamed LIVE ONLINE via the Hollis Morgan website & you can chose to bid by telephone, proxy or via your computer.
Registration is a simple online process – please visit the Hollis Morgan auction website and click “REGISTER TO BID”

PRE AUCTION OFFERS

On this occasion the vendors will NOT be considering pre auction offers.

VIEWINGS

Viewings can be booked on specific days for this property – please submit a viewing request online and we will contact you to arrange access.

*** THE PROPERTY IS CURRENTLY OCCUPIED AND VIEWINGS ARE STRICTLY BY APPOINTMENT ONLY PLEASE ( SOLD WITH VACANT POSSESSION ) ***

Hollis Morgan would be grateful if you could arrive promptly to inspect the properties at the START of the agreed time as we have scheduled viewings throughout the day and CANNOT wait for late arrivals.
There are likely to be viewings on the property before and after your appointment and if you miss your slot ( usually 15 minutes or longer for larger properties ) you will be asked to wait until the next available time.
Please note government regulation on groups sizes and safe social distancing must be practiced at all times – please bring your own gloves and facemask.
You may be asked to wait outside before it is safe to enter – please understand and respect this request.
If you have shown any symptoms of Covid (19 ) in the last 10 days we would respectfully ask you to not attend the viewing.
The safety of our clients and staff is our number one priority and we thank you for your understanding.
Please note that hard copy of details will not be provided but will have been emailed to you with instructions on how to bid and what happens next before the viewing.

EXTENDED COMPLETION

Completion is set for 8 weeks or earlier subject to mutual consent.

SOLICITORS

Angelina Gritseniouk
Lyons Davidson
agritseniouk@lyonsdavidson.co.uk
0117 904 6035

ONLINE LEGAL PACKS

** LEGAL PACK COMPLETE **

Digital Copies of the Online legal pack can be downloaded Free of Charge.
Please visit the Hollis Morgan Website and select the chosen lot from our Current Auction List.
Follow the RED link to "Download Legal Packs" For the first visit you will be required to register simply with your email and a password.
Having set up your account you can download legal packs or if they are not yet available they will automatically be sent to you when we receive them.
You will be automatically updated by email if any new information is added.
There will be a note added to the list to confirm AUCTION PACK NOW COMPLETE when no further information is due to be added.
*** STAY UPDATED *** By registering for the legal pack we can ensure you are kept updated on any changes to this Lot in the build up to the sale.

THE PROPERTY

A large Freehold period property ( most recently used as a care home useage class C2 ) with accommodation ( 3598 Sq Ft ) arranged over four floors set on a large double plot with parking and gardens.
Sold with vacant possession.

LOCATION

Located in one of Bristol’s most sought after locations close to the iconic North Street, Bristol Harbourside & Whapping Wharf yet tucked back from the action that is quite literally on your doorstep, There is a vast array of open green spaces nearby including Gores Marsh Park, Ashton Court Estate and Greville Smyth Park. This property has easy access to Bristol City Centre, Bristol International Airport and the Bristol Link Road. These are excellent transportation links making this one of the most convenient and valued locations in Bristol. This Southville location offers the flourishing independent shops, bars, cafes and restaurants of North Street including the popular Tobacco Factory,

THE OPPORTUNITY

PRIME DEVELOPMENT OPPORTUNITY

The property now requires modernisation but has scope for a range of residential uses including flat development, conversion to HMO or one of the finest family homes in the postcode.
We are informed the property was previously mid terraced with another similar sized property occupying the double plot ( pre war ) and buyers should make their investigations into the possible development opportunities this represents.
Subject to consents.

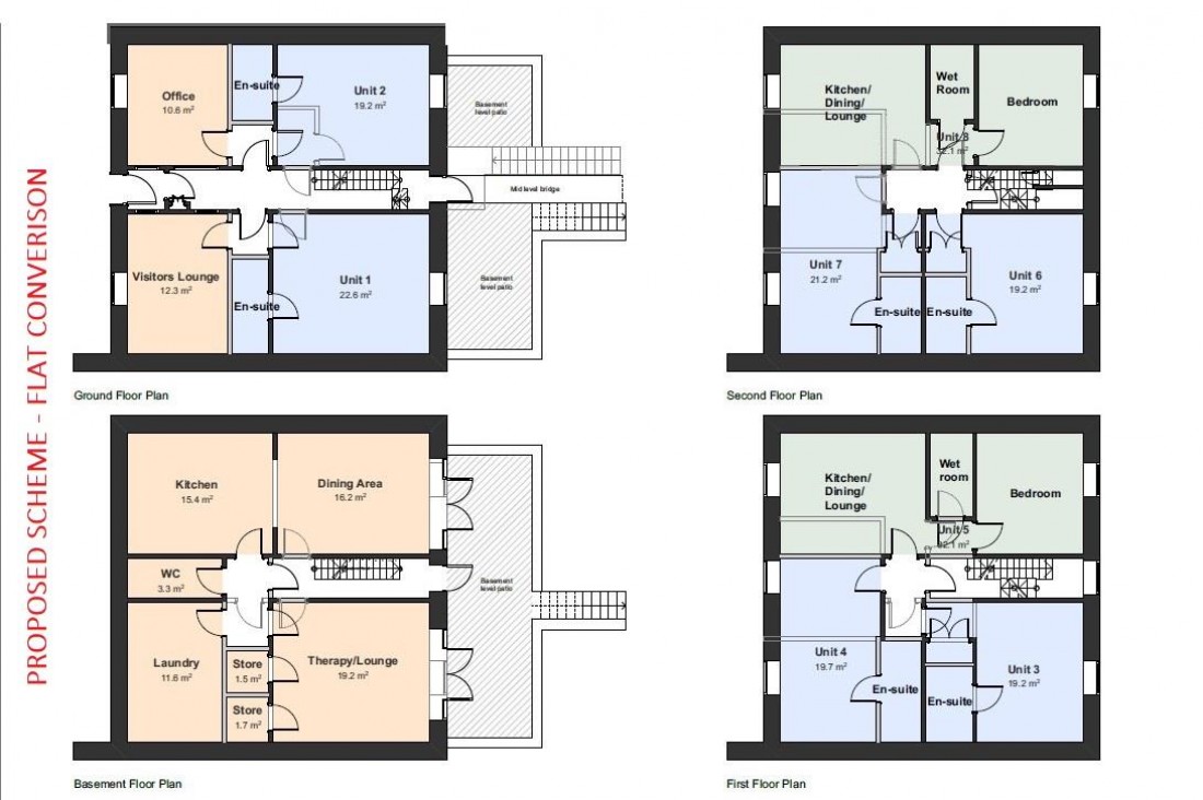
PROPOSED SCHEME - FLAT CONVERSION

The vendors have provided a proposed scheme to convert the property into flats.
Please note no planning has been sought of this nature and it is indicative only.

HOLLIS MORGAN NEW HOMES

If you would like to discuss the GDV of any proposed schemes please contact Calum Melhuish from the Hollis Morgan New Homes team.
Calum@hollismorgan.co.uk

RENTAL APPRAISAL

What rent can we achieve for you?

The Bristol Residential Letting Co. are confident this property would make a good rental investment if
converted to either of the following options;

Conversion to 8 x 1 bedroom apartments

If converted to create 8 x 1 bedroom apartments circa 450 sq.ft per unit, a rent in the region of
£950pcm - £1000pcm per unit could be achieved (£96k gross annual income). Confirmation of number
of individual apartments subject to planning, although we see no reason why 8 individual units couldn’t
be created.

Conversion to HMO/individual double room lets

If converted to create multiple individual double rooms, a rent of £700pcm (inclusive of utility bills)
could be achieved for each room. Confirmation of number of rooms subject to planning.
If you would like to discuss more detail on the potential for rental, you can call me (0117 370 8818) or
email (josh@bristolreslet.com) for a no obligation discussion. Alternatively why not drop into my
Office (222 North Street, Southville, BS3 1JD) where I am always happy to advise investors on
maximising their investment.

EPC

For full details of the EPC please refer to the online legal pack.

GUIDE PRICE

An indication of the seller's current minimum acceptable price at auction. The guide price or range of guide prices is given to assist consumers in deciding whether or not to pursue a purchase. It is usual, but not always the case, that a provisional reserve range is agreed between the seller and the auctioneer at the start of marketing. As the reserve is not fixed at this stage and can be adjusted by the seller at any time up to the day of the auction in the light of interest shown during the marketing period, a guide price is issued. This guide price can be shown in the form of a minimum and maximum price range within which an acceptable sale price (reserve) would fall, or as a single price figure within 10% of which the minimum acceptable price (reserve) would fall. A guide price is different to a reserve price (see separate definition). Both the guide price and the reserve price can be subject to change up to and including the day of the auction.

RESERVE PRICE

The seller's minimum acceptable price at auction and the figure below which the auctioneer cannot sell. The reserve price is not disclosed and remains confidential between the seller and the auctioneer. Both the guide price and the reserve price can be subject to change up to and including the day of the auction.

BUYER'S PREMIUM

Please be aware all purchasers are subject to a £1000 + VAT (£1,200 inc VAT) buyer's premium which is ALWAYS payable upon exchange of contracts whether the sale is concluded before, during or after the auction date.

REGISTRATION PROCESS

The registration process is extremely simple – visit the Hollis Morgan auction website and click on the “Register to Bid” button.
The “Register to Bid” button can be found on the auction home page or on the individual lot listings.
Please note this function is not available on Rightmove or Zoopla.

Stage 1 – Complete the Online Bidding Form
Stage 2 – Upload your certified ID
Stage 3 – Invitation to bid
Stage 4 – Pay your security deposit ( £6,200 )

You are now ready to bid – Good luck!

If your bid is successful, the balance of the deposit monies must be transferred to our client account within 24 hours of the auction sale.
If you are unsuccessful at the auction your holding deposit will be returned within 48 hours.

SURVEYS AND VALUATIONS

If you would like to arrange a survey or mortgage valuation of this Lot BEFORE the auction please instruct your appointed surveyor to contact Hollis Morgan and we will arrange access for them to inspect the property. Please note that buyers CANNOT attend the surveys and the surveyors are responsible for collecting and returning keys to the Hollis Morgan offices in Clifton.

AUCTION FINANCE

Some properties may require specialist auction finance- please contact Hollis Morgan for access to expert advice and "whole of market" rates.

AUCTION BUYERS GUIDE VIDEO

We have short video guides for both buying and selling by Public Auction on the Hollis Morgan Website. If you have any further questions regarding the process please don’t hesitate to contact Auction HQ.

2021 CHARITY OF THE YEAR

Hollis Morgan are supporting Bristol Charity 1625 Independent People as our 2021 Charity of the year with a % of each Buyers premium being donated.
1625 Independent People (1625ip) is a charity that works with young people who are homeless, leaving care or at risk of homelessness in Bristol and the South West.
Visit the Hollis Morgan Charity page of our Website for further details - www.hollismorgan.co.uk/charity

TESTIMONIALS

We are very proud of what our past clients have say about us - please visit the Hollis Morgan website to read their testimonials.

WHY HOLLIS MORGAN?

Want to sell a property by Live Online Auction?

In 2020 we sold 150 lots by this updated method - we have embraced this change and move forward with our 2021 live online calendar of sales confident we can provide the best service for our clients.

Did you know...In 2020 Hollis Morgan SOLD more lots by auction in Bristol, North Somerset & Gloucester than any other auctioneer!
Did you know...In 2020 Hollis Morgan SOLD more £££’s of BS postcode lots than all the other local auctioneers combined!
Did you know...Since 2010 we have offered more lots in our catalogue ( 2151 ) than any other local firm.
*Source EIG Group 2021

Hollis Morgan hold the largest monthly land & property auctions in the region – book your free, no obligation valuation today!

AUCTION PROPERTY DETAILS DISCLAIMER

Hollis Morgan endeavour to make our sales details clear, accurate and reliable in line with the Consumer Protection from Unfair Trading Regulations 2008 but they should not be relied on as statements or representations of fact and they do not constitute any part of an offer or contract. All Hollis Morgan references to planning, tenants, boundaries, potential development, tenure etc is to be superseded by the information contained in the legal pack. It should not be assumed that this property has all the necessary Planning, Building Regulation or other consents. Any services, appliances and heating system(s) listed have not been checked or tested. Please note that in some instances the photographs may have been taken using a wide angle lens. The seller does not make any representation or give any warranty in relation to the property and we have no authority to do so on behalf of the seller.


Local Information

Schools Stations Healthcare
Floorplan for PRIME SOUTHVILLE OPPORTUNITY Floorplan for PRIME SOUTHVILLE OPPORTUNITY