Lot 16

36 - 38 East Street, Bedminster, BS3 4HD

Sold @ Auction £705,000 +++


  • FOR SALE BY ONLINE AUCTION
  • WEDNESDAY 24TH NOVEMBER 2021
  • VIDEO TOUR NOW ONLINE
  • VIEWINGS - REFER TO DETAILS
  • DOWNLOAD ONLINE LEGAL PACKS
  • NOVEMBER 2021
  • FREEHOLD FORMER BANK ( 5920 Sq Ft )
  • SCOPE FOR FLATS / HMO
  • LARGE CORNER RETAIL UNIT
  • EXTENDED 7 WEEK COMPLETION

ADDRESS

36-38 East Street, Bedminster, Bristol BS3 4HD

FOR SALE BY LIVE ONLINE AUCTION

*** SOLD @ NOVEMBER AUCTION***

GUIDE PRICE £475,000 +++
SOLD @ £705,000

Lot Number – 16
The Live Online Auction is on Wednesday 24th November @ 18:00
Registration Deadline is on Monday 22nd November @ 16:00

The Auction will be streamed LIVE ONLINE via the Hollis Morgan website & you can chose to bid by telephone, proxy or via your computer.
Registration is a simple online process – please visit the Hollis Morgan auction website and click “REGISTER TO BID”

PRE AUCTION OFFERS

On this occasion the vendors will NOT be considering pre auction offers.

VIEWINGS

Viewings can be booked on specific days for this property – please submit a viewing request online and we will contact you to arrange access.

Hollis Morgan would be grateful if you could arrive promptly to inspect the properties at the START of the agreed time as we have scheduled viewings throughout the day and CANNOT wait for late arrivals.
There are likely to be viewings on the property before and after your appointment and if you miss your slot ( usually 15 minutes or longer for larger properties ) you will be asked to wait until the next available time.
Please note government regulation on groups sizes and safe social distancing must be practiced at all times – please bring your own gloves and facemask.
You may be asked to wait outside before it is safe to enter – please understand and respect this request.
If you have shown any symptoms of Covid (19 ) in the last 10 days we would respectfully ask you to not attend the viewing.
The safety of our clients and staff is our number one priority and we thank you for your understanding.
Please note that hard copy of details will not be provided but will have been emailed to you with instructions on how to bid and what happens next before the viewing.

EXTENDED COMPLETION

Completion is set for 7 weeks or earlier subject to mutual consent.

SOLICITORS

David Henson
Senior Associate
Converse Law, Formal House, 60 St George’s Place, Cheltenham, GL50 3PN
01242 323950
07884 021441
david.henson@converselaw.com

ONLINE LEGAL PACKS

** LEGAL PACK COMPLETE **

Digital Copies of the Online legal pack can be downloaded Free of Charge.
Please visit the Hollis Morgan Website and select the chosen lot from our Current Auction List.
Follow the RED link to "Download Legal Packs" For the first visit you will be required to register simply with your email and a password.
Having set up your account you can download legal packs or if they are not yet available they will automatically be sent to you when we receive them.
You will be automatically updated by email if any new information is added.
There will be a note added to the list to confirm AUCTION PACK NOW COMPLETE when no further information is due to be added.
*** STAY UPDATED *** By registering for the legal pack we can ensure you are kept updated on any changes to this Lot in the build up to the sale.

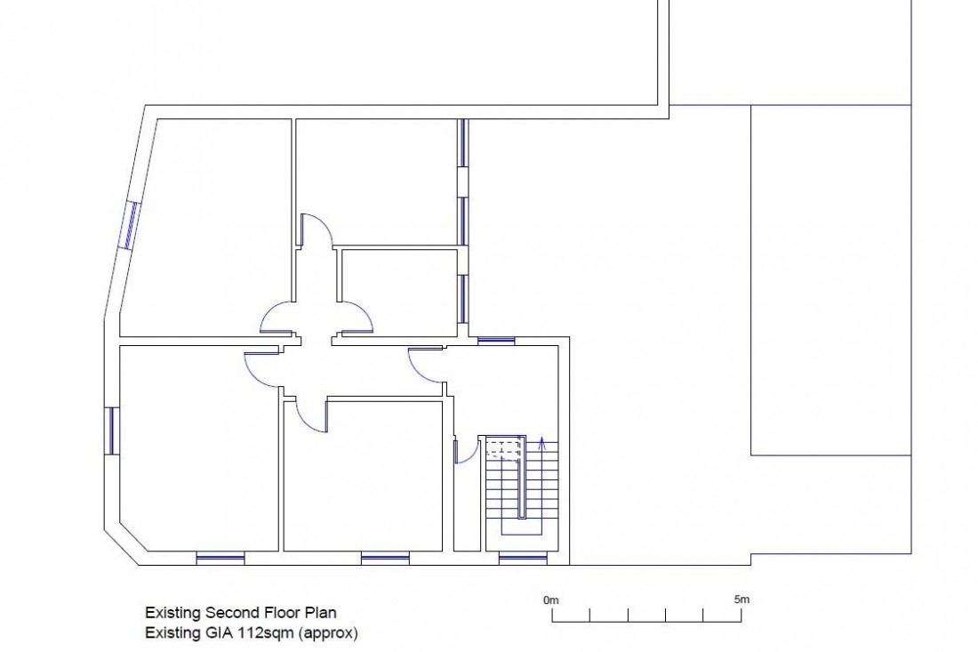
THE PROPERTY

A Freehold former bank with accommodation ( 5920 Sq Ft ) arranged over 3 floors adjacent to the landmark development at Factory No. 1 in the heart of popular BS3.
Sold with vacant possession.

LOCATION

East street is a popular pedestrianised High Street with a wide range of retailers and traders serving the local area yet within one mile of the City Centre and close to North Street.

THE OPPORTUNITY

FLAT CONVERSION

There is scope for converting the property into a scheme self contained apartments plus a large corner retail unit on the ground floor.

Option 1

5 x Flats with no extension
4 x 1 bed and 1 x 2 Bed
Ground Floor Retail

Option 2

7 x Flats with first & second floor extensions
6 x 1 Bed and 1 x Studio
Ground Floor Retail

HMO CONVERSION

There is also potential for an HMO style scheme plus a large corner retail unit on the ground floor.

Option 1

2 x HMOs ( 7 Bed & 4 Bed ) with no extension
Ground Floor Retail

Option 2

2 x HMOs ( 8 Bed & 4 Bed ) with no extension
Ground Floor Retail

Option 3

2 x HMOs ( 2 x 6 Bed with en-suites ) with first & second floor extensions
Ground Floor Retail

PROPOSED SCHEMES

The vendors have provided proposed drawings for the aforementioned schemes and whilst we are informed much of the consent falls within permitted development we can confirm no formal planning has been applied for with the local authority.
Please refer to online legal pack to review the proposed schemes.

CAR PARK

Please note the car pack to the rear is not included but will be developed by City & Country into a hi spec residential development.

FACTORY NO.1 - ADJACENT DEVELOPMENT

Factory No.1 is a new and exciting residential development located at the gateway to Bedminster.
Formerly the first tobacco factory of W.D and H.O Wills, a new chapter has started for the historic site, with 2 bedroom apartments for sale in Bristol. Urban homes are being crafted from the former factory’s buildings alongside five new build apartment blocks, all set around beautiful courtyard gardens.
Factory No.1 provides convenience and peace of mind. The gated Bristol development offers residents both privacy and security, allowing them to enjoy their secret garden. This beautifully landscaped outside space provides the perfect oasis and haven away from the hustle and bustle of busy city life.
Minutes from North Street and a short walk from Bristol Temple Meads station, Factory No.1 offers a wide variety of apartments for sale, including stylish conversion and contemporary new build homes in Bristol. All apartments boast light-filled interiors and a premium, fully-inclusive specification.
For More Details - https://www.cityandcountry.co.uk/find-a-home/factory-no-1-bristol/#

VAT

We understand the property is NOT elected for VAT - refer to legal pack.

EPC

For full details of the EPC please refer to the online legal pack.

BUYER'S PREMIUM

Please be aware all purchasers are subject to a £1000 + VAT (£1,200 inc VAT) buyer's premium which is ALWAYS payable upon exchange of contracts whether the sale is concluded before, during or after the auction date.

GUIDE PRICE

An indication of the seller's current minimum acceptable price at auction. The guide price or range of guide prices is given to assist consumers in deciding whether or not to pursue a purchase. It is usual, but not always the case, that a provisional reserve range is agreed between the seller and the auctioneer at the start of marketing. As the reserve is not fixed at this stage and can be adjusted by the seller at any time up to the day of the auction in the light of interest shown during the marketing period, a guide price is issued. This guide price can be shown in the form of a minimum and maximum price range within which an acceptable sale price (reserve) would fall, or as a single price figure within 10% of which the minimum acceptable price (reserve) would fall. A guide price is different to a reserve price (see separate definition). Both the guide price and the reserve price can be subject to change up to and including the day of the auction.

RESERVE PRICE

The seller's minimum acceptable price at auction and the figure below which the auctioneer cannot sell. The reserve price is not disclosed and remains confidential between the seller and the auctioneer. Both the guide price and the reserve price can be subject to change up to and including the day of the auction.

REGISTRATION PROCESS

The registration process is extremely simple – visit the Hollis Morgan auction website and click on the “Register to Bid” button.
The “Register to Bid” button can be found on the auction home page or on the individual lot listings.
Please note this function is not available on Rightmove or Zoopla.

Stage 1 – Complete the Online Bidding Form
Stage 2 – Upload your certified ID
Stage 3 – Invitation to bid
Stage 4 – Pay your security deposit ( £6,200 )

You are now ready to bid – Good luck!

If your bid is successful, the balance of the deposit monies must be transferred to our client account within 24 hours of the auction sale.
If you are unsuccessful at the auction your holding deposit will be returned within 48 hours.

SURVEYS AND VALUATIONS

If you would like to arrange a survey or mortgage valuation of this Lot BEFORE the auction please instruct your appointed surveyor to contact Hollis Morgan and we will arrange access for them to inspect the property. Please note that buyers CANNOT attend the surveys and the surveyors are responsible for collecting and returning keys to the Hollis Morgan offices in Clifton.

AUCTION FINANCE

Some properties may require specialist auction finance- please contact Hollis Morgan for access to expert advice and "whole of market" rates.

AUCTION BUYERS GUIDE VIDEO

We have short video guides for both buying and selling by Public Auction on the Hollis Morgan Website. If you have any further questions regarding the process please don’t hesitate to contact Auction HQ.

2021 CHARITY OF THE YEAR

Hollis Morgan are supporting Bristol Charity 1625 Independent People as our 2021 Charity of the year with a % of each Buyers premium being donated.
1625 Independent People (1625ip) is a charity that works with young people who are homeless, leaving care or at risk of homelessness in Bristol and the South West.
Visit the Hollis Morgan Charity page of our Website for further details - www.hollismorgan.co.uk/charity

TESTIMONIALS

We are very proud of what our past clients have say about us - please visit the Hollis Morgan website to read their testimonials.

WHY HOLLIS MORGAN?

Want to sell a property by Live Online Auction?

In 2020 we sold 150 lots by this updated method - we have embraced this change and move forward with our 2021 live online calendar of sales confident we can provide the best service for our clients.

Did you know...In 2020 Hollis Morgan SOLD more lots by auction in Bristol, North Somerset & Gloucester than any other auctioneer!
Did you know...In 2020 Hollis Morgan SOLD more £££’s of BS postcode lots than all the other local auctioneers combined!
Did you know...Since 2010 we have offered more lots in our catalogue ( 2151 ) than any other local firm.
*Source EIG Group 2021

Hollis Morgan hold the largest monthly land & property auctions in the region – book your free, no obligation valuation today!

AUCTION PROPERTY DETAILS DISCLAIMER

Hollis Morgan endeavour to make our sales details clear, accurate and reliable in line with the Consumer Protection from Unfair Trading Regulations 2008 but they should not be relied on as statements or representations of fact and they do not constitute any part of an offer or contract. All Hollis Morgan references to planning, tenants, boundaries, potential development, tenure etc is to be superseded by the information contained in the legal pack. It should not be assumed that this property has all the necessary Planning, Building Regulation or other consents. Any services, appliances and heating system(s) listed have not been checked or tested. Please note that in some instances the photographs may have been taken using a wide angle lens. The seller does not make any representation or give any warranty in relation to the property and we have no authority to do so on behalf of the seller.


Local Information

Schools Stations Healthcare
Floorplan for SCOPE FOR FLAT / HMO - BS3 Floorplan for SCOPE FOR FLAT / HMO - BS3 Floorplan for SCOPE FOR FLAT / HMO - BS3