Lot 15

Parcel of Land Station Road, Nailsea, BS48 4PB

Sold @ Auction £36,000 +++


  • SOLD BY LIVE ONLINE AUCTION
  • WEDNESDAY 21ST APRIL 2021
  • VIDEO TOUR NOW ONLINE
  • VIEWINGS - REFER TO DETAILS
  • DOWNLOAD ONLINE LEGAL PACKS
  • APRIL 2021
  • FREEHOLD PARCEL OF LAND
  • MATURE PLOT
  • HUGE POTENTIAL SUBJECT TO CONSENTS
  • EXTENDED 6 WEEK COMPLETION

COVID UPDATE – LOCKDOWN 3.0

Following Government advice ( 05.01.21 ) the housing market will remain open during the new lockdown in England.
Hollis Morgan are open for viewings and valuations whilst adhering to the latest social distancing and PPE rules.
Please contact the auction team for any questions.

ADDRESS

Parcel of land, Station road, Nailsea, Bristol, BS48 4PB

FOR SALE BY LIVE ONLINE AUCTION

*** SOLD BY LIVE ONLINE AUCTION ***

GUIDE PRICE £32,000 +++
SOLD @ £36,000

Lot Number 15
The Live Online Auction is on Wednesday 21st April @ 18:00
Registration Deadline is on Monday 19th April @ 16:00

The Auction will be streamed LIVE ONLINE via the Hollis Morgan website & you can chose to bid by telephone, proxy or via your computer.
Registration is a simple online process – please visit the Hollis Morgan auction website and click “REGISTER TO BID”

VIEWINGS

The land is open for an external inspection at all times.

EXTENDED COMPLETION

Completion is set for 6 weeks or earlier subject to mutual consent.

SOLICITORS

Rebecca Staunton
Field Seymour Parkes LLP
rebecca.staunton@fsp-law.com

ONLINE LEGAL PACKS

** LEGAL PACK COMPLETE **

Digital Copies of the Online legal pack can be downloaded Free of Charge.
Please visit the Hollis Morgan Website and select the chosen lot from our Current Auction List.
Follow the RED link to "Download Legal Packs" For the first visit you will be required to register simply with your email and a password.
Having set up your account you can download legal packs or if they are not yet available they will automatically be sent to you when we receive them.
You will be automatically updated by email if any new information is added.
There will be a note added to the list to confirm AUCTION PACK NOW COMPLETE when no further information is due to be added.
*** STAY UPDATED *** By registering for the legal pack we can ensure you are kept updated on any changes to this Lot in the build up to the sale.

THE LAND

A Freehold rectangular parcel of land with mature trees and fenced boundary located on Station Road.

LOCATION

Nailsea is a suburban town of North Somerset, approximately 8 miles (13 km) southwest of Bristol. The surrounding North Somerset Levels has wildlife habitats and Bucklands Pool/Backwell Lake is a Local Nature Reserve. The well populated town centre includes two major supermarkets, high street banks, coffee shops, pubs and a leisure centre. Nailsea is close to the M5 motorway (junction 20) and Bristol International Airport at Lulsgate is 7 miles (11 km) away by road. The airport serves both domestic and international routes, and is one of EasyJet's hub airports. Secondary education is provided by Nailsea School (rebuilt as an Academy in 2009), and primary education by St Francis School, Grove School, Kingshill School and Golden Valley. Churches include the 14th-century Holy Trinity Church and Christ Church, which was built in 1843.

THE OPPORTUNITY

DEVELOPMENT POTENTIAL

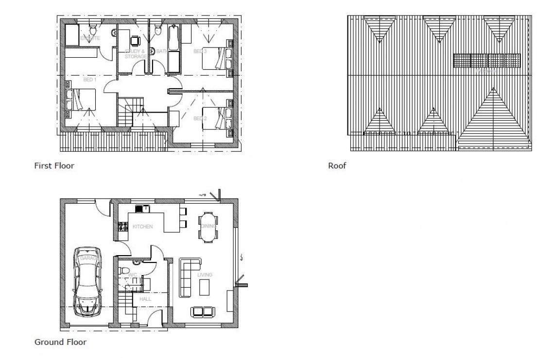
Planning permission for a detached 3 bedroom house has previously been refused but we understand a more sympathetic scheme may have potential.
Subject to consents.

AMENITY LAND

Scope for use as family space /amenity land for allotment or poultry keeping.
Subject to consents.

REFUSED PLANNING

Application Number 16/P/1257/F
Category Full Planning Permission
Application No: 16/P/1257/F
Applicant: Orca Investments limited
Site: Triangle of land off Station Road , (opposite Ash Hayes Road), Nailsea
Description: Erection of a 3no bedroom dwelling with integral garage. Creation of a vehicular access into Station Road

PLANNING INFORMATION

Full details of the proposed scheme and drawings can be downloaded with the online legal pack.

BUYER'S PREMIUM

Please be aware all purchasers are subject to a £1000 + VAT (£1,200 inc VAT) buyer's premium which is ALWAYS payable upon exchange of contracts whether the sale is concluded before, during or after the auction date.

GUIDE PRICE

An indication of the seller's current minimum acceptable price at auction. The guide price or range of guide prices is given to assist consumers in deciding whether or not to pursue a purchase. It is usual, but not always the case, that a provisional reserve range is agreed between the seller and the auctioneer at the start of marketing. As the reserve is not fixed at this stage and can be adjusted by the seller at any time up to the day of the auction in the light of interest shown during the marketing period, a guide price is issued. This guide price can be shown in the form of a minimum and maximum price range within which an acceptable sale price (reserve) would fall, or as a single price figure within 10% of which the minimum acceptable price (reserve) would fall. A guide price is different to a reserve price (see separate definition). Both the guide price and the reserve price can be subject to change up to and including the day of the auction.

RESERVE PRICE

The seller's minimum acceptable price at auction and the figure below which the auctioneer cannot sell. The reserve price is not disclosed and remains confidential between the seller and the auctioneer. Both the guide price and the reserve price can be subject to change up to and including the day of the auction.

PRE AUCTION OFFERS

Some vendors are willing to consider offers prior to the auction.
Pre auction offers can be ONLY be submitted by completing the online PRE AUCTION OFFER FORM
The form can be found on the Hollis Morgan website on the individual auction property listings – look for the big red button .
Please note offers will not be considered until you have inspected the COMPLETE LEGAL PACK once it has been released.
There will be a note added to the list to confirm AUCTION PACK NOW COMPLETE when our clients solicitor informs us no further information is due to be added.
In the event of an offer being accepted the property will only be removed from the online auction and viewings stopped once contracts have successfully EXCHANGED subject to the standard auction terms and payment of the buyer’s premium ( £1000 + VAT ) to Hollis Morgan.
Contracts can be exchanged via the solicitors or at the Hollis Morgan offices by appointment only.

REGISTRATION PROCESS

The registration process is extremely simple – visit the Hollis Morgan auction website and click on the “Register to Bid” button.
The “Register to Bid” button can be found on the auction home page or on the individual lot listings.
Please note this function is not available on Rightmove or Zoopla.

Stage 1 – Complete the Online Bidding Form
Stage 2 – Upload your certified ID
Stage 3 – Invitation to bid
Stage 4 – Pay your security deposit ( £6,200 )

You are now ready to bid – Good luck!

If your bid is successful, the balance of the deposit monies must be transferred to our client account within 24 hours of the auction sale.
If you are unsuccessful at the auction your holding deposit will be returned within 48 hours.

SURVEYS AND VALUATIONS

If you would like to arrange a survey or mortgage valuation of this Lot BEFORE the auction please instruct your appointed surveyor to contact Hollis Morgan and we will arrange access for them to inspect the property. Please note that buyers CANNOT attend the surveys and the surveyors are responsible for collecting and returning keys to the Hollis Morgan offices in Clifton.

AUCTION FINANCE

Some properties may require specialist auction finance- please contact Hollis Morgan for access to expert advice and "whole of market" rates.

AUCTION BUYERS GUIDE VIDEO

We have short video guides for both buying and selling by Public Auction on the Hollis Morgan Website. If you have any further questions regarding the process please don’t hesitate to contact Auction HQ.

2021 CHARITY OF THE YEAR

Hollis Morgan are supporting Bristol Charity 1625 Independent People as our 2021 Charity of the year with a % of each Buyers premium being donated.
1625 Independent People (1625ip) is a charity that works with young people who are homeless, leaving care or at risk of homelessness in Bristol and the South West.
Visit the Hollis Morgan Charity page of our Website for further details - www.hollismorgan.co.uk/charity

TESTIMONIALS

We are very proud of what our past clients have say about us - please visit the Hollis Morgan website to read their testimonials.

WHY HOLLIS MORGAN?

Hollis Morgan hold the largest land & property auctions in the region.

Hollis Morgan sold more £££’s of Land & Property in both 2018 & 2019 than any other auctioneer in the region.
In fact, no auctioneer has sold more than Hollis Morgan since 2010 with over £289m of sales - £95m more than anyone else.
*Source EIG – Sales in BS and GL postcodes by agents based in BS or GL postcodes.

Hollis Morgan was the most successful Auctioneer in Bristol & North Somerset during 2018 – 2019 with an 87 % success rate.
*Source EIG – Sales in BS postcodes 2018 & 2019 by agents based in BS

AUCTION PROPERTY DETAILS DISCLAIMER

Hollis Morgan endeavour to make our sales details clear, accurate and reliable in line with the Consumer Protection from Unfair Trading Regulations 2008 but they should not be relied on as statements or representations of fact and they do not constitute any part of an offer or contract. All Hollis Morgan references to planning, tenants, boundaries, potential development, tenure etc is to be superseded by the information contained in the legal pack. It should not be assumed that this property has all the necessary Planning, Building Regulation or other consents. Any services, appliances and heating system(s) listed have not been checked or tested. Please note that in some instances the photographs may have been taken using a wide angle lens. The seller does not make any representation or give any warranty in relation to the property and we have no authority to do so on behalf of the seller.


Local Information

Schools Stations Healthcare
Floorplan for LAND WITH POTENTIAL - NAILSEA