Lot 9

House + Plot, 23 Birchwood Road, Brislington, BS4 4QL

Sold @ Auction £340,000 +++

Bedrooms 6 Bathrooms 4 Reception 4

  • FOR SALE BY ONLINE AUCTION
  • WEDNESDAY 18TH NOVEMBER 2020
  • VIDEO TOUR NOW ONLINE
  • VIEWINGS - REFER TO DETAILS
  • DOWNLOAD ONLINE LEGAL PACKS
  • NOVEMBER 2020
  • HOUSE + PLOT COMBO
  • EXISTING HOUSE ( SUBSIDENCE )
  • PLOT WITH PLANNING
  • EXTENDED 10 WEEK COMPLETION

ADDRESS

23 Birchwood Road, Brislington, Bristol, BS4 4QL

FOR SALE BY LIVE ONLINE AUCTION

SOLD @ NOVEMBER LIVE ONLINE AUCTION

GUIDE £300,000 +++
SOLD @ £340,000

Lot Number 9
The Live Online Auction is on Wednesday 18th November at 18:00
Registration Deadline is Monday 16th November

The Auction will be streamed LIVE ONLINE and you can BID by telephone, proxy or via your computer with your secure and unique bidding PIN.
Registration is a simple 3 step process – download the online auction buyers guide for further details or visit the Hollis Morgan auction website.
Or simply email bid@hollismorgan.co.uk

VIEWINGS

Viewings can be booked on specific days for this property – please submit a viewing request online and we will contact you to arrange access.
Hollis Morgan would be grateful if you could arrive promptly to inspect the properties at the START of the agreed time as we have scheduled viewings throughout the day and CANNOT wait for late arrivals.
There are likely to be viewings on the property before and after your appointment and if you miss your slot ( usually 15 minutes or longer for larger properties ) you will be asked to wait until the next available time.
Please note government regulation on groups sizes and safe social distancing must be practiced at all times – please bring your own gloves and facemask.
You may be asked to wait outside before it is safe to enter – please understand and respect this request.
If you have shown any symptoms of Covid (19 ) in the last 10 days we would respectfully ask you to not attend the viewing.
The safety of our clients and staff is our number one priority and we thank you for your understanding.
Please note that hard copy of details will not be provided but will have been emailed to you with instructions on how to bid and what happens next before the viewing.

EXTENDED COMPLETION

Completion is set for 10 weeks or earlier subject to mutual consent.

SOLICITORS

Tom Bowering
Wards - Henleaze Office
t: 0117 428 1999
e: tom.bowering@wards.uk.com

ONLINE LEGAL PACKS

Digital Copies of the Online legal pack can be downloaded Free of Charge.
Please visit the Hollis Morgan Website and select the chosen lot from our Current Auction List.
Follow the RED link to "Download Legal Packs" For the first visit you will be required to register simply with your email and a password.
Having set up your account you can download legal packs or if they are not yet available they will automatically be sent to you when we receive them.
You will be automatically updated by email if any new information is added.
There will be a note added to the list to confirm AUCTION PACK NOW COMPLETE when no further information is due to be added.
*** STAY UPDATED *** By registering for the legal pack we can ensure you are kept updated on any changes to this Lot in the build up to the sale.

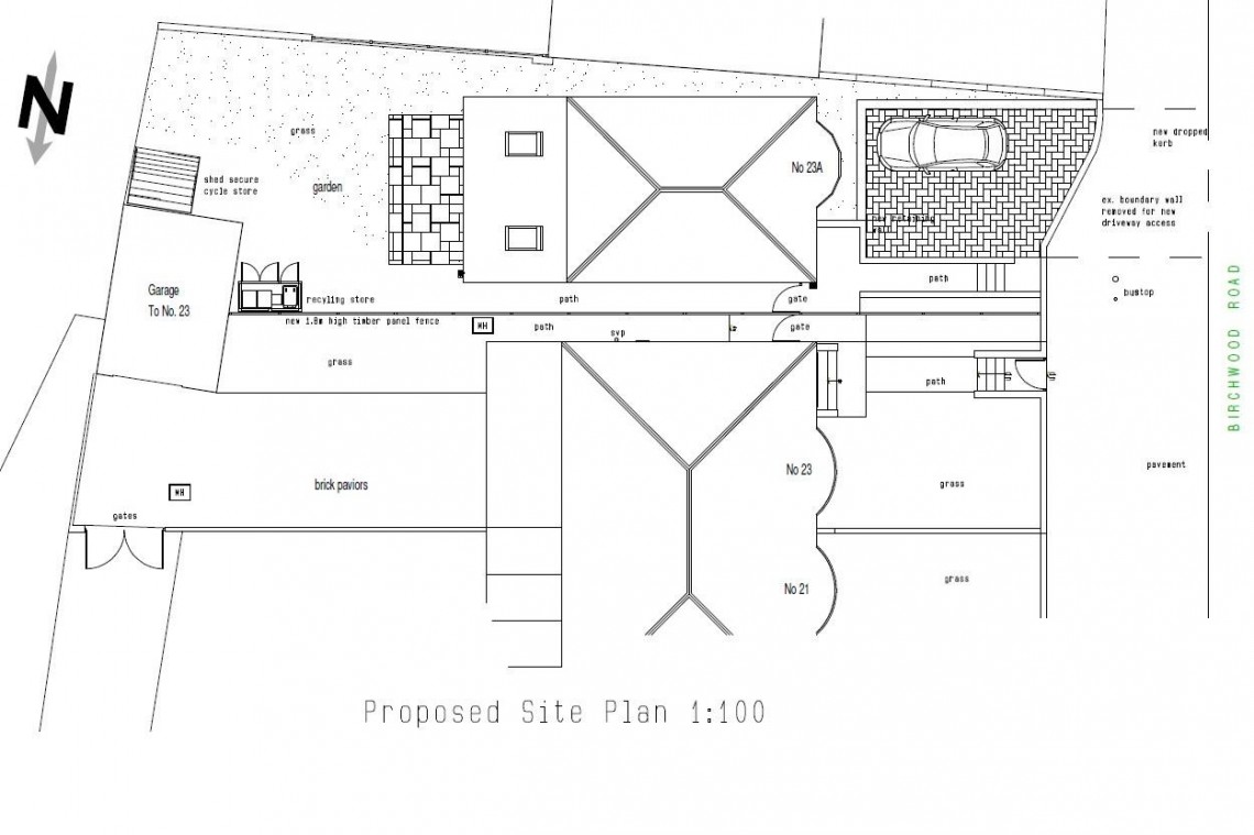
THE PROPERTY

A Freehold semi detached property ( 1397 Sq Ft ) in good decorative order with accommodation arranged over 2 floors and large gardens to side and rear plus rear access.
Sold with vacant possession.

LOCATION

Birchwood Road is situated in the heart of Brislington, with Bath Road providing access to the city through the south-easterly suburbs.. The area is just a short walk from a host of well-regarded schools, shops and amenities of Sandy Park Road, Wells Road, with Paintworks and Avonmeads Retail Park also a short journey. Just a short distance from the house is the Arnos Court Park, which provides a great area for runners and dog-walkers, for those looking for more of an escape from the city, the proximity of the nearby Wells Road allows ease of access to North East Somerset and Chew Valley. For comWick Road is situated in the heart of Brislington, with Bath Road providing access to the city through the south-easterly suburbs.. The area is just a short walk from a host of well-regarded schools, shops and amenities of Sandy Park Road, Wells Road, with Paintworks and Avonmeads Retail Park also a short journey. Just a short distance from the house is the Arnos Court Park, which provides a great area for runners and dog-walkers, for those looking for more of an escape from the city, the proximity of the nearby Wells Road allows ease of access to North East Somerset and Chew Valley. For commuters, this area is very well placed, just a short distance from Bristol City Centre and Bristol Temple Meads Station.muters, this area is very well placed, just a short distance from Bristol City Centre and Bristol Temple Meads Station.

THE OPPORTUNITY

BUILDING PLOT

Planning has been granted to erect a detached 3 bedroom ( 1060 Sq Ft ) on the garden area adjacent to the existing dwelling.

EXISTING HOUSE

The property is in good decorative order but has signs of possible subsidence.
No formal survey has been undertaken and we are informed there is no historic insurance claim but until the issue is rectified it may affect your ability to obtain a mortgage on the property.
Hollis Morgan are unable to provide any further opinion on the matter and buyers must make their own investigations.

PLANNING GRANTED

Reference18/05292/F
Alternative ReferencePP-07333574
Application ReceivedMon 08 Oct 2018
Application ValidatedMon 08 Oct 2018
Address23 Birchwood Road Bristol BS4 4QL
ProposalErection of detached house with parking area on side garden. (Self Build).
StatusDecided
DecisionGRANTED subject to condition(s)
Decision Issued DateWed 13 Feb 2019
Appeal StatusUnknown
Appeal Decision

PLANNING INFORMATION

Full details of the proposed scheme and drawings can be downloaded with the online legal pack.

RENTAL APPRAISAL

What rent can we achieve for you?

The Bristol Residential Letting Co. are confident this property would make a good rental investment. Josh Box of The Bristol Residential Letting Co suggests a rent in the region of;

Existing 3 bedroom house - £1200pcm - £1300pcm

New build 3 bedroom house - £1200pcm - £1300pcm

If you would like to discuss more detail on the potential for rental, you can call me (0117 370 8818) or email (josh@bristolreslet.com) for a no obligation discussion. Alternatively why not drop into my Office (222 North Street, Southville, BS3 1JD) where I am always happy to advise investors on maximising their investment.

EPC

For full details of the EPC please refer to the online legal pack.

BUYER'S PREMIUM

Please be aware all purchasers are subject to a £1000 + VAT (£1,200 inc VAT) buyer's premium which is ALWAYS payable upon exchange of contracts whether the sale is concluded before, during or after the auction date.

GUIDE PRICE

An indication of the seller's current minimum acceptable price at auction. The guide price or range of guide prices is given to assist consumers in deciding whether or not to pursue a purchase. It is usual, but not always the case, that a provisional reserve range is agreed between the seller and the auctioneer at the start of marketing. As the reserve is not fixed at this stage and can be adjusted by the seller at any time up to the day of the auction in the light of interest shown during the marketing period, a guide price is issued. This guide price can be shown in the form of a minimum and maximum price range within which an acceptable sale price (reserve) would fall, or as a single price figure within 10% of which the minimum acceptable price (reserve) would fall. A guide price is different to a reserve price (see separate definition). Both the guide price and the reserve price can be subject to change up to and including the day of the auction.

RESERVE PRICE

The seller's minimum acceptable price at auction and the figure below which the auctioneer cannot sell. The reserve price is not disclosed and remains confidential between the seller and the auctioneer. Both the guide price and the reserve price can be subject to change up to and including the day of the auction.

PRE AUCTION OFFERS

Some properties may be available to buy prior to the auction.
Pre auction offers can be only submitted by completing the OFFER FORM which can be downloaded with the online legal pack - please email the COMPLETED form to – olly@hollismorgan.co.uk
Please note offers will not be considered until you have inspected the COMPLETE LEGAL PACK once it has been released.
There will be a note added to the list to confirm AUCTION PACK NOW COMPLETE when no further information is due to be added.
In the event of an offer being accepted the property will only be removed from the auction the online auction and viewings stopped once contracts have successfully EXCHANGED subject to the standard auction terms and payment of the buyer’s premium ( £1000 + VAT ) to Hollis Morgan.
Contracts will need to be exchanged promptly via the solicitors.

SURVEYS AND VALUATIONS

If you would like to arrange a survey or mortgage valuation of this Lot BEFORE the auction please instruct your appointed surveyor to contact Hollis Morgan and we will arrange access for them to inspect the property. Please note that buyers CANNOT attend the surveys and the surveyors are responsible for collecting and returning keys to the Hollis Morgan offices in Clifton.

TESTIMONIALS

We are very proud of what our past clients have say about us - please visit the Hollis Morgan website to read their testimonials.

CHARITY OF THE YEAR

Hollis Morgan are supporting Bristol Charity All Aboard Watersports as our 2020 Charity of the year with 5% of each Buyers premium being donated.
All Aboard Watersports strive to make it possible for everyone in the local community to join in a range of watersports and water related activities for people with physical, emotional or cognitive disabilities in the historic Bristol City Docks - www.allaboardwatersports.co.uk
In 2019 we were delighted to have raised well £10k for Bristol Zoo by supporting their Bear Wood Project at the Wild Place through events including the Hollis Morgan Opera Picnic and hosting their annual Gala Evening.
Visit the Hollis Morgan Charity page of our Website for further details - www.hollismorgan.co.uk/charity

WHY HOLLIS MORGAN?

Hollis Morgan hold the largest land & property auctions in the region.

Hollis Morgan sold more £££’s of Land & Property in both 2018 & 2019 than any other auctioneer in the region.
In fact, no auctioneer has sold more than Hollis Morgan since 2010 with over £289m of sales - £95m more than anyone else.
*Source EIG – Sales in BS and GL postcodes by agents based in BS or GL postcodes.

Hollis Morgan was the most successful Auctioneer in Bristol & North Somerset during 2018 – 2019 with an 87 % success rate.
*Source EIG – Sales in BS postcodes 2018 & 2019 by agents based in BS

AUCTION PROPERTY DETAILS DISCLAIMER

Hollis Morgan endeavour to make our sales details clear, accurate and reliable in line with the Consumer Protection from Unfair Trading Regulations 2008 but they should not be relied on as statements or representations of fact and they do not constitute any part of an offer or contract. All Hollis Morgan references to planning, tenants, boundaries, potential development, tenure etc is to be superseded by the information contained in the legal pack. It should not be assumed that this property has all the necessary Planning, Building Regulation or other consents. Any services, appliances and heating system(s) listed have not been checked or tested. Please note that in some instances the photographs may have been taken using a wide angle lens. The seller does not make any representation or give any warranty in relation to the property and we have no authority to do so on behalf of the seller.


Local Information

Schools Stations Healthcare
Floorplan for HOUSE + PLOT - BRISLINGTON Floorplan for HOUSE + PLOT - BRISLINGTON