Sold @ Auction £520,000

Land Adjacent to 101, Downend Road, Fishponds, BS16 5BD

Bedrooms 16 Bathrooms 12 Reception 8

  • FOR SALE BY ONLINE AUCTION
  • WEDNESDAY 09TH SEPTEMBER
  • VIDEO TOUR NOW ONLINE
  • VIEWINGS - REFER TO DETAILS
  • DOWNLOAD ONLINE LEGAL PACKS
  • LIVE ONLINE AUCTION
  • FREEHOLD DEVELOPMENT SITE
  • PLANNING GRANTED
  • 4 x DETACHED HOUSES
  • EXTENDED 6 WEEK COMPLETION

ADDRESS

Land Adjacent to 101 Downend Road, Fishponds, BS16 5BD

FOR SALE BY LIVE ONLINE AUCTION

*** SOLD PRIOR TO AUCTION ***

GUIDE £450,000 +++
SOLD @ £520,000

Lot Number 15
The Live Online Auction is on Wednesday 9th September at 18:00

The sale will be streamlined LIVE ONLINE and you can BID by telephone, proxy or via your computer with your unique bidding PIN.
Registration is a simple 3 step process – download the online auction buyers guide for further details
Or simply email bid@hollismorgan.co.uk

VIEWINGS

The site is open for inspection at all times.

EXTENDED COMPLETION

Completion is set for 6 weeks or earlier subject to mutual consent.

SOLICITORS

David Lovelock
Clarke Willmott LLP
t: 0345 209 1745
e: david.lovelock@clarkewillmott.com
f: 0345 209 2551
w: clarkewillmott.com

ONLINE LEGAL PACKS

Digital Copies of the Online legal pack can be downloaded Free of Charge.
Please visit the Hollis Morgan Website and select the chosen lot from our Current Auction List.
Follow the RED link to "Download Legal Packs" For the first visit you will be required to register simply with your email and a password.
Having set up your account you can download legal packs or if they are not yet available they will automatically be sent to you when we receive them.
You will be automatically updated by email if any new information is added.
There will be a note added to the list to confirm AUCTION PACK NOW COMPLETE when no further information is due to be added.
*** STAY UPDATED *** By registering for the legal pack we can ensure you are kept updated on any changes to this Lot in the build up to the sale.

THE PROPERTY

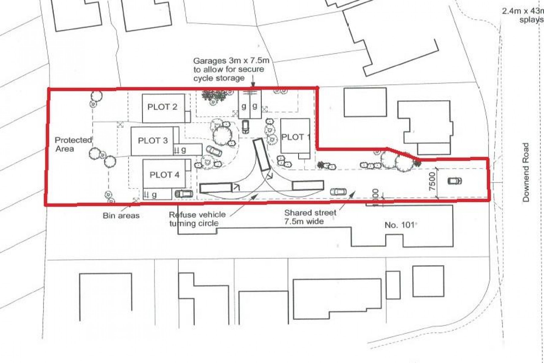
A Freehold level parcel of land circa 0.4 acres with vehicular access from Downend Road.
Sold with vacant possession.

LOCATION

The land is located betwixt the popular suburbs of Staple Hill, Fishponds and Downend all offering excellent facilities including local High Street's array of local amenities & services, including independent retailers, pubs, bars, cafes and restaurants all in close proximity.
Bristol City Centre is approximately six miles away and served by frequent bus services just 20m away, plus an easy access route onto Bristol/Bath cycle-way to rear.

THE OPPORTUNITY

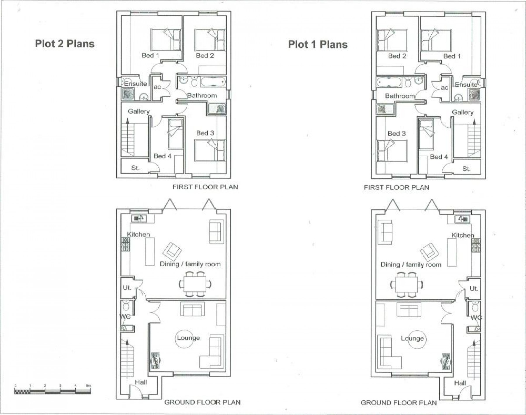
PLANNING GRANTED - 4 DETACHED HOUSES

Outline planning has been granted to erect a scheme of 4 detached houses with gardens, garage and parking.
The proposed scheme has accommodation arranged over two floors providing 4 bedrooms and 2 reception rooms.
We understand the resale value of the completed properties is £425,000 - £450,000
GDV £1.7m - £1.8m

PLANNING GRANTED

Reference - 20/00030/P
Alternative Reference - PP-08402881
Application Received - Mon 06 Jan 2020
Application Validated - Mon 06 Jan 2020
Address - Whitelodge Care Home 101 Downend Road Fishponds Bristol BS16 5BD
Proposal - Application for Outline Planning Permission With Some Matters Reserved - Erection of 4 detached dwellings and access road. Approval sought for access and layout.
Status - Decided
Decision - GRANTED subject to condition(s)
Decision - Issued Date Mon 20 Jul 2020

PLANNING INFORMATION

Full details of the proposed scheme and drawings can be downloaded with the online legal pack.

PRE AUCTION OFFERS

Some properties may be available to buy prior to the auction.
Pre auction offers can be only submitted by completing the OFFER FORM which can be downloaded with the online legal pack - please email the COMPLETED form to – olly@hollismorgan.co.uk
Please note offers will not be considered until you have inspected the COMPLETE LEGAL PACK once it has been released.
There will be a note added to the list to confirm AUCTION PACK NOW COMPLETE when no further information is due to be added.
In the event of an offer being accepted the property will only be removed from the auction the online auction and viewings stopped once contracts have successfully EXCHANGED subject to the standard auction terms and payment of the buyer’s premium ( £1000 + VAT ) to Hollis Morgan.
Contracts will need to be exchanged promptly via the solicitors.

EPC

For full details of the EPC please refer to the online legal pack.

BUYER'S PREMIUM

Please be aware all purchasers are subject to a £1000 + VAT (£1,200 inc VAT) buyer's premium which is ALWAYS payable upon exchange of contracts whether the sale is concluded before, during or after the auction date.

GUIDE PRICE

An indication of the seller's current minimum acceptable price at auction. The guide price or range of guide prices is given to assist consumers in deciding whether or not to pursue a purchase. It is usual, but not always the case, that a provisional reserve range is agreed between the seller and the auctioneer at the start of marketing. As the reserve is not fixed at this stage and can be adjusted by the seller at any time up to the day of the auction in the light of interest shown during the marketing period, a guide price is issued. This guide price can be shown in the form of a minimum and maximum price range within which an acceptable sale price (reserve) would fall, or as a single price figure within 10% of which the minimum acceptable price (reserve) would fall. A guide price is different to a reserve price (see separate definition). Both the guide price and the reserve price can be subject to change up to and including the day of the auction.

RESERVE PRICE

The seller's minimum acceptable price at auction and the figure below which the auctioneer cannot sell. The reserve price is not disclosed and remains confidential between the seller and the auctioneer. Both the guide price and the reserve price can be subject to change up to and including the day of the auction.

SURVEYS AND VALUATIONS

If you would like to arrange a survey or mortgage valuation of this Lot BEFORE the auction please instruct your appointed surveyor to contact Hollis Morgan and we will arrange access for them to inspect the property. Please note that buyers CANNOT attend the surveys and the surveyors are responsible for collecting and returning keys to the Hollis Morgan offices in Clifton.

TESTIMONIALS

We are very proud of what our past clients have say about us - please visit the Hollis Morgan website to read their testimonials.

CHARITY OF THE YEAR

Hollis Morgan are supporting Bristol Charity All Aboard Watersports as our 2020 Charity of the year with 5% of each Buyers premium being donated.
All Aboard Watersports strive to make it possible for everyone in the local community to join in a range of watersports and water related activities for people with physical, emotional or cognitive disabilities in the historic Bristol City Docks - www.allaboardwatersports.co.uk
In 2019 we were delighted to have raised well £10k for Bristol Zoo by supporting their Bear Wood Project at the Wild Place through events including the Hollis Morgan Opera Picnic and hosting their annual Gala Evening.
Visit the Hollis Morgan Charity page of our Website for further details - www.hollismorgan.co.uk/charity

WHY HOLLIS MORGAN?

Hollis Morgan hold the largest land & property auctions in the region.

Hollis Morgan sold more £££’s of Land & Property in both 2018 & 2019 than any other auctioneer in the region.
In fact, no auctioneer has sold more than Hollis Morgan since 2010 with over £289m of sales - £95m more than anyone else.
*Source EIG – Sales in BS and GL postcodes by agents based in BS or GL postcodes.

Hollis Morgan was the most successful Auctioneer in Bristol & North Somerset during 2018 – 2019 with an 87 % success rate.
*Source EIG – Sales in BS postcodes 2018 & 2019 by agents based in BS

AUCTION PROPERTY DETAILS DISCLAIMER

Hollis Morgan endeavour to make our sales details clear, accurate and reliable in line with the Consumer Protection from Unfair Trading Regulations 2008 but they should not be relied on as statements or representations of fact and they do not constitute any part of an offer or contract. All Hollis Morgan references to planning, tenants, boundaries, potential development, tenure etc is to be superseded by the information contained in the legal pack. It should not be assumed that this property has all the necessary Planning, Building Regulation or other consents. Any services, appliances and heating system(s) listed have not been checked or tested. Please note that in some instances the photographs may have been taken using a wide angle lens. The seller does not make any representation or give any warranty in relation to the property and we have no authority to do so on behalf of the seller.


Local Information

Schools Stations Healthcare
Floorplan for PLANNING GRANTED - 4 DETACHED HOUSES Floorplan for PLANNING GRANTED - 4 DETACHED HOUSES