Sold @ Auction £400,000

Garages Adjacent to, 25, Monmouth Street, Victoria Park, BS3 4SJ

Bedrooms 6 Bathrooms 6 Reception 3

  • FOR SALE BY ONLINE AUCTION
  • WEDNESDAY 29TH JULY 2020
  • KEEP UPDATED - REGISTER FOR LEGAL PACK
  • OPEN FOR INSPECTION / VIDEO TOUR
  • DOWNLOAD ONLINE LEGAL PACKS
  • LIVE ONLINE AUCTION
  • FREEHOLD BUILDING PLOT
  • GDV £975K
  • PLANNING GRANTED
  • 3 X 2 BED HOUSES

ADDRESS

Garages Adjacent To 25 Monmouth Street Bristol BS3 4SJ

FOR SALE BY LIVE ONLINE AUCTION

*** SOLD BY LIVE ONLINE AUCTION - RECORD BREAKING JULY AUCTION - OVER £15M SOLD! ***

GUIDE £275,000 +++
SOLD @ £400,000

Lot Number 2
The Live Online Auction is on Wednesday 29th July at 18:00

The sale will be streamlined LIVE ONLINE and you can BID by telephone, proxy or via your computer with your unique bidding PIN.
Registration is a simple 3 step process – download the online auction buyers guide for further details
Or simply email bid@hollismorgan.co.uk

EXTENDED COMPLETION

Completion is set for 6 weeks or earlier subject to mutual consent.

PRE AUCTION OFFERS

On this occasion the vendor has instructed us to NOT consider any pre auction offers.

VIEWINGS

The site is open for external inspection at all times.

SOLICITORS

Heather Jones
Wards Solicitors - Clevedon
t: 01275 850470
e: heather.jones@wards.uk.com

ONLINE LEGAL PACKS

Digital Copies of the Online legal pack can be downloaded Free of Charge.
Please visit the Hollis Morgan Website and select the chosen lot from our Current Auction List.
Follow the RED link to "Download Legal Packs" For the first visit you will be required to register simply with your email and a password.
Having set up your account you can download legal packs or if they are not yet available they will automatically be sent to you when we receive them.
You will be automatically updated by email if any new information is added.
There will be a note added to the list to confirm AUCTION PACK NOW COMPLETE when no further information is due to be added.
*** STAY UPDATED *** By registering for the legal pack we can ensure you are kept updated on any changes to this Lot in the build up to the sale.

THE PROPERTY

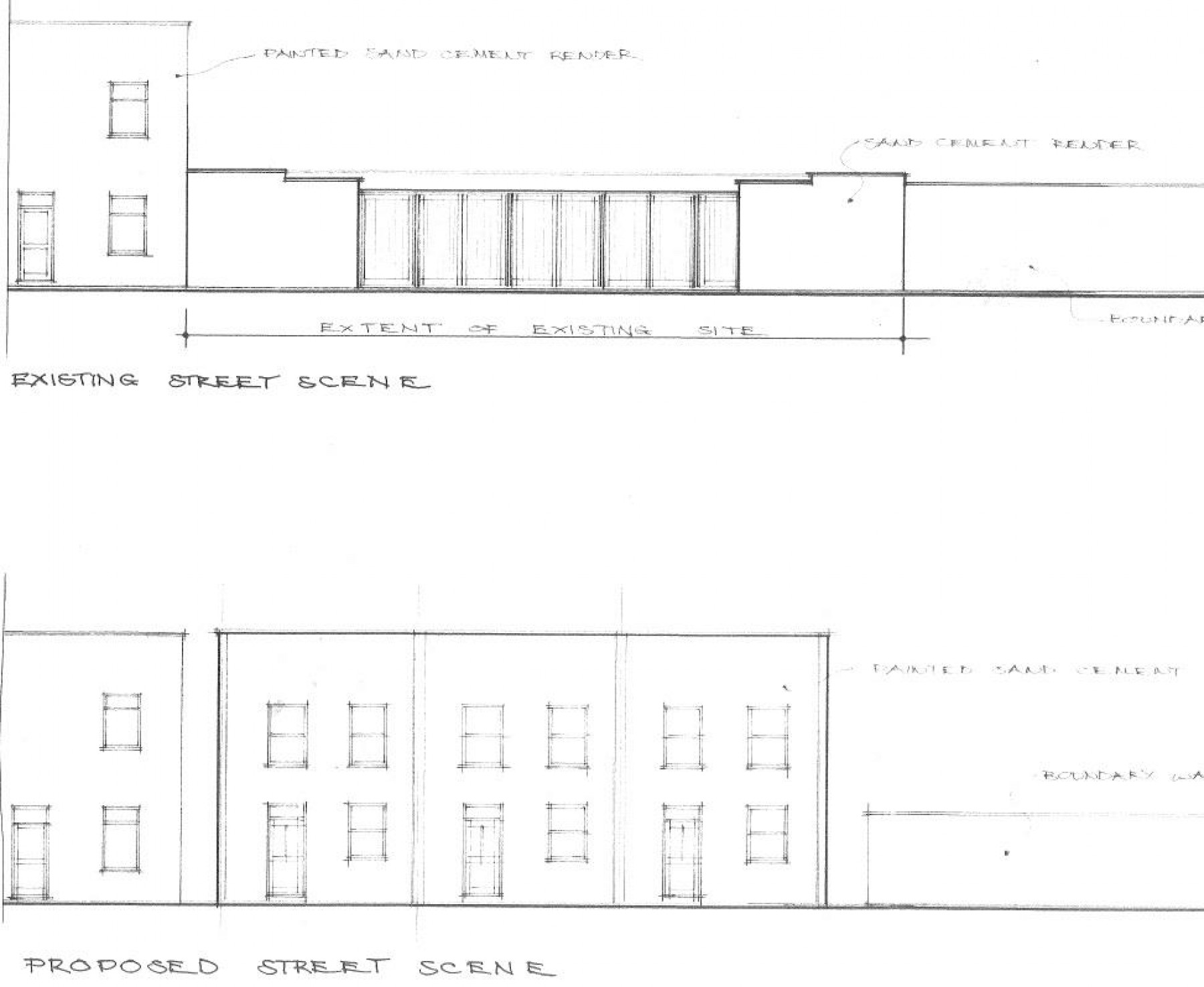
A Freehold site comprising a U shaped rank of garages and forecourt with vehicular access onto Monmouth Street,
Sold with vacant possession.

LOCATION

The land is located within the popular residential area of Victoria Park. Local amenities and services including convenience stores, independent retailers, pubs, bars and restaurants are all within walking distance on both North and West Street. Bristol City Centre is approximately one mile away whilst Temple Meads railways station is within a brisk fifteen minute walk.

THE OPPORTUNITY

DEVELOPMENT SITE - PLANNING GRANTED

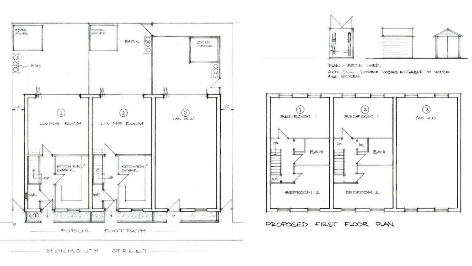
Full planning has been granted to demolish the existing garages and erect a terrace of 3 x 2 bedroom townhouses with rear gardens.

GDV APPRAISAL - HOLLIS MORGAN NEW HOMES

The Hollis Morgan NEW HOMES team have appraised the site to have a GDV in the region of £975K ( £325K X 3 )

Please contact Calum Melhuish for further details - 0117 973 6565
Calum@hollismorgan.co.uk

PROPOSED SCHEDULE

UNIT 1 – END OF TERRACE ( 86.4 Sq M / 930 Sq Ft )
UNIT 2 - MID TERRACE ( 86.4 Sq M / 930 Sq Ft )
UNIT 3 – END OF TERRACE ( 86.4 Sq M / 930 Sq Ft )

GROUND FLOOR - 43.2 m2

Entrance Hall
Kitchen Diner
WC
Living Room with Bi fold opening onto
Rear garden with Bike and Bin Store
Side Access

FIRST FLOOR - 43.2m2

Bedroom 1
Bedroom 2
Bathroom

PLANNING GRANTED

Reference -19/02472/F
Application Received - Wed 22 May 2019
Application Validated - Mon 15 Jul 2019
Address - Garages Adjacent To 25 Monmouth Street Bristol BS3 4SJ
Proposal- 3no. 2 bedroom, 4 occupant terrace houses.
Status - Decided
Decision - GRANTED subject to condition(s)
Decision Issued Date - Wed 20 May 2020

PLANNING INFORMATION

Full details of the proposed scheme and drawings can be downloaded with the online legal pack.

GUIDE PRICE

An indication of the seller's current minimum acceptable price at auction. The guide price or range of guide prices is given to assist consumers in deciding whether or not to pursue a purchase. It is usual, but not always the case, that a provisional reserve range is agreed between the seller and the auctioneer at the start of marketing. As the reserve is not fixed at this stage and can be adjusted by the seller at any time up to the day of the auction in the light of interest shown during the marketing period, a guide price is issued. This guide price can be shown in the form of a minimum and maximum price range within which an acceptable sale price (reserve) would fall, or as a single price figure within 10% of which the minimum acceptable price (reserve) would fall. A guide price is different to a reserve price (see separate definition). Both the guide price and the reserve price can be subject to change up to and including the day of the auction.

RESERVE PRICE

The seller's minimum acceptable price at auction and the figure below which the auctioneer cannot sell. The reserve price is not disclosed and remains confidential between the seller and the auctioneer. Both the guide price and the reserve price can be subject to change up to and including the day of the auction.

BUYER'S PREMIUM

Please be aware all purchasers are subject to a £1000 + VAT (£1,200 inc VAT) buyer's premium which is ALWAYS payable upon exchange of contracts whether the sale is concluded before, during or after the auction date.

AUCTION FINANCE

Some properties may require specialist auction finance- please contact Hollis Morgan for access to expert advice and "whole of market" rates.

VIDEO TOUR

This property is marketed with a video tour – please view via the link above or visit the Hollis Morgan YouTube page.

SURVEYS AND VALUATIONS

If you would like to arrange a survey or mortgage valuation of this Lot BEFORE the auction please instruct your appointed surveyor to contact Hollis Morgan and we will arrange access for them to inspect the property. Please note that buyers CANNOT attend the surveys and the surveyors are responsible for collecting and returning keys to the Hollis Morgan offices in Clifton.

AUCTION BUYERS GUIDE VIDEO

We have short video guides for both buying and selling by Public Auction on the Hollis Morgan Website. If you have any further questions regarding the process please don’t hesitate to contact Auction HQ.

WHY HOLLIS MORGAN?

Hollis Morgan hold the largest land & property auctions in the region.

Hollis Morgan sold more £££’s of Land & Property in both 2018 & 2019 than any other auctioneer in the region.
In fact, no auctioneer has sold more than Hollis Morgan since 2010 with over £289m of sales - £95m more than anyone else.
*Source EIG – Sales in BS and GL postcodes by agents based in BS or GL postcodes.

Hollis Morgan was the most successful Auctioneer in Bristol & North Somerset during 2018 – 2019 with an 87 % success rate.
*Source EIG – Sales in BS postcodes 2018 & 2019 by agents based in BS

CHARITY OF THE YEAR

Hollis Morgan are supporting Bristol Charity All Aboard Watersports as our 2020 Charity of the year with 5% of each Buyers premium being donated.
All Aboard Watersports strive to make it possible for everyone in the local community to join in a range of watersports and water related activities for people with physical, emotional or cognitive disabilities in the historic Bristol City Docks - www.allaboardwatersports.co.uk
In 2019 we were delighted to have raised well £10k for Bristol Zoo by supporting their Bear Wood Project at the Wild Place through events including the Hollis Morgan Opera Picnic and hosting their annual Gala Evening.
Visit the Hollis Morgan Charity page of our Website for further details - www.hollismorgan.co.uk/charity

TESTIMONIALS

We are very proud of what our past clients have say about us - please visit the Hollis Morgan website to read their testimonials.

AUCTION PROPERTY DETAILS DISCLAIMER

Hollis Morgan endeavour to make our sales details clear, accurate and reliable in line with the Consumer Protection from Unfair Trading Regulations 2008 but they should not be relied on as statements or representations of fact and they do not constitute any part of an offer or contract. All Hollis Morgan references to planning, tenants, boundaries, potential development, tenure etc is to be superseded by the information contained in the legal pack. It should not be assumed that this property has all the necessary Planning, Building Regulation or other consents. Any services, appliances and heating system(s) listed have not been checked or tested. Please note that in some instances the photographs may have been taken using a wide angle lens. The seller does not make any representation or give any warranty in relation to the property and we have no authority to do so on behalf of the seller.


Local Information

Schools Stations Healthcare
Floorplan for PLANNING GRANTED - 3 X HOUSES ( GDV £975k )