Sold @ Auction £585,000

Former Macey Rewinds, Franklyn Street, St Pauls, BS2 9LA

Bedrooms 12 Bathrooms 12 Reception 12

  • FOR SALE BY ONLINE AUCTION
  • WEDNESDAY 29TH JULY 2020
  • KEEP UPDATED - REGISTER FOR LEGAL PACK
  • VIEWINGS - REFER TO DETAILS
  • DOWNLOAD ONLINE LEGAL PACKS
  • LIVE ONLINE AUCTION
  • FREEHOLD - DEVELOPMENT SITE
  • PLANNING GRANTED
  • 6 TOWNHOUSES
  • GDV CIRCA £2M

ADDRESS

Former Macey Rewinds, Franklyn Street, St Pauls, BS2 9LA

FOR SALE BY LIVE ONLINE AUCTION

*** SOLD PRIOR TO AUCTION ***

GUIDE PRICE - £550,000 +++
SOLD @ £585,000

Lot Number - 44
The Live Online Auction is on Wednesday 29th July at 18:00

The sale will be streamlined LIVE ONLINE and you can BID by telephone, proxy or via your computer with your unique bidding PIN.
Registration is a simple 3 step process – download the online auction buyers guide for further details
Or simply email bid@hollismorgan.co.uk

PRE AUCTION OFFERS

Some properties may be available to buy prior to the auction.
Pre auction offers can be only submitted by completing the OFFER FORM which can be downloaded with the online legal pack - please email the COMPLETED form to – olly@hollismorgan.co.uk
Please note offers will not be considered until you have inspected the COMPLETE LEGAL PACK once it has been released.
There will be a note added to the list to confirm AUCTION PACK NOW COMPLETE when no further information is due to be added.
In the event of an offer being accepted the property will only be removed from the auction the online auction and viewings stopped once contracts have successfully EXCHANGED subject to the standard auction terms and payment of the buyer’s premium ( £1000 + VAT ) to Hollis Morgan.
Contracts will need to be exchanged promptly via the solicitors.

VIEWINGS

External viewings at all times.

EXTENDED COMPLETION

Completion is set for 8 weeks or earlier subject to mutual consent.

SOLICITORS

Heather Jones
Wards solicitors
01275 850470
heather.jones@wards.uk.com

ONLINE LEGAL PACKS

***LEGAL PACK COMPLETE***

Digital Copies of the Online legal pack can be downloaded Free of Charge.
Please visit the Hollis Morgan Website and select the chosen lot from our Current Auction List.
Follow the RED link to "Download Legal Packs" For the first visit you will be required to register simply with your email and a password.
Having set up your account you can download legal packs or if they are not yet available they will automatically be sent to you when we receive them.
You will be automatically updated by email if any new information is added.
There will be a note added to the list to confirm AUCTION PACK NOW COMPLETE when no further information is due to be added.
*** STAY UPDATED *** By registering for the legal pack we can ensure you are kept updated on any changes to this Lot in the build up to the sale.

THE LAND

A Freehold parcel of land with a derelict building in situ ( Formerly Macey Rewinds ) and an additional parcel of land opposite.
Approx 0.2 Acres
Sold with vacant possession.

LOCATION

The site occupies a quiet corner plot in the heart of St. Pauls close to Ashley Road. Lower Ashley Road is the main road leading from the M32 into the boroughs of St Pauls, St. Werburghs and Montpellier.
The City Centre is within one mile, and the vibrant Gloucester Road, and Stokes Croft with its range of bars and cafes, are in close walking distance.

THE OPPORTUNITY

DEVELOPMENT OPPORTUNITY - PLANNING GRANTED

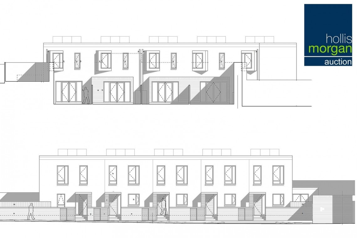
Planning has been granted to demolish the existing property and erect a scheme of 6 stylish townhouses.

GDV APPRAISAL

The Hollis Morgan NEW HOMES team have appraised the site to have a GDV in the region of £2m
A full breakdown of the report can be downloaded with the online legal pack.
Please contact Calum Melhuish for further details - 0117 973 6565
Calum@hollismorgan.co.uk

PROPOSED SCHEDULE UNITS 1 - 6

UNIT 1
Left Hand End of Terrace House
House Type 2
Garden & Bike Store

UNIT 2
Mid Terraced House
House Type 1
Garden

UNIT 3
Mid Terraced House
House Type 1
Garden

UNIT 4
Mid Terraced House
House Type 1
Garden

UNIT 5
Right Hand End of Terrace House
House Type 3
Garden & Bike Store

UNIT 6
End of terrace House ( Separate plot opposite )
House Type 4
Garden & Bike Store

Communal Car Parking
Communal Bike store.

PROPOSED SCHEME

HOUSE TYPE 1 – 957 Sq Ft
( Units 2, 3, 4 )
Ground Floor
Entrance Hall, WC, Kitchen, Open Plan Living Space Leading to Garden
First Floor
Bedroom 1, Bedroom 2, Bathroom

HOUSE TYPE 2 – 904 Sq Ft
( Unit 1 )
Ground Floor
Entrance Hall, WC, , Open Plan Kitchen / Dining / Living Space Leading to Garden
First Floor
Bedroom 1, Bedroom 2, Bathroom

HOUSE TYPE 3 – 968 Sq Ft
( Unit 5 )
Ground Floor
Entrance Hall, WC, , Open Plan Kitchen / Dining / Living Space Leading to Garden
First Floor
Bedroom 1, Bedroom 2, Bathroom

HOUSE TYPE 4 – 839 Sq Ft
( Unit 6 )
Ground Floor
Entrance Hall, WC, , Open Plan Kitchen / Dining / Living Space Leading to Garden
First Floor
Bedroom 1, Bedroom 2, Bathroom

PLANNING GRANTED

Reference19/05096/F
Alternative ReferencePP-08033404
Application ReceivedFri 18 Oct 2019
Application ValidatedFri 18 Oct 2019
AddressFormer Macey Rewinds And Land On North Side Of Franklyn Street Bristol
ProposalDemolition of existing buildings and development of 6no. dwellings (Use Class C3) with associated car parking, amenity space and off-site highway works.
StatusDecided
DecisionGRANTED subject to condition(s)
Decision Issued DateFri 20 Dec 2019
Appeal StatusUnknown

PLANNING INFORMATION

Full details of the proposed scheme and drawings can be downloaded with the online legal pack.

RENTAL APPRAISAL

The Bristol Residential Letting Co. are confident this property would make a good rental investment.
Josh Box of The Bristol Residential Letting Co suggests a rent in the region of;

6 x 2 bedroom houses - £1100pcm - £1200pcm

If you would like to discuss more detail on the potential for rental, you can call me (0117 370 8818) or email (josh@bristolreslet.com) for a no obligation discussion.

BUYER'S PREMIUM

Please be aware all purchasers are subject to a £1000 + VAT (£1,200 inc VAT) buyer's premium which is ALWAYS payable upon exchange of contracts whether the sale is concluded before, during or after the auction date.

GUIDE PRICE

An indication of the seller's current minimum acceptable price at auction. The guide price or range of guide prices is given to assist consumers in deciding whether or not to pursue a purchase. It is usual, but not always the case, that a provisional reserve range is agreed between the seller and the auctioneer at the start of marketing. As the reserve is not fixed at this stage and can be adjusted by the seller at any time up to the day of the auction in the light of interest shown during the marketing period, a guide price is issued. This guide price can be shown in the form of a minimum and maximum price range within which an acceptable sale price (reserve) would fall, or as a single price figure within 10% of which the minimum acceptable price (reserve) would fall. A guide price is different to a reserve price (see separate definition). Both the guide price and the reserve price can be subject to change up to and including the day of the auction.

RESERVE PRICE

The seller's minimum acceptable price at auction and the figure below which the auctioneer cannot sell. The reserve price is not disclosed and remains confidential between the seller and the auctioneer. Both the guide price and the reserve price can be subject to change up to and including the day of the auction.

SURVEYS AND VALUATIONS

If you would like to arrange a survey or mortgage valuation of this Lot BEFORE the auction please instruct your appointed surveyor to contact Hollis Morgan and we will arrange access for them to inspect the property. Please note that buyers CANNOT attend the surveys and the surveyors are responsible for collecting and returning keys to the Hollis Morgan offices in Clifton.

WHY HOLLIS MORGAN?

Hollis Morgan hold the largest land & property auctions in the region.
Hollis Morgan sold more £££’s of Land & Property in both 2018 & 2019 than any other auctioneer in the region.
In fact, no auctioneer has sold more than Hollis Morgan since 2010 with over £289m of sales - £95m more than anyone else.
Hollis Morgan was the most successful Auctioneer in Bristol & North Somerset during 2018 – 2019 with an 87 % success rate.
*Source EIG – Sales in BS and GL postcodes by agents based in BS or GL postcodes.
*Source EIG – Sales in BS postcodes 2018 & 2019 by agents based in BS

TESTIMONIALS

We are very proud of what our past clients have say about us - please visit the Hollis Morgan website to read their testimonials.

CHARITY OF THE YEAR

Hollis Morgan are supporting Bristol Charity All Aboard Watersports as our 2020 Charity of the year with 5% of each Buyers premium being donated.
All Aboard Watersports strive to make it possible for everyone in the local community to join in a range of watersports and water related activities for people with physical, emotional or cognitive disabilities in the historic Bristol City Docks - www.allaboardwatersports.co.uk
In 2019 we were delighted to have raised well £10k for Bristol Zoo by supporting their Bear Wood Project at the Wild Place through events including the Hollis Morgan Opera Picnic and hosting their annual Gala Evening.
Visit the Hollis Morgan Charity page of our Website for further details - www.hollismorgan.co.uk/charity


Local Information

Schools Stations Healthcare
Floorplan for PLANNING GRANTED - 6 TOWNHOUSES Floorplan for PLANNING GRANTED - 6 TOWNHOUSES