Lot 30

Cider Barn, Secret World New Road, East Huntspill, TA9 3PZ

Sold @ Auction £250,000 +++

Bedrooms 4 Bathrooms 3 Reception 2

  • FOR SALE BY ONLINE AUCTION
  • WEDNESDAY 29TH JULY 2020
  • KEEP UPDATED - REGISTER FOR LEGAL PACK
  • VIDEO TOUR ONLINE
  • DOWNLOAD ONLINE LEGAL PACKS
  • JULY 2020
  • FREEHOLD BARN & GARDENS
  • PLANNING GRANTED
  • STUNNING FAMILY HOME
  • EXTENDED 8 WEEK COMPLETION

ADDRESS

Cider Barn, Secret World, New Road Farm, New Road, East Huntspill, Highbridge, Somerset, TA9 3PZ

FOR SALE BY LIVE ONLINE AUCTION

*** SOLD BY LIVE ONLINE AUCTION - RECORD BREAKING JULY AUCTION - OVER £15M SOLD! ***

GUIDE £200,000 +++
SOLD @ £250,000

Lot Number 30
The Live Online Auction is on Wednesday 29th July at 18:00

The sale will be streamlined LIVE ONLINE and you can BID by telephone, proxy or via your computer with your unique bidding PIN.
Registration is a simple 3 step process – download the online auction buyers guide for further details
Or simply email bid@hollismorgan.co.uk

EXTENDED COMPLETION

Completion is set for 8 weeks or earlier subject to mutual consent.

VIEWINGS

*** STRICTLY BY APPOINTMENT ONLY ***
Viewings can be booked on specific days for this property – please submit a viewing request online and we will contact you to arrange access.
Hollis Morgan would be grateful if you could arrive promptly to inspect the properties at the START of the agreed time as we have scheduled viewings throughout the day and CANNOT wait for late arrivals.
There are likely to be viewings on the property before and after your appointment and if you miss your slot ( usually 15 minutes or longer for larger properties ) you will be asked to wait until the next available time.
Please note government regulation on groups sizes and safe social distancing must be practiced at all times – please bring your own gloves and facemask.
You may be asked to wait outside before it is safe to enter – please understand and respect this request.
If you have shown any symptoms of Covid (19 ) in the last 10 days we would respectfully ask you to not attend the viewing.
The safety of our clients and staff is our number one priority and we thank you for your understanding.
Please note that hard copy of details will not be provided but will have been emailed to you with instructions on how to bid and what happens next before the viewing.

SOLICITORS

Stewart Barrat
Acorn Solicitors
Stewart.Barratt@acornsolicitors.co.uk
01823 273010
Acorn House, 50 Upper High Street, Taunton, TA1 3P

ONLINE LEGAL PACKS

** LEGAL PACK COMPLETE**

Digital Copies of the Online legal pack can be downloaded Free of Charge.
Please visit the Hollis Morgan Website and select the chosen lot from our Current Auction List.
Follow the RED link to "Download Legal Packs" For the first visit you will be required to register simply with your email and a password.
Having set up your account you can download legal packs or if they are not yet available they will automatically be sent to you when we receive them.
You will be automatically updated by email if any new information is added.
There will be a note added to the list to confirm AUCTION PACK NOW COMPLETE when no further information is due to be added.
*** STAY UPDATED *** By registering for the legal pack we can ensure you are kept updated on any changes to this Lot in the build up to the sale.

THE PROPERTY

A Freehold former Cider Barn ( 3928 Sq Ft ) with accommodation arranged over two floors with gardens to side and rear.
Sold with vacant possession.

LOCATION

The village of East Huntspill has a church, school, cricket ground, public house, village hall and bus service. It is also well placed for junctions 22 and 23 of the M5 (approx. 2.5 miles) providing excellent access to Bristol, Taunton, Exeter and the M4 corridor and is also ideally situated for commuting to Bridgwater, Weston-super-Mare, Wells, Glastonbury and Street. There is also a mainline railway link at Highbridge (approx. 2.5 miles).

The larger town of Burnham-on-Sea (approx. 3.5 miles) is a popular seaside resort offering a wealth of activities to suit every taste. The town offers excellent facilities with shops, banks, building societies, library, theatre, medical centre and cottage hospital. There are a wealth of leisure facilities including the indoor heated swimming pool, Burnham and Berrow Championship Golf Links and a Sports Centre at King Alfred School. There are also tennis, bowls and cricket clubs along with numerous other societies and associations.

THE OPPORTUNITY

PLANNING GRANTED - FAMILY HOME

Full planning & Listed Building Consent has been granted to convert the existing barn into a stunning family home with gardens, garage and parking.

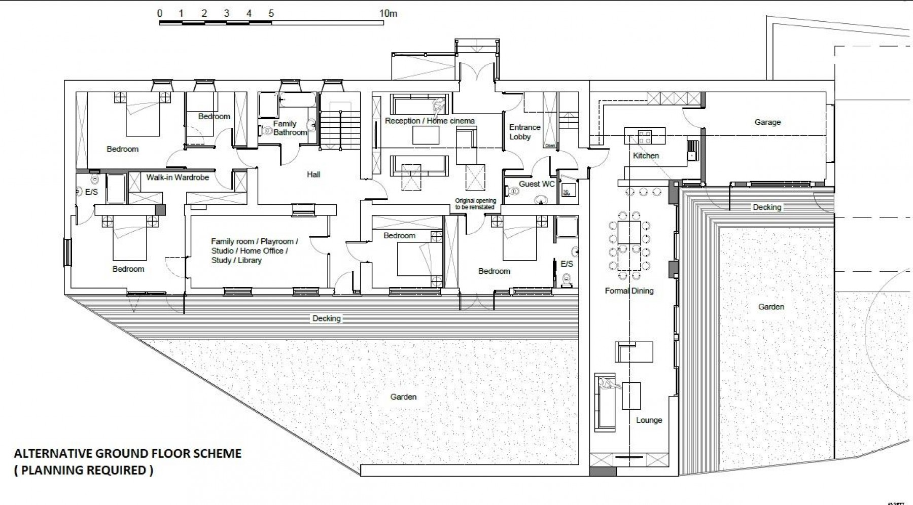
SCOPE TO TWEAK PROPOSED PLAN

The current granted scheme is based around converting the property into 2 units with the main home in the original barn and an annexe to the side.
We would suggest a scheme incorporating the entire building for the family home and moving the kitchen / Diner to the annexe area overlooking the courtyard has merit.
Please refer to updated proposed floor plans.
Subject to gaining the necessary consents.

PLANNING GRANTED

Application Number: 25/20/00004
Parish/Town Council: East Huntspill
Registered Date: 04/02/2020
Type: Full Planning Permission
Applicant: Secret World Wildlife Rescue
Location: New Road Farm, New Road, East Huntspill, Highbridge, Somerset, TA9 3PZ
Proposal: Change of use and conversion of barns to a dwelling and annexe and creation of access.
Decision Date: 22/04/2020
Decision: Granted Permission

SECRET WORLD WILDLIFE RESCUE - CIDER BARNS HISTORY

The farm was bought by the Kidner family two generations ago and the barns were then used to make cider; there was a large apple press and huge barrels each holding 100 gallons of cider. Cider was a way of paying the men needed to bring in the hay during the summer. The lower floor of the Cider Barn, currently used as the charity’s reception and gift shop, was where the carts were stored with stables attached for the working horses. The top floor of the Cider Barn was where the hay and straw were stored. A large chaff cutter was located on the top floor and was powered by belts and wheels that would have been turned by a steam engine, parts of which still remain in the back part of the Cider Barn.
The Old Pig House, which was at the back of the property but has since been removed, filled the footprint of dark grey bricks seen outside by the granite wall. The granite was thought to have been sourced from a consignment on a train that may have overturned locally and lost its load as there is no other source for this to be found in this area.
Pauline Kidner, the Founder of Secret World Wildlife Rescue, and her husband Derek bought the farm from Derek’s father in 1977. However, following the introduction of milk quotas in 1984, they were no longer able to make a living from diary so decided to diversify and make the farm a tourist attraction. In the early 1990’s the Somerset Level’s Visitor Centre was created at the farm with the support of Somerset County Council, Sedgemoor District Council, Countryside Commission and English Nature. The Levels Visitor Centre incorporated two floors of the Cider Barn with an upstairs window overlooking a working blacksmiths, which is where the reception and the shop are now sited, and the top floor became a classroom/cinema room with displays of old machinery, etc.
By then, Pauline had become a renowned wildlife carer and author and as the numbers of animal casualties increased a charity, Secret World Wildlife Rescue, was formed to help finance this work. As the charity’s work grew, it needed more and more space and eventually the Somerset Level’s Visitor Centre moved out and the Cider Barns became the charity’s reception building, casualty pens and storage areas.
Several years later, the charity purchased some of the adjacent orchard and farmland and has slowly been moving out of the Cider Barns and neighbouring barns onto this land. Secret World Wildlife Rescue’s priority is to have a purpose-built wildlife treatment centre, but in order to help finance this building, is having to sell the Cider Barns. The charity is sad to see the iconic entrance to the charity leave their ownership but hope that new purchasers will also cherish this historic building.

NEIGHBOURING PROPERTIES

As mentioned above, the Cider Barns were part of the original farm buildings. The main farmhouse, which is still occupied by Pauline and Derek Kidner, is Grade II listed and thus the Cider Barns also fall within this curtilage. Access to the farmhouse, parking, etc is to the south east of the Cider Barns, via the small lane that runs between the Cider Barn’s garden and the neighbour’s property, Long East Barn (see below).
In the early 2000s the Kidner family sold off another of their barns which was subsequently converted into a beautiful residential property (Long East Barn). This is sited on New Road, and is the immediate neighbouring property to the east of the Cider Barns.
In recent months the Kidners obtained planning permission to convert two other small barns in the original farmhouse courtyard into residential accommodation. Work is already underway to convert one of these barns (Barn A on attached map) into a one bedroomed home which will be occupied by Pauline and Derek’s son Simon. Work on Barn B is due to take place later in the year. Both these barns will share the courtyard to the south of the Cider Barns.
The large barn (the ‘hay barn’) to the south east of the Cider Barns is still owned by the Kidner family but is used by the charity for storage of office furniture, books, etc.

LISTED BUILDING CONSENT

Parish/Town Council: East Huntspill
Registered Date: 04/02/2020
Type: Listed Building Consent - alterations
Applicant: Secret World Wildlife Rescue
Location: New Road Farm, New Road, East Huntspill, Highbridge, Somerset, TA9 3PZ
Proposal: Change of use and conversion of barns to a dwelling and annexe and creation of access.
Decision Date: 22/04/2020
Decision: Granted Permission

PLANNING INFORMATION

Full details of the proposed scheme and drawings can be downloaded with the online legal pack.

GUIDE PRICE

An indication of the seller's current minimum acceptable price at auction. The guide price or range of guide prices is given to assist consumers in deciding whether or not to pursue a purchase. It is usual, but not always the case, that a provisional reserve range is agreed between the seller and the auctioneer at the start of marketing. As the reserve is not fixed at this stage and can be adjusted by the seller at any time up to the day of the auction in the light of interest shown during the marketing period, a guide price is issued. This guide price can be shown in the form of a minimum and maximum price range within which an acceptable sale price (reserve) would fall, or as a single price figure within 10% of which the minimum acceptable price (reserve) would fall. A guide price is different to a reserve price (see separate definition). Both the guide price and the reserve price can be subject to change up to and including the day of the auction.

RESERVE PRICE

The seller's minimum acceptable price at auction and the figure below which the auctioneer cannot sell. The reserve price is not disclosed and remains confidential between the seller and the auctioneer. Both the guide price and the reserve price can be subject to change up to and including the day of the auction.

EPC

For full details of the EPC please refer to the online legal pack.

BUYER'S PREMIUM

Please be aware all purchasers are subject to a £1000 + VAT (£1,200 inc VAT) buyer's premium which is ALWAYS payable upon exchange of contracts whether the sale is concluded before, during or after the auction date.

*** ON THIS OCCASION THE BUYERS PREMIUM WILL BE DONATED TO THE SECRET WORLD WILDLIFE RESCUE ***

PRE AUCTION OFFERS

Some properties may be available to buy prior to the auction.
Pre auction offers can be only submitted by completing the OFFER FORM which can be downloaded with the online legal pack - please email the COMPLETED form to – olly@hollismorgan.co.uk
Please note offers will not be considered until you have inspected the COMPLETE LEGAL PACK once it has been released.
There will be a note added to the list to confirm AUCTION PACK NOW COMPLETE when no further information is due to be added.
In the event of an offer being accepted the property will only be removed from the auction the online auction and viewings stopped once contracts have successfully EXCHANGED subject to the standard auction terms and payment of the buyer’s premium ( £1000 + VAT ) to Hollis Morgan.
Contracts will need to be exchanged promptly via the solicitors.

AUCTION FINANCE

Some properties may require specialist auction finance- please contact Hollis Morgan for access to expert advice and "whole of market" rates.

AUCTION BUYERS GUIDE VIDEO

We have short video guides for both buying and selling by Public Auction on the Hollis Morgan Website. If you have any further questions regarding the process please don’t hesitate to contact Auction HQ.

TESTIMONIALS

We are very proud of what our past clients have say about us - please visit the Hollis Morgan website to read their testimonials.

CHARITY OF THE YEAR

Hollis Morgan are supporting Bristol Charity All Aboard Watersports as our 2020 Charity of the year with 5% of each Buyers premium being donated.
All Aboard Watersports strive to make it possible for everyone in the local community to join in a range of watersports and water related activities for people with physical, emotional or cognitive disabilities in the historic Bristol City Docks - www.allaboardwatersports.co.uk
In 2019 we were delighted to have raised well £10k for Bristol Zoo by supporting their Bear Wood Project at the Wild Place through events including the Hollis Morgan Opera Picnic and hosting their annual Gala Evening.
Visit the Hollis Morgan Charity page of our Website for further details - www.hollismorgan.co.uk/charity

WHY HOLLIS MORGAN?

Hollis Morgan hold the largest land & property auctions in the region.

Hollis Morgan sold more £££’s of Land & Property in both 2018 & 2019 than any other auctioneer in the region.
In fact, no auctioneer has sold more than Hollis Morgan since 2010 with over £289m of sales - £95m more than anyone else.
*Source EIG – Sales in BS and GL postcodes by agents based in BS or GL postcodes.

Hollis Morgan was the most successful Auctioneer in Bristol & North Somerset during 2018 – 2019 with an 87 % success rate.
*Source EIG – Sales in BS postcodes 2018 & 2019 by agents based in BS

AUCTION PROPERTY DETAILS DISCLAIMER

Hollis Morgan endeavour to make our sales details clear, accurate and reliable in line with the Consumer Protection from Unfair Trading Regulations 2008 but they should not be relied on as statements or representations of fact and they do not constitute any part of an offer or contract. All Hollis Morgan references to planning, tenants, boundaries, potential development, tenure etc is to be superseded by the information contained in the legal pack. It should not be assumed that this property has all the necessary Planning, Building Regulation or other consents. Any services, appliances and heating system(s) listed have not been checked or tested. Please note that in some instances the photographs may have been taken using a wide angle lens. The seller does not make any representation or give any warranty in relation to the property and we have no authority to do so on behalf of the seller.


Local Information

Schools Stations Healthcare
Floorplan for BARN WITH PLANNING - FAMILY HOME Floorplan for BARN WITH PLANNING - FAMILY HOME Floorplan for BARN WITH PLANNING - FAMILY HOME Floorplan for BARN WITH PLANNING - FAMILY HOME