Lot 11

House + Plot, 52 Marmion Crescent, Henbury, BS10 7PA

Sold @ Auction £285,000 +++

Bedrooms 6 Bathrooms 2 Reception 2

  • FOR SALE BY PUBLIC AUCTION
  • TUESDAY 25TH FEBRUARY 2020
  • ALL SAINTS CHURCH, CLIFTON, BS8 2HY
  • WEEKLY SET VIEWINGS
  • DOWNLOAD ONLINE LEGAL PACKS
  • FEBRUARY 2020
  • HOUSE FOR UPDATING
  • PLANNING GRANTED
  • EXTRA 3 BED NEW BUILD HOUSE
  • LARGE CORNER PLOT

ADDRESS

House + Plot, 52, Marmion Crescent, Henbury, BS10 7PA

FOR SALE BY AUCTION

*** SOLD @ HOLLIS MORGAN NOVEMBER AUCTION ***

GUIDE £275,000 +++
SOLD @ £285,000

LOT NUMBER 11
Tuesday 25th February 2020
All Saints Church Pembroke Road, Clifton, Bristol BS8 2HY
Legal Pack Room and Registration will be open from 18:15
The sale will begin promptly at 19:00

WEEKLY SET VIEWING

VIEWINGS STRICTLY BY APPOINTMENT - 0117 9736565

FURTHER VIEWING TIMES TO BE RELEASED SHORTLY - PLEASE REGISTER FOR ONLINE LEGAL PACK TO BE KEPT UPDATED.
The property is OPEN FOR 30 MINUTES but please leave a minimum of 15 minutes to inspect the property.
Hollis Morgan would be grateful if you could arrive promptly to inspect the properties at the START of the specified times as we have scheduled viewings throughout the day and CANNOT wait for late arrivals. You do not need to book an appointment as it is a set viewing – simply arrive at the stated time and a member of the Hollis Morgan Auction team will take your details and show you the property.
Please note there are no viewings on BANK HOLIDAYS or on the DAY OF THE AUCTION

*** VIEWINGS SUBJECT TO CHANGE - PLEASE CHECK WEBSITE ON THE DAY TO CONFIRM ***

SOLICITORS

Jonathan Beck
Carbon Law
0117 332 8333
jonathan.beck@carbonlawpartners.com

ONLINE LEGAL PACKS

***LEGAL PACK NOW COMPLETE***

Digital Copies of the Online legal pack can be downloaded Free of Charge.
Please visit the Hollis Morgan Website and select the chosen lot from our Current Auction List.
Follow the RED link to "Download Legal Packs" For the first visit you will be required to register simply with your email and a password.
Having set up your account you can download legal packs or if they are not yet available they will automatically be sent to you when we receive them.
You will be automatically updated by email if any new information is added.
There will be a note added to the list to confirm AUCTION PACK NOW COMPLETE when no further information is due to be added.
*** STAY UPDATED *** By registering for the legal pack we can ensure you are kept updated on any changes to this Lot in the build up to the sale.

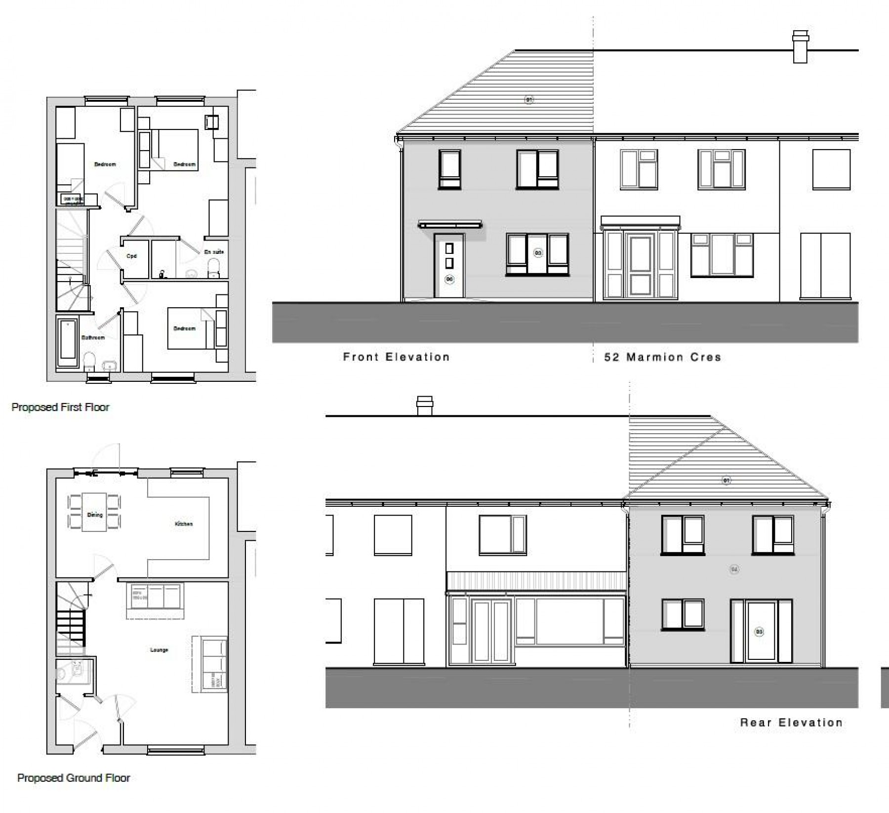
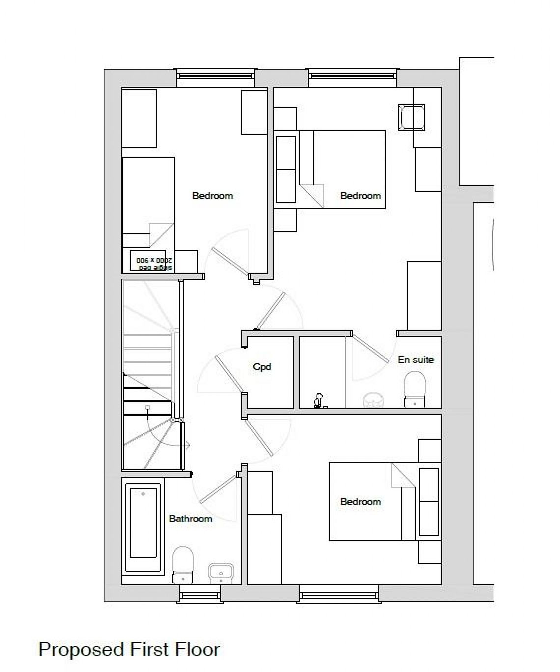
THE PROPERTY

A Freehold property occupying a larger than average corner plot with spacious accommodation arranged over 2 floors with various outbuildings.
Sold with vacant possession.

LOCATION

Marmion Crescent is located within the popular suburb of Henbury. Station road is nearby and offers a variety of local amenities and services including convenience stores and independent retailers. Bristol City Centre is approximately six miles away.

THE OPPORTUNITY

HOUSE FOR UPDATING

A semi ( soon to be mid terraced ) 3 bedroom home in need of basic updating with scope for extension to the rear with enclosed garden and parking

PLOT WITH PLANNING

Planning has been granted to erect a new build 3 bedroom semi detached property adjacent to the host building.

ALTERNATIVE SCHEME

Buyers may wish to investigate the planning potential of swapping the semi detached unit for a detached unit in order to increase the GDV.
Subject to consents.

PLANNING GRANTED

Reference 19/05498/F
Alternative Reference PP-08291519
Application Received Wed 13 Nov 2019
Application Validated Wed 20 Nov 2019
Address 52 Marmion Crescent Bristol BS10 7PA
Proposal Erection of end of terrace 3 bedroom, 5 occupant dwelling adjoining existing house with new vehicular access and parking.
Status Decided
Decision GRANTED subject to condition(s)
Decision Issued Date Wed 15 Jan 2020
Appeal Status Unknown

RENTAL APPRAISAL

What rent can we achieve for you?

The Bristol Residential Letting Co. are confident this property would make a good rental investment. Josh Box of The Bristol Residential Letting Co suggests a rent in the region of;

3 bedroom house - £1100pcm - £1200pcm

If you would like to discuss more detail on the potential for rental, you can call me (0117 370 8818) or email (josh@bristolreslet.com) for a no obligation discussion. Alternatively why not drop into my Office (222 North Street, Southville, BS3 1JD) where I am always happy to advise investors on maximising their investment.

I will look forward to hearing from you and helping you with your investment.

EPC

For full details of the EPC please refer to the online legal pack.

BUYER'S PREMIUM

Please be aware all purchasers are subject to a £1000 + VAT (£1,200 inc VAT) buyer's premium which is ALWAYS payable upon exchange of contracts whether the sale is concluded before, during or after the auction date.

GUIDE PRICE

An indication of the seller's current minimum acceptable price at auction. The guide price or range of guide prices is given to assist consumers in deciding whether or not to pursue a purchase. It is usual, but not always the case, that a provisional reserve range is agreed between the seller and the auctioneer at the start of marketing. As the reserve is not fixed at this stage and can be adjusted by the seller at any time up to the day of the auction in the light of interest shown during the marketing period, a guide price is issued. This guide price can be shown in the form of a minimum and maximum price range within which an acceptable sale price (reserve) would fall, or as a single price figure within 10% of which the minimum acceptable price (reserve) would fall. A guide price is different to a reserve price (see separate definition). Both the guide price and the reserve price can be subject to change up to and including the day of the auction.

RESERVE PRICE

The seller's minimum acceptable price at auction and the figure below which the auctioneer cannot sell. The reserve price is not disclosed and remains confidential between the seller and the auctioneer. Both the guide price and the reserve price can be subject to change up to and including the day of the auction.

PRE AUCTION OFFERS

Some properties may be available to buy prior to the auction.
Pre auction offers can only be submitted by completing the OFFER FORM which can be downloaded with the online legal pack - please email the COMPLETED form to – olly@hollismorgan.co.uk.
Please note offers will not be considered until you have VIEWED the property and the COMPLETE LEGAL PACK has been released.
You will be emailed a note to confirm the AUCTION PACK NOW COMPLETE and then offers can be submitted.
In the event of an offer being accepted the property will only be removed from the auction and viewings stopped once contracts have successfully EXCHANGED subject to the standard auction terms and payment of the buyer’s premium ( £1,200 ) to Hollis Morgan. Contracts can be signed either via the solicitors or at the Hollis Morgan offices subject to appointment.

SURVEYS AND VALUATIONS

If you would like to arrange a survey or mortgage valuation of this Lot BEFORE the auction please instruct your appointed surveyor to contact Hollis Morgan and we will arrange access for them to inspect the property. Please note that buyers CANNOT attend the surveys and the surveyors are responsible for collecting and returning keys to the Hollis Morgan offices in Clifton.

BIDDING AT THE AUCTION

This property is for sale by public auction and if you intend to bid please bring the following:

Proof of identity (valid passport or photo driving licence).
Proof of address (bank statement, recent utility bill, council tax bill or tenancy agreement).
10% deposit payment.
Buyers premium payment.
Details of your solicitor.

You will need to register to bid – registration will be open from 18:15
Forms can be downloaded and completed beforehand ( found in the legal pack ) or collected at the auction venue.

PAYING THE DEPOSIT & BUYERS PREMIUM

We can only accept the following at the auction:

Personal or Company Cheque
Bankers Draft
Debit Card ( NOT CREDIT CARD )

TELEPHONE AND PROXY BIDDING

If you cannot attend the auction (although we strongly advise you do) you can make a TELEPHONE or PROXY BID. This authorises the auctioneer to bid on your behalf up to a pre-set limit. Forms and relevant conditions are available to download with the online legal pack. A completed form, ID and two cheques (one for the 10% deposit and one for the Buyer's Administration Fee of £1,200) are required by the Auction Department at least two full working days before the auction.

AUCTION BUYERS GUIDE VIDEO

We have short video guides for both buying and selling by Public Auction on the Hollis Morgan Website. If you have any further questions regarding the process please don’t hesitate to contact Auction HQ.

WHY HOLLIS MORGAN?

WHY HOLLIS MORGAN?
Hollis Morgan regularly hold the largest property auctions across Bristol and the West Country from our iconic Sale Room in Clifton, since we formed in 2010 we have sold the most £££'s of land and property by Public Auction in the region - EVERY YEAR!
Between 2010 and 2018 we have held 51 auctions, offering 1321 lots and raising over £270k for clients across the region.
Did you know… In 2018 we had the highest % success rate and sold more £££’s of Land and Property by auction than all the other Auctioneers in Bristol & North Somerset combined!

TESTIMONIALS

We are very proud of what our past clients have say about us - please visit the Hollis Morgan website to read their testimonials.

CHARITY OF THE YEAR

Hollis Morgan are supporting Bristol Charity All Aboard Watersports as our 2020 Charity of the year with 5% of each Buyers premium being donated.
All Aboard Watersports strive to make it possible for everyone in the local community to join in a range of watersports and water related activities for people with physical, emotional or cognitive disabilities in the historic Bristol City Docks - www.allaboardwatersports.co.uk
In 2019 we were delighted to have raised well £10k for Bristol Zoo by supporting their Bear Wood Project at the Wild Place through events including the Hollis Morgan Opera Picnic and hosting their annual Gala Evening.
Visit the Hollis Morgan Charity page of our Website for further details - www.hollismorgan.co.uk/charity

AUCTION PROPERTY DETAILS DISCLAIMER

Hollis Morgan endeavour to make our sales details clear, accurate and reliable in line with the Consumer Protection from Unfair Trading Regulations 2008 but they should not be relied on as statements or representations of fact and they do not constitute any part of an offer or contract. All Hollis Morgan references to planning, tenants, boundaries, potential development, tenure etc is to be superseded by the information contained in the legal pack. It should not be assumed that this property has all the necessary Planning, Building Regulation or other consents. Any services, appliances and heating system(s) listed have not been checked or tested. Please note that in some instances the photographs may have been taken using a wide angle lens. The seller does not make any representation or give any warranty in relation to the property and we have no authority to do so on behalf of the seller.


Local Information

Schools Stations Healthcare
Floorplan for HOUSE + PLOT COMBO - HENBURY Floorplan for HOUSE + PLOT COMBO - HENBURY Floorplan for HOUSE + PLOT COMBO - HENBURY Floorplan for HOUSE + PLOT COMBO - HENBURY Floorplan for HOUSE + PLOT COMBO - HENBURY
EPC Graph for HOUSE + PLOT COMBO - HENBURY