Lot 19

Little Orchard Bath Road, Willsbridge, BS30 6EF

Sold @ Auction £815,000 +++

Bedrooms 15 Bathrooms 8 Reception 8

  • FOR SALE BY PUBLIC AUCTION
  • WEDNESDAY 11th APRIL
  • ALL SAINTS CHURCH, CLIFTON, BS8 2HY
  • WEEKLY SET VIEWINGS
  • DOWNLOAD ONLINE LEGAL PACKS
  • APRIL 2018
  • FREEHOLD 0.5 ACRE SITE
  • PLANNING GRANTED
  • 4 X LUXURY DETACHED HOUSES
  • GDV £2.6M

FOR SALE BY AUCTION

*** SOLD PRIOR TO AUCTION ***

SOLD @ £815,000

LOT NUMBER 19
Wednesday 11th April 2018
All Saints Church Pembroke Road, Clifton, Bristol BS8 2HY
Legal packs will be available for inspection from 18:00.
The sale will begin promptly at 19:00

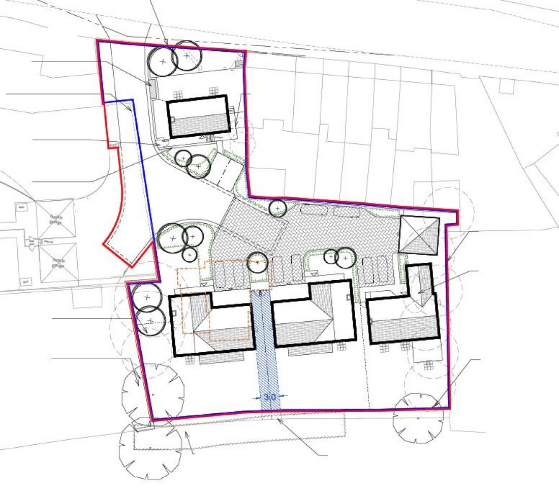
THE LAND

Little orchard is a Freehold detached house set well back from the road occupying a secluded position in a 0.5 acre plot with fine rural views to the rear.

LOCATION

The land is located just outside the popular suburb of Willsbridge with petrol station and general store, Local amenities and services are all within close proximity in the town of Keynsham including a railway station and excellent access to both Bath and Bristol.

THE OPPORTUNITY

PLANNING GRANTED - GATED SCHEME

Planning has been granted to demolish the existing property and erect a gated scheme of four luxury detached family homes.

GDV SCHEDULE

HOUSE 1 - £430,000
HOUSE 2 - £735,000
HOUSE 3 - £720,000
HOUSE 4 - £720,000

TOTAL - £2,605,000

DEVELOPMENT SCHEDULE

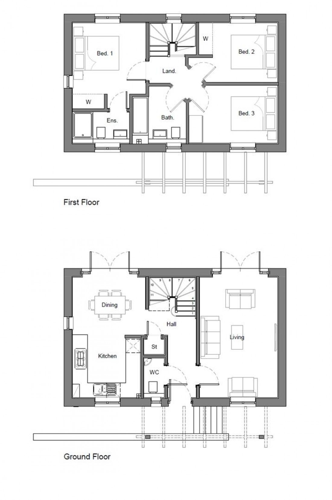
HOUSE 1 - 1032 Sq Ft
GROUND FLOOR - Entrance Hall, Reception 1, Kitchen / Diner, WC.
FIRST FLOOR - Bed 1, En Suite, Bed 2, Bed 3, Bathroom.
OUTSIDE - Front and Rear Gardens, 2 x Off Street Parking

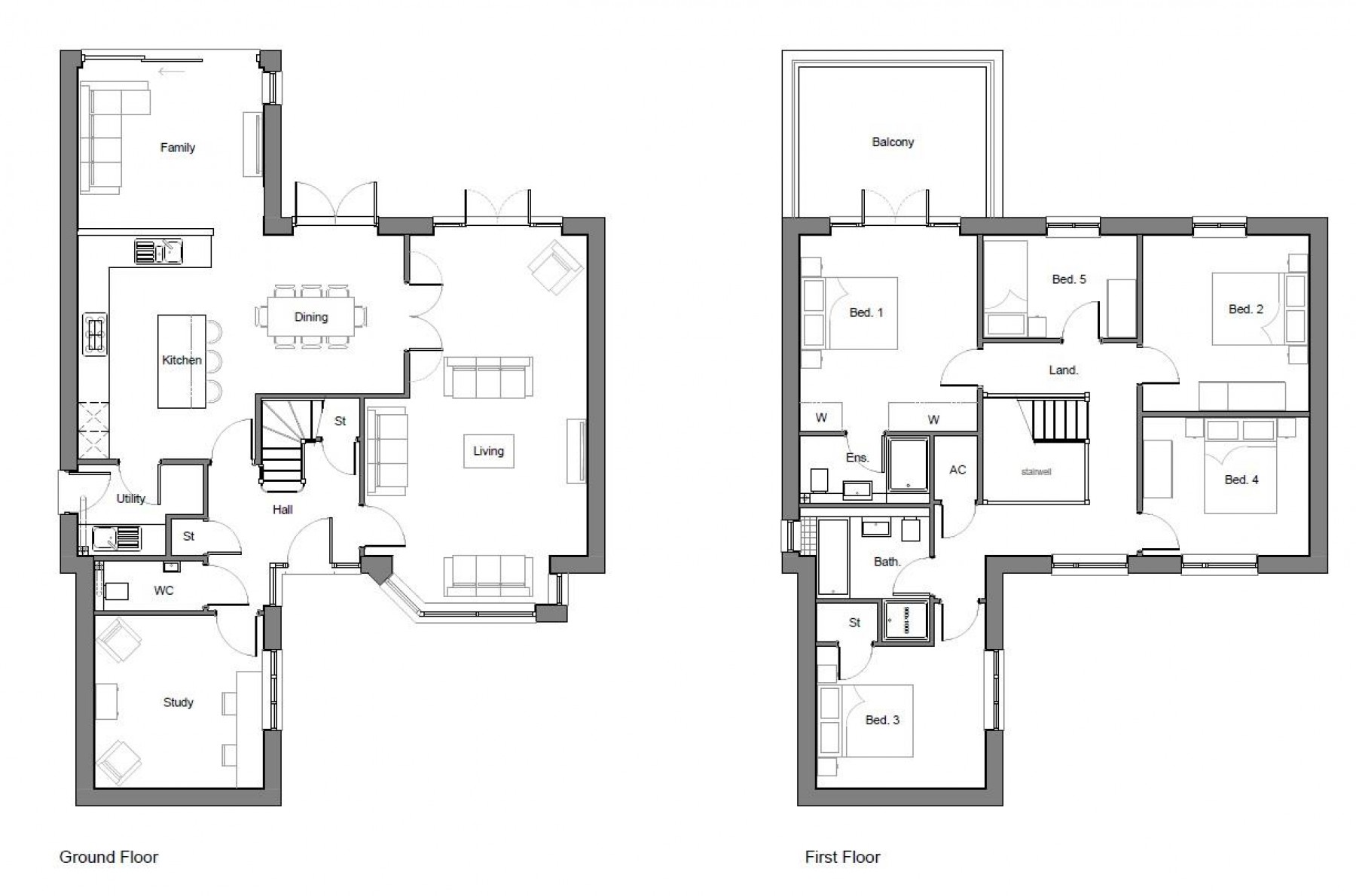
HOUSE 2 - 2115 Sq Ft
GROUND FLOOR - Entrance Hall, Reception 1, Kitchen / Diner, Utility, WC, Study.
FIRST FLOOR - Bed 1, En Suite, Dressing Room, Bed 2, En Suite, Bed 3, Bed 4, Bed 5, Bathroom.
OUTSIDE - Front and Rear Gardens, 2 x Off Street Parking

HOUSE 3 - 2045 Sq Ft
GROUND FLOOR - Entrance Hall, Reception 1, Reception 2, Kitchen / Diner, Utility, WC, Integrated Double Garage.
FIRST FLOOR - Bed 1, En Suite, Dressing Room, Terrace, Bed 2, Bed 3, Terrace, Bed 4, Bed 5, Bathroom.
OUTSIDE - Rear Gardens, 2 x Off Street Parking

HOUSE 4 - 2065 Sq Ft
GROUND FLOOR - Entrance Hall, Reception 1, Reception 2, Kitchen / Diner, Utility, Study, WC.
FIRST FLOOR - Bed 1, En Suite, Balcony, Bed 2, Bed 3, Bed 4, Bed 5, Bathroom.
OUTSIDE - Rear Gardens, 2 x Off Street Parking, Detached Double Garage

PLANNING GRANTED

Reference PK17/4372/F
Alternative Reference PP-06377779
Application Received Tue 12 Sep 2017
Application Validated Tue 12 Sep 2017
Address 98 Bath Road Willsbridge Bristol South Gloucestershire BS30 6EF
Proposal Erection of 4no. dwellings with new vehicular and pedestrian access and associated works
Status Decided
Decision Approve with Conditions
Decision Issued Date Fri 01 Dec 2017
Appeal Status Unknown


Local Information

Schools Stations Healthcare
Floorplan for PLANNING GRANTED - GDV £2.6M Floorplan for PLANNING GRANTED - GDV £2.6M Floorplan for PLANNING GRANTED - GDV £2.6M Floorplan for PLANNING GRANTED - GDV £2.6M Floorplan for PLANNING GRANTED - GDV £2.6M Floorplan for PLANNING GRANTED - GDV £2.6M Floorplan for PLANNING GRANTED - GDV £2.6M Floorplan for PLANNING GRANTED - GDV £2.6M Floorplan for PLANNING GRANTED - GDV £2.6M Floorplan for PLANNING GRANTED - GDV £2.6M Floorplan for PLANNING GRANTED - GDV £2.6M Floorplan for PLANNING GRANTED - GDV £2.6M Floorplan for PLANNING GRANTED - GDV £2.6M Floorplan for PLANNING GRANTED - GDV £2.6M Floorplan for PLANNING GRANTED - GDV £2.6M Floorplan for PLANNING GRANTED - GDV £2.6M Floorplan for PLANNING GRANTED - GDV £2.6M Floorplan for PLANNING GRANTED - GDV £2.6M Floorplan for PLANNING GRANTED - GDV £2.6M