Lot 17

Development Site to Rear of, 29-31 Orchard Road, Kingswood, BS15 9TH

Sold @ Auction £425,000 +++

Bedrooms 15 Bathrooms 6 Reception 6

  • *** BEST & FINAL OFFERS ***
  • 17TH DECEMBER @ 16:00
  • EMAIL OFFERS TO OLLY@HOLLISMORGAN.CO.UK
  • VIEWINGS BY APPT
  • DOWNLOAD ONLINE LEGAL PACKS
  • NOVEMBER 2019
  • PLANNING GRANTED
  • RESIDENTIAL SCHEME
  • FAMILY HOMES / TOWN HOUSES
  • EXTENDED 8 WEEK COMPLETION

FOR SALE BY AUCTION

Wednesday 27th November 2019
All Saints Church Pembroke Road, Clifton, Bristol BS8 2HY
Legal Pack Room and Registration will be open from 18:15
The sale will begin promptly at 19:00

ONLINE LEGAL PACKS

Digital Copies of the Online legal pack can be downloaded Free of Charge.
Please visit the Hollis Morgan Website and select the chosen lot from our Current Auction List.
Follow the RED link to "Download Legal Packs" For the first visit you will be required to register simply with your email and a password.
Having set up your account you can download legal packs or if they are not yet available they will automatically be sent to you when we receive them.
You will be automatically updated by email if any new information is added.
There will be a note added to the list to confirm AUCTION PACK NOW COMPLETE when no further information is due to be added.
*** STAY UPDATED *** By registering for the legal pack we can ensure you are kept updated on any changes to this Lot in the build up to the sale.

SOLICITORS

Katrina Bartlett
Wards solicitors
01454 204880
Katrina.Bartlett@wards.uk.com

THE LAND

A Freehold parcel of land spanning the rear gardens of the two bungalows at 29 and 31 Orchard Road with vehicular access between the 2 properties.
Sold with vacant possession.

LOCATION

Orchard Road is located just off the busy Kingswood High Street which offers a variety of local amenities and services including independent retailers, convenience stores, cafes, bars and restaurants. Bristol City Centre is approximately 6 miles away.

THE OPPORTUNITY

The vendors have owned the property at 31 Orchard Road for a number of years and have opted to split and sell the rear of the plot.
Independent access has been granted via a new lane running betwixt 29 and 31 Orchard Road.
Planning was then sought and subsequently granted on the rear section of 31 Orchard Road for a residential scheme.
The vendors have since acquired the land to the rear of 29 Orchard Road but have not sought any planning on this section of the land.
On offer is the land to the rear of BOTH 29 and 31 Orchard Road with a vehicular access from Orchard Road.

PLANNING GRANTED - RESIDENTIAL DEVELOPMENT

Land to the Rear of 31 Orchard Road.
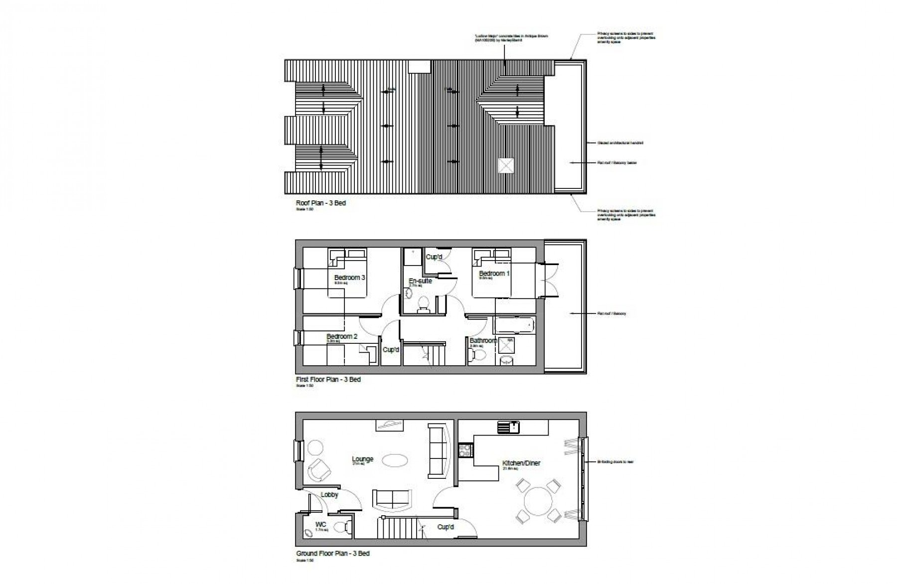
Planning has been granted to erect a terraced scheme of 3 bedroom houses ( 990 Sq Ft ) with balconies, gardens and parking in this idyllic position set well back from the road.
We understand the completed properties will have a resale value in the region of £325,000

FURTHER DEVELOPMENT

Land to the rear of 29 Orchard Road.
Whilst no planning has been sought we understand there is strong scope to increase the density of the scheme for a similar development of 2 additional dwellings on the adjacent land ( Rear of 29 Orchard Road )

TOTAL POTENTIAL GDV

5 X £325,000
£1.625M

ALTERNATIVE SCHEME

There may be scope to create an amended scheme of detached or semi detached units.

*** All subject to gaining the necessary consents ***

PROPOSED SCHEDULE OF ACCOMMODATION

Granted Scheme 3 Bedroom Terraced Houses ( 990 Sq Ft )

GROUND FLOOR

Open Plan Kitchen Diner with Bi Fold Doors to Garden
Reception Room
WC

FIRST FLOOR

Master Bedroom with private Balcony
Master En Suite
Bedroom 2
Bedroom 3
Family bathroom

PLANNING GRANTED

Reference PK18/2624/F
Alternative Reference PP-05902643
Application Received Fri 01 Jun 2018
Application Validated Wed 06 Jun 2018
Address Land At 31 Orchard Road Kingswood Bristol South Gloucestershire BS15 9TH
Proposal Erection of 3 no. dwellings and associated works.
Status Decided
Decision Approve with Conditions
Decision Issued Date Fri 16 Nov 2018
Appeal Status Unknown
Appeal Decision Not Available

PLANNING INFORMATION

Full details of the proposed scheme and drawings can be downloaded with the online legal pack.

BUYER'S PREMIUM

Please be aware all purchasers are subject to a £1000 + VAT (£1,200 inc VAT) buyer's premium which is ALWAYS payable upon exchange of contracts whether the sale is concluded before, during or after the auction date.

GUIDE PRICE

An indication of the seller's current minimum acceptable price at auction. The guide price or range of guide prices is given to assist consumers in deciding whether or not to pursue a purchase. It is usual, but not always the case, that a provisional reserve range is agreed between the seller and the auctioneer at the start of marketing. As the reserve is not fixed at this stage and can be adjusted by the seller at any time up to the day of the auction in the light of interest shown during the marketing period, a guide price is issued. This guide price can be shown in the form of a minimum and maximum price range within which an acceptable sale price (reserve) would fall, or as a single price figure within 10% of which the minimum acceptable price (reserve) would fall. A guide price is different to a reserve price (see separate definition). Both the guide price and the reserve price can be subject to change up to and including the day of the auction.

RESERVE PRICE

The seller's minimum acceptable price at auction and the figure below which the auctioneer cannot sell. The reserve price is not disclosed and remains confidential between the seller and the auctioneer. Both the guide price and the reserve price can be subject to change up to and including the day of the auction.

PRE AUCTION OFFERS

Some properties may be available to buy prior to the auction.
Pre auction offers can only be submitted by completing the OFFER FORM which can be downloaded with the online legal pack - please email the COMPLETED form to – olly@hollismorgan.co.uk.
Please note offers will not be considered until you have VIEWED the property and the COMPLETE LEGAL PACK has been released.
You will be emailed a note to confirm the AUCTION PACK NOW COMPLETE and then offers can be submitted.
In the event of an offer being accepted the property will only be removed from the auction and viewings stopped once contracts have successfully EXCHANGED subject to the standard auction terms and payment of the buyer’s premium ( £1,200 ) to Hollis Morgan. Contracts can be signed either via the solicitors or at the Hollis Morgan offices subject to appointment.

SURVEYS AND VALUATIONS

If you would like to arrange a survey or mortgage valuation of this Lot BEFORE the auction please instruct your appointed surveyor to contact Hollis Morgan and we will arrange access for them to inspect the property. Please note that buyers CANNOT attend the surveys and the surveyors are responsible for collecting and returning keys to the Hollis Morgan offices in Clifton.

BIDDING AT THE AUCTION

This property is for sale by public auction and if you intend to bid please bring the following:

Proof of identity (valid passport or photo driving licence).
Proof of address (bank statement, recent utility bill, council tax bill or tenancy agreement).
10% deposit payment.
Buyers premium payment.
Details of your solicitor.

You will need to register to bid – registration will be open from 18:15
Forms can be downloaded and completed beforehand ( found in the legal pack ) or collected at the auction venue.

PAYING THE DEPOSIT & BUYERS PREMIUM

We can only accept the following at the auction:

Personal or Company Cheque
Bankers Draft
Debit Card ( NOT CREDIT CARD )

TELEPHONE AND PROXY BIDDING

If you cannot attend the auction (although we strongly advise you do) you can make a TELEPHONE or PROXY BID. This authorises the auctioneer to bid on your behalf up to a pre-set limit. Forms and relevant conditions are available to download with the online legal pack. A completed form, ID and two cheques (one for the 10% deposit and one for the Buyer's Administration Fee of £1,200) are required by the Auction Department at least two full working days before the auction.

AUCTION BUYERS GUIDE VIDEO

We have short video guides for both buying and selling by Public Auction on the Hollis Morgan Website. If you have any further questions regarding the process please don’t hesitate to contact Auction HQ.

WHY HOLLIS MORGAN?

WHY HOLLIS MORGAN?
Hollis Morgan regularly hold the largest property auctions across Bristol and the West Country from our iconic Sale Room in Clifton, since we formed in 2010 we have sold the most £££'s of land and property by Public Auction in the region - EVERY YEAR!
Between 2010 and 2018 we have held 51 auctions, offering 1321 lots and raising over £270k for clients across the region.
Did you know… In 2018 we had the highest % success rate and sold more £££’s of Land and Property by auction than all the other Auctioneers in Bristol & North Somerset combined!

TESTIMONIALS

We are very proud of what our past clients have say about us - please visit the Hollis Morgan website to read their testimonials.

CHARITY OF THE YEAR

Hollis Morgan are supporting Bristol Zoo’s Bear Wood Appeal as our 2019 charity of the year with 5% of each buyers premium being donated.
Bear Wood is an exciting new development due to open in Summer 2019 at Wild Place Project. The exhibit will transport visitors back in time when the woodland was inhabited by European brown bears, Eurasian lynx, European wolves and wolverine, showing the effects of woodland loss on our native animals.
In 2018 we were delighted to be involved in raising £10,000 over 3 events for the “Off The Record” Bristol based mental health charity - www.otrbristol.org.uk
Visit the Charity page of our Website for further details - https://www.hollismorgan.co.uk/charity/

AUCTION PROPERTY DETAILS DISCLAIMER

Hollis Morgan endeavour to make our sales details clear, accurate and reliable in line with the Consumer Protection from Unfair Trading Regulations 2008 but they should not be relied on as statements or representations of fact and they do not constitute any part of an offer or contract. All Hollis Morgan references to planning, tenants, boundaries, potential development, tenure etc is to be superseded by the information contained in the legal pack. It should not be assumed that this property has all the necessary Planning, Building Regulation or other consents. Any services, appliances and heating system(s) listed have not been checked or tested. Please note that in some instances the photographs may have been taken using a wide angle lens. The seller does not make any representation or give any warranty in relation to the property and we have no authority to do so on behalf of the seller.


Local Information

Schools Stations Healthcare
Floorplan for DEVELOPMENT SITE - KINGSWOOD Floorplan for DEVELOPMENT SITE - KINGSWOOD Floorplan for DEVELOPMENT SITE - KINGSWOOD