Lot TBC

Land Adjacent to Wickwar Road, Kingswood, GL12 8RF

Sold @ Auction £150,000 +++

Bedrooms 4 Bathrooms 2 Reception 2

  • FOR SALE BY PUBLIC AUCTION
  • WEDNESDAY 5TH JUNE 2019
  • ALL SAINTS CHURCH, CLIFTON, BS8 2HY
  • EXTERNAL VIEWINGS AT ALL TIMES
  • DOWNLOAD ONLINE LEGAL PACKS
  • JUNE 2019
  • PLANNING GRANTED
  • DETACHED 4 BEDROOM HOUSE
  • SOUGHT AFTER VILLAGE LOCATION
  • CONTEMPORARY DESIGN

FOR SALE BY AUCTION

*** SOLD @ HOLLIS MORGAN JUNE AUCTION ***

GUIDE £125,000 +++
SOLD @ £150,000

LOT NUMBER 11
Wednesday 5th June 2019
All Saints Church Pembroke Road, Clifton, Bristol BS8 2HY
Legal packs will be available for inspection from 18:00.
The sale will begin promptly at 19:00

VIEWINGS

The land is open for external viewings at all times.

SOLICITORS

Jonathan beck
Carbon law
Jonathan.Beck@carbonlawpartners.com

ONLINE LEGAL PACKS

Digital Copies of the Online legal pack can be downloaded Free of Charge.
Please Click or Paste this link to access the June Auction Legal Packs
Please note the Red Button will not work after the auction date.

https://auctioneertemplates.eigroup.co.uk/results.aspx?a=660&c=hom

THE LAND

A plot of land measuring approximately 0.09 acres (400 sq m), situated in a village location in Kingswood, Wotton-Under-Edge with fine rural views to the rear aspect and local amenities close by.
Freehold and vacant.

LOCATION

The semi-rural village of Kingswood is located approximately 1.2 miles South West of the market town Wotton under Edge, 2.6 miles from the village of Wickwar and 6.5 miles from the bustling market town of Chipping Sodbury. It allows ideal access to attractive countryside surrounds and the Cotswolds plus it has the benefit of commuting to Bristol via the M5 Junction 14 - approximately 4.4 miles away. The village has a quaint conservation High Street which leads to the local primary school via the historic Abbey Gates, plus a short walk north of the village will take you to the very popular Katharine Lady Berkeley secondary school. In the centre of the village there is the local store, Public House and gymnasium which is situated in the converted chapel.

THE OPPORTUNITY

PLANNING GRANTED - NEW BUILD

Planning has been granted to erect a stylish detached 4 bedroom house ( 1302 Sq FT ) with parking and gardens in this sought after Village location.
We understand the completed property will have a value in the region of £425,000.

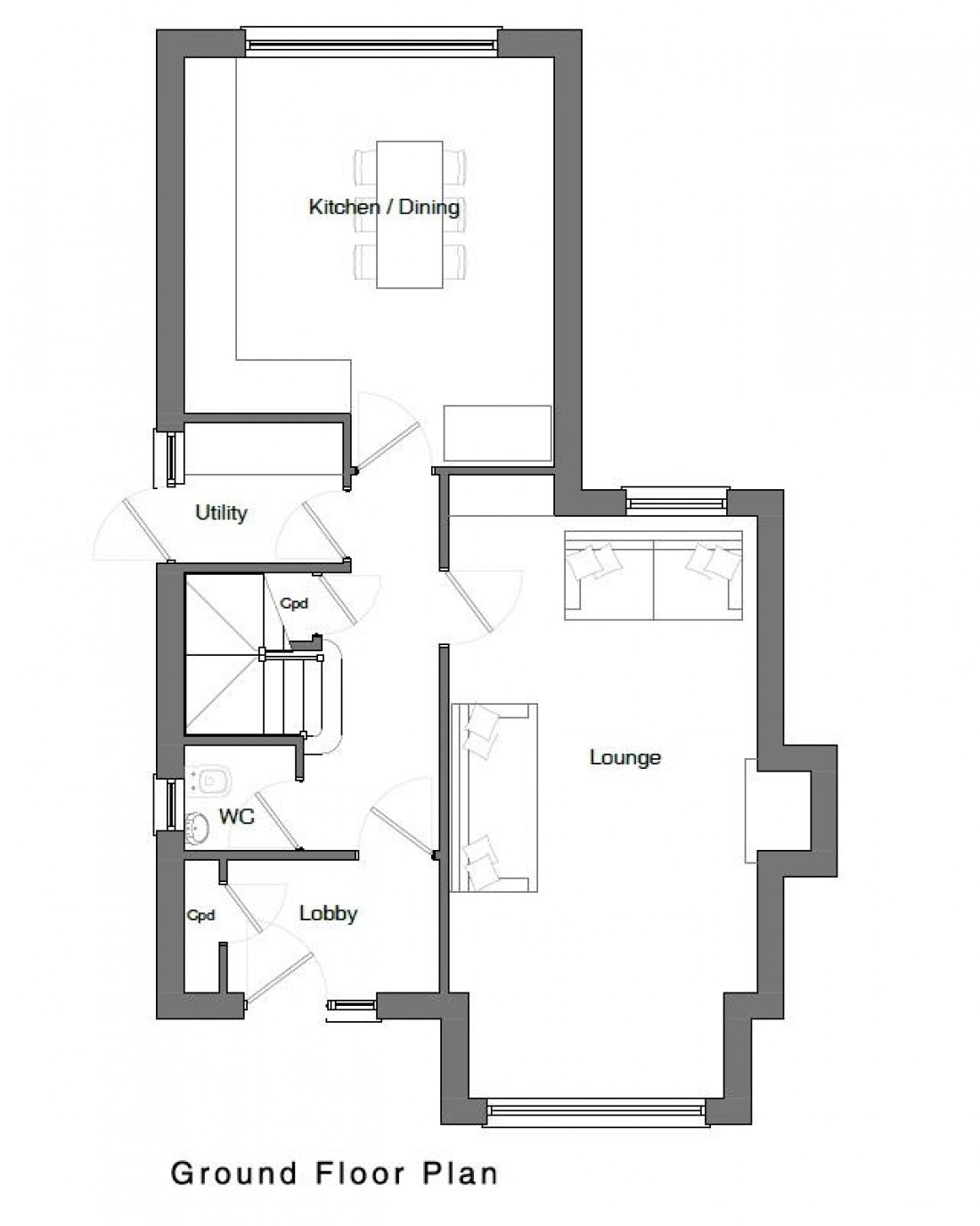
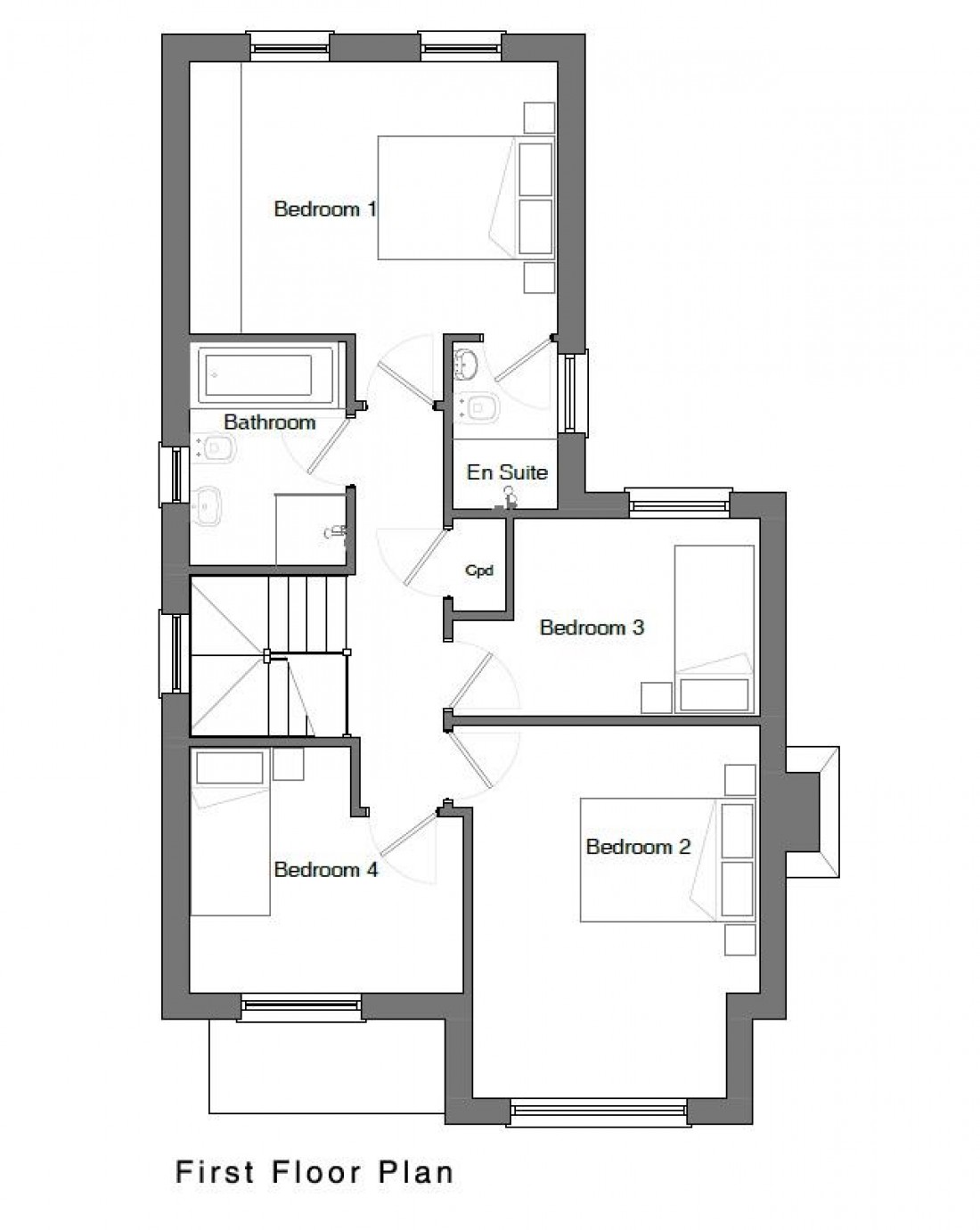
PROPOSED SCHEDULE OF ACCOMMODATION

GROUND FLOOR
Lobby
Lounge
Kitchen / Diner with Bi Folds doors to Garden.
WC

FIRST FLOOR
Bedroom 1
En suite Bathroom
Bedroom 2
Bedroom 3
Bedroom 4
Bathroom

OUTSIDE
2 x Off Street Parking
Gardens.

PLANNING GRANTED

Planning Ref: S.19/0340/FUL
Application Date: 15/02/2019
Dated: 18/04/2019
Description of Land - Land Between 25 And 27, Wickwar Road, Kingswood, Gloucestershire
Description of Development - Erection of a detached dwellinghouse.

PLANNING INFORMATION

Full details of the proposed scheme and drawings can be downloaded with the online legal pack.

BUYER'S PREMIUM

Please be aware all purchasers are subject to a £1000 + VAT (£1,200 inc VAT) buyer's premium which is ALWAYS payable upon exchange of contracts whether the sale is concluded before, during or after the auction date.

GUIDE PRICE

An indication of the seller's current minimum acceptable price at auction. The guide price or range of guide prices is given to assist consumers in deciding whether or not to pursue a purchase. It is usual, but not always the case, that a provisional reserve range is agreed between the seller and the auctioneer at the start of marketing. As the reserve is not fixed at this stage and can be adjusted by the seller at any time up to the day of the auction in the light of interest shown during the marketing period, a guide price is issued. This guide price can be shown in the form of a minimum and maximum price range within which an acceptable sale price (reserve) would fall, or as a single price figure within 10% of which the minimum acceptable price (reserve) would fall. A guide price is different to a reserve price (see separate definition). Both the guide price and the reserve price can be subject to change up to and including the day of the auction.

RESERVE PRICE

The seller's minimum acceptable price at auction and the figure below which the auctioneer cannot sell. The reserve price is not disclosed and remains confidential between the seller and the auctioneer. Both the guide price and the reserve price can be subject to change up to and including the day of the auction.

PRE AUCTION OFFERS

Some properties may be available to buy prior to the auction.
Pre auction offers can only be submitted by completing the OFFER FORM which can be downloaded with the online legal pack - please email the COMPLETED form to – olly@hollismorgan.co.uk.
Please note offers will not be considered until you have VIEWED the property and the COMPLETE LEGAL PACK has been released.
You will be emailed a note to confirm the AUCTION PACK NOW COMPLETE and then offers can be submitted.
In the event of an offer being accepted the property will only be removed from the auction and viewings stopped once contracts have successfully EXCHANGED subject to the standard auction terms and payment of the buyer’s premium ( £1,200 ) to Hollis Morgan. Contracts can be signed either via the solicitors or at the Hollis Morgan offices subject to appointment.

PAYING THE DEPOSIT & BUYERS PREMIUM

We can only accept the following at the auction:

Personal or Company Cheque
Bankers Draft
Debit Card ( NOT CREDIT CARD )

SURVEYS AND VALUATIONS

If you would like to arrange a survey or mortgage valuation of this Lot BEFORE the auction please instruct your appointed surveyor to contact Hollis Morgan and we will arrange access for them to inspect the property. Please note that buyers CANNOT attend the surveys and the surveyors are responsible for collecting and returning keys to the Hollis Morgan offices in Clifton.

BIDDING AT THE AUCTION

This property is for sale by public auction and if you intend to bid please bring the following:

Proof of identity (valid passport or photo driving licence).
Proof of address (bank statement, recent utility bill, council tax bill or tenancy agreement).
10% deposit payment.
Buyers premium payment.
Details of your solicitor.

PAYING THE DEPOSIT & BUYERS PREMIUM

We can only accept the following at the auction:

Personal or Company Cheque
Bankers Draft
Debit Card ( NOT CREDIT CARD )

TELEPHONE AND PROXY BIDDING

If you cannot attend the auction (although we strongly advise you do) you can make a TELEPHONE or PROXY BID. This authorises the auctioneer to bid on your behalf up to a pre-set limit. Forms and relevant conditions are available to download with the online legal pack. A completed form, ID and two cheques (one for the 10% deposit and one for the Buyer's Administration Fee of £1,200) are required by the Auction Department at least two full working days before the auction.

AUCTION BUYERS GUIDE VIDEO

We have short video guides for both buying and selling by Public Auction on the Hollis Morgan Website. If you have any further questions regarding the process please don’t hesitate to contact Auction HQ.

WHY HOLLIS MORGAN?

Hollis Morgan regularly hold the largest property auctions across Bristol and the West Country from our iconic Sale Room in Clifton, since we formed in 2010 we have sold the most £££'s of land and property by Public Auction in the region - EVERY YEAR!
Between 2010 and 2018 we have held 51 auctions, offering 1321 lots and raising over £269m for clients across the region.
Did you know….Hollis Morgan sold more £££’s of land and property by auction than all the other Bristol Auctioneers combined in 2018 with over £44m of successful sales!

TESTIMONIALS

We are very proud of what our past clients have say about us - please visit the Hollis Morgan website to read their testimonials.

CHARITY OF THE YEAR

Hollis Morgan are supporting Bristol Zoo’s Bear Wood Appeal as our 2019 charity of the year with 5% of each buyers premium being donated.
Bear Wood is an exciting new development due to open in Summer 2019 at Wild Place Project. The exhibit will transport visitors back in time when the woodland was inhabited by European brown bears, Eurasian lynx, European wolves and wolverine, showing the effects of woodland loss on our native animals.
In 2018 we were delighted to be involved in raising £10,000 over 3 events for the “Off The Record” Bristol based mental health charity - www.otrbristol.org.uk
Visit the Charity page of our Website for further details - https://www.hollismorgan.co.uk/charity/

PROPERTY DETAILS DISCLAIMER

Auction Property Details Disclaimer
Hollis Morgan endeavour to make our sales details clear, accurate and reliable but they should not be relied on as statements or representations of fact and they do not constitute any part of an offer or contract.
All Hollis Morgan references to planning, tenancies, boundaries, potential development, tenure etc is to be superseded by the information contained in the legal pack.
The seller does not make any representation or give any warranty in relation to the property and we have no authority to do so on behalf of the seller.


Local Information

Schools Stations Healthcare
Floorplan for PLANNING GRANTED - 4 BED DETACHED HOUSE Floorplan for PLANNING GRANTED - 4 BED DETACHED HOUSE