Lot 9

Land Adjacent to, 13 Capgrave Close, Brislington, BS4 4TJ

Sold @ Auction £72,000 +++

Bedrooms 2 Bathrooms 2 Reception 2

  • FOR SALE BY PUBLIC AUCTION
  • WEDNESDAY 31ST JULY 2019
  • ALL SAINTS CHURCH, CLIFTON, BS8 2HY
  • WEEKLY SET VIEWINGS
  • DOWNLOAD ONLINE LEGAL PACKS
  • JULY 2019
  • PLANNING GRANTED
  • SEMI DETACHED TWO BED HOUSE
  • DEVELOPMENT OPPORTUNITY
  • EXTENDED 6 WEEK COMPLETION

FOR SALE BY AUCTION

*** SOLD @ HOLLIS MORGAN JULY AUCTION ***

GUIDE £65,000 +++
SOLD @ £72,000

LOT NUMBER 9
Wednesday 31st July 2019 ( NEW DATE )
All Saints Church Pembroke Road, Clifton, Bristol BS8 2HY
Legal packs will be available for inspection from 18:00.
The sale will begin promptly at 19:00

PRE AUCTION OFFERS

On this occasion the vendors will NOT consider any pre auction offers.

EXTENDED COMPLETION

Completion is set for 6 weeks or earlier subject to mutual consent.

VIEWING

External viewing at all times.

SOLICITORS

Katie Hughes
AMD Solicitors
139 Whiteladies Road, Bristol, BS8 2PL
01179 621 205
katiehughes@amdsolicitors.com

ONLINE LEGAL PACKS

Digital Copies of the Online legal pack can be downloaded Free of Charge.
Please visit the Hollis Morgan Website and select the chosen lot from our Current Auction List.
Follow the RED link to "Download Legal Packs" For the first visit you will be required to register simply with your email and a password.
Having set up your account you can download legal packs or if they are not yet available they will automatically be sent to you when we receive them.
You will be automatically updated by email if any new information is added.
There will be a note added to the list to confirm AUCTION PACK NOW COMPLETE when no further information is due to be added.
*** STAY UPDATED *** By registering for the legal pack we can ensure you are kept updated on any changes to this Lot in the build up to the sale.

THE LAND

A Freehold corner plot formerly the gardens of Number 13.
Sold with vacant possession.

LOCATION

Capgrave Close is a quiet residential area located just off Broomhill Road within the popular suburb of Brislington. Bath Road is nearby and provides excellent access to both Bristol City Centre (3 miles) and Bath (10 miles).

THE OPPORTUNITY

DEVELOPMENT SITE

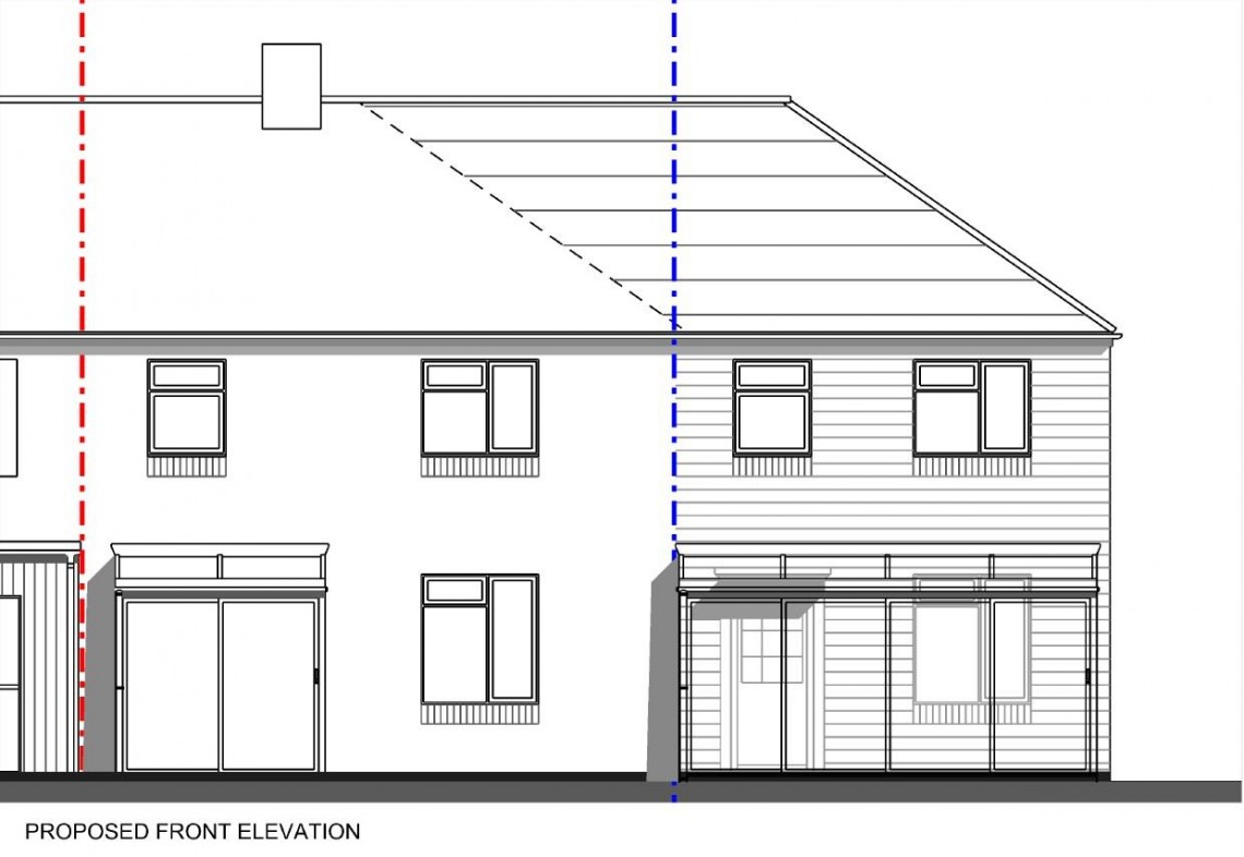
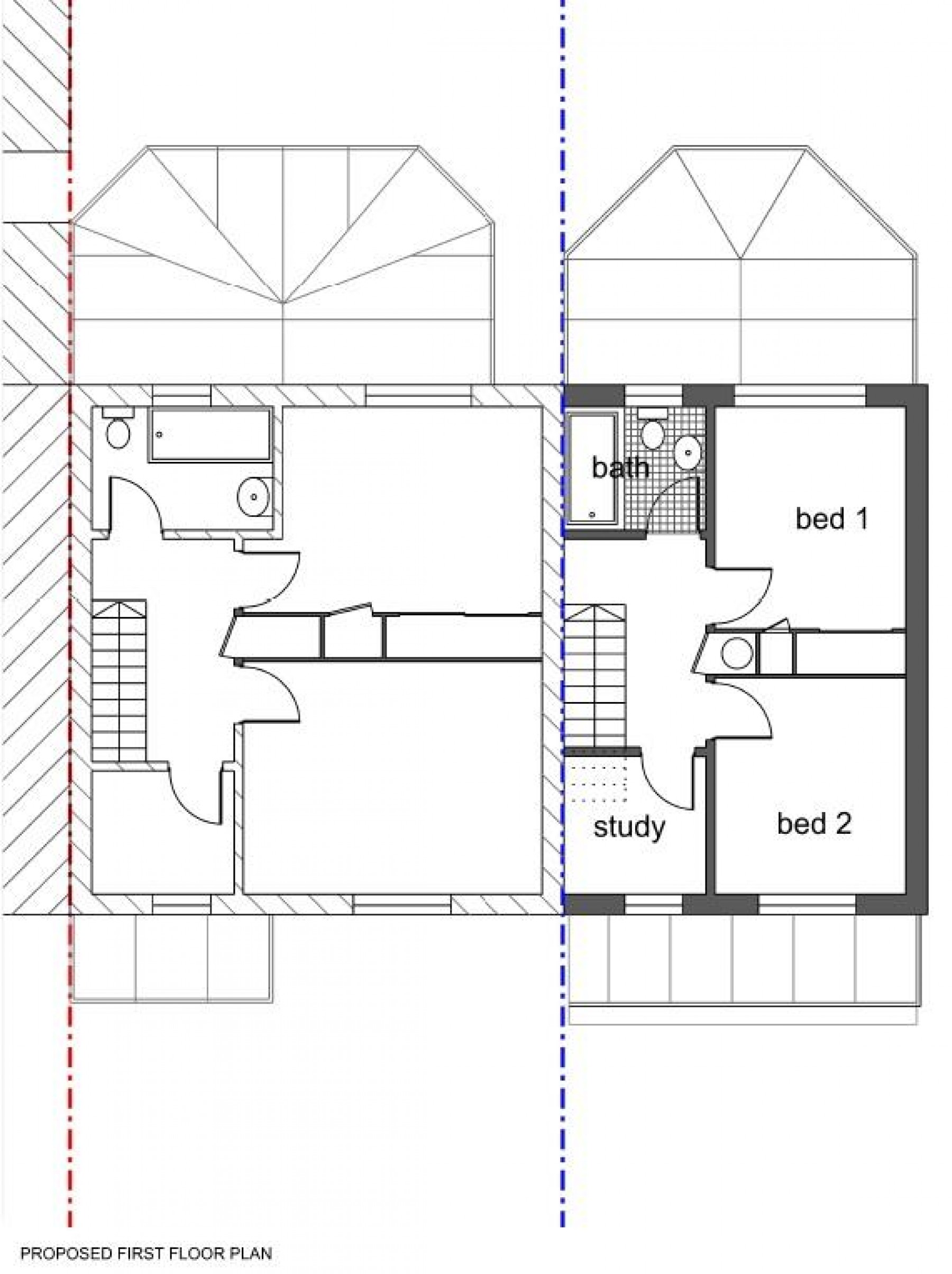
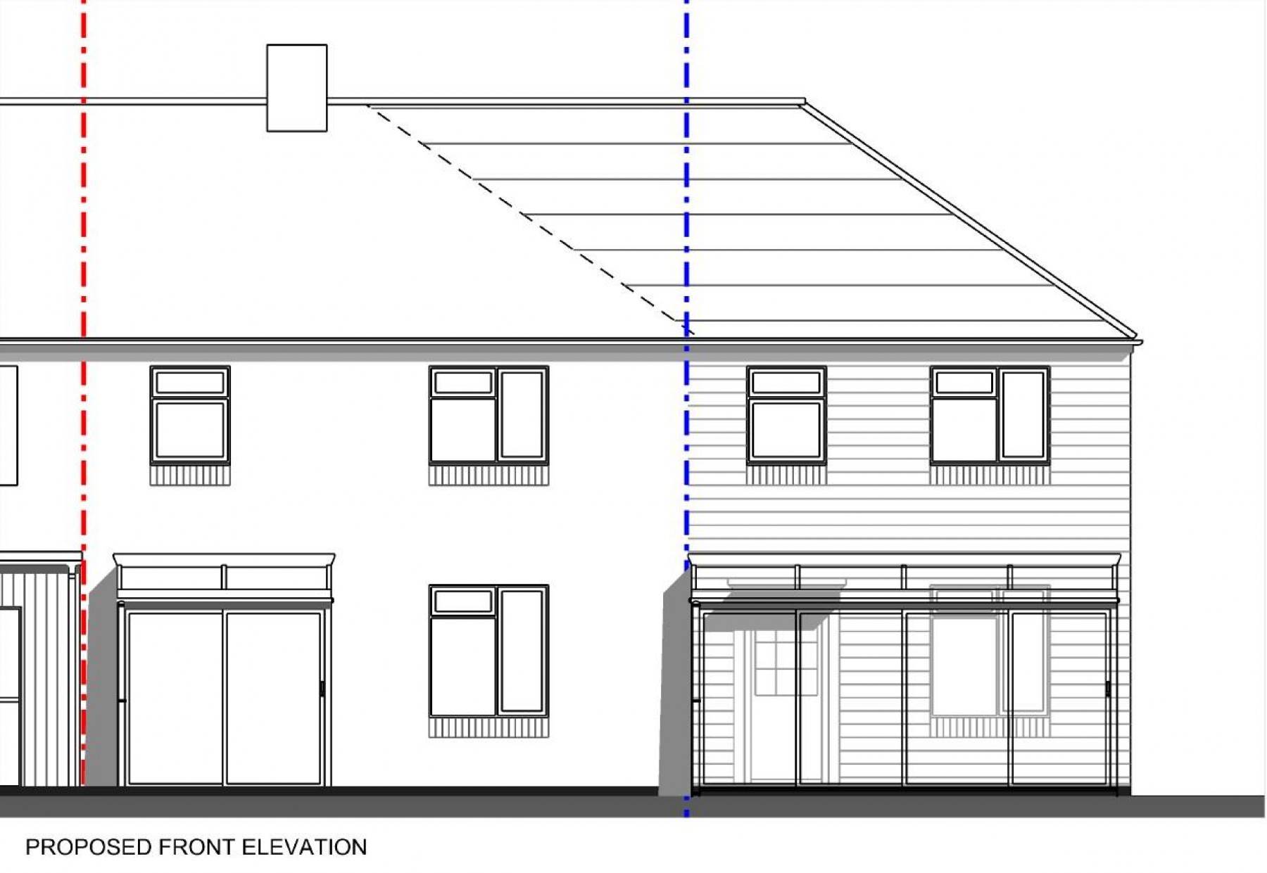
Planning has been granted to erect a semi detached two bedroom plus study house in this sought after location.

PROPOSED SCHEDULE OF ACCOMMODATION

GROUND FLOOR
Open plan reception Area
WC
Kitchen
Conservatory leading to garden

FIRST FLOOR
Bedroom 1
Bedroom 2
Study
Bathroom

OUTSIDE
Parking
Front and Rear Gardens
Bike Store

PLANNING GRANTED

Decision : GRANTED subject to condition(s)
Application no: 18/05624/F
Type of application: Full Planning
Site address: 13 Capgrave Close, Bristol, BS4 4TJ.
Description of development: 1 new dwelling attached to existing dwelling.
Agent: SF-Architectural
Committee/delegation date: 07.02.19
Date of Notice: 07.02.19

PLANNING INFORMATION

Full details of the proposed scheme and drawings can be downloaded with the online legal pack.

BUYER'S PREMIUM

Please be aware all purchasers are subject to a £1000 + VAT (£1,200 inc VAT) buyer's premium which is ALWAYS payable upon exchange of contracts whether the sale is concluded before, during or after the auction date.

GUIDE PRICE

An indication of the seller's current minimum acceptable price at auction. The guide price or range of guide prices is given to assist consumers in deciding whether or not to pursue a purchase. It is usual, but not always the case, that a provisional reserve range is agreed between the seller and the auctioneer at the start of marketing. As the reserve is not fixed at this stage and can be adjusted by the seller at any time up to the day of the auction in the light of interest shown during the marketing period, a guide price is issued. This guide price can be shown in the form of a minimum and maximum price range within which an acceptable sale price (reserve) would fall, or as a single price figure within 10% of which the minimum acceptable price (reserve) would fall. A guide price is different to a reserve price (see separate definition). Both the guide price and the reserve price can be subject to change up to and including the day of the auction.

RESERVE PRICE

The seller's minimum acceptable price at auction and the figure below which the auctioneer cannot sell. The reserve price is not disclosed and remains confidential between the seller and the auctioneer. Both the guide price and the reserve price can be subject to change up to and including the day of the auction.

SURVEYS AND VALUATIONS

If you would like to arrange a survey or mortgage valuation of this Lot BEFORE the auction please instruct your appointed surveyor to contact Hollis Morgan and we will arrange access for them to inspect the property. Please note that buyers CANNOT attend the surveys and the surveyors are responsible for collecting and returning keys to the Hollis Morgan offices in Clifton.

BIDDING AT THE AUCTION

This property is for sale by public auction and if you intend to bid please bring the following:

Proof of identity (valid passport or photo driving licence).
Proof of address (bank statement, recent utility bill, council tax bill or tenancy agreement).
10% deposit payment.
Buyers premium payment.
Details of your solicitor.

PAYING THE DEPOSIT & BUYERS PREMIUM

We can only accept the following at the auction:

Personal or Company Cheque
Bankers Draft
Debit Card ( NOT CREDIT CARD )

TELEPHONE AND PROXY BIDDING

If you cannot attend the auction (although we strongly advise you do) you can make a TELEPHONE or PROXY BID. This authorises the auctioneer to bid on your behalf up to a pre-set limit. Forms and relevant conditions are available to download with the online legal pack. A completed form, ID and two cheques (one for the 10% deposit and one for the Buyer's Administration Fee of £1,200) are required by the Auction Department at least two full working days before the auction.

AUCTION BUYERS GUIDE VIDEO

We have short video guides for both buying and selling by Public Auction on the Hollis Morgan Website. If you have any further questions regarding the process please don’t hesitate to contact Auction HQ.

WHY HOLLIS MORGAN?

Hollis Morgan regularly hold the largest property auctions across Bristol and the West Country from our iconic Sale Room in Clifton, since we formed in 2010 we have sold the most £££'s of land and property by Public Auction in the region - EVERY YEAR!
Between 2010 and 2018 we have held 51 auctions, offering 1321 lots and raising over £269m for clients across the region.
Did you know….Hollis Morgan sold more £££’s of land and property by auction than all the other Bristol Auctioneers combined in 2018 with over £44m of successful sales!

TESTIMONIALS

We are very proud of what our past clients have say about us - please visit the Hollis Morgan website to read their testimonials.

CHARITY OF THE YEAR

Hollis Morgan are supporting Bristol Zoo’s Bear Wood Appeal as our 2019 charity of the year with 5% of each buyers premium being donated.
Bear Wood is an exciting new development due to open in Summer 2019 at Wild Place Project. The exhibit will transport visitors back in time when the woodland was inhabited by European brown bears, Eurasian lynx, European wolves and wolverine, showing the effects of woodland loss on our native animals.
In 2018 we were delighted to be involved in raising £10,000 over 3 events for the “Off The Record” Bristol based mental health charity - www.otrbristol.org.uk
Visit the Charity page of our Website for further details - https://www.hollismorgan.co.uk/charity/

AUCTION PROPERTY DETAILS DISCLAIMER

Hollis Morgan endeavour to make our sales details clear, accurate and reliable in line with the Consumer Protection from Unfair Trading Regulations 2008 but they should not be relied on as statements or representations of fact and they do not constitute any part of an offer or contract. All Hollis Morgan references to planning, tenants, boundaries, potential development, tenure etc is to be superseded by the information contained in the legal pack. It should not be assumed that this property has all the necessary Planning, Building Regulation or other consents. Any services, appliances and heating system(s) listed have not been checked or tested. Please note that in some instances the photographs may have been taken using a wide angle lens. The seller does not make any representation or give any warranty in relation to the property and we have no authority to do so on behalf of the seller.


Local Information

Schools Stations Healthcare
Floorplan for PLOT WITH PLANNING - BRISLINGTON