Sold @ Auction £210,000

Building Plot, Princes Lane, Clifton Village, BS8 4BD

Bedrooms 5 Bathrooms 5 Reception 3

  • GRAND DESIGNS - BUILDING PLOT
  • PLANNING GRANTED
  • CONTEMPORARY 5 BEDROOM HOUSE
  • VIEWS OF CLIFTON SUSPENSION BRIDGE
  • WALKING DISTANCE TO CLIFTON VILLAGE

FOR SALE BY AUCTION

*** SOLD @ THE HOLLIS MORGAN FEBRUARY AUCTION ***

GUIDE £360,000 +++
SOLD @ £210,000

LOT NUMBER 37
Wednesday 27th February 2019
All Saints Church Pembroke Road, Clifton, Bristol BS8 2HY
Legal packs will be available for inspection from 18:00.
The sale will begin promptly at 19:00

THE LAND

A Freehold parcel of land laid out as two walled flat terraces in close proximity to the Clifton Suspension Bridge providing a sunny south-westerly aspect with views of the Avon Gorge and River Avon, Clifton Suspension Bridge, Rownham Hill, Ashton Court and Dundry with spectacular vistas.

LOCATION

The Site is situated in a secluded and iconic setting off Princes Lane, a private road behind Avon Gorge Hotel and Princes Buildings in the conservation area of Clifton in Bristol and to the rear of 412 Hotwell Road, BS8 4BD.

Princes Lane is located just a few hundred yards away from the nearby Clifton Village which offers an eclectic range of shops, wine bars and restaurants and is within close proximity to the spectacular Avon Gorge with the historic Clifton Suspension Bridge providing a unique crossing to North Somerset. Bristol University and the Bristol Royal Infirmary are both within one mile.

Clifton and the surrounding areas, with its Victorian and Georgian architecture, are amongst the most sought after locations in the City. The area offers charm alongside excellent amenities with independent shops, boutiques, cafes, bars and restaurants to be found on both Whiteladies Road and Clifton Village including Clifton Down shopping Centre. The Downs offers four hundred acres of green public space whilst Brunel’s Clifton Suspension Bridge provides a gateway to the Ashton Court Estate with its woodlands, mountain bike trails and walks whilst there is excellent access to the exciting Harbourside district, the City Centre and Temple Meads.

THE OPPORTUNITY

UNIQUE CLIFTON HOME

Once in a lifetime opportunity to create a ‘Grand Designs’ style detached contemporary residential dwelling, with full planning consent that has been implemented ( refer to legal pack ) for a circa 4000 sq ft home in an exceptional location.
The proposed design (flexible in layout) has 5 bedrooms and 2 parking spaces with substantial private garden on a south westerly aspect with beautiful views, especially during the Bristol International Balloon Fiesta.
We anticipate the completed property will have a resale value of circa £2.5m depending on the final specifications.

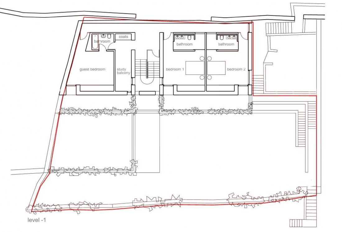
PROPOSED ACCOMMODATION SCHEDULE

ENTRANCE LEVEL
Off Street Parking for two vehicles
Stairs to

LEVEL 1
Bedroom 1 with en suite
Bedroom 2 with en suite
Guest Bedroom with en suite
Study / Gallery

LEVEL 2
Open plan Kitchen Living Space
Bedroom 3 with en suite
Master Bedroom with en suite

LEVEL 3 ( Plus Mezzanine )
Double height living space
Indoor Swimming Lane
South Westerly facing Garden

PLANNING GRANTED

Decision : GRANTED subject to condition(s)
Application no: 11/01883/F and 11/01884/LA
Type of application: Full Planning
Site address: Land off Princes Lane, Rear Of 412 Hotwell Road, Clifton, Bristol BS8 4NU
Description of development: Proposed residential dwelling, with associated access onto Princes' Lane, car parking, amenity space and refuse storage. Works to existing boundary
Applicant: Chest Properties Ltd
Agent: Aspect 360 Ltd
Committee/delegation date: 27.06.12
Date of Notice: 02.07.12

PLANNING INFORMATION

Full details of the scheme can be downloaded with the online legal pack.


Local Information

Schools Stations Healthcare
Floorplan for CLIFTON VILLAGE - GRAND DESIGNS Floorplan for CLIFTON VILLAGE - GRAND DESIGNS Floorplan for CLIFTON VILLAGE - GRAND DESIGNS Floorplan for CLIFTON VILLAGE - GRAND DESIGNS Floorplan for CLIFTON VILLAGE - GRAND DESIGNS Floorplan for CLIFTON VILLAGE - GRAND DESIGNS Floorplan for CLIFTON VILLAGE - GRAND DESIGNS