Sold @ Auction £72,000

Building Plot @, Marlborough Street, Eastville, BS5 6RH

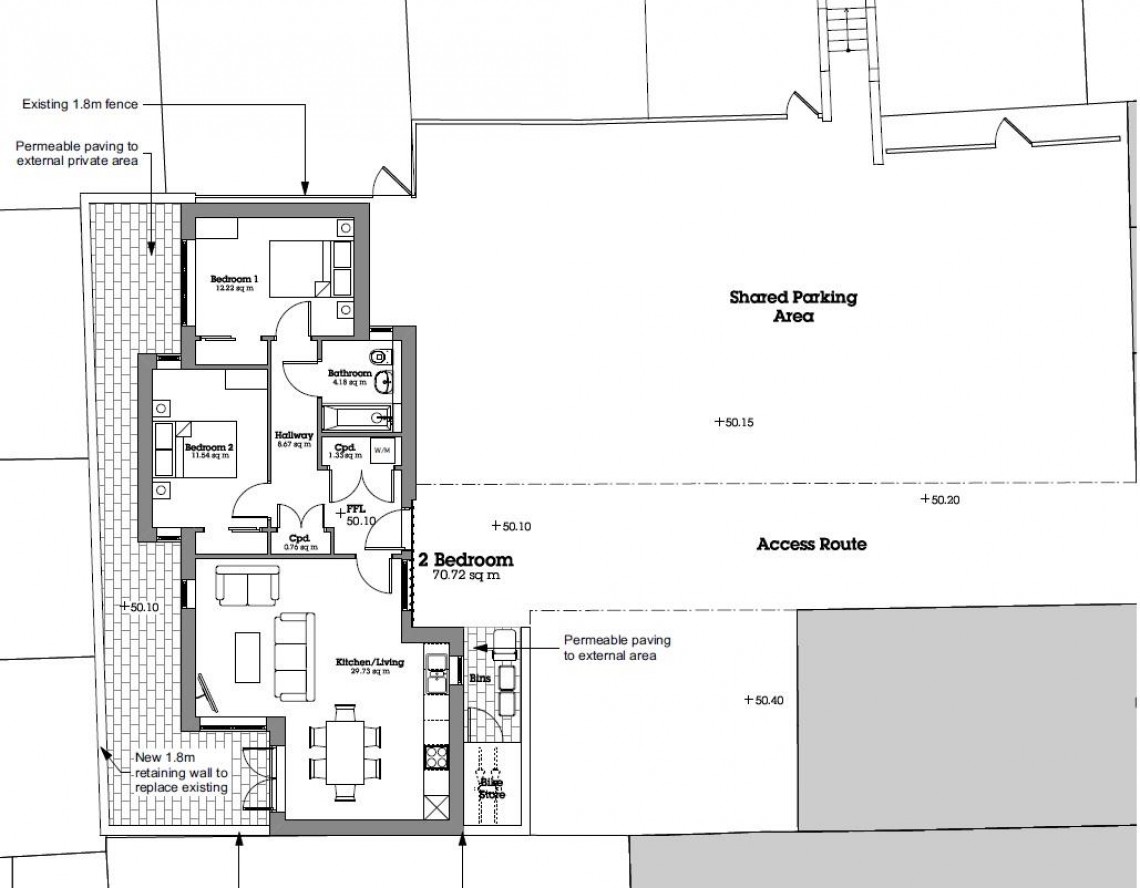
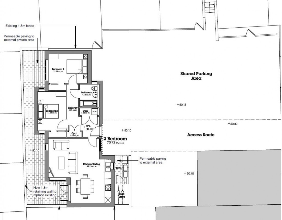
Bedrooms 2 Bathrooms 2 Reception 2

  • BUILDING PLOT
  • PLANNING GRANTED
  • CONTEMPORARY 2 BED HOUSE
  • EXTENDED 6 WEEK COMPLETION
  • POPULAR EASTVILLE LOCATION

FOR SALE BY AUCTION

*** SOLD @ THE HOLLIS MORGAN FEBRUARY AUCTION ***

GUIDE £50,000 +++
SOLD @ £72,000

LOT NUMBER 16
Wednesday 27th February 2019
All Saints Church Pembroke Road, Clifton, Bristol BS8 2HY
Legal packs will be available for inspection from 18:00.
The sale will begin promptly at 19:00

THE LAND

A Freehold parcel of land to the rear of garages on Marlborough Street.

LOCATION

The property is located on Marlborough Street within the popular suburb of Eastville. Local amenities and services are all within close proximity including independent retailers, pubs, bars, cafes and convenience stores. The M32 Motorway is nearby and provides direct routes in and out of Bristol. The City Centre is approximately two miles away.

THE OPPORTUNITY

DEVELOPMENT SITE

Planning has been granted to erect a contemporary single storey two bedroom dwelling.
We understand the completed property will have a resale value in the region of £220,000 - £240,000

PLANNING GRANTED

Decision : GRANTED subject to condition(s)
Application no: 18/03849/F
Type of application: Full Planning
Site address: Land Rear Of Number 2, Marlborough Street, Eastville, Bristol, BS5 6RH.
Description of development: Erection of single storey dwelling house.
Applicant: Mr Adam Phelps
Agent: A Phelps
Committee/delegation date: 29.10.18
Date of Notice: 29.10.18


Local Information

Schools Stations Healthcare
Floorplan for PLANNING GRANTED - 2 BED HOUSE Floorplan for PLANNING GRANTED - 2 BED HOUSE Floorplan for PLANNING GRANTED - 2 BED HOUSE Floorplan for PLANNING GRANTED - 2 BED HOUSE Floorplan for PLANNING GRANTED - 2 BED HOUSE Floorplan for PLANNING GRANTED - 2 BED HOUSE