Sold @ Auction £470,000

Development Site @, 54, West Street, Bedminster, BS3 3LH

Bedrooms 14 Bathrooms 14 Reception 7

  • FREEHOLD DEVELOPMENT SITE
  • FULL PLANNING GRANTED
  • 3 x 3 BEDROOM HOUSES
  • 4 X 1 BEDROOM FLATS
  • GDV £1.73m - £1.85m

FOR SALE BY AUCTION

*** SOLD @ THE HOLLIS MORGAN FEBRUARY AUCTION ***

LOT NUMBER 12
Wednesday 27th February 2019
All Saints Church Pembroke Road, Clifton, Bristol BS8 2HY
Legal packs will be available for inspection from 18:00.
The sale will begin promptly at 19:00

THE LAND

A Freehold L shaped parcel of land ( 0.158 Acres ) with access from West Street.
Ground investigation report - refer to online legal pack.

LOCATION

Located at the lower end of West Street and is close to North Street which offers an array of independent retailers, gourmet restaurants, affluent bars, cafes and friendly public houses.
Bristol City Centre is less than 1 mile away.

THE OPPORTUNITY

PLANNING GRANTED

Planning has been granted to erect a scheme of 3 x 3 bed houses and 4 x Flats.

Full details of the proposed development can be downloaded with the online legal pack.
Please refer to online pack for copies of contamination reports and various other relevant documents relating to the conditions.

HOUSES

Terrace of 3 x 3 Bedroom ( 5 Person ) houses arranged over 3 floors - 1087 Sq Ft
Ground Floor - Kitchen, Living Space, WC, Courtyard Garden and Bin Store
First Floor - Bedroom 3, Bedroom 2, Bathroom.
Top Floor - Bedroom 1, Bathroom.

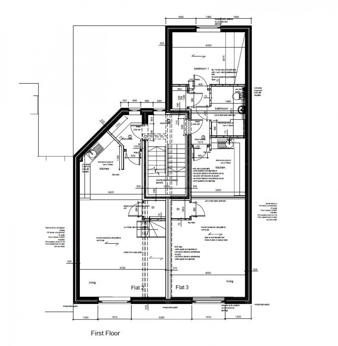
FLATS

Flat 1 608 sq ft ( 1 Bed )
Flat 2 786 sq ft ( 2 Bed )
Flat 3 570 sq ft ( 1 Bed )
Flat 4 581 Sq ft ( 1 Bed )

PARKING

4 Spaces

SITE GDV

HOUSES

£325,000 - £350,000 ( x 3 )

FLATS

£175,000 - £185,000 ( 1 Bed x 3 )

£230,000 - £250,000 ( 2 x 1 )

TOTAL GDV

£1.73m - £1.85m

Please contact our NEW HOMES TEAM for GDV breakdown.
Calum Melhuish
Calum@hollismorgan.co.uk

PLANNING GRANTED

Reference16/05399/F
Alternative ReferencePP-05482722
Application ReceivedWed 05 Oct 2016
Application ValidatedWed 12 Oct 2016
Address54 West Street Bedminster Bristol BS3 3LH
ProposalDemolition of workshop and erection of 3 x 3 storey houses and 3 storey block containing 4 flats with associated external works.
StatusDecided
DecisionGRANTED subject to condition(s)
Decision Issued DateMon 13 Mar 2017
Appeal StatusUnknown

PLANNING UPDATE - CONDITIONS

Reference17/05695/COND
Alternative ReferencePP-06450052
Application ReceivedThu 12 Oct 2017
Application ValidatedThu 12 Oct 2017
Address54 West Street Bedminster Bristol BS3 3LH
ProposalApplication to approve details in relation to condition 2(Contamination), 3 (Remediation Scheme), 4 (Implementation of Remediation Scheme), 6 (Noise Sensitive Premises Assessment), 7(Construction environmental management plan), 9 (SUDS) and 11 (Artificial Lighting) of permission 16/05399/F Demolition of workshop and erection of 3 x 3storey houses and 3 storey block containing 4 flats with associated external works.
StatusDecided
DecisionCondition application decided
Decision Issued DateWed 06 Dec 2017
Appeal StatusUnknown

RENTAL APPRAISAL

What rent can we achieve for you?

The Bristol Residential Letting Co. are confident this property would make a good rental investment. Josh Box of The Bristol Residential Letting Co suggests rents in the region of;

3 bedroom houses - £1200pcm - £1300pcm

2 bedroom flat - £1000pcm - £1100pcm

1 bedroom flats - £800pcm - £850pcm

If you would like to discuss more detail on the potential for rental, you can call me (0117 370 8818) or email (josh@bristolreslet.com) for a no obligation discussion. Alternatively why not drop into my Office (222 North Street, Southville, BS3 1JD) where I am always happy to advise investors on maximising their investment.

EPC

For full details of the EPC please refer to the online legal pack.


Local Information

Schools Stations Healthcare
Floorplan for DEVELOPMENT SITE - PLANNING GRANTED Floorplan for DEVELOPMENT SITE - PLANNING GRANTED Floorplan for DEVELOPMENT SITE - PLANNING GRANTED Floorplan for DEVELOPMENT SITE - PLANNING GRANTED Floorplan for DEVELOPMENT SITE - PLANNING GRANTED Floorplan for DEVELOPMENT SITE - PLANNING GRANTED Floorplan for DEVELOPMENT SITE - PLANNING GRANTED Floorplan for DEVELOPMENT SITE - PLANNING GRANTED Floorplan for DEVELOPMENT SITE - PLANNING GRANTED Floorplan for DEVELOPMENT SITE - PLANNING GRANTED Floorplan for DEVELOPMENT SITE - PLANNING GRANTED Floorplan for DEVELOPMENT SITE - PLANNING GRANTED Floorplan for DEVELOPMENT SITE - PLANNING GRANTED Floorplan for DEVELOPMENT SITE - PLANNING GRANTED