Lot TBC

Building Plot Princes Lane, Clifton Village, BS8 4BD

Sold @ Auction £210,000 +++

Bedrooms 5 Bathrooms 5 Reception 3

  • FOR SALE BY PUBLIC AUCTION
  • WEDNESDAY 27th FEBRUARY
  • ALL SAINTS CHURCH, CLIFTON, BS8 2HY
  • DOWNLOAD ONLINE LEGAL PACKS
  • UNIQUE CLIFTON VILLAGE PLOT
  • FEBRUARY 2019
  • PLANNING GRANTED
  • CONTEMPORARY 5 BEDROOM HOUSE
  • VIEWS OF CLIFTON SUSPENSION BRIDGE
  • WALKING DISTANCE TO CLIFTON VILLAGE

FOR SALE BY AUCTION

*** SOLD @ THE HOLLIS MORGAN FEBRUARY AUCTION ***

GUIDE £360,000 +++
SOLD @ £210,000

LOT NUMBER 37
Wednesday 27th February 2019
All Saints Church Pembroke Road, Clifton, Bristol BS8 2HY
Legal packs will be available for inspection from 18:00.
The sale will begin promptly at 19:00

EXTENDED COMPLETION

Completion is set for 8 weeks or earlier subject to mutual consent.

VIEWINGS

The plot can be viewed from Princes Lane or from Clifton Suspension Bridge at all times.

The site is not to be accessed without supervision and is entered at your own risk.

Internal inspections of the plot are strictly by appointment with Hollis Morgan.

Please contact us to arrange a suitable time.

SOLICITORS

Ronald Peet
ronald.peet@roydswithyking.com
Direct line: 01865 268677
Royds Withy King Solicitors, North Bailey House, New Inn Hall Street, Oxford OX1 2EA
DX: 4314 OXFORD 1
+44(0)1865 792300

ONLINE LEGAL PACKS

Digital Copies of the Online legal pack can be downloaded Free of Charge.
Please visit the Hollis Morgan Website and select the chosen lot from our Current Auction List.
Follow the RED link to "Download Legal Packs" For the first visit you will be required to register simply with your email and a password.
Having set up your account you can download legal packs or if they are not yet available they will automatically be sent to you when we receive them.
You will be automatically updated by email if any new information is added.
There will be a note added to the list to confirm AUCTION PACK NOW COMPLETE when no further information is due to be added.
*** STAY UPDATED *** By registering for the legal pack we can ensure you are kept updated on any changes to this Lot in the build up to the sale.

THE LAND

A Freehold parcel of land laid out as two walled flat terraces in close proximity to the Clifton Suspension Bridge providing a sunny south-westerly aspect with views of the Avon Gorge and River Avon, Clifton Suspension Bridge, Rownham Hill, Ashton Court and Dundry with spectacular vistas.

LOCATION

The Site is situated in a secluded and iconic setting off Princes Lane, a private road behind Avon Gorge Hotel and Princes Buildings in the conservation area of Clifton in Bristol and to the rear of 412 Hotwell Road, BS8 4BD.

Princes Lane is located just a few hundred yards away from the nearby Clifton Village which offers an eclectic range of shops, wine bars and restaurants and is within close proximity to the spectacular Avon Gorge with the historic Clifton Suspension Bridge providing a unique crossing to North Somerset. Bristol University and the Bristol Royal Infirmary are both within one mile.

Clifton and the surrounding areas, with its Victorian and Georgian architecture, are amongst the most sought after locations in the City. The area offers charm alongside excellent amenities with independent shops, boutiques, cafes, bars and restaurants to be found on both Whiteladies Road and Clifton Village including Clifton Down shopping Centre. The Downs offers four hundred acres of green public space whilst Brunel’s Clifton Suspension Bridge provides a gateway to the Ashton Court Estate with its woodlands, mountain bike trails and walks whilst there is excellent access to the exciting Harbourside district, the City Centre and Temple Meads.

THE OPPORTUNITY

UNIQUE CLIFTON HOME

Once in a lifetime opportunity to create a ‘Grand Designs’ style detached contemporary residential dwelling, with full planning consent that has been implemented ( refer to legal pack ) for a circa 4000 sq ft home in an exceptional location.
The proposed design (flexible in layout) has 5 bedrooms and 2 parking spaces with substantial private garden on a south westerly aspect with beautiful views, especially during the Bristol International Balloon Fiesta.
We anticipate the completed property will have a resale value of circa £2.5m depending on the final specifications.

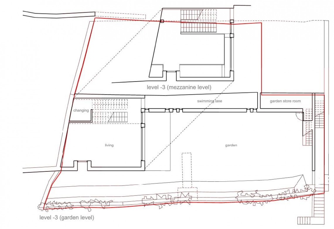
PROPOSED ACCOMMODATION SCHEDULE

ENTRANCE LEVEL
Off Street Parking for two vehicles
Stairs to

LEVEL 1
Bedroom 1 with en suite
Bedroom 2 with en suite
Guest Bedroom with en suite
Study / Gallery

LEVEL 2
Open plan Kitchen Living Space
Bedroom 3 with en suite
Master Bedroom with en suite

LEVEL 3 ( Plus Mezzanine )
Double height living space
Indoor Swimming Lane
South Westerly facing Garden

PLANNING GRANTED

Decision : GRANTED subject to condition(s)
Application no: 11/01883/F and 11/01884/LA
Type of application: Full Planning
Site address: Land off Princes Lane, Rear Of 412 Hotwell Road, Clifton, Bristol BS8 4NU
Description of development: Proposed residential dwelling, with associated access onto Princes' Lane, car parking, amenity space and refuse storage. Works to existing boundary
Applicant: Chest Properties Ltd
Agent: Aspect 360 Ltd
Committee/delegation date: 27.06.12
Date of Notice: 02.07.12

PLANNING INFORMATION

Full details of the scheme can be downloaded with the online legal pack.

GUIDE PRICE

An indication of the seller's current minimum acceptable price at auction. The guide price or range of guide prices is given to assist consumers in deciding whether or not to pursue a purchase. It is usual, but not always the case, that a provisional reserve range is agreed between the seller and the auctioneer at the start of marketing. As the reserve is not fixed at this stage and can be adjusted by the seller at any time up to the day of the auction in the light of interest shown during the marketing period, a guide price is issued. This guide price can be shown in the form of a minimum and maximum price range within which an acceptable sale price (reserve) would fall, or as a single price figure within 10% of which the minimum acceptable price (reserve) would fall. A guide price is different to a reserve price (see separate definition). Both the guide price and the reserve price can be subject to change up to and including the day of the auction.

RESERVE PRICE

The seller's minimum acceptable price at auction and the figure below which the auctioneer cannot sell. The reserve price is not disclosed and remains confidential between the seller and the auctioneer. Both the guide price and the reserve price can be subject to change up to and including the day of the auction.

BUYER'S PREMIUM

Please be aware all purchasers are subject to a £1000 + VAT (£1,200 inc VAT) buyer's premium which is ALWAYS payable upon exchange of contracts whether the sale is concluded before, during or after the auction date.

PRE AUCTION OFFERS

Some properties may be available to buy prior to the auction.
Pre auction offers can be only submitted by completing the OFFER FORM which can be downloaded with the online legal pack - please email the COMPLETED form to – olly@hollismorgan.co.uk.
Please note offers will not be considered until you have VIEWED the property and the COMPLETE LEGAL PACK has been released.
You will be emailed a note to confirm the AUCTION PACK NOW COMPLETE and then offers can be submitted.
In the event of an offer being accepted the property will only be removed from the auction and viewings stopped once contracts have successfully EXCHANGED subject to the standard auction terms and payment of the buyer’s premium ( £1,200 ) to Hollis Morgan. Contracts can be signed either via the solicitors or at the Hollis Morgan offices subject to appointment.

EPC

For full details of the EPC please refer to the online legal pack.

AUCTION FINANCE

Some properties may require specialist auction finance- please contact Hollis Morgan for access to expert advice and "whole of market" rates.

AUCTION BUYERS GUIDE VIDEO

We have short video guides for both buying and selling by Public Auction on the Hollis Morgan Website. If you have any further questions regarding the process please don’t hesitate to contact Auction HQ.

SURVEYS AND VALUATIONS

If you would like to arrange a survey or mortgage valuation of this Lot BEFORE the auction please instruct your appointed surveyor to contact Hollis Morgan and we will arrange access for them to inspect the property. Please note that buyers CANNOT attend the surveys and the surveyors are responsible for collecting and returning keys to the Hollis Morgan offices in Clifton.

PAYING THE DEPOSIT & BUYERS PREMIUM

We can only accept the following at the auction:

Personal or Company Cheque
Bankers Draft
Debit Card ( NOT CREDIT CARD )

BIDDING AT THE AUCTION

This property is for sale by public auction and if you intend to bid please bring the following:

Proof of identity (valid passport or photo driving licence).
Proof of address (bank statement, recent utility bill, council tax bill or tenancy agreement).
10% deposit payment.
Buyers premium payment.
Details of your solicitor.

CHARITY OF THE YEAR

Hollis Morgan are supporting Bristol Zoo’s Bear Wood Appeal as our 2019 charity of the year with 5% of each buyers premium being donated.
Bear Wood is an exciting new development due to open in Summer 2019 at Wild Place Project. The exhibit will transport visitors back in time when the woodland was inhabited by European brown bears, Eurasian lynx, European wolves and wolverine, showing the effects of woodland loss on our native animals.
In 2018 we were delighted to be involved in raising £10,000 over 3 events for the “Off The Record” Bristol based mental health charity - www.otrbristol.org.uk
Visit the Charity page of our Website for further details - https://www.hollismorgan.co.uk/charity/

TELEPHONE AND PROXY BIDDING

If you cannot attend the auction (although we strongly advise you do) you can make a TELEPHONE or PROXY BID. This authorises the auctioneer to bid on your behalf up to a pre-set limit. Forms and relevant conditions are available to download with the online legal pack. A completed form, ID and two cheques (one for the 10% deposit and one for the Buyer's Administration Fee of £1,200) are required by the Auction Department at least two full working days before the auction.

TESTIMONIALS

We are very proud of what our past clients have say about us - please visit the Hollis Morgan website to read their testimonials.

WHY HOLLIS MORGAN?

Hollis Morgan regularly hold the largest property auctions across Bristol and the West Country from our iconic Sale Room in Clifton, since we formed in 2010 we have sold the most £££'s of land and property by Public Auction in the region - EVERY YEAR!
Between 2010 and 2018 we have held 51 auctions, offering 1321 lots and raising over £269m for clients across the region.
Did you know….Hollis Morgan sold more £££’s of land and property by auction than all the other Bristol Auctioneers combined in 2018 with over £44m of successful sales!


Local Information

Schools Stations Healthcare
Floorplan for CLIFTON VILLAGE - GRAND DESIGNS Floorplan for CLIFTON VILLAGE - GRAND DESIGNS Floorplan for CLIFTON VILLAGE - GRAND DESIGNS Floorplan for CLIFTON VILLAGE - GRAND DESIGNS Floorplan for CLIFTON VILLAGE - GRAND DESIGNS Floorplan for CLIFTON VILLAGE - GRAND DESIGNS Floorplan for CLIFTON VILLAGE - GRAND DESIGNS