Lot 44

Building Plot @ Marlborough Street, Eastville, BS5 6RH

Sold @ Auction £60,000 +++

Bedrooms 2 Bathrooms 2 Reception 2

  • FOR SALE BY ONLINE AUCTION
  • WEDNESDAY 14TH OCTOBER 2020
  • VIDEO TOUR NOW ONLINE
  • DOWNLOAD ONLINE LEGAL PACKS
  • EXTERNAL VIEWINGS
  • OCTOBER 2020
  • BUILDING PLOT
  • PLANNING GRANTED
  • CONTEMPORARY 2 BED HOUSE
  • EXTENDED 6 WEEK COMPLETION

ADDRESS

Building plot @ Marlborough Street, Eastville, Bristol, BS5 6RH

FOR SALE BY LIVE ONLINE AUCTION

*** SOLD BY LIVE ONLINE AUCTION ***

GUIDE £70,000 +++
SOLD @ £60,000

Lot Number 44
The Live Online Auction is on Wednesday 14th October at 18:00
Registration Deadline is Monday 12th October

The sale will be streamlined LIVE ONLINE and you can BID by telephone, proxy or via your computer with your unique bidding PIN.
Registration is a simple 3 step process – download the online auction buyers guide for further details
Or simply email bid@hollismorgan.co.uk

VIEWINGS

The site is open for an external inspection at all times.

EXTENDED COMPLETION

Completion is set for 6 weeks or earlier subject to mutual consent.

SOLICITORS

Sharon Sui
Bartons Solicitors
s.siu@bartons.co.uk
Tel: 0117 428 8583

ONLINE LEGAL PACKS

**LEGAL PACK COMPLETE**

Digital Copies of the Online legal pack can be downloaded Free of Charge.
Please visit the Hollis Morgan Website and select the chosen lot from our Current Auction List.
Follow the RED link to "Download Legal Packs" For the first visit you will be required to register simply with your email and a password.
Having set up your account you can download legal packs or if they are not yet available they will automatically be sent to you when we receive them.
You will be automatically updated by email if any new information is added.
There will be a note added to the list to confirm AUCTION PACK NOW COMPLETE when no further information is due to be added.
*** STAY UPDATED *** By registering for the legal pack we can ensure you are kept updated on any changes to this Lot in the build up to the sale.

THE LAND

A Freehold parcel of land to the rear of garages on Marlborough Street.

LOCATION

The property is located on Marlborough Street within the popular suburb of Eastville. Local amenities and services are all within close proximity including independent retailers, pubs, bars, cafes and convenience stores. The M32 Motorway is nearby and provides direct routes in and out of Bristol. The City Centre is approximately two miles away.

THE OPPORTUNITY

DEVELOPMENT SITE

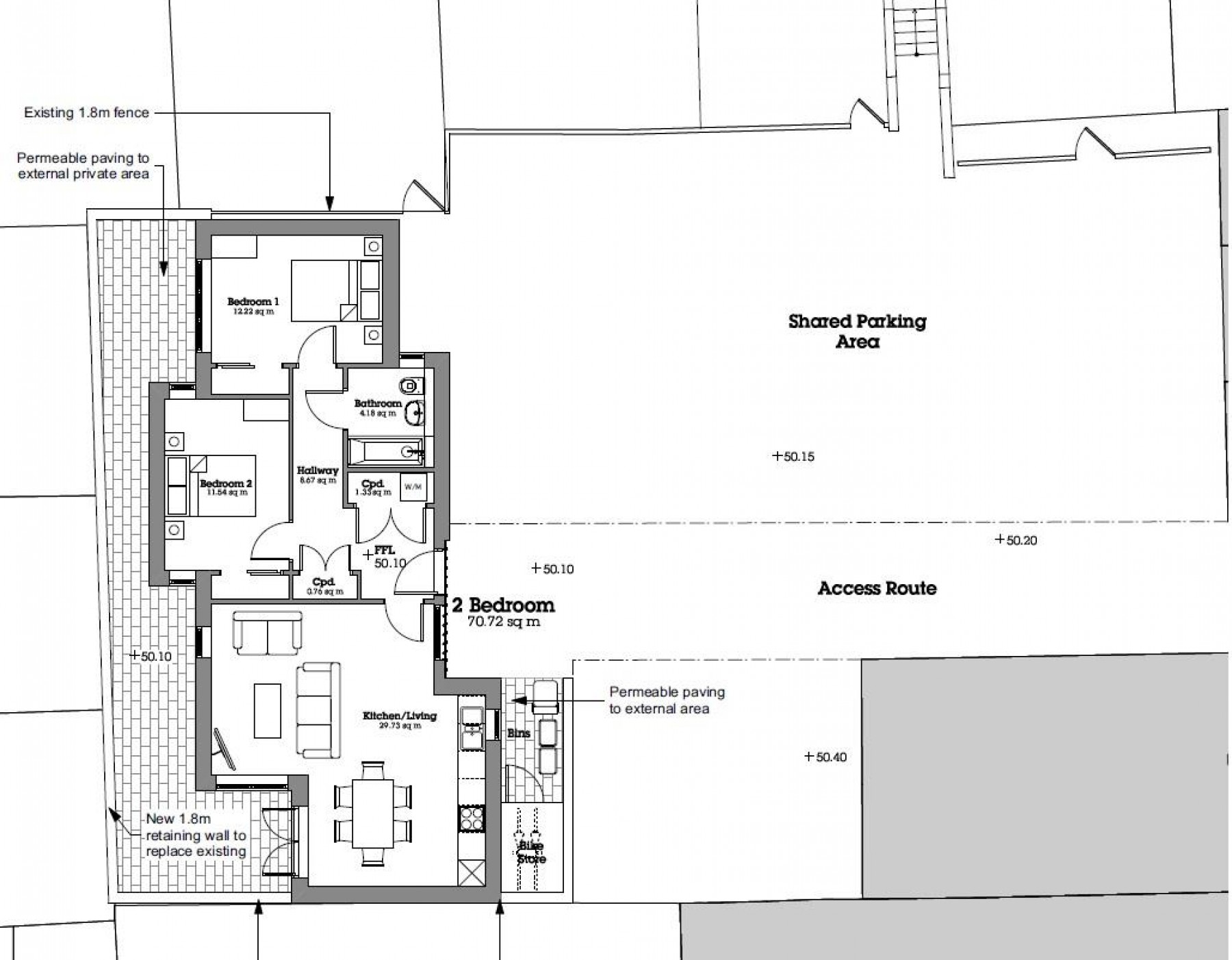
Planning has been granted to erect a contemporary single storey two bedroom dwelling.
We understand the completed property will have a resale value in the region of £220,000 - £240,000

PLANNING GRANTED

Decision : GRANTED subject to condition(s)
Application no: 18/03849/F
Type of application: Full Planning
Site address: Land Rear Of Number 2, Marlborough Street, Eastville, Bristol, BS5 6RH.
Description of development: Erection of single storey dwelling house.
Applicant: Mr Adam Phelps
Agent: A Phelps
Committee/delegation date: 29.10.18
Date of Notice: 29.10.18

PLANNING INFORMATION

Full details of the scheme can be downloaded with the online legal pack,

RENTAL APPRAISAL

What rent can we achieve for you?

The Bristol Residential Letting Co. are confident this property would make a good rental investment. Josh Box of The Bristol Residential Letting Co suggests a rent in the region of;

2 bedroom single storey property - £900pcm - £950pcm

If you would like to discuss more detail on the potential for rental, you can call me (0117 370 8818) or email (josh@bristolreslet.com) for a no obligation discussion. Alternatively why not drop into my Office (222 North Street, Southville, BS3 1JD) where I am always happy to advise investors on maximising their investment.

I will look forward to hearing from you and helping you with your investment.

Josh Box
Senior Negotiator

GUIDE PRICE

An indication of the seller's current minimum acceptable price at auction. The guide price or range of guide prices is given to assist consumers in deciding whether or not to pursue a purchase. It is usual, but not always the case, that a provisional reserve range is agreed between the seller and the auctioneer at the start of marketing. As the reserve is not fixed at this stage and can be adjusted by the seller at any time up to the day of the auction in the light of interest shown during the marketing period, a guide price is issued. This guide price can be shown in the form of a minimum and maximum price range within which an acceptable sale price (reserve) would fall, or as a single price figure within 10% of which the minimum acceptable price (reserve) would fall. A guide price is different to a reserve price (see separate definition). Both the guide price and the reserve price can be subject to change up to and including the day of the auction.

RESERVE PRICE

The seller's minimum acceptable price at auction and the figure below which the auctioneer cannot sell. The reserve price is not disclosed and remains confidential between the seller and the auctioneer. Both the guide price and the reserve price can be subject to change up to and including the day of the auction.

PRE AUCTION OFFERS

Some properties may be available to buy prior to the auction.
Pre auction offers can be only submitted by completing the OFFER FORM which can be downloaded with the online legal pack - please email the COMPLETED form to – olly@hollismorgan.co.uk
Please note offers will not be considered until you have inspected the COMPLETE LEGAL PACK once it has been released.
There will be a note added to the list to confirm AUCTION PACK NOW COMPLETE when no further information is due to be added.
In the event of an offer being accepted the property will only be removed from the auction the online auction and viewings stopped once contracts have successfully EXCHANGED subject to the standard auction terms and payment of the buyer’s premium ( £1000 + VAT ) to Hollis Morgan.
Contracts will need to be exchanged promptly via the solicitors.

SURVEYS AND VALUATIONS

If you would like to arrange a survey or mortgage valuation of this Lot BEFORE the auction please instruct your appointed surveyor to contact Hollis Morgan and we will arrange access for them to inspect the property. Please note that buyers CANNOT attend the surveys and the surveyors are responsible for collecting and returning keys to the Hollis Morgan offices in Clifton.

TESTIMONIALS

We are very proud of what our past clients have say about us - please visit the Hollis Morgan website to read their testimonials.

CHARITY OF THE YEAR

Hollis Morgan are supporting Bristol Charity All Aboard Watersports as our 2020 Charity of the year with 5% of each Buyers premium being donated.
All Aboard Watersports strive to make it possible for everyone in the local community to join in a range of watersports and water related activities for people with physical, emotional or cognitive disabilities in the historic Bristol City Docks - www.allaboardwatersports.co.uk
In 2019 we were delighted to have raised well £10k for Bristol Zoo by supporting their Bear Wood Project at the Wild Place through events including the Hollis Morgan Opera Picnic and hosting their annual Gala Evening.
Visit the Hollis Morgan Charity page of our Website for further details - www.hollismorgan.co.uk/charity

WHY HOLLIS MORGAN?

Hollis Morgan hold the largest land & property auctions in the region.

Hollis Morgan sold more £££’s of Land & Property in both 2018 & 2019 than any other auctioneer in the region.
In fact, no auctioneer has sold more than Hollis Morgan since 2010 with over £289m of sales - £95m more than anyone else.
*Source EIG – Sales in BS and GL postcodes by agents based in BS or GL postcodes.

Hollis Morgan was the most successful Auctioneer in Bristol & North Somerset during 2018 – 2019 with an 87 % success rate.
*Source EIG – Sales in BS postcodes 2018 & 2019 by agents based in BS

AUCTION PROPERTY DETAILS DISCLAIMER

Hollis Morgan endeavour to make our sales details clear, accurate and reliable in line with the Consumer Protection from Unfair Trading Regulations 2008 but they should not be relied on as statements or representations of fact and they do not constitute any part of an offer or contract. All Hollis Morgan references to planning, tenants, boundaries, potential development, tenure etc is to be superseded by the information contained in the legal pack. It should not be assumed that this property has all the necessary Planning, Building Regulation or other consents. Any services, appliances and heating system(s) listed have not been checked or tested. Please note that in some instances the photographs may have been taken using a wide angle lens. The seller does not make any representation or give any warranty in relation to the property and we have no authority to do so on behalf of the seller.


Local Information

Schools Stations Healthcare
Floorplan for PLANNING GRANTED - 2 BED HOUSE Floorplan for PLANNING GRANTED - 2 BED HOUSE