Sold @ Auction £70,000

Plot Adjoining 38, New Cheltenham Road, Kingswood, BS15 1TJ

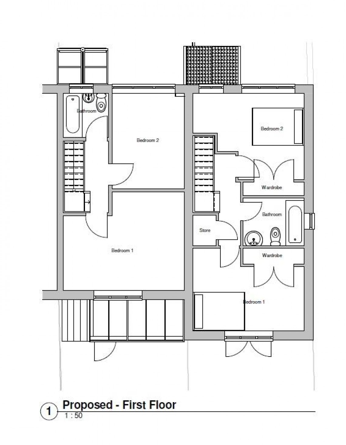
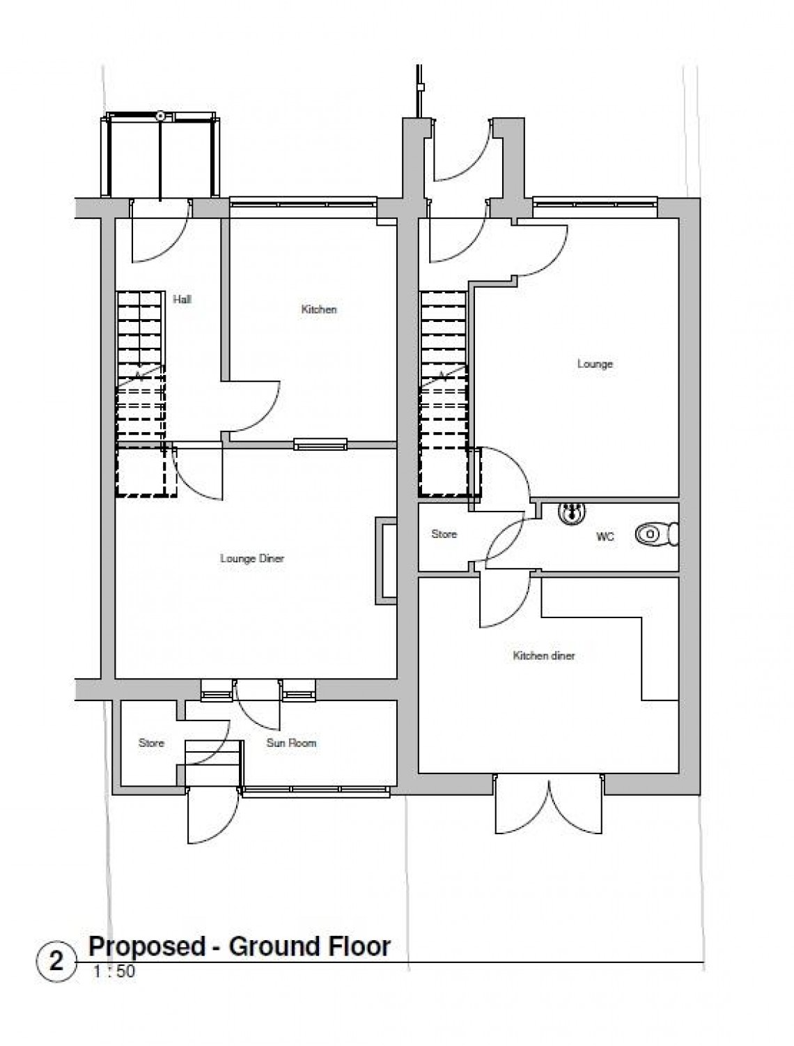
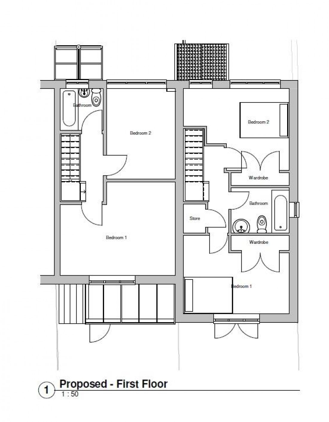
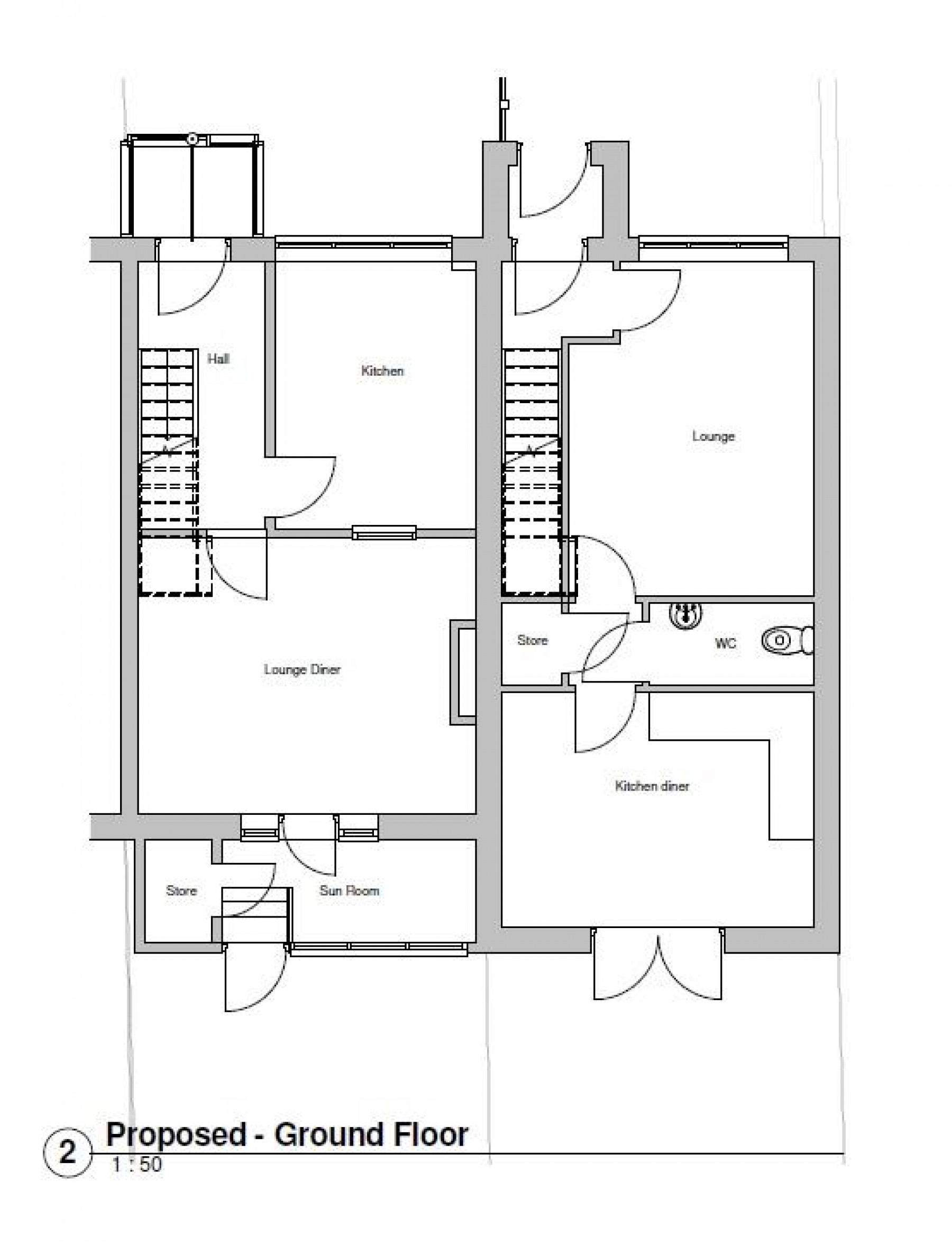
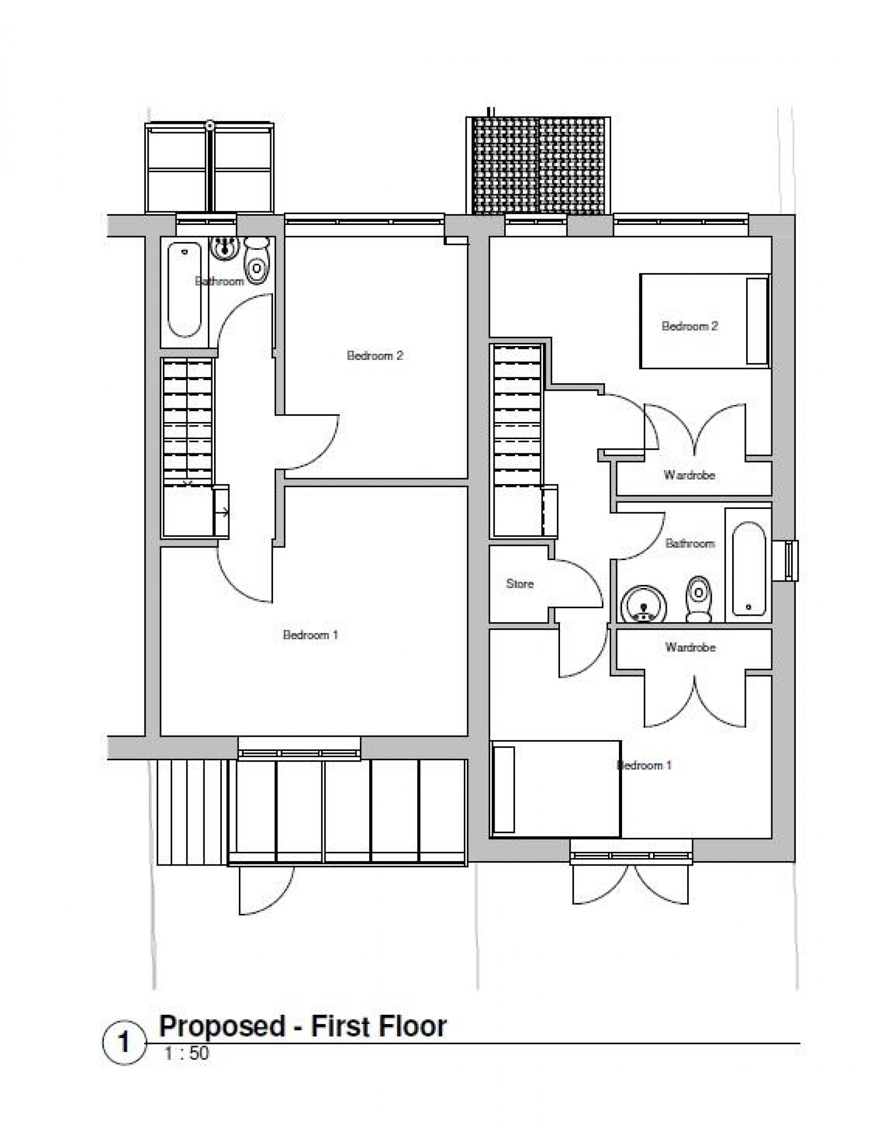
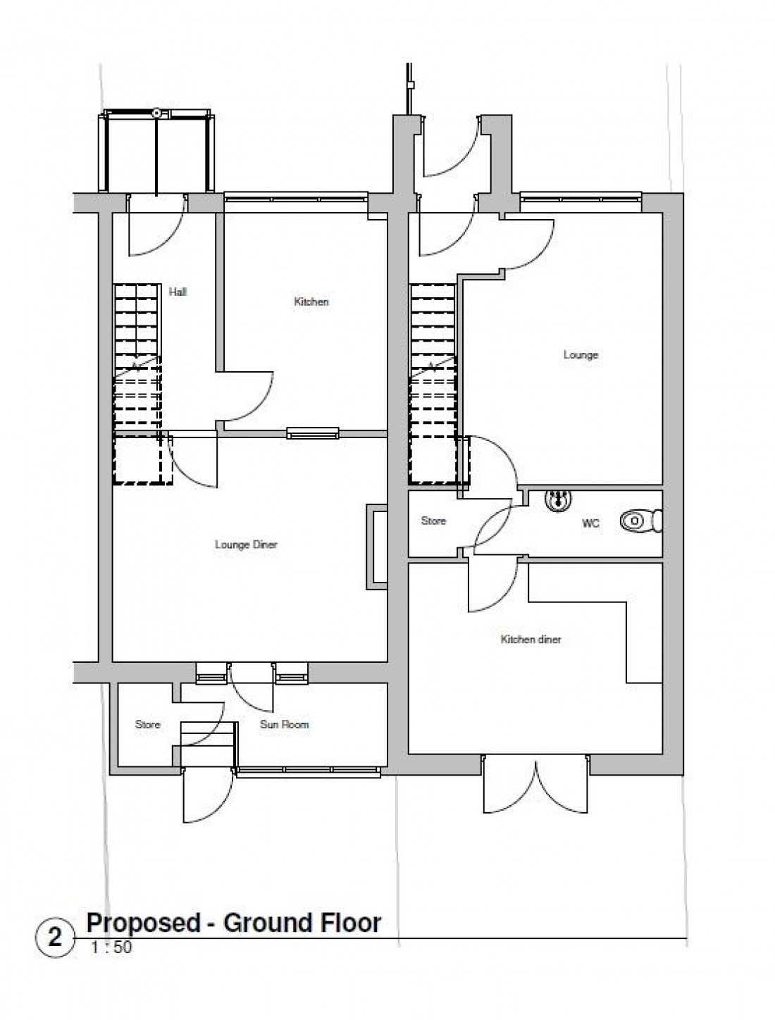
Bedrooms 2 Bathrooms 2 Reception 2

  • FOR SALE BY PUBLIC AUCTION
  • WEDNESDAY 28TH NOVEMBER 2018
  • ALL SAINTS CHURCH, CLIFTON, BS8 2HY
  • WEEKLY SET VIEWINGS
  • DOWNLOAD ONLINE LEGAL PACKS
  • BUILDING PLOT
  • PLANNING GRANTED
  • 2 BEDROOM HOUSE
  • PARKING AND GARDEN
  • EXTENDED 8 WEEK COMPLETION

FOR SALE BY AUCTION

*** SOLD PRIOR TO AUCTION ***

GUIDE £70,000 +++
SOLD PRIOR @ £70,000

LOT NUMBER 26
Wednesday 28th November 2018
All Saints Church Pembroke Road, Clifton, Bristol BS8 2HY
Legal packs will be available for inspection from 18:00.
The sale will begin promptly at 19:00

THE LAND

A Freehold corner parcel of land adjacent to 38 New Cheltenham Road and Kingsholme Road.
Sold with vacant possession.

LOCATION

The land is located close to Two Mile Hill Road within the popular suburb of Kingswood. Local amenities and services are all within close proximity including the vibrant Church Road which boasts an array of independent retailers, pubs, bars, cafes and restaurants. Bristol City Centre is approximately three miles away.

THE OPPORTUNITY

BUILDING PLOT

Planning has been granted to erect a semi detached 2 bedroom house with parking and garden.

PLANNING GRANTED

ReferencePK17/1859/F
Alternative ReferencePP-06012402
Application ReceivedMon 24 Apr 2017
Application ValidatedWed 24 May 2017
Address38 New Cheltenham Road Kingswood Bristol South Gloucestershire BS15 1TJ
ProposalErection of 1no. attached dwelling with parking and associated works.
StatusDecided
DecisionApprove with Conditions
Decision Issued DateThu 03 Aug 2017
Appeal StatusUnknown
Appeal DecisionNot Available


Local Information

Schools Stations Healthcare
Floorplan for PLANNING GRANTED - 2 BED - KINGSWOOD Floorplan for PLANNING GRANTED - 2 BED - KINGSWOOD Floorplan for PLANNING GRANTED - 2 BED - KINGSWOOD Floorplan for PLANNING GRANTED - 2 BED - KINGSWOOD Floorplan for PLANNING GRANTED - 2 BED - KINGSWOOD Floorplan for PLANNING GRANTED - 2 BED - KINGSWOOD Floorplan for PLANNING GRANTED - 2 BED - KINGSWOOD Floorplan for PLANNING GRANTED - 2 BED - KINGSWOOD