Sold @ Auction £275,000

House + Plot, 21, Savoy Road, Brislington, BS4 3SX

Bedrooms 5 Bathrooms 3 Reception 2

  • FOR SALE BY PUBLIC AUCTION
  • WEDNESDAY 28TH NOVEMBER
  • ALL SAINTS CHURCH, CLIFTON, BS8 2HY
  • WEEKLY SET VIEWINGS
  • DOWNLOAD ONLINE LEGAL PACKS
  • SEMI DETACHED PERIOD PROPERTY
  • REQUIRES UPDATING
  • BUILDING PLOT
  • PLANNING GRANTED
  • DEVELOPMENT COMBO

FOR SALE BY AUCTION

*** SOLD @ HOLLIS MORGAN NOVEMBER AUCTION ***

GUIDE PRICE £260,000 +++
SOLD @ £275,000

LOT NUMBER 9
Wednesday 28th November 2018
All Saints Church Pembroke Road, Clifton, Bristol BS8 2HY
Legal packs will be available for inspection from 18:00.
The sale will begin promptly at 19:00

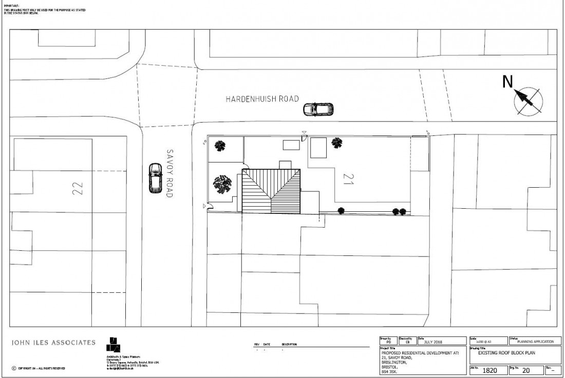
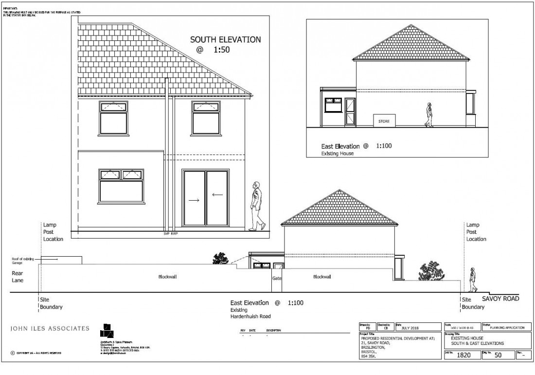
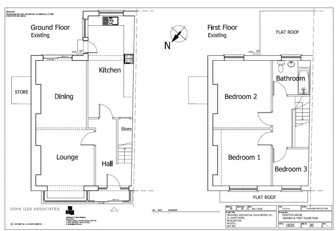
THE PROPERTY

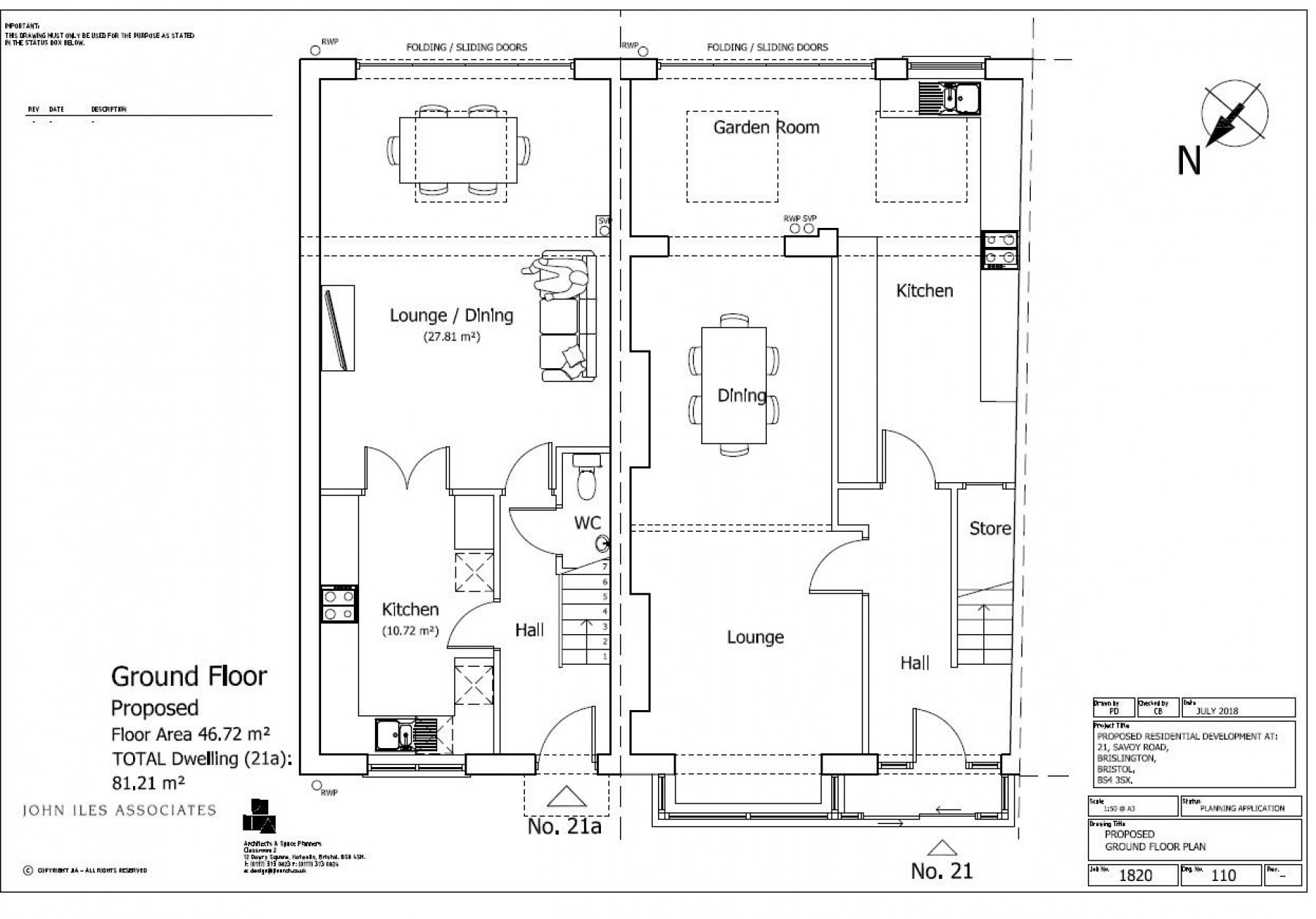
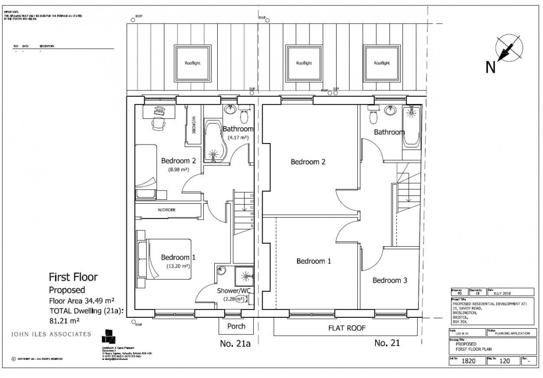
HOUSE

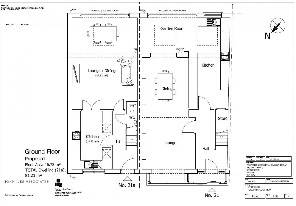
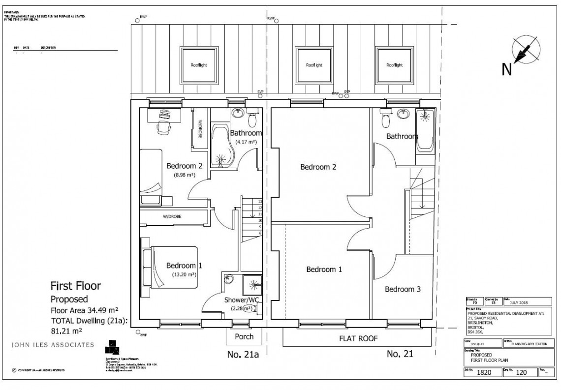
A semi detached three bedroom family home ( 1050 Sq FT ) with enclosed rear garden - refer to floorplans.

BUILDING PLOT

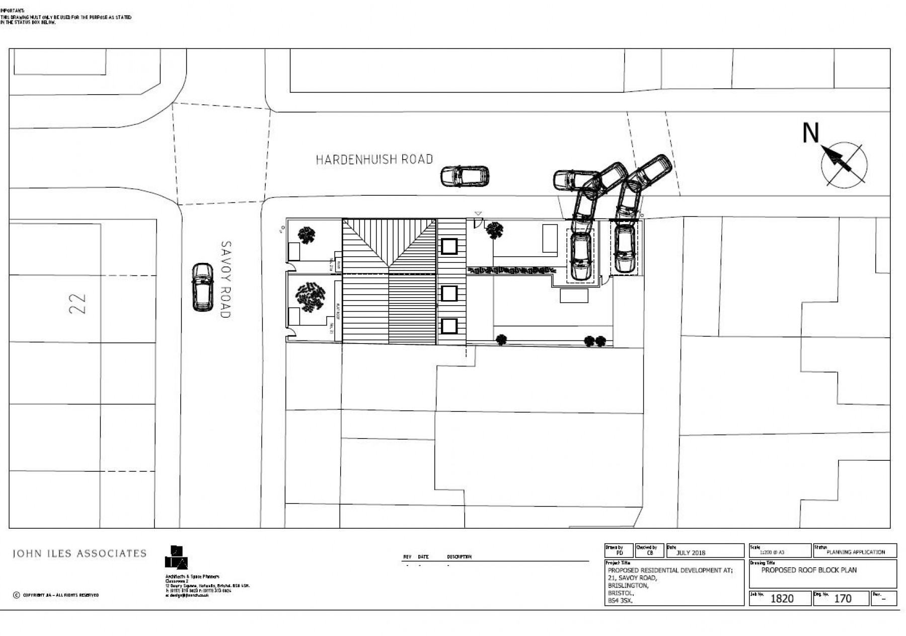
A parcel of land occupying the corner of Hardenhuish and Savoy Road adjacent to number 21 Savoy Road.

TENURE

Leasehold - option to purchase freehold.
Refer to legal pack.

LOCATION

Savoy Road is a quiet family road within the popular suburb of Brislington.
Local amenities and services are all within close proximity including independent retailers, pubs, bars and cafes.
Bristol City Centre is approximately three miles away.

THE OPPORTUNITY

HOUSE

The property is now in need of updating but would make a fine family home or investment in this sought after location.

PLOT

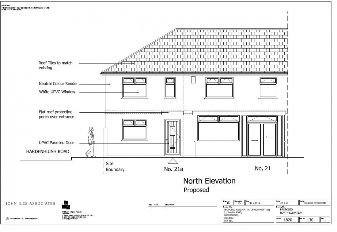
Full Planning has been granted to erect a two bedroom new build with off street parking and garden - refer to plans.

SOLD WITH VACANT POSSESSION

DEVELOPMENT GDV FIGURES

Refurbished Host Property

Once fully modernised, the existing three bedroom house would have a value in the region of £300,000.

New Build

We would recommend a value of £260,000 for the new build two bedroom house.

RENTAL APPRAISAL

What rent can we achieve for you?

The Bristol Residential Letting Co. are confident this property would make a good rental investment. Josh Box of The Bristol Residential Letting Co suggests a rent of;

2 bedroom new build house - £1000pcm - £1050pcm

3 bedroom house - £1100pcm - £1200pcm

If you would like to discuss more detail on the potential for rental, you can call me (0117 370 8818) or email (josh@bristolreslet.com) for a no obligation discussion. Alternatively why not drop into my Office (222 North Street, Southville, BS3 1JD) where I am always happy to advise investors on maximising their investment.

PLANNING GRANTED

Decision : GRANTED subject to condition(s)
Application no: 18/03999/F
Type of application: Full Planning
Site address: 21 Savoy Road, Bristol, BS4 3SX.
Description of development: Proposed development of a rear extension to existing dwelling and one 2no. bedroom semi-detached house with private front and rear garden and off street parking space and associated works.
Applicant: Mr Shaun Chivers
Agent: John Iles Associates
Committee/delegation date: 19.09.18
Date of Notice: 19.09.18

PLANNING INFORMATION

Full details of the proposed plans can be downloaded with the online legal pack.

EPC

For full details of the EPC please refer to the online legal pack.


Local Information

Schools Stations Healthcare
Floorplan for HOUSE + PLOT - BRISLINGTON Floorplan for HOUSE + PLOT - BRISLINGTON Floorplan for HOUSE + PLOT - BRISLINGTON Floorplan for HOUSE + PLOT - BRISLINGTON Floorplan for HOUSE + PLOT - BRISLINGTON Floorplan for HOUSE + PLOT - BRISLINGTON Floorplan for HOUSE + PLOT - BRISLINGTON Floorplan for HOUSE + PLOT - BRISLINGTON Floorplan for HOUSE + PLOT - BRISLINGTON Floorplan for HOUSE + PLOT - BRISLINGTON Floorplan for HOUSE + PLOT - BRISLINGTON Floorplan for HOUSE + PLOT - BRISLINGTON Floorplan for HOUSE + PLOT - BRISLINGTON Floorplan for HOUSE + PLOT - BRISLINGTON Floorplan for HOUSE + PLOT - BRISLINGTON