Lot TBC

Development Site @, 54 West Street, Bedminster, BS3 3LH

Sold @ Auction £500,000 +++

Bedrooms 14 Bathrooms 14 Reception 7

  • FOR SALE BY PUBLIC AUCTION
  • WEDNESDAY 27th FEBRUARY
  • ALL SAINTS CHURCH, CLIFTON, BS8 2HY
  • WEEKLY SET VIEWINGS
  • DOWNLOAD ONLINE LEGAL PACKS
  • FEBRUARY 2019
  • FULL PLANNING GRANTED
  • 3 x 3 BEDROOM HOUSES
  • 4 X 1 BEDROOM FLATS
  • GDV £1.73m - £1.85m

FOR SALE BY AUCTION

*** SOLD @ THE HOLLIS MORGAN FEBRUARY AUCTION ***

LOT NUMBER 12
Wednesday 27th February 2019
All Saints Church Pembroke Road, Clifton, Bristol BS8 2HY
Legal packs will be available for inspection from 18:00.
The sale will begin promptly at 19:00

EXTENDED COMPLETION

Completion is set for 8 weeks or earlier subject to mutual consent.

SOLICITORS

Dave Roberts
Star Legal
david.roberts@star-legal.co.uk

ONLINE LEGAL PACKS

Digital Copies of the Online legal pack can be downloaded Free of Charge.
Please visit the Hollis Morgan Website and select the chosen lot from our Current Auction List.
Follow the RED link to "Download Legal Packs" For the first visit you will be required to register simply with your email and a password.
Having set up your account you can download legal packs or if they are not yet available they will automatically be sent to you when we receive them.
You will be automatically updated by email if any new information is added.
There will be a note added to the list to confirm AUCTION PACK NOW COMPLETE when no further information is due to be added.
*** STAY UPDATED *** By registering for the legal pack we can ensure you are kept updated on any changes to this Lot in the build up to the sale.

THE LAND

A Freehold L shaped parcel of land ( 0.158 Acres ) with access from West Street.
Ground investigation report - refer to online legal pack.

LOCATION

Located at the lower end of West Street and is close to North Street which offers an array of independent retailers, gourmet restaurants, affluent bars, cafes and friendly public houses.
Bristol City Centre is less than 1 mile away.

THE OPPORTUNITY

PLANNING GRANTED

Planning has been granted to erect a scheme of 3 x 3 bed houses and 4 x Flats.

Full details of the proposed development can be downloaded with the online legal pack.
Please refer to online pack for copies of contamination reports and various other relevant documents relating to the conditions.

HOUSES

Terrace of 3 x 3 Bedroom ( 5 Person ) houses arranged over 3 floors - 1087 Sq Ft
Ground Floor - Kitchen, Living Space, WC, Courtyard Garden and Bin Store
First Floor - Bedroom 3, Bedroom 2, Bathroom.
Top Floor - Bedroom 1, Bathroom.

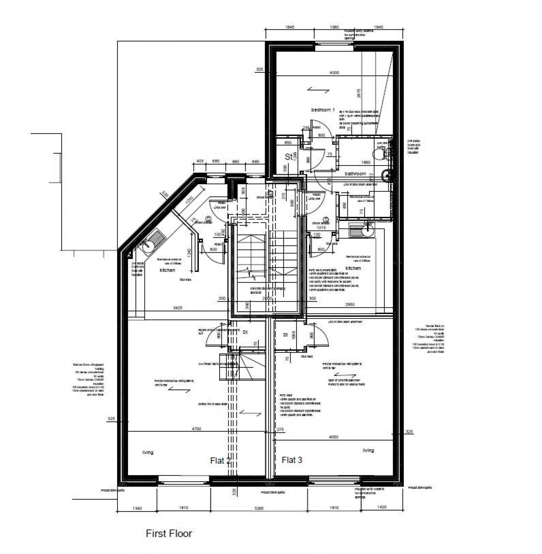
FLATS

Flat 1 608 sq ft ( 1 Bed )
Flat 2 786 sq ft ( 2 Bed )
Flat 3 570 sq ft ( 1 Bed )
Flat 4 581 Sq ft ( 1 Bed )

PARKING

4 Spaces

SITE GDV

HOUSES

£325,000 - £350,000 ( x 3 )

FLATS

£175,000 - £185,000 ( 1 Bed x 3 )

£230,000 - £250,000 ( 2 x 1 )

TOTAL GDV

£1.73m - £1.85m

Please contact our NEW HOMES TEAM for GDV breakdown.
Calum Melhuish
Calum@hollismorgan.co.uk

PLANNING GRANTED

Reference16/05399/F
Alternative ReferencePP-05482722
Application ReceivedWed 05 Oct 2016
Application ValidatedWed 12 Oct 2016
Address54 West Street Bedminster Bristol BS3 3LH
ProposalDemolition of workshop and erection of 3 x 3 storey houses and 3 storey block containing 4 flats with associated external works.
StatusDecided
DecisionGRANTED subject to condition(s)
Decision Issued DateMon 13 Mar 2017
Appeal StatusUnknown

PLANNING UPDATE - CONDITIONS

Reference17/05695/COND
Alternative ReferencePP-06450052
Application ReceivedThu 12 Oct 2017
Application ValidatedThu 12 Oct 2017
Address54 West Street Bedminster Bristol BS3 3LH
ProposalApplication to approve details in relation to condition 2(Contamination), 3 (Remediation Scheme), 4 (Implementation of Remediation Scheme), 6 (Noise Sensitive Premises Assessment), 7(Construction environmental management plan), 9 (SUDS) and 11 (Artificial Lighting) of permission 16/05399/F Demolition of workshop and erection of 3 x 3storey houses and 3 storey block containing 4 flats with associated external works.
StatusDecided
DecisionCondition application decided
Decision Issued DateWed 06 Dec 2017
Appeal StatusUnknown

RENTAL APPRAISAL

What rent can we achieve for you?

The Bristol Residential Letting Co. are confident this property would make a good rental investment. Josh Box of The Bristol Residential Letting Co suggests rents in the region of;

3 bedroom houses - £1200pcm - £1300pcm

2 bedroom flat - £1000pcm - £1100pcm

1 bedroom flats - £800pcm - £850pcm

If you would like to discuss more detail on the potential for rental, you can call me (0117 370 8818) or email (josh@bristolreslet.com) for a no obligation discussion. Alternatively why not drop into my Office (222 North Street, Southville, BS3 1JD) where I am always happy to advise investors on maximising their investment.

EPC

For full details of the EPC please refer to the online legal pack.

GUIDE PRICE

An indication of the seller's current minimum acceptable price at auction. The guide price or range of guide prices is given to assist consumers in deciding whether or not to pursue a purchase. It is usual, but not always the case, that a provisional reserve range is agreed between the seller and the auctioneer at the start of marketing. As the reserve is not fixed at this stage and can be adjusted by the seller at any time up to the day of the auction in the light of interest shown during the marketing period, a guide price is issued. This guide price can be shown in the form of a minimum and maximum price range within which an acceptable sale price (reserve) would fall, or as a single price figure within 10% of which the minimum acceptable price (reserve) would fall. A guide price is different to a reserve price (see separate definition). Both the guide price and the reserve price can be subject to change up to and including the day of the auction.

RESERVE PRICE

The seller's minimum acceptable price at auction and the figure below which the auctioneer cannot sell. The reserve price is not disclosed and remains confidential between the seller and the auctioneer. Both the guide price and the reserve price can be subject to change up to and including the day of the auction.

BUYER'S PREMIUM

Please be aware all purchasers are subject to a £1000 + VAT (£1,200 inc VAT) buyer's premium which is ALWAYS payable upon exchange of contracts whether the sale is concluded before, during or after the auction date.

PRE AUCTION OFFERS

Some properties may be available to buy prior to the auction.
Pre auction offers can be only submitted by completing the OFFER FORM which can be downloaded with the online legal pack - please email the COMPLETED form to – olly@hollismorgan.co.uk.
Please note offers will not be considered until you have VIEWED the property and the COMPLETE LEGAL PACK has been released.
You will be emailed a note to confirm the AUCTION PACK NOW COMPLETE and then offers can be submitted.
In the event of an offer being accepted the property will only be removed from the auction and viewings stopped once contracts have successfully EXCHANGED subject to the standard auction terms and payment of the buyer’s premium ( £1,200 ) to Hollis Morgan. Contracts can be signed either via the solicitors or at the Hollis Morgan offices subject to appointment.

AUCTION BUYERS GUIDE VIDEO

We have short video guides for both buying and selling by Public Auction on the Hollis Morgan Website. If you have any further questions regarding the process please don’t hesitate to contact Auction HQ.

AUCTION FINANCE

Some properties may require specialist auction finance- please contact Hollis Morgan for access to expert advice and "whole of market" rates.

SURVEYS AND VALUATIONS

If you would like to arrange a survey or mortgage valuation of this Lot BEFORE the auction please instruct your appointed surveyor to contact Hollis Morgan and we will arrange access for them to inspect the property. Please note that buyers CANNOT attend the surveys and the surveyors are responsible for collecting and returning keys to the Hollis Morgan offices in Clifton.

BIDDING AT THE AUCTION

This property is for sale by public auction and if you intend to bid please bring the following:

Proof of identity (valid passport or photo driving licence).
Proof of address (bank statement, recent utility bill, council tax bill or tenancy agreement).
10% deposit payment.
Buyers premium payment.
Details of your solicitor.

TELEPHONE AND PROXY BIDDING

If you cannot attend the auction (although we strongly advise you do) you can make a TELEPHONE or PROXY BID. This authorises the auctioneer to bid on your behalf up to a pre-set limit. Forms and relevant conditions are available to download with the online legal pack. A completed form, ID and two cheques (one for the 10% deposit and one for the Buyer's Administration Fee of £1,200) are required by the Auction Department at least two full working days before the auction.

PAYING THE DEPOSIT & BUYERS PREMIUM

We can only accept the following at the auction:

Personal or Company Cheque
Bankers Draft
Debit Card ( NOT CREDIT CARD )

WHY HOLLIS MORGAN?

Hollis Morgan regularly hold the largest property auctions across Bristol and the West Country from our iconic Sale Room in Clifton, since we formed in 2010 we have sold the most £££'s of land and property by Public Auction in the region - EVERY YEAR!
Between 2010 and 2018 we have held 51 auctions, offering 1321 lots and raising over £269m for clients across the region.
Did you know….Hollis Morgan sold more £££’s of land and property by auction than all the other Bristol Auctioneers combined in 2018 with over £44m of successful sales!

CHARITY OF THE YEAR

Hollis Morgan are supporting Bristol charity based Off the Record! as our 2018 charity of the year with 5% of each buyers premium donated to help provide free and confidential mental health support and information to young people aged 11-25 in Bristol - www.otrbristol.org.uk In 2017 we were delighted to be involved in raising £30,000 over 3 events for the “Life for a cure” Bristol based meningitis charity - www.ryanbresnahan.org Visit the Charity page of our Website for further details - https://www.hollismorgan.co.uk/charity/

TESTIMONIALS

We are very proud of what our past clients have say about us - please visit the Hollis Morgan website to read their testimonials.


Local Information

Schools Stations Healthcare
Floorplan for DEVELOPMENT SITE - PLANNING GRANTED Floorplan for DEVELOPMENT SITE - PLANNING GRANTED Floorplan for DEVELOPMENT SITE - PLANNING GRANTED Floorplan for DEVELOPMENT SITE - PLANNING GRANTED Floorplan for DEVELOPMENT SITE - PLANNING GRANTED Floorplan for DEVELOPMENT SITE - PLANNING GRANTED Floorplan for DEVELOPMENT SITE - PLANNING GRANTED Floorplan for DEVELOPMENT SITE - PLANNING GRANTED Floorplan for DEVELOPMENT SITE - PLANNING GRANTED Floorplan for DEVELOPMENT SITE - PLANNING GRANTED Floorplan for DEVELOPMENT SITE - PLANNING GRANTED Floorplan for DEVELOPMENT SITE - PLANNING GRANTED Floorplan for DEVELOPMENT SITE - PLANNING GRANTED Floorplan for DEVELOPMENT SITE - PLANNING GRANTED