Sold @ Auction £195,000

Development Site @, 33, Church Road, Hanham, BS15 3AE

Bedrooms 4 Bathrooms 4 Reception 3

  • FOR SALE BY PUBLIC AUCTION
  • WEDNESDAY 26TH SEPTEMBER
  • ALL SAINTS CHURCH, CLIFTON, BS8 2HY
  • WEEKLY SET VIEWINGS
  • DOWNLOAD ONLINE LEGAL PACKS
  • FREEHOLD PLOT
  • DEVELOPMENT OPPORTUNITY
  • PLANNING GRANTED
  • 2 X 2 BEDROOM HOUSES
  • GDV £550,000 - £560,000

FOR SALE BY AUCTION

*** SOLD @ THE £10M SEPTEMBER AUCTION – NOW TAKING LOTS – 0117 973 6565 ***

GUIDE £175,000 +++
SOLD @ £195,000

LOT NUMBER 19
Wednesday 26th September 2018
All Saints Church Pembroke Road, Clifton, Bristol BS8 2HY
Legal packs will be available for inspection from 18:00.
The sale will begin promptly at 19:00

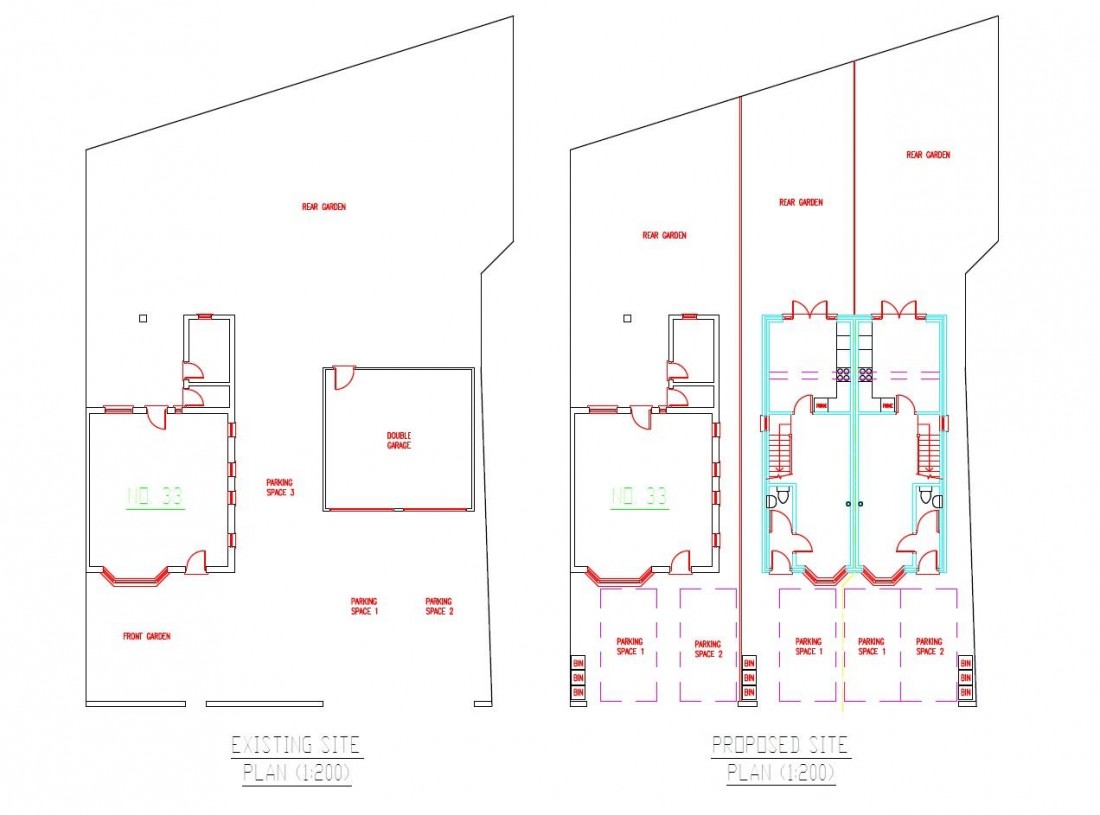
THE LAND

A Freehold parcel of land with an existing double garage fronting Church Road.

LOCATION

Church Road is located just off the main High Street within the popular suburb of Hanham close to Avon Valley park and woodlands, in the catchment area for Hanham Christchurch infant and Junior school and Hanham High School. Local amenities and services are all within close proximity including independent retailers, pubs, bars, cafes and restaurants.
Bristol City Centre is approximately four miles away.

THE OPPORTUNITY

PLANNING GRANTED

Planning has been granted to demolish the existing garages and erect a pair of 2 bedroom semi detached family homes with enclosed rear gardens and off street parking.

GDV

We understand the re sale values of the finished houses are in the region of £275,000 - £280,000
£550,000 - £560,000

PLANNING GRANTED

ReferencePK17/4789/F
Alternative ReferencePP-06455630
Application ReceivedMon 16 Oct 2017
Application ValidatedMon 23 Oct 2017
Address33 Church Road Hanham Bristol South Gloucestershire BS15 3AE
ProposalDemolition of existing double garage. Erection of 2 no. semi-detached dwellings with access and associated works.
StatusDecided
DecisionApprove with Conditions ( REFER TO DRILLING AND GROUTING REPORT )
Decision Issued DateFri 19 Jan 2018
Appeal StatusUnknown
Appeal DecisionNot Available

PLANNING INFORMATION

Full details of the planning and proposed scheme can be downloaded with the online legal pack.

DRILLING AND GROUTING REPORT

Please note full copy of the report ( full intrusive ground investigation as directed by The Coal Authority has been successfully completed ) is available to download with the online legal pack -

C I L

The Community Infrastructure Charge (CIL) has been served is £12500 for both houses and has been heavily discounted due to the presence of the existing building (double garage).

EPC

For full details of the EPC please refer to the online legal pack.


Local Information

Schools Stations Healthcare
Floorplan for PLANNING GRANTED - 2 X 2 BED HOUSES Floorplan for PLANNING GRANTED - 2 X 2 BED HOUSES Floorplan for PLANNING GRANTED - 2 X 2 BED HOUSES Floorplan for PLANNING GRANTED - 2 X 2 BED HOUSES Floorplan for PLANNING GRANTED - 2 X 2 BED HOUSES Floorplan for PLANNING GRANTED - 2 X 2 BED HOUSES