Lot 17

Development Site @ Pool Farm Wotton Road, Rangeworthy, BS37 7NA

Sold @ Auction £1,050,000 +++

Bedrooms 25 Bathrooms 16 Reception 16

  • FOR SALE BY PUBLIC AUCTION
  • WEDNESDAY 26TH SEPTEMBER
  • ALL SAINTS CHURCH, CLIFTON, BS8 2HY
  • WEEKLY SET VIEWINGS
  • DOWNLOAD ONLINE LEGAL PACKS
  • SEPTEMBER 2018
  • 1.28 ACRES
  • PLANNING GRANTED
  • 8 X DETACHED HOUSES
  • EXTENDED 8 WEEK COMPLETION

FOR SALE BY AUCTION

*** SOLD @ THE £10M SEPTEMBER AUCTION – NOW TAKING LOTS – 0117 973 6565 ***

GUIDE £950,000 +++
SOLD @ £1,050,000

LOT NUMBER 17
Wednesday 26th September 2018
All Saints Church Pembroke Road, Clifton, Bristol BS8 2HY
Legal packs will be available for inspection from 18:00.
The sale will begin promptly at 19:00

EXTENDED COMPLETION

Completion is set for 8 weeks or earlier subject to mutual consent.

VIEWINGS

The site is available for inspection by appointment - please contact Hollis Morgan 0117 973 6565

SOLICITORS

Katrina Bartlett
WARDS
6 Fountain Court, New Leaze, Bradley Stoke, Bristol BS32 4LA
Tel: 01454 204880
Fax: 01454 201391
Katrina.Bartlett@wards.uk.com

ONLINE LEGAL PACKS

Digital Copies of the Online legal pack can be downloaded Free of Charge.
Please visit the Hollis Morgan Website and select the chosen lot from our Current Auction List.
Follow the RED link to "Download Legal Packs" For the first visit you will be required to register simply with your email and a password.
Having set up your account you can download legal packs or if they are not yet available they will automatically be sent to you when we receive them.
You will be automatically updated by email if any new information is added.
There will be a note added to the list to confirm AUCTION PACK NOW COMPLETE when no further information is due to be added.
*** STAY UPDATED *** By registering for the legal pack we can ensure you are kept updated on any changes to this Lot in the build up to the sale.

THE LAND

A Freehold parcel of land ( 1.28 Acres ) with road frontage onto Wotton Road.

LOCATION

The land is set in semi-rural location in the village of Rangeworthy, convenient to the town centres of Yate, Thornbury and Wotton-under-Edge. Rangeworthy itself offers a village shop, post office, primary school and restaurant with a comprehensive range of amenities, facilities and schooling available in the larger towns. The site is convenient to the motorway network, with junction 14 of the M5 and junction 18 of the M4 both being within 10 miles. Bristol city centre and the intercity Railway station at Parkway are also readily accessible.

THE OPPORTUNITY

DEVELOPMENT SITE - PLANNING GRANTED

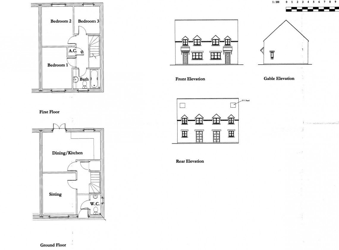
Outline planning has been granted to erect a scheme of 8 detached properties in this sought after Village location.
We understand the properties will have an average value of circa £500,000 each.
SITE GDV CIRCA £4M
There may be scope to increase the density and amend the size of each unit subject to full planning.

OPTION - EXTRA PLOT TO REAR

“The Seller shall, at the request of the Buyer, enter into an option Agreement for the sale of adjoining land. The form of the option Agreement which will be in the form to be included in the auction pack along with a plan and the land will be sold at market value. The request by the Buyer must be made within 2 weeks of the date of the auction“

ReferencePT18/1428/O
Alternative ReferenceNot Available
Application ReceivedThu 22 Mar 2018
Application ValidatedWed 04 Apr 2018
AddressLand Off Wotton Road Rangeworthy Bristol South Gloucestershire BS37 7NA
ProposalErection of 14 new dwellings (outline) with access and layout to be determined all other matters reserved.
StatusDecided
DecisionRefusal
Decision Issued DateWed 27 Jun 2018
Appeal StatusUnknown
Appeal DecisionNot Available

PLANNING GRANTED

ReferencePT17/3260/O
Alternative ReferenceNot Available
Application ReceivedTue 11 Jul 2017
Application ValidatedTue 11 Jul 2017
AddressLand At Wotton Road Rangeworthy Bristol South Gloucestershire BS37 7NA
ProposalErection of 8no. dwellings (outline) with access and layout to be determined all other matters reserved.
StatusDecided
DecisionApprove with Conditions
Decision Issued DateFri 05 Jan 2018
Appeal StatusUnknown
Appeal DecisionNot Available

BUYER'S PREMIUM

Please be aware all purchasers are subject to a £1000 + VAT (£1,200 inc VAT) buyer's premium which is ALWAYS payable upon exchange of contracts whether the sale is concluded before, during or after the auction date.

GUIDE PRICE

An indication of the seller's current minimum acceptable price at auction. The guide price or range of guide prices is given to assist consumers in deciding whether or not to pursue a purchase. It is usual, but not always the case, that a provisional reserve range is agreed between the seller and the auctioneer at the start of marketing. As the reserve is not fixed at this stage and can be adjusted by the seller at any time up to the day of the auction in the light of interest shown during the marketing period, a guide price is issued. This guide price can be shown in the form of a minimum and maximum price range within which an acceptable sale price (reserve) would fall, or as a single price figure within 10% of which the minimum acceptable price (reserve) would fall. A guide price is different to a reserve price (see separate definition). Both the guide price and the reserve price can be subject to change up to and including the day of the auction.

RESERVE PRICE

The seller's minimum acceptable price at auction and the figure below which the auctioneer cannot sell. The reserve price is not disclosed and remains confidential between the seller and the auctioneer. Both the guide price and the reserve price can be subject to change up to and including the day of the auction.

PRE AUCTION OFFERS

Some properties may be available to buy prior to the auction.
Pre auction offers can be only submitted by completing the OFFER FORM which can be downloaded with the online legal pack - please email the COMPLETED form to – olly@hollismorgan.co.uk.
Please note offers will not be considered until you have VIEWED the property and the COMPLETE LEGAL PACK has been released.
You will be emailed a note to confirm the AUCTION PACK NOW COMPLETE and then offers can be submitted.
In the event of an offer being accepted the property will only be removed from the auction and viewings stopped once contracts have successfully EXCHANGED subject to the standard auction terms and payment of the buyer’s premium ( £1,200 ) to Hollis Morgan. Contracts can be signed either via the solicitors or at the Hollis Morgan offices subject to appointment.

SURVEYS AND VALUATIONS

If you would like to arrange a survey or mortgage valuation of this Lot BEFORE the auction please instruct your appointed surveyor to contact Hollis Morgan and we will arrange access for them to inspect the property. Please note that buyers CANNOT attend the surveys and the surveyors are responsible for collecting and returning keys to the Hollis Morgan offices in Clifton.

BIDDING AT THE AUCTION

This property is for sale by public auction and if you intend to bid please bring the following:

Proof of identity (valid passport or photo driving licence).
Proof of address (bank statement, recent utility bill, council tax bill or tenancy agreement).
10% deposit payment.
Buyers premium payment.
Details of your solicitor.

PAYING THE DEPOSIT & BUYERS PREMIUM

We can only accept the following at the auction:

Personal or Company Cheque
Bankers Draft
Debit Card ( NOT CREDIT CARD )

TELEPHONE AND PROXY BIDDING

If you cannot attend the auction (although we strongly advise you do) you can make a TELEPHONE or PROXY BID. This authorises the auctioneer to bid on your behalf up to a pre-set limit. Forms and relevant conditions are available to download with the online legal pack. A completed form, ID and two cheques (one for the 10% deposit and one for the Buyer's Administration Fee of £1,200) are required by the Auction Department at least two full working days before the auction.

AUCTION BUYERS GUIDE VIDEO

We have short video guides for both buying and selling by Public Auction on the Hollis Morgan Website. If you have any further questions regarding the process please don’t hesitate to contact Auction HQ.

WHY HOLLIS MORGAN?

Hollis Morgan regularly hold the largest property auctions across Bristol and the West Country from our iconic Sale Room in Clifton, since we formed in 2010 we have sold the most £££'s of land and property by Public Auction in the region - EVERY YEAR!
Between 2010 and 2017 we have held 45 auctions, offering 1135 lots and raising over £225m for clients across the region
Did you know….Hollis Morgan sold more £££’s of land and property by auction than all the other Bristol Auctioneers combined in 2017 with over £49m of successful sales!

TESTIMONIALS

We are very proud of what our past clients have say about us - please visit the Hollis Morgan website to read their testimonials.

CHARITY OF THE YEAR

Hollis Morgan are supporting Bristol charity based Off the Record! as our 2018 charity of the year with 5% of each buyers premium donated to help provide free and confidential mental health support and information to young people aged 11-25 in Bristol - www.otrbristol.org.uk In 2017 we were delighted to be involved in raising £30,000 over 3 events for the “Life for a cure” Bristol based meningitis charity - www.ryanbresnahan.org Visit the Charity page of our Website for further details - https://www.hollismorgan.co.uk/charity/


Local Information

Schools Stations Healthcare
Floorplan for PLANNING GRANTED - 8 DETACHED HOUSES Floorplan for PLANNING GRANTED - 8 DETACHED HOUSES Floorplan for PLANNING GRANTED - 8 DETACHED HOUSES Floorplan for PLANNING GRANTED - 8 DETACHED HOUSES Floorplan for PLANNING GRANTED - 8 DETACHED HOUSES Floorplan for PLANNING GRANTED - 8 DETACHED HOUSES