Sold @ Auction £135,000

Land Between, 17 - 25, Air Balloon Road, St George, BS5 8LB

Bedrooms 2 Bathrooms 2 Reception 2

  • FOR SALE BY PUBLIC AUCTION
  • WEDNESDAY 18TH JULY
  • ALL SAINTS CHURCH, CLIFTON, BS8 2HY
  • WEEKLY SET VIEWINGS
  • DOWNLOAD ONLINE LEGAL PACKS
  • PLANNING GRANTED
  • PROMINENT SITE
  • FREEHOLD DEVELOPMENT SITE
  • 2 X 1 BEDROOM HOUSES
  • GDV £380,000 - £400,000

FOR SALE BY AUCTION

*** SOLD PRIOR TO AUCTION ***

LOT NUMBER 32
Wednesday 18th July 2018
All Saints Church Pembroke Road, Clifton, Bristol BS8 2HY
Legal packs will be available for inspection from 18:00.
The sale will begin promptly at 19:00

THE LAND

A Freehold parcel of land occupying a prominent and elevated position in this highly sought after location.

LOCATION

Air Balloon Road is located within the popular suburb of St. George. The vibrant Church Road is nearby and offers an array of independent retailers, pubs, bars, cafes and restaurants. Bristol City Centre is approximately six miles away.

THE OPPORTUNITY

PLANNING GRANTED

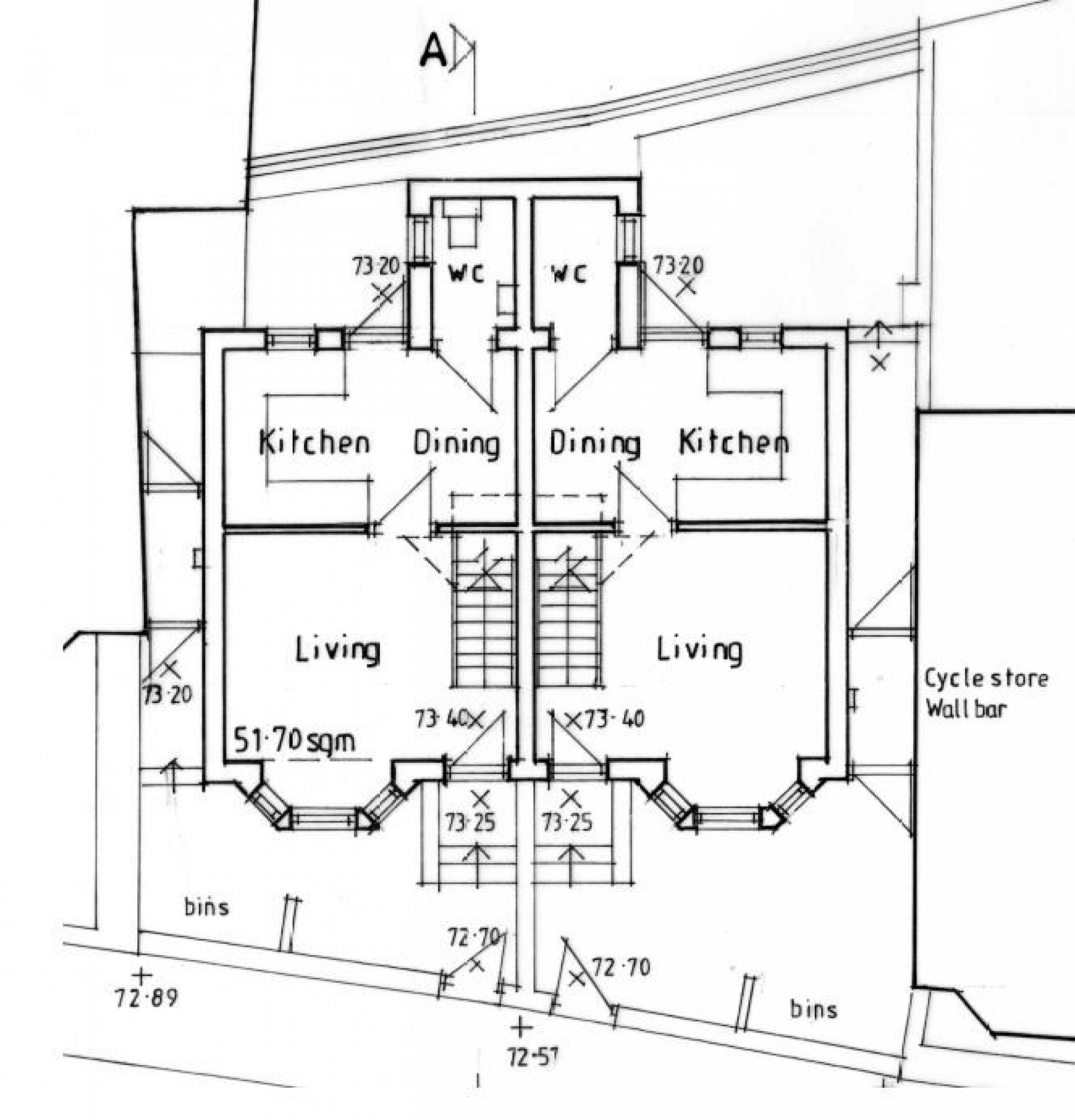
Planning has been granted to erect a pair of one bedroom houses arranged over two floors with courtyard gardens.

SCHEDULE OF ACCOMMODATION

GROUND FLOOR
Reception 1
Kitchen Diner
WC

FIRST FLOOR
Bedroom
Bathroom
Cupboard

PLANNING GRANTED

Decision : GRANTED subject to condition(s)
Application no: 18/00356/F
Type of application: Full Planning
Site address: Land Between 17 To 25, Air Balloon Road, Bristol, BS5 8LB.
Description of development: Proposed erection of 2No one bedroom dwelling houses (Resubmission).
Applicant: BS5 8LD Ltd
Agent: LPC (Trull) Ltd
Committee/delegation date: 13.04.18
Date of Notice: 13.04.18

GDV AND RESALES

We understand the resale values of the individual houses are in the region of £190,000 - £200,000
TOTAL GDV £380,000 - £400,000

PLANNING INFORMATION

Full details of the planning including proposed drawing etc can be downloaded with the online legal pack.

RENTAL APPRAISAL

About this property:

Once developed we would expect to achieve a rental income of £750pcm on each house (based on the plans provided).

Next steps:

If you would like further information on our services or on this or any other property please contact us at our Bristol office on 01179 55 18 17 or via email at enquiries@piperproperty.co.uk. Alternatively please visit our website www.piperproperty.co.uk for information on our office locations, services and to find out how we do things differently.


Local Information

Schools Stations Healthcare
Floorplan for PLANNING GRANTED - 2 X HOUSES Floorplan for PLANNING GRANTED - 2 X HOUSES